
| 賃料 | 予想金額:102,000〜122,000円程度 | 管理費 | 予想金額:5,000〜9,000円程度 |
| 礼金/敷金 | 非公開(アーカイブ) | 平米数 | 25.84㎡ |
| 初期費用概算(参考) | 目安:252,360〜352,360 円 | みなし賃料(月額・参考) | 112,966〜132,966 円 |
| 備考 | 本ページは過去募集のアーカイブです。表示の金額は周辺相場・過去募集を踏まえた参考レンジであり、実際の契約金額・条件ではありません。 | ||
※上記みなし賃料(月額)は仲介手数料割引・無料&キャッシュバックを加味した高級賃貸バイブル限定の金額です。一般的なみなし賃料とは異なります。
【建物ページ】コンフォリア清澄白河サウスの詳細・最新空室はこちら▶▶選ばれる理由
仲介手数料無料・キャンペーン情報(毎月15名様限定)
〇引っ越しお祝い金24640円プレゼント(キャッシュバック)
〇仲介手数料無料キャンペーン
コンフォリア清澄白河サウス 702の口コミ・レビュー
コンフォリア清澄白河サウス 702。ここでの生活はただの暮らしではなく、まるで一篇の詩が心の中で紡がれていくかのようです。この702号室は、南向きの窓から日差しが優しく差し込み、心地よい光が室内の空気を一層明るくしてくれます。リビングの心地よい広がり、7.6帖の洋室はまるで大きなキャンバスのように、日々の生活を色とりどりに彩る準備をしています。ここにいることが、自己表現を自由にすることを助けてくれ…コンフォリア清澄白河サウス 702。ここでの生活はただの暮らしではなく、まるで一篇の詩が心の中で紡がれていくかのようです。この702号室は、南向きの窓から日差しが優しく差し込み、心地よい光が室内の空気を一層明るくしてくれます。リビングの心地よい広がり、7.6帖の洋室はまるで大きなキャンバスのように、日々の生活を色とりどりに彩る準備をしています。ここにいることが、自己表現を自由にすることを助けてくれるのです。
想像してみてください。朝の光がカーテン越しに透け、目覚めたあなたは、あたたかなコーヒーの香りに包まれながらキッチンに立ちます。3帖のコンパクトながら機能的なキッチンは、まるでシェフの舞台。お気に入りのレシピを手に、味覚の冒険が始まります。食材を切る音、鍋が沸き立つ音、これらすべてが生活のメロディーとなり、心を高揚させていくことでしょう。
コンフォリア清澄白河サウス 702は、ただの住まいではなく、アートとデザインの織りなすハーモニーの中で生きる場所です。デザイナーズマンションの特性を活かし、スタイリッシュなインテリアがあなたの感性を刺激し、毎日が特別な日となる予感を与えてくれます。オートロックやTVモニターホンといったセキュリティ設備も完備されており、安心感と共にクリエイティブな生活が送れるのです。
この地域、江東区三好は、歴史と文化が交差する街でもあります。周辺にはアートギャラリーや小洒落たカフェが点在し、訪れるたびに新たな発見があります。徒歩7分で到達できる清澄白河駅からは、都会の喧騒にすぐにアクセスできる一方で、静謐な時間が流れるこの地の魅力を堪能できます。四季折々の風景があなたの目を癒し、心を穏やかにしてくれることでしょう。
夜になると、702号室の窓から見える光景は一層魅力的です。街の灯りが星のように瞬き、まるで美しい絵画があなたの目の前に広がるかのようです。ベランダでくつろぎながら、心地よい風を感じる瞬間に、人生の美しさを再確認できることでしょう。
コンフォリア清澄白河サウス 702があなたを待っています。新たな生活があなたを迎え入れ、毎日が映画のワンシーンのような体験に満ちたものになることをお約束します。この場所で、あなた自身のストーリーを描き始めてみませんか。生活そのものがアートとなり、心を豊かにしてくれることでしょう。
想像してみてください。朝の光がカーテン越しに透け、目覚めたあなたは、あたたかなコーヒーの香りに包まれながらキッチンに立ちます。3帖のコンパクトながら機能的なキッチンは、まるでシェフの舞台。お気に入りのレシピを手に、味覚の冒険が始まります。食材を切る音、鍋が沸き立つ音、これらすべてが生活のメロディーとなり、心を高揚させていくことでしょう。
コンフォリア清澄白河サウス 702は、ただの住まいではなく、アートとデザインの織りなすハーモニーの中で生きる場所です。デザイナーズマンションの特性を活かし、スタイリッシュなインテリアがあなたの感性を刺激し、毎日が特別な日となる予感を与えてくれます。オートロックやTVモニターホンといったセキュリティ設備も完備されており、安心感と共にクリエイティブな生活が送れるのです。
この地域、江東区三好は、歴史と文化が交差する街でもあります。周辺にはアートギャラリーや小洒落たカフェが点在し、訪れるたびに新たな発見があります。徒歩7分で到達できる清澄白河駅からは、都会の喧騒にすぐにアクセスできる一方で、静謐な時間が流れるこの地の魅力を堪能できます。四季折々の風景があなたの目を癒し、心を穏やかにしてくれることでしょう。
夜になると、702号室の窓から見える光景は一層魅力的です。街の灯りが星のように瞬き、まるで美しい絵画があなたの目の前に広がるかのようです。ベランダでくつろぎながら、心地よい風を感じる瞬間に、人生の美しさを再確認できることでしょう。
コンフォリア清澄白河サウス 702があなたを待っています。新たな生活があなたを迎え入れ、毎日が映画のワンシーンのような体験に満ちたものになることをお約束します。この場所で、あなた自身のストーリーを描き始めてみませんか。生活そのものがアートとなり、心を豊かにしてくれることでしょう。
バイブルスコア
バイブルスコア: 35.7
平均的なスコアです。
※バイブルスコア詳細はこちら
バイブルスコアとは独自のAI機械学習技術を利用した物件評価システムで、物件のおすすめ度を示します。最高得点は100点で、スコアが高いほど、よりおすすめの物件と評価されています。
写真
契約条件
| 賃料 | 予想金額:102,000〜122,000円程度 | 管理費 | 予想金額:5,000〜9,000円程度 |
| 礼金 | 非公開(アーカイブ) | 敷金 | 非公開(アーカイブ) |
| フリーレント | なし | 平米数 | 25.84㎡ |
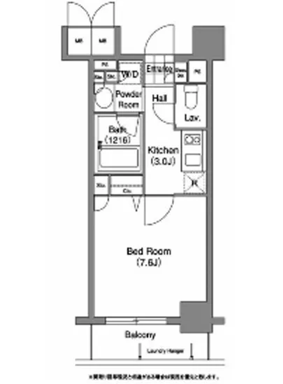
| 間取り | 1K | 大型収納 | なし |
| 契約期間 | 2年 | 方角 | 南 |
| 更新料 | 1ヶ月 | 契約形態 | 普通賃貸借契約 |
| 取引態様 | 媒介 | 内見状況 | 入居中 |
| 入居時期 | 入居中 | SOHO・事務所 | 不可 |
| ペット | 不可 | 間取り内訳 | 洋:7.6 K:3 |
| キャンペーン情報・備考 | 本情報は賃料改定交渉の資料作成、収益物件の利回り試算、周辺エリアや最寄り駅の坪単価分析、次回募集開始時期の予測などにご活用いただけます。 | ||
※「どの不動産に頼めばいいのか分からない」「信頼できる営業マンの話を聞きたい」「一番親切な会社と契約したい」とお悩みの方におすすめなのが「高級賃貸バイブル」です。
高級賃貸バイブルは業界10年以上の熟練スタッフ群がお客様ファーストで対応します。
下記ボタンから、まずは無料でご相談下さい。
※内覧をご希望の際には、どうぞ物件のエントランス前にてお待ち合わせくださいませ。ご内覧後は、同じ場所でお別れとさせていただきます。お客様のご都合に合わせたスムーズなご案内を心がけておりますので、ご質問等がございましたら何なりとお申し付けください。 物件概要
| 物件名 |
| 築年月 |
|
|---|---|---|---|
| 所在地 | |||
| 交通 | |||
| 総戸数 |
| 総階数 |
|
| 構造 |
| ||
地図
物件までの道のりは、「拡大地図を表示」をクリックしてナビ機能をご利用ください。
部屋設備













建物設備

TVモニターホン

エレベーター

オートロック

バイク置場

宅配ボックス

敷地内ゴミ置場

管理人

駐輪場
コンフォリア清澄白河サウスの現在募集中のお部屋
- No rooms found for this property.



















