
| 賃料 | 予想金額:354,000〜374,000円程度 | 管理費 | 予想金額:0〜2,000円程度 |
| 礼金/敷金 | 非公開(アーカイブ) | 平米数 | 99.32㎡ |
| 初期費用概算(参考) | 目安:587,500〜687,500 円 | みなし賃料(月額・参考) | 367,281〜387,281 円 |
| 備考 | 本ページは過去募集のアーカイブです。表示の金額は周辺相場・過去募集を踏まえた参考レンジであり、実際の契約金額・条件ではありません。 | ||
※上記みなし賃料(月額)は仲介手数料割引・無料&キャッシュバックを加味した高級賃貸バイブル限定の金額です。一般的なみなし賃料とは異なります。
【建物ページ】浜松町スクエアStudioの詳細・最新空室はこちら▶▶選ばれる理由
仲介手数料無料・キャンペーン情報(毎月15名様限定)
〇フリーレント1か月キャンペーン
浜松町スクエアStudio 1602の口コミ・レビュー
浜松町スクエアStudio 1602。これが貴方を待ち受ける、夢の舞台です。新たな生活の一歩を踏み出す場所。それは、洗練されたデザインと現代の利便性が織り交ぜられた空間。南向きの窓から差し込む光は、日の出と共に貴方の心を暖かく包み込み、一日の始まりを特別なものに変えてくれます。
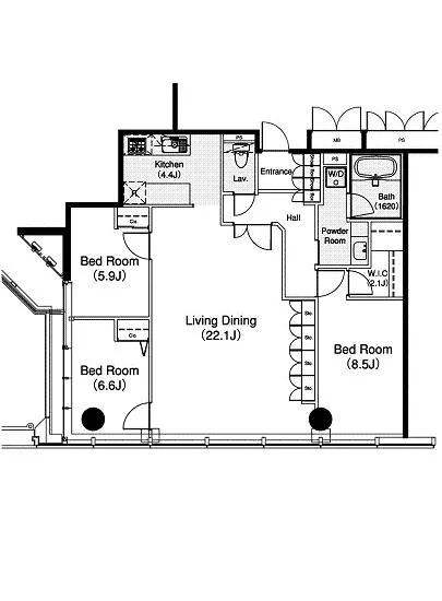
この物件は、99.32㎡という広々とした専有面積を誇り、ゆったりとした時間を過ごせる空間を提供しております。2つの洋室…浜松町スクエアStudio 1602。これが貴方を待ち受ける、夢の舞台です。新たな生活の一歩を踏み出す場所。それは、洗練されたデザインと現代の利便性が織り交ぜられた空間。南向きの窓から差し込む光は、日の出と共に貴方の心を暖かく包み込み、一日の始まりを特別なものに変えてくれます。
この物件は、99.32㎡という広々とした専有面積を誇り、ゆったりとした時間を過ごせる空間を提供しております。2つの洋室(8.5帖、6.6帖、5.9帖)と22.1帖のリビングダイニングキッチン(LDK)からなる間取りは、家族や友人との楽しいひと時を思い描かせます。ふんわりとしたカーテンが風に揺れ、キッチンからは美味しい料理の香りが漂い、まるで映画のワンシーンのように心が躍る瞬間が訪れるのです。
浜松町スクエアStudio 1602のバルコニーからは、都会の喧騒を一望でき、夜には街の灯りが星空のように輝くその景色が、貴方の心を癒すでしょう。耳をすませば、遠くで聞こえる電車の音や、人々の笑い声が、まるで生活の交響曲のように響き渡り、命の息吹を感じる瞬間を演出してくれます。毎日の暮らしは、ただの生活ではなく、アートそのものに感じられるのです。
また、浜松町エリアは文化や歴史が深く根付く場所です。周辺には歴史的な建物が点在し、気軽に散策することで、貴方もその一部となることができます。例えば、近くの浜離宮恩賜庭園では、四季折々の花々が貴方を迎え入れ、古き良き日本の美を感じさせてくれます。そして、定期借家契約であるため、貴方の人生の新たな一章をこの特別な場所で綴ることができるのです。
ひとたび足を踏み入れれば、TVモニターホンやオートロックなどの安心の設備が、貴方の日常を守り、エレベーターでの移動もストレスなく快適に行えます。デザイナーズ空間は、ただの住まい以上の意味を持ち、貴方のライフスタイルを品位あるものとして演出いたします。
浜松町スクエアStudio 1602は、ただの住居ではなく、貴方の人生を彩る舞台。この特別な場所で、心豊かな日々を築いてみませんか。目の前に広がる美しい景色と、心温まる生活の全てが、ここで貴方を待ち続けています。さあ、貴方の新たな物語が始まる瞬間を、浜松町スクエアStudio 1602でお楽しみください。
この物件は、99.32㎡という広々とした専有面積を誇り、ゆったりとした時間を過ごせる空間を提供しております。2つの洋室…浜松町スクエアStudio 1602。これが貴方を待ち受ける、夢の舞台です。新たな生活の一歩を踏み出す場所。それは、洗練されたデザインと現代の利便性が織り交ぜられた空間。南向きの窓から差し込む光は、日の出と共に貴方の心を暖かく包み込み、一日の始まりを特別なものに変えてくれます。
この物件は、99.32㎡という広々とした専有面積を誇り、ゆったりとした時間を過ごせる空間を提供しております。2つの洋室(8.5帖、6.6帖、5.9帖)と22.1帖のリビングダイニングキッチン(LDK)からなる間取りは、家族や友人との楽しいひと時を思い描かせます。ふんわりとしたカーテンが風に揺れ、キッチンからは美味しい料理の香りが漂い、まるで映画のワンシーンのように心が躍る瞬間が訪れるのです。
浜松町スクエアStudio 1602のバルコニーからは、都会の喧騒を一望でき、夜には街の灯りが星空のように輝くその景色が、貴方の心を癒すでしょう。耳をすませば、遠くで聞こえる電車の音や、人々の笑い声が、まるで生活の交響曲のように響き渡り、命の息吹を感じる瞬間を演出してくれます。毎日の暮らしは、ただの生活ではなく、アートそのものに感じられるのです。
また、浜松町エリアは文化や歴史が深く根付く場所です。周辺には歴史的な建物が点在し、気軽に散策することで、貴方もその一部となることができます。例えば、近くの浜離宮恩賜庭園では、四季折々の花々が貴方を迎え入れ、古き良き日本の美を感じさせてくれます。そして、定期借家契約であるため、貴方の人生の新たな一章をこの特別な場所で綴ることができるのです。
ひとたび足を踏み入れれば、TVモニターホンやオートロックなどの安心の設備が、貴方の日常を守り、エレベーターでの移動もストレスなく快適に行えます。デザイナーズ空間は、ただの住まい以上の意味を持ち、貴方のライフスタイルを品位あるものとして演出いたします。
浜松町スクエアStudio 1602は、ただの住居ではなく、貴方の人生を彩る舞台。この特別な場所で、心豊かな日々を築いてみませんか。目の前に広がる美しい景色と、心温まる生活の全てが、ここで貴方を待ち続けています。さあ、貴方の新たな物語が始まる瞬間を、浜松町スクエアStudio 1602でお楽しみください。
バイブルスコア
バイブルスコア: 79.6
かなり条件の良い物件です、即仮押さえをおすすめする物件です!
このお部屋は、現在ご入居中のため空室情報はございません。ただし、将来的に募集が開始される際、バイブルスコアにおいて非常に高い評価が期待されます。特にご興味をお持ちの方は、今のうちにブックマークやお気に入りに登録していただくと、募集開始のお知らせをすぐに受け取ることができます。是非ともご検討くださいませ。
※バイブルスコア詳細はこちら
バイブルスコアとは独自のAI機械学習技術を利用した物件評価システムで、物件のおすすめ度を示します。最高得点は100点で、スコアが高いほど、よりおすすめの物件と評価されています。
写真
契約条件
| 賃料 | 予想金額:354,000〜374,000円程度 | 管理費 | 予想金額:0〜2,000円程度 |
| 礼金 | 非公開(アーカイブ) | 敷金 | 非公開(アーカイブ) |
| フリーレント | 1ヶ月 | 平米数 | 99.32㎡ |
| 間取り | 2LDK | 大型収納 | |
| 契約期間 | 方角 | 南 | |
| 更新料 | 契約形態 | 定期借家契約 | |
| 取引態様 | 媒介 | 内見状況 | 入居中 |
| 入居時期 | 入居中 | SOHO・事務所 | |
| ペット | 間取り内訳 | 洋:8.5 洋:6.6 洋:5.9 LDK:22.1 | |
| キャンペーン情報・備考 | 本情報は賃料改定交渉の資料作成、収益物件の利回り試算、周辺エリアや最寄り駅の坪単価分析、次回募集開始時期の予測などにご活用いただけます。 | ||
※「どの不動産に頼めばいいのか分からない」「信頼できる営業マンの話を聞きたい」「一番親切な会社と契約したい」とお悩みの方におすすめなのが「高級賃貸バイブル」です。
高級賃貸バイブルは業界10年以上の熟練スタッフ群がお客様ファーストで対応します。
下記ボタンから、まずは無料でご相談下さい。
※内覧をご希望の際には、どうぞ物件のエントランス前にてお待ち合わせくださいませ。ご内覧後は、同じ場所でお別れとさせていただきます。お客様のご都合に合わせたスムーズなご案内を心がけておりますので、ご質問等がございましたら何なりとお申し付けください。 物件概要
| 物件名 |
| 築年月 |
|
|---|---|---|---|
| 所在地 | |||
| 交通 | |||
| 総戸数 |
| 総階数 |
|
| 構造 |
| ||
地図
物件までの道のりは、「拡大地図を表示」をクリックしてナビ機能をご利用ください。
部屋設備
















建物設備

TVモニターホン

エレベーター

オートロック

ラウンジ

宅配ボックス

敷地内ゴミ置場

駐車場機械式

駐輪場
浜松町スクエアStudioの現在募集中のお部屋
- 浜松町スクエアstudio 2003 - 間取り: 3LDK+WIC - 賃料: 63万円
- 浜松町スクエアstudio 2001 - 間取り: 2LDK+WIC - 賃料: 60万円
- 浜松町スクエアstudio 1904 - 間取り: 3LDK+WIC - 賃料: 72万円



























