
| 賃料 | 予想金額:328,000〜348,000円程度 | 管理費 | 予想金額:13,000〜17,000円程度 |
| 礼金/敷金 | 非公開(アーカイブ) | 平米数 | 64.82㎡ |
| 初期費用概算(参考) | 目安:1,117,640〜1,217,640 円 | みなし賃料(月額・参考) | 360,284〜380,284 円 |
| 備考 | 本ページは過去募集のアーカイブです。表示の金額は周辺相場・過去募集を踏まえた参考レンジであり、実際の契約金額・条件ではありません。 | ||
※上記みなし賃料(月額)は仲介手数料割引・無料&キャッシュバックを加味した高級賃貸バイブル限定の金額です。一般的なみなし賃料とは異なります。
【建物ページ】ブリリア代官山プレステージの詳細・最新空室はこちら▶▶選ばれる理由
仲介手数料無料・キャンペーン情報(毎月15名様限定)
〇引っ越しお祝い金74360円プレゼント(キャッシュバック)
〇仲介手数料無料キャンペーン
ブリリア代官山プレステージ 220の口コミ・レビュー
ブリリア代官山プレステージ 220、これはただの住まいではなく、心のゆとりと文化の香りに満ちた特別な空間です。東京都渋谷区恵比寿西2-20-7に位置するこの物件は、代官山駅からわずか徒歩2分という贅沢な立地にあり、日々の喧騒を忘れさせてくれます。まるで、あなたを静かに包み込むように、街と自然が共鳴する素晴らしいロケーションです。
このブリリア代官山プレステージ 220の中に一歩足を踏み入れると、…ブリリア代官山プレステージ 220、これはただの住まいではなく、心のゆとりと文化の香りに満ちた特別な空間です。東京都渋谷区恵比寿西2-20-7に位置するこの物件は、代官山駅からわずか徒歩2分という贅沢な立地にあり、日々の喧騒を忘れさせてくれます。まるで、あなたを静かに包み込むように、街と自然が共鳴する素晴らしいロケーションです。
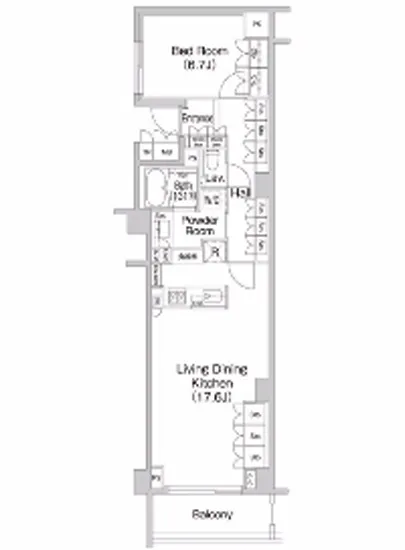
このブリリア代官山プレステージ 220の中に一歩足を踏み入れると、洗練されたデザインと機能性が絶妙に融合した空間が広がります。専有面積64.82㎡、1LDKの間取りは、洋室6.7帖とLDK17.6帖から成り立ち、光が差し込む窓辺では、まるで絵画の中にいるかのような美しい風景が広がります。朝日が昇る頃、カーテンの隙間から差し込む柔らかな光は、あなたの一日を優雅に彩ることでしょう。
ブリリア代官山プレステージ 220では、心地よい音楽が流れるラウンジでのひとときや、フィットネスルームで心拍数をあげる瞬間、フロントサービスによる温かいおもてなしを感じることができます。生活の中で触れるすべてが、まるで舞台の一幕のようにあなたを包み込みます。エレベーターでの優雅な移動、オートロックによる安心感、そして宅配ボックスから受け取る大切な贈り物、これらは日常生活の中での特別な体験に変わります。
この物件の周辺は、歴史と文化が息づく場所でもあります。代官山の街並みは、古き良きものと新しい感覚が交差する美しい光景を形成しています。おしゃれなカフェやブティックが立ち並ぶ道を歩けば、ふと寄り道したくなるような心弾む発見がいっぱいです。その中で、ブリリア代官山プレステージ 220は、まるで特別な宝石のように輝いています。
想像してみてください。夕暮れ時、LDKでおいしい料理を楽しみながら、外から聞こえる街の音や人々の笑い声に耳を傾ける。美味しい赤ワインの香りが漂い、心地よい空間で過ごすひととき。そんな日常が、あなたの手の中に広がります。ブリリア代官山プレステージ 220は、ただの居住空間ではなく、心の栄養になる場所なのです。
新しい生活が始まるその日、あなたの目の前には、無限の可能性が広がっています。ブリリア代官山プレステージ 220での生活は、まるで映画のワンシーンのように、美しい瞬間の積み重ねが日常となるでしょう。ここでの生活は、あなたに心の贅沢を与え、特別な記憶を紡いでいくことでしょう。さあ、新たな物語をブリリア代官山プレステージ 220で始めてみませんか?あなたを待つのは、素晴らしい日々と、心豊かな暮らしです。
このブリリア代官山プレステージ 220の中に一歩足を踏み入れると、…ブリリア代官山プレステージ 220、これはただの住まいではなく、心のゆとりと文化の香りに満ちた特別な空間です。東京都渋谷区恵比寿西2-20-7に位置するこの物件は、代官山駅からわずか徒歩2分という贅沢な立地にあり、日々の喧騒を忘れさせてくれます。まるで、あなたを静かに包み込むように、街と自然が共鳴する素晴らしいロケーションです。
このブリリア代官山プレステージ 220の中に一歩足を踏み入れると、洗練されたデザインと機能性が絶妙に融合した空間が広がります。専有面積64.82㎡、1LDKの間取りは、洋室6.7帖とLDK17.6帖から成り立ち、光が差し込む窓辺では、まるで絵画の中にいるかのような美しい風景が広がります。朝日が昇る頃、カーテンの隙間から差し込む柔らかな光は、あなたの一日を優雅に彩ることでしょう。
ブリリア代官山プレステージ 220では、心地よい音楽が流れるラウンジでのひとときや、フィットネスルームで心拍数をあげる瞬間、フロントサービスによる温かいおもてなしを感じることができます。生活の中で触れるすべてが、まるで舞台の一幕のようにあなたを包み込みます。エレベーターでの優雅な移動、オートロックによる安心感、そして宅配ボックスから受け取る大切な贈り物、これらは日常生活の中での特別な体験に変わります。
この物件の周辺は、歴史と文化が息づく場所でもあります。代官山の街並みは、古き良きものと新しい感覚が交差する美しい光景を形成しています。おしゃれなカフェやブティックが立ち並ぶ道を歩けば、ふと寄り道したくなるような心弾む発見がいっぱいです。その中で、ブリリア代官山プレステージ 220は、まるで特別な宝石のように輝いています。
想像してみてください。夕暮れ時、LDKでおいしい料理を楽しみながら、外から聞こえる街の音や人々の笑い声に耳を傾ける。美味しい赤ワインの香りが漂い、心地よい空間で過ごすひととき。そんな日常が、あなたの手の中に広がります。ブリリア代官山プレステージ 220は、ただの居住空間ではなく、心の栄養になる場所なのです。
新しい生活が始まるその日、あなたの目の前には、無限の可能性が広がっています。ブリリア代官山プレステージ 220での生活は、まるで映画のワンシーンのように、美しい瞬間の積み重ねが日常となるでしょう。ここでの生活は、あなたに心の贅沢を与え、特別な記憶を紡いでいくことでしょう。さあ、新たな物語をブリリア代官山プレステージ 220で始めてみませんか?あなたを待つのは、素晴らしい日々と、心豊かな暮らしです。
バイブルスコア
バイブルスコア: 28.5
平均的なスコアです。
※バイブルスコア詳細はこちら
バイブルスコアとは独自のAI機械学習技術を利用した物件評価システムで、物件のおすすめ度を示します。最高得点は100点で、スコアが高いほど、よりおすすめの物件と評価されています。
写真
契約条件
| 賃料 | 予想金額:328,000〜348,000円程度 | 管理費 | 予想金額:13,000〜17,000円程度 |
| 礼金 | 非公開(アーカイブ) | 敷金 | 非公開(アーカイブ) |
| フリーレント | なし | 平米数 | 64.82㎡ |
| 間取り | 1LDK | 大型収納 | |
| 契約期間 |
| 方角 | |
| 更新料 | 契約形態 | 普通賃貸借契約 | |
| 取引態様 | 媒介 | 内見状況 | 入居中 |
| 入居時期 | 入居中 | SOHO・事務所 | |
| ペット | 間取り内訳 | 洋:6.7 LDK:17.6 | |
| キャンペーン情報・備考 | 本情報は賃料改定交渉の資料作成、収益物件の利回り試算、周辺エリアや最寄り駅の坪単価分析、次回募集開始時期の予測などにご活用いただけます。 | ||
※「どの不動産に頼めばいいのか分からない」「信頼できる営業マンの話を聞きたい」「一番親切な会社と契約したい」とお悩みの方におすすめなのが「高級賃貸バイブル」です。
高級賃貸バイブルは業界10年以上の熟練スタッフ群がお客様ファーストで対応します。
下記ボタンから、まずは無料でご相談下さい。
※内覧をご希望の際には、どうぞ物件のエントランス前にてお待ち合わせくださいませ。ご内覧後は、同じ場所でお別れとさせていただきます。お客様のご都合に合わせたスムーズなご案内を心がけておりますので、ご質問等がございましたら何なりとお申し付けください。 物件概要
| 物件名 |
| 築年月 |
|
|---|---|---|---|
| 所在地 | |||
| 交通 | |||
| 総戸数 |
| 総階数 |
|
| 構造 |
| ||
地図
物件までの道のりは、「拡大地図を表示」をクリックしてナビ機能をご利用ください。
部屋設備
















建物設備

24時間管理

TVモニターホン

エレベーター

オートロック

フィットネス

フロントサービス

ラウンジ

宅配ボックス

敷地内ゴミ置場

管理人

駐車場平置き

駐車場機械式

駐輪場
ブリリア代官山プレステージの現在募集中のお部屋
- Brillia代官山プレステージ 2階 33.09㎡ - 間取り: 1R - 賃料: 19.9万円









