
| 賃料 | 予想金額:207,000〜227,000円程度 | 管理費 | 予想金額:8,000〜12,000円程度 |
| 礼金/敷金 | 非公開(アーカイブ) | 平米数 | 53㎡ |
| 初期費用概算(参考) | 目安:701,100〜801,100 円 | みなし賃料(月額・参考) | 228,127〜248,127 円 |
| 備考 | 本ページは過去募集のアーカイブです。表示の金額は周辺相場・過去募集を踏まえた参考レンジであり、実際の契約金額・条件ではありません。 | ||
※上記みなし賃料(月額)は仲介手数料割引・無料&キャッシュバックを加味した高級賃貸バイブル限定の金額です。一般的なみなし賃料とは異なります。
【建物ページ】ラクラス目白の詳細・最新空室はこちら▶▶選ばれる理由
仲介手数料無料・キャンペーン情報(毎月15名様限定)
〇引っ越しお祝い金43400円プレゼント(キャッシュバック)
〇仲介手数料無料キャンペーン
ラクラス目白 201の口コミ・レビュー
ラクラス目白 201。この名前を聞いた瞬間、あなたの心には何か特別な期待が芽生えることでしょう。新宿区下落合3-12-23に佇むこの高級賃貸物件は、まるで一つの芸術作品のように、あなたの生活を豊かに彩る存在です。南向きの窓からは、温かな陽の光が柔らかく注ぎ込み、心地よいそよ風とともに、日々のストレスを優しく包み込んでくれます。
この空間は、あなたの物語の舞台として、その存在感を放っています。53…ラクラス目白 201。この名前を聞いた瞬間、あなたの心には何か特別な期待が芽生えることでしょう。新宿区下落合3-12-23に佇むこの高級賃貸物件は、まるで一つの芸術作品のように、あなたの生活を豊かに彩る存在です。南向きの窓からは、温かな陽の光が柔らかく注ぎ込み、心地よいそよ風とともに、日々のストレスを優しく包み込んでくれます。
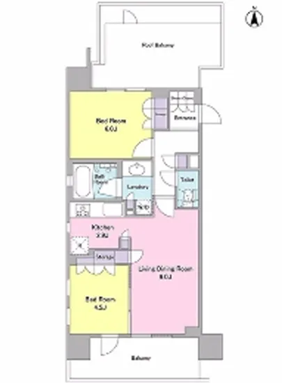
この空間は、あなたの物語の舞台として、その存在感を放っています。53㎡の広さは、一人ひとりの心の余裕を大切にし、2LDKの間取りはまるで、感情の波を揺らす楽器のように、あなたの生活を心豊かに奏でます。LD:9帖のリビングは、家族や友人とともに笑顔を交わすのにぴったりなスペース。ここでのひとときは、まるで映画のワンシーンのように、心に刻まれることでしょう。
さらに、洋室6帖と洋室4.5帖は、それぞれがあなたの憩いの場となり、静寂を求める時や、目を閉じて新しい夢に思いを馳せる時に最適です。K:2.9帖のキッチンでは、香ばしい料理の匂いが漂い、家族の団らんの中心となることでしょう。おいしい香りが食欲をそそり、心を豊かにする料理が、あなたの手で生み出される瞬間。あなたの喜びが、この空間から生まれ出るのです。
ラクラス目白 201は、ただの住まいではありません。出入口にはオートロックが施され、安心感を兼ね備えた生活を実現します。宅配ボックスや駐輪場、バイク置場も完備されており、便利さも兼ね備えています。また、エレベーターがあなたを優雅に運ぶ様は、まるで舞踏会に向かう貴族のよう。毎日のちょっとした移動が特別な体験に変わります。
周辺には、歴史と文化が息づいています。目白駅からの道を歩きながら、近隣の美術館や公園を訪れることができ、心を豊かに育む時間があなたを待っています。心の師匠である芸術家たちが築いた街並みに触れることで、あなた自身の感性も磨かれていくことでしょう。
さらに、街が奏でる音は、日々の疲れを癒してくれます。風に揺れる木々のざわめきや、遠くから聞こえる子供たちの笑い声が、まるで心地よい音楽のように響くことでしょう。そして、夕暮れ時には、目の前の景色が美しいオレンジ色に染まり、あなたの心の中に新たな感情の波を呼び起こします。
ラクラス目白 201は、あなたにとっての新たな居場所となり、ゆったりと流れる時の中で、心豊かな生活をお約束します。この空間でのひとときが、まるで夢のような、特別な日常へと誘ってくれることでしょう。あなたがこの場所に住むことで、素晴らしい物語が始まるのです。
この空間は、あなたの物語の舞台として、その存在感を放っています。53…ラクラス目白 201。この名前を聞いた瞬間、あなたの心には何か特別な期待が芽生えることでしょう。新宿区下落合3-12-23に佇むこの高級賃貸物件は、まるで一つの芸術作品のように、あなたの生活を豊かに彩る存在です。南向きの窓からは、温かな陽の光が柔らかく注ぎ込み、心地よいそよ風とともに、日々のストレスを優しく包み込んでくれます。
この空間は、あなたの物語の舞台として、その存在感を放っています。53㎡の広さは、一人ひとりの心の余裕を大切にし、2LDKの間取りはまるで、感情の波を揺らす楽器のように、あなたの生活を心豊かに奏でます。LD:9帖のリビングは、家族や友人とともに笑顔を交わすのにぴったりなスペース。ここでのひとときは、まるで映画のワンシーンのように、心に刻まれることでしょう。
さらに、洋室6帖と洋室4.5帖は、それぞれがあなたの憩いの場となり、静寂を求める時や、目を閉じて新しい夢に思いを馳せる時に最適です。K:2.9帖のキッチンでは、香ばしい料理の匂いが漂い、家族の団らんの中心となることでしょう。おいしい香りが食欲をそそり、心を豊かにする料理が、あなたの手で生み出される瞬間。あなたの喜びが、この空間から生まれ出るのです。
ラクラス目白 201は、ただの住まいではありません。出入口にはオートロックが施され、安心感を兼ね備えた生活を実現します。宅配ボックスや駐輪場、バイク置場も完備されており、便利さも兼ね備えています。また、エレベーターがあなたを優雅に運ぶ様は、まるで舞踏会に向かう貴族のよう。毎日のちょっとした移動が特別な体験に変わります。
周辺には、歴史と文化が息づいています。目白駅からの道を歩きながら、近隣の美術館や公園を訪れることができ、心を豊かに育む時間があなたを待っています。心の師匠である芸術家たちが築いた街並みに触れることで、あなた自身の感性も磨かれていくことでしょう。
さらに、街が奏でる音は、日々の疲れを癒してくれます。風に揺れる木々のざわめきや、遠くから聞こえる子供たちの笑い声が、まるで心地よい音楽のように響くことでしょう。そして、夕暮れ時には、目の前の景色が美しいオレンジ色に染まり、あなたの心の中に新たな感情の波を呼び起こします。
ラクラス目白 201は、あなたにとっての新たな居場所となり、ゆったりと流れる時の中で、心豊かな生活をお約束します。この空間でのひとときが、まるで夢のような、特別な日常へと誘ってくれることでしょう。あなたがこの場所に住むことで、素晴らしい物語が始まるのです。
バイブルスコア
バイブルスコア: 92.4
レア物件です、すぐ仮押さえしましょう!
このお部屋は、現在ご入居中のため空室情報はございません。ただし、将来的に募集が開始される際、バイブルスコアにおいて非常に高い評価が期待されます。特にご興味をお持ちの方は、今のうちにブックマークやお気に入りに登録していただくと、募集開始のお知らせをすぐに受け取ることができます。是非ともご検討くださいませ。
※バイブルスコア詳細はこちら
バイブルスコアとは独自のAI機械学習技術を利用した物件評価システムで、物件のおすすめ度を示します。最高得点は100点で、スコアが高いほど、よりおすすめの物件と評価されています。
写真
契約条件
| 賃料 | 予想金額:207,000〜227,000円程度 | 管理費 | 予想金額:8,000〜12,000円程度 |
| 礼金 | 非公開(アーカイブ) | 敷金 | 非公開(アーカイブ) |
| フリーレント | なし | 平米数 | 53㎡ |
| 間取り | 2LDK | 大型収納 | |
| 契約期間 | 2年 | 方角 | 南 |
| 更新料 | 1ヶ月 | 契約形態 | 普通賃貸借契約 |
| 取引態様 | 媒介 | 内見状況 | 入居中 |
| 入居時期 | 入居中 | SOHO・事務所 | |
| ペット | 間取り内訳 | 洋:6 洋:4.5 LD:9 K:2.9 | |
| キャンペーン情報・備考 | 本情報は賃料改定交渉の資料作成、収益物件の利回り試算、周辺エリアや最寄り駅の坪単価分析、次回募集開始時期の予測などにご活用いただけます。 | ||
※「どの不動産に頼めばいいのか分からない」「信頼できる営業マンの話を聞きたい」「一番親切な会社と契約したい」とお悩みの方におすすめなのが「高級賃貸バイブル」です。
高級賃貸バイブルは業界10年以上の熟練スタッフ群がお客様ファーストで対応します。
下記ボタンから、まずは無料でご相談下さい。
※内覧をご希望の際には、どうぞ物件のエントランス前にてお待ち合わせくださいませ。ご内覧後は、同じ場所でお別れとさせていただきます。お客様のご都合に合わせたスムーズなご案内を心がけておりますので、ご質問等がございましたら何なりとお申し付けください。 物件概要
地図
物件までの道のりは、「拡大地図を表示」をクリックしてナビ機能をご利用ください。
部屋設備
建物設備

TVモニターホン

エレベーター

オートロック

バイク置場

宅配ボックス

敷地内ゴミ置場

管理人

駐輪場
ラクラス目白の現在募集中のお部屋
- No rooms found for this property.
















