
| 賃料 | 予想金額:86,000〜106,000円程度 | 管理費 | 予想金額:6,000〜10,000円程度 |
| 礼金/敷金 | 非公開(アーカイブ) | 平米数 | 20.79㎡ |
| 初期費用概算(参考) | 目安:217,380〜317,380 円 | みなし賃料(月額・参考) | 97,570〜117,570 円 |
| 備考 | 本ページは過去募集のアーカイブです。表示の金額は周辺相場・過去募集を踏まえた参考レンジであり、実際の契約金額・条件ではありません。 | ||
※上記みなし賃料(月額)は仲介手数料割引・無料&キャッシュバックを加味した高級賃貸バイブル限定の金額です。一般的なみなし賃料とは異なります。
【建物ページ】ログ武蔵小山の詳細・最新空室はこちら▶▶選ばれる理由
仲介手数料無料・キャンペーン情報(毎月15名様限定)
〇引っ越しお祝い金21120円プレゼント(キャッシュバック)
〇仲介手数料無料キャンペーン
ログ武蔵小山 603の口コミ・レビュー
ログ武蔵小山 603—この名が響くとき、あなたは新たな物語の幕開けを迎えることになります。この高級賃貸物件は、まるで隠れ家のような存在感を持ちながらも、洗練された美しさと使いやすさを兼ね備えています。603という部屋番号は、訪れる人々に心地よい安らぎをもたらすことでしょう。
東京都品川区小山3-12-18に位置するログ武蔵小山 603は、北西の空へ向かって広がる貴族の空間。周辺には、古き良き日本…ログ武蔵小山 603—この名が響くとき、あなたは新たな物語の幕開けを迎えることになります。この高級賃貸物件は、まるで隠れ家のような存在感を持ちながらも、洗練された美しさと使いやすさを兼ね備えています。603という部屋番号は、訪れる人々に心地よい安らぎをもたらすことでしょう。
東京都品川区小山3-12-18に位置するログ武蔵小山 603は、北西の空へ向かって広がる貴族の空間。周辺には、古き良き日本の風情を残しつつも、近代的な文化と調和した街並みが広がり、あなたの生活はまるで映画のワンシーンのような美しい瞬間の連続となることでしょう。東京急行電鉄東急目黒線の武蔵小山駅まではわずか徒歩3分という絶好の立地にあり、都会の喧騒から少し離れた静かな環境も手に入れることができるのです。
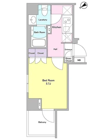
入室する瞬間、扉を開けた先には、まるで優しい光が呼び寄せるように広がる20.79㎡の空間が待っています。柔らかな日差しが差し込み、心地よい風がさわやかに包み込むその瞬間、あなたはまるで大自然の中にいるかのような至福を感じることでしょう。この空間は、あなたの夢を育むキャンバスです。5.7帖の寝室は、まるで小さな楽園のようで、静寂に身を委ねれば、心も身体もリフレッシュされるはずです。
ログ武蔵小山 603の心臓部には、最新の設備が整っています。TVモニターホンで安心感を添え、エレベーターやオートロックで利便性を、宅配ボックスや敷地内ゴミ置場で日常生活の小さなストレスを軽減します。これらの設備は、あなたの生活を優雅に流れる川のようにスムーズにしてくれるでしょう。そして、管理人の温かなサービスが、まるで長年の友人のようにあなたを見守ります。
さらに、駐輪場も完備されているため、アクティブな生活を送りたい方にもおすすめです。自転車で街を巡るときの風のささやき、周囲の木々の香り、そして美しい景色。すべてがあなたの感覚を刺激し、日々の生活に彩りを添えます。
歴史を紡ぐこの地で、あなたも新たな物語の一部となりませんか。ログ武蔵小山 603は、ただの住まいではなく、あなたの生活を豊かに彩る舞台なのです。高級感あふれる空間で、心の安らぎを見つけ、心躍る瞬間を刻んでください。ここには、あなたが夢見る理想の生活が待っています。
東京都品川区小山3-12-18に位置するログ武蔵小山 603は、北西の空へ向かって広がる貴族の空間。周辺には、古き良き日本…ログ武蔵小山 603—この名が響くとき、あなたは新たな物語の幕開けを迎えることになります。この高級賃貸物件は、まるで隠れ家のような存在感を持ちながらも、洗練された美しさと使いやすさを兼ね備えています。603という部屋番号は、訪れる人々に心地よい安らぎをもたらすことでしょう。
東京都品川区小山3-12-18に位置するログ武蔵小山 603は、北西の空へ向かって広がる貴族の空間。周辺には、古き良き日本の風情を残しつつも、近代的な文化と調和した街並みが広がり、あなたの生活はまるで映画のワンシーンのような美しい瞬間の連続となることでしょう。東京急行電鉄東急目黒線の武蔵小山駅まではわずか徒歩3分という絶好の立地にあり、都会の喧騒から少し離れた静かな環境も手に入れることができるのです。
入室する瞬間、扉を開けた先には、まるで優しい光が呼び寄せるように広がる20.79㎡の空間が待っています。柔らかな日差しが差し込み、心地よい風がさわやかに包み込むその瞬間、あなたはまるで大自然の中にいるかのような至福を感じることでしょう。この空間は、あなたの夢を育むキャンバスです。5.7帖の寝室は、まるで小さな楽園のようで、静寂に身を委ねれば、心も身体もリフレッシュされるはずです。
ログ武蔵小山 603の心臓部には、最新の設備が整っています。TVモニターホンで安心感を添え、エレベーターやオートロックで利便性を、宅配ボックスや敷地内ゴミ置場で日常生活の小さなストレスを軽減します。これらの設備は、あなたの生活を優雅に流れる川のようにスムーズにしてくれるでしょう。そして、管理人の温かなサービスが、まるで長年の友人のようにあなたを見守ります。
さらに、駐輪場も完備されているため、アクティブな生活を送りたい方にもおすすめです。自転車で街を巡るときの風のささやき、周囲の木々の香り、そして美しい景色。すべてがあなたの感覚を刺激し、日々の生活に彩りを添えます。
歴史を紡ぐこの地で、あなたも新たな物語の一部となりませんか。ログ武蔵小山 603は、ただの住まいではなく、あなたの生活を豊かに彩る舞台なのです。高級感あふれる空間で、心の安らぎを見つけ、心躍る瞬間を刻んでください。ここには、あなたが夢見る理想の生活が待っています。
バイブルスコア
バイブルスコア: 25.0
平均的なスコアです。
※バイブルスコア詳細はこちら
バイブルスコアとは独自のAI機械学習技術を利用した物件評価システムで、物件のおすすめ度を示します。最高得点は100点で、スコアが高いほど、よりおすすめの物件と評価されています。
写真
現在写真が登録されていません契約条件
| 賃料 | 予想金額:86,000〜106,000円程度 | 管理費 | 予想金額:6,000〜10,000円程度 |
| 礼金 | 非公開(アーカイブ) | 敷金 | 非公開(アーカイブ) |
| フリーレント | なし | 平米数 | 20.79㎡ |
| 間取り | 1K | 大型収納 | |
| 契約期間 |
| 方角 | 北西 |
| 更新料 | 契約形態 | 普通賃貸借契約 | |
| 取引態様 | 媒介 | 内見状況 | 入居中 |
| 入居時期 | 入居中 | SOHO・事務所 | |
| ペット | 間取り内訳 | BR=5.7J | |
| キャンペーン情報・備考 | 本情報は賃料改定交渉の資料作成、収益物件の利回り試算、周辺エリアや最寄り駅の坪単価分析、次回募集開始時期の予測などにご活用いただけます。 | ||
※「どの不動産に頼めばいいのか分からない」「信頼できる営業マンの話を聞きたい」「一番親切な会社と契約したい」とお悩みの方におすすめなのが「高級賃貸バイブル」です。
高級賃貸バイブルは業界10年以上の熟練スタッフ群がお客様ファーストで対応します。
下記ボタンから、まずは無料でご相談下さい。
※内覧をご希望の際には、どうぞ物件のエントランス前にてお待ち合わせくださいませ。ご内覧後は、同じ場所でお別れとさせていただきます。お客様のご都合に合わせたスムーズなご案内を心がけておりますので、ご質問等がございましたら何なりとお申し付けください。 物件概要
| 物件名 |
| 築年月 |
|
|---|---|---|---|
| 所在地 | |||
| 交通 | |||
| 総戸数 |
| 総階数 |
|
| 構造 |
| ||
地図
物件までの道のりは、「拡大地図を表示」をクリックしてナビ機能をご利用ください。
部屋設備














建物設備

TVモニターホン

エレベーター

オートロック

宅配ボックス

敷地内ゴミ置場

管理人

駐輪場
ログ武蔵小山の現在募集中のお部屋
- No rooms found for this property.
