
| 賃料 | 予想金額:94,000〜114,000円程度 | 管理費 | 予想金額:8,000〜12,000円程度 |
| 礼金/敷金 | 非公開(アーカイブ) | 平米数 | 25.6㎡ |
| 初期費用概算(参考) | 目安:213,600〜313,600 円 | みなし賃料(月額・参考) | 107,325〜127,325 円 |
| 備考 | 本ページは過去募集のアーカイブです。表示の金額は周辺相場・過去募集を踏まえた参考レンジであり、実際の契約金額・条件ではありません。 | ||
※上記みなし賃料(月額)は仲介手数料割引・無料&キャッシュバックを加味した高級賃貸バイブル限定の金額です。一般的なみなし賃料とは異なります。
【建物ページ】ルフォンプログレ赤羽の詳細・最新空室はこちら▶▶選ばれる理由
仲介手数料無料・キャンペーン情報(毎月15名様限定)
〇仲介手数料無料キャンペーン
ルフォンプログレ赤羽 505の口コミ・レビュー
ルフォンプログレ赤羽 505。あなたの新しい生活の舞台がここにあります。静謐な営みを望むあなたにふさわしい、さりげなくも洗練された存在感を放つこの物件は、暖かな西日が優しく差し込む空間を提供します。この505号室は、ただの住まい以上のもの。まるで優れた俳優が舞台に立つかのように、ここでの生活は特別な演出をもっています。
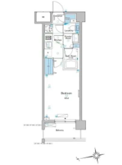
25.6㎡の広さに奏でられるのは、柔らかな洋室8帖と、繊細なキッチン1.9帖…ルフォンプログレ赤羽 505。あなたの新しい生活の舞台がここにあります。静謐な営みを望むあなたにふさわしい、さりげなくも洗練された存在感を放つこの物件は、暖かな西日が優しく差し込む空間を提供します。この505号室は、ただの住まい以上のもの。まるで優れた俳優が舞台に立つかのように、ここでの生活は特別な演出をもっています。
25.6㎡の広さに奏でられるのは、柔らかな洋室8帖と、繊細なキッチン1.9帖という絶妙なコンビネーション。あなたの想像力をかきたてるこの場所では、朝日を浴びながら淹れたコーヒーの香りが、目覚めの瞬間をより特別に演出します。キッチンの向こうには、小さな窓からそよぐ風が、季節の移ろいを教えてくれることでしょう。料理というアートが、あなたの指先から始まります。
この部屋の心地よさは、オートロックシステムやTVモニターホンによってさらに強化されています。訪れる客も、数秒前から映し出される顔を見つめることで、少しだけ期待感が高まります。敷地内のゴミ置場は、ちょっとした美しさを大切に維持され、清々しい空気に包まれています。管理人さんの笑顔も、安心感の一部です。
ルフォンプログレ赤羽 505は、あなたが穏やかに過ごすためのすべてを備えています。エレベーターで軽やかに上がることができ、駐輪場も完備。忙しい毎日に少しだけ余裕をもたらし、あなたの暮らしに彩りを添えることができます。生活の足音が、低層の静けさの中に響き、まるで映画のワンシーンのように、心に残る瞬間を日々描き出してくれるのです。
この物件の魅力は、周囲の文化や歴史とも深く結びついています。赤羽駅から徒歩わずか6分という立地は、賑わいを持ちながらも、どこか落ち着いた雰囲気を漂わせています。この地には、古き良き日本の風情が息づいており、美味しいお店やアートギャラリーが点在しています。夜には、友人との集まりが楽しめる居心地の良い居酒屋やカフェが、あなたの心を満たしてくれることでしょう。
ルフォンプログレ赤羽 505は、ただの物件ではありません。あなた自身のストーリーを紡ぐための舞台。日常を特別に変える力をもったこの空間で、あなたの五感すべてが満たされる瞬間を、一緒に創造しませんか。心地よい生活が待っています。
25.6㎡の広さに奏でられるのは、柔らかな洋室8帖と、繊細なキッチン1.9帖…ルフォンプログレ赤羽 505。あなたの新しい生活の舞台がここにあります。静謐な営みを望むあなたにふさわしい、さりげなくも洗練された存在感を放つこの物件は、暖かな西日が優しく差し込む空間を提供します。この505号室は、ただの住まい以上のもの。まるで優れた俳優が舞台に立つかのように、ここでの生活は特別な演出をもっています。
25.6㎡の広さに奏でられるのは、柔らかな洋室8帖と、繊細なキッチン1.9帖という絶妙なコンビネーション。あなたの想像力をかきたてるこの場所では、朝日を浴びながら淹れたコーヒーの香りが、目覚めの瞬間をより特別に演出します。キッチンの向こうには、小さな窓からそよぐ風が、季節の移ろいを教えてくれることでしょう。料理というアートが、あなたの指先から始まります。
この部屋の心地よさは、オートロックシステムやTVモニターホンによってさらに強化されています。訪れる客も、数秒前から映し出される顔を見つめることで、少しだけ期待感が高まります。敷地内のゴミ置場は、ちょっとした美しさを大切に維持され、清々しい空気に包まれています。管理人さんの笑顔も、安心感の一部です。
ルフォンプログレ赤羽 505は、あなたが穏やかに過ごすためのすべてを備えています。エレベーターで軽やかに上がることができ、駐輪場も完備。忙しい毎日に少しだけ余裕をもたらし、あなたの暮らしに彩りを添えることができます。生活の足音が、低層の静けさの中に響き、まるで映画のワンシーンのように、心に残る瞬間を日々描き出してくれるのです。
この物件の魅力は、周囲の文化や歴史とも深く結びついています。赤羽駅から徒歩わずか6分という立地は、賑わいを持ちながらも、どこか落ち着いた雰囲気を漂わせています。この地には、古き良き日本の風情が息づいており、美味しいお店やアートギャラリーが点在しています。夜には、友人との集まりが楽しめる居心地の良い居酒屋やカフェが、あなたの心を満たしてくれることでしょう。
ルフォンプログレ赤羽 505は、ただの物件ではありません。あなた自身のストーリーを紡ぐための舞台。日常を特別に変える力をもったこの空間で、あなたの五感すべてが満たされる瞬間を、一緒に創造しませんか。心地よい生活が待っています。
写真
現在写真が登録されていません契約条件
| 賃料 | 予想金額:94,000〜114,000円程度 | 管理費 | 予想金額:8,000〜12,000円程度 |
| 礼金 | 非公開(アーカイブ) | 敷金 | 非公開(アーカイブ) |
| フリーレント | なし | 平米数 | 25.6㎡ |
| 間取り | 1K | 大型収納 | |
| 契約期間 |
| 方角 | 西 |
| 更新料 | 契約形態 | 普通賃貸借契約 | |
| 取引態様 | 媒介 | 内見状況 | 入居中 |
| 入居時期 | 入居中 | SOHO・事務所 | |
| ペット | ペット可 | 間取り内訳 | 洋:8 K:1.9 |
| キャンペーン情報・備考 | 本情報は賃料改定交渉の資料作成、収益物件の利回り試算、周辺エリアや最寄り駅の坪単価分析、次回募集開始時期の予測などにご活用いただけます。 | ||
※「どの不動産に頼めばいいのか分からない」「信頼できる営業マンの話を聞きたい」「一番親切な会社と契約したい」とお悩みの方におすすめなのが「高級賃貸バイブル」です。
高級賃貸バイブルは業界10年以上の熟練スタッフ群がお客様ファーストで対応します。
下記ボタンから、まずは無料でご相談下さい。
※内覧をご希望の際には、どうぞ物件のエントランス前にてお待ち合わせくださいませ。ご内覧後は、同じ場所でお別れとさせていただきます。お客様のご都合に合わせたスムーズなご案内を心がけておりますので、ご質問等がございましたら何なりとお申し付けください。 物件概要
| 物件名 |
| 築年月 |
|
|---|---|---|---|
| 所在地 | |||
| 交通 | |||
| 総戸数 |
| 総階数 |
|
| 構造 |
| ||
地図
物件までの道のりは、「拡大地図を表示」をクリックしてナビ機能をご利用ください。
部屋設備













建物設備

TVモニターホン

エレベーター

オートロック

宅配ボックス

敷地内ゴミ置場

管理人

駐輪場
ルフォンプログレ赤羽の現在募集中のお部屋
- No rooms found for this property.
