
| 賃料 | 予想金額:143,000〜163,000円程度 | 管理費 | 予想金額:10,000〜14,000円程度 |
| 礼金/敷金 | 非公開(アーカイブ) | 平米数 | 43.59㎡ |
| 初期費用概算(参考) | 目安:47,340〜147,340 円 | みなし賃料(月額・参考) | 157,028〜177,028 円 |
| 備考 | 本ページは過去募集のアーカイブです。表示の金額は周辺相場・過去募集を踏まえた参考レンジであり、実際の契約金額・条件ではありません。 | ||
※上記みなし賃料(月額)は仲介手数料割引・無料&キャッシュバックを加味した高級賃貸バイブル限定の金額です。一般的なみなし賃料とは異なります。
【建物ページ】サウンドおしあげの詳細・最新空室はこちら▶▶選ばれる理由
仲介手数料無料・キャンペーン情報(毎月15名様限定)
〇引っ越しお祝い金186660円プレゼント(キャッシュバック)
〇フリーレント1か月キャンペーン
〇仲介手数料無料キャンペーン
サウンドおしあげ 1204の口コミ・レビュー
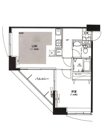
サウンドおしあげ 1204、あなたの新たな物語の舞台がここに用意されています。墨田区押上、この地で高い空に手が届くかのようにそびえるサウンドおしあげ 1204は、まるで洗練されたシンフォニーのように心地よい空間を創造します。この1LDKの賢い間取りは、居心地の良さと機能性を兼ね備えた空間であり、洋室7.4帖とLDK11.96帖が織りなす交響曲は、その日の感情や予定に応じて変わりゆくことでしょう。
…サウンドおしあげ 1204、あなたの新たな物語の舞台がここに用意されています。墨田区押上、この地で高い空に手が届くかのようにそびえるサウンドおしあげ 1204は、まるで洗練されたシンフォニーのように心地よい空間を創造します。この1LDKの賢い間取りは、居心地の良さと機能性を兼ね備えた空間であり、洋室7.4帖とLDK11.96帖が織りなす交響曲は、その日の感情や予定に応じて変わりゆくことでしょう。
サウンドおしあげ 1204の南東向きの窓は、朝日を優しく取り込みながら、夕暮れにはオレンジ色に染まる空をお楽しみいただけます。その光は、柔らかな光の絵筆で壁を彩り、寝室からは朝の目覚めを祝福するように、日々の新たな始まりを感じさせてくれます。この窓から見えるのは、東京の喧騒から少し離れた穏やかな日常で、まるで時間がゆっくりと流れるかのような錯覚を覚えます。
サウンドおしあげ 1204では、五感を満たす体験が待っています。エレベーターで上がる瞬間、心が高揚し、静かな期待が胸を共鳴させます。オートロックのセキュリティは、安心感という名のハーモニーを奏でる重要な仲間です。宅配ボックスは、あなたのライフスタイルに寄り添い、必要なものがいつでも手元に届く便利さを提供します。こうした設備があることで、日常はさらに洗練され、心地よいリズムで流れ始めるのです。
墨田区は、歴史と文化が深く根付いた土地であり、スカイツリーの勇姿を眺めながら、近隣のアートギャラリーや伝統的な料理店といった文化の息吹を感じさせてくれます。サウンドおしあげ 1204の住人として、あなたはこの場所で新たな絆を育み、まるで映画のワンシーンのように、日常の小さなドラマが繰り広げられるのです。
料理をするたびに香り高いスパイスがキッチンを満たし、その香りは美味しい料理への期待感で鼓動を速めます。LDKでの友人との語らいや、家族との団らん、そこで流れる笑い声は、あなたの心の深い部分に響く特別なメロディーとなることでしょう。そして、サウンドおしあげ 1204の壁は、あなたの物語を静かに見守り、時折その響きを共鳴させてくれるのです。
サウンドおしあげ 1204、ただの住まいではなく、あなたの人生の舞台。この贅沢な空間で、日曜日の穏やかな朝や、特別な日の贅沢なディナー、ひとりの時間でさえも、特別な思い出となります。ここでの生活は、まさにアートであり、音楽であり、あなたの心が描く新たな物語の始まりなのです。あなたも、サウンドおしあげ 1204で心の声を解き放ち、その美しい瞬間の数々を楽しむ者の一人になりませんか。
…サウンドおしあげ 1204、あなたの新たな物語の舞台がここに用意されています。墨田区押上、この地で高い空に手が届くかのようにそびえるサウンドおしあげ 1204は、まるで洗練されたシンフォニーのように心地よい空間を創造します。この1LDKの賢い間取りは、居心地の良さと機能性を兼ね備えた空間であり、洋室7.4帖とLDK11.96帖が織りなす交響曲は、その日の感情や予定に応じて変わりゆくことでしょう。
サウンドおしあげ 1204の南東向きの窓は、朝日を優しく取り込みながら、夕暮れにはオレンジ色に染まる空をお楽しみいただけます。その光は、柔らかな光の絵筆で壁を彩り、寝室からは朝の目覚めを祝福するように、日々の新たな始まりを感じさせてくれます。この窓から見えるのは、東京の喧騒から少し離れた穏やかな日常で、まるで時間がゆっくりと流れるかのような錯覚を覚えます。
サウンドおしあげ 1204では、五感を満たす体験が待っています。エレベーターで上がる瞬間、心が高揚し、静かな期待が胸を共鳴させます。オートロックのセキュリティは、安心感という名のハーモニーを奏でる重要な仲間です。宅配ボックスは、あなたのライフスタイルに寄り添い、必要なものがいつでも手元に届く便利さを提供します。こうした設備があることで、日常はさらに洗練され、心地よいリズムで流れ始めるのです。
墨田区は、歴史と文化が深く根付いた土地であり、スカイツリーの勇姿を眺めながら、近隣のアートギャラリーや伝統的な料理店といった文化の息吹を感じさせてくれます。サウンドおしあげ 1204の住人として、あなたはこの場所で新たな絆を育み、まるで映画のワンシーンのように、日常の小さなドラマが繰り広げられるのです。
料理をするたびに香り高いスパイスがキッチンを満たし、その香りは美味しい料理への期待感で鼓動を速めます。LDKでの友人との語らいや、家族との団らん、そこで流れる笑い声は、あなたの心の深い部分に響く特別なメロディーとなることでしょう。そして、サウンドおしあげ 1204の壁は、あなたの物語を静かに見守り、時折その響きを共鳴させてくれるのです。
サウンドおしあげ 1204、ただの住まいではなく、あなたの人生の舞台。この贅沢な空間で、日曜日の穏やかな朝や、特別な日の贅沢なディナー、ひとりの時間でさえも、特別な思い出となります。ここでの生活は、まさにアートであり、音楽であり、あなたの心が描く新たな物語の始まりなのです。あなたも、サウンドおしあげ 1204で心の声を解き放ち、その美しい瞬間の数々を楽しむ者の一人になりませんか。
バイブルスコア
バイブルスコア: 33.6
平均的なスコアです。
※バイブルスコア詳細はこちら
バイブルスコアとは独自のAI機械学習技術を利用した物件評価システムで、物件のおすすめ度を示します。最高得点は100点で、スコアが高いほど、よりおすすめの物件と評価されています。
写真
契約条件
| 賃料 | 予想金額:143,000〜163,000円程度 | 管理費 | 予想金額:10,000〜14,000円程度 |
| 礼金 | 非公開(アーカイブ) | 敷金 | 非公開(アーカイブ) |
| フリーレント | 1.0ヶ月 | 平米数 | 43.59㎡ |
| 間取り | 1LDK | 大型収納 | |
| 契約期間 |
| 方角 | 南東 |
| 更新料 | 契約形態 | 普通賃貸借契約 | |
| 取引態様 | 媒介 | 内見状況 | 入居中 |
| 入居時期 | 入居中 | SOHO・事務所 | |
| ペット | 間取り内訳 | 洋:7.4 LDK:11.96 | |
| キャンペーン情報・備考 | 本情報は賃料改定交渉の資料作成、収益物件の利回り試算、周辺エリアや最寄り駅の坪単価分析、次回募集開始時期の予測などにご活用いただけます。 | ||
※「どの不動産に頼めばいいのか分からない」「信頼できる営業マンの話を聞きたい」「一番親切な会社と契約したい」とお悩みの方におすすめなのが「高級賃貸バイブル」です。
高級賃貸バイブルは業界10年以上の熟練スタッフ群がお客様ファーストで対応します。
下記ボタンから、まずは無料でご相談下さい。
※内覧をご希望の際には、どうぞ物件のエントランス前にてお待ち合わせくださいませ。ご内覧後は、同じ場所でお別れとさせていただきます。お客様のご都合に合わせたスムーズなご案内を心がけておりますので、ご質問等がございましたら何なりとお申し付けください。 物件概要
| 物件名 |
| 築年月 |
|
|---|---|---|---|
| 所在地 | |||
| 交通 |
| ||
| 総戸数 |
| 総階数 |
|
| 構造 |
| ||
地図
物件までの道のりは、「拡大地図を表示」をクリックしてナビ機能をご利用ください。
部屋設備















建物設備

TVモニターホン

エレベーター

オートロック

宅配ボックス

敷地内ゴミ置場

管理人

駐輪場
サウンドおしあげの現在募集中のお部屋
- No rooms found for this property.









