
| 賃料 | 予想金額:143,000〜163,000円程度 | 管理費 | 予想金額:8,000〜12,000円程度 |
| 礼金/敷金 | 非公開(アーカイブ) | 平米数 | 29.59㎡ |
| 初期費用概算(参考) | 目安:439,000〜539,000 円 | みなし賃料(月額・参考) | 160,000〜180,000 円 |
| 備考 | 本ページは過去募集のアーカイブです。表示の金額は周辺相場・過去募集を踏まえた参考レンジであり、実際の契約金額・条件ではありません。 | ||
※上記みなし賃料(月額)は仲介手数料割引・無料&キャッシュバックを加味した高級賃貸バイブル限定の金額です。一般的なみなし賃料とは異なります。
【建物ページ】プラティーヌシャトー白金台の詳細・最新空室はこちら▶▶選ばれる理由
仲介手数料無料・キャンペーン情報(毎月15名様限定)
〇仲介手数料割引キャンペーン
プラティーヌシャトー白金台 101の口コミ・レビュー
プラティーヌシャトー白金台 101。ここに足を踏み入れると、まるで異次元の扉が開くかのように、非日常の世界へと導かれます。東京都港区白金台、最寄りの東京メトロ南北線 白金台駅から徒歩3分、利便性と上品さが共存するこのエリアは、恵まれた立地とともに洗練された静けさを提供します。
この1Rの住まいは、専有面積29.59㎡というコンパクトながら、心を解き放つ広がりを感じさせる空間です。南東向きの窓から…プラティーヌシャトー白金台 101。ここに足を踏み入れると、まるで異次元の扉が開くかのように、非日常の世界へと導かれます。東京都港区白金台、最寄りの東京メトロ南北線 白金台駅から徒歩3分、利便性と上品さが共存するこのエリアは、恵まれた立地とともに洗練された静けさを提供します。
この1Rの住まいは、専有面積29.59㎡というコンパクトながら、心を解き放つ広がりを感じさせる空間です。南東向きの窓からは、目覚めの光が柔らかに差し込み、朝の静けさの中で微かな鳥のさえずりや、そよ風のささやきが耳を癒やします。壁の色合いは、ゆったりとした気分にさせる淡いトーンに包まれ、まるで優雅なキャンバスに描かれた現代アートのようです。
プラティーヌシャトー白金台 101は、あらゆる瞬間を特別なものに変えてくれる魅力を秘めています。たとえば、夕食の準備をする時、キッチンで食材の香りが舞い上がる中で、エレガントなディナーのシーンが自動的に頭の中に浮かびます。大切な友人を招いてのディナー、その笑い声と共に美味しい料理がテーブルを彩り、心地よい会話が空間を満たします。
この贅沢な居住空間は、ただの住まいではなく、住む人の人生を豊かに育む温かい家族のような存在。TVモニターホンやオートロック、宅配ボックスなどの先進の設備は、安全と便利さを約束し、毎日の生活をスムーズにしてくれます。この場所での生活は、映画のワンシーンのように、ひとつひとつの瞬間が鮮やかに記憶に刻まれていくことでしょう。
周囲には、白金台の穏やかな文化が息づいています。歴史ある散策路を歩くと、アートギャラリーやおしゃれなカフェが目に飛び込んできて、まるで自分自身が芸術作品の一部となったかのような感覚になります。あなたの生活が、歴史と文化に包まれたこの街の真ん中で、どのように展開していくのか、想像するだけで心が躍ります。
プラティーヌシャトー白金台 101で、新たな生活の幕を開けてみませんか?贅沢な空間の中で、日々の暮らしを優雅に彩り、高級ブランドのような生活を手に入れることができるのです。あなたのストーリーがここで始まります。どのような美しい瞬間が待っているのか、期待に胸を膨らませて、あなたの人生という名の映画の次のシーンを探しに出かけましょう。
この1Rの住まいは、専有面積29.59㎡というコンパクトながら、心を解き放つ広がりを感じさせる空間です。南東向きの窓から…プラティーヌシャトー白金台 101。ここに足を踏み入れると、まるで異次元の扉が開くかのように、非日常の世界へと導かれます。東京都港区白金台、最寄りの東京メトロ南北線 白金台駅から徒歩3分、利便性と上品さが共存するこのエリアは、恵まれた立地とともに洗練された静けさを提供します。
この1Rの住まいは、専有面積29.59㎡というコンパクトながら、心を解き放つ広がりを感じさせる空間です。南東向きの窓からは、目覚めの光が柔らかに差し込み、朝の静けさの中で微かな鳥のさえずりや、そよ風のささやきが耳を癒やします。壁の色合いは、ゆったりとした気分にさせる淡いトーンに包まれ、まるで優雅なキャンバスに描かれた現代アートのようです。
プラティーヌシャトー白金台 101は、あらゆる瞬間を特別なものに変えてくれる魅力を秘めています。たとえば、夕食の準備をする時、キッチンで食材の香りが舞い上がる中で、エレガントなディナーのシーンが自動的に頭の中に浮かびます。大切な友人を招いてのディナー、その笑い声と共に美味しい料理がテーブルを彩り、心地よい会話が空間を満たします。
この贅沢な居住空間は、ただの住まいではなく、住む人の人生を豊かに育む温かい家族のような存在。TVモニターホンやオートロック、宅配ボックスなどの先進の設備は、安全と便利さを約束し、毎日の生活をスムーズにしてくれます。この場所での生活は、映画のワンシーンのように、ひとつひとつの瞬間が鮮やかに記憶に刻まれていくことでしょう。
周囲には、白金台の穏やかな文化が息づいています。歴史ある散策路を歩くと、アートギャラリーやおしゃれなカフェが目に飛び込んできて、まるで自分自身が芸術作品の一部となったかのような感覚になります。あなたの生活が、歴史と文化に包まれたこの街の真ん中で、どのように展開していくのか、想像するだけで心が躍ります。
プラティーヌシャトー白金台 101で、新たな生活の幕を開けてみませんか?贅沢な空間の中で、日々の暮らしを優雅に彩り、高級ブランドのような生活を手に入れることができるのです。あなたのストーリーがここで始まります。どのような美しい瞬間が待っているのか、期待に胸を膨らませて、あなたの人生という名の映画の次のシーンを探しに出かけましょう。
バイブルスコア
バイブルスコア: 21.4
平均的なスコアです。
※バイブルスコア詳細はこちら
バイブルスコアとは独自のAI機械学習技術を利用した物件評価システムで、物件のおすすめ度を示します。最高得点は100点で、スコアが高いほど、よりおすすめの物件と評価されています。
写真
契約条件
| 賃料 | 予想金額:143,000〜163,000円程度 | 管理費 | 予想金額:8,000〜12,000円程度 |
| 礼金 | 非公開(アーカイブ) | 敷金 | 非公開(アーカイブ) |
| フリーレント | なし | 平米数 | 29.59㎡ |
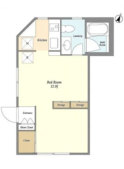
| 間取り | 1R | 大型収納 | |
| 契約期間 |
| 方角 | 南東 |
| 更新料 | 契約形態 | 普通賃貸借契約 | |
| 取引態様 | 媒介 | 内見状況 | 入居中 |
| 入居時期 | 入居中 | SOHO・事務所 | 事務所(SOHO)可 |
| ペット | ペット可 | 間取り内訳 | BR=12.9J |
| キャンペーン情報・備考 | 本情報は賃料改定交渉の資料作成、収益物件の利回り試算、周辺エリアや最寄り駅の坪単価分析、次回募集開始時期の予測などにご活用いただけます。 | ||
※「どの不動産に頼めばいいのか分からない」「信頼できる営業マンの話を聞きたい」「一番親切な会社と契約したい」とお悩みの方におすすめなのが「高級賃貸バイブル」です。
高級賃貸バイブルは業界10年以上の熟練スタッフ群がお客様ファーストで対応します。
下記ボタンから、まずは無料でご相談下さい。
※内覧をご希望の際には、どうぞ物件のエントランス前にてお待ち合わせくださいませ。ご内覧後は、同じ場所でお別れとさせていただきます。お客様のご都合に合わせたスムーズなご案内を心がけておりますので、ご質問等がございましたら何なりとお申し付けください。 物件概要
| 物件名 |
| 築年月 |
|
|---|---|---|---|
| 所在地 | |||
| 交通 | |||
| 総戸数 |
| 総階数 |
|
| 構造 |
| ||
地図
物件までの道のりは、「拡大地図を表示」をクリックしてナビ機能をご利用ください。
部屋設備
















建物設備

TVモニターホン

オートロック

宅配ボックス

敷地内ゴミ置場
プラティーヌシャトー白金台の現在募集中のお部屋
- No rooms found for this property.









