
| 賃料 | 予想金額:88,000〜108,000円程度 | 管理費 | 予想金額:8,000〜12,000円程度 |
| 礼金/敷金 | 非公開(アーカイブ) | 平米数 | 25.16㎡ |
| 初期費用概算(参考) | 目安:128,900〜228,900 円 | みなし賃料(月額・参考) | 99,685〜119,685 円 |
| 備考 | 本ページは過去募集のアーカイブです。表示の金額は周辺相場・過去募集を踏まえた参考レンジであり、実際の契約金額・条件ではありません。 | ||
※上記みなし賃料(月額)は仲介手数料割引・無料&キャッシュバックを加味した高級賃貸バイブル限定の金額です。一般的なみなし賃料とは異なります。
【建物ページ】La Douceur成増の詳細・最新空室はこちら▶▶選ばれる理由
仲介手数料無料・キャンペーン情報(毎月15名様限定)
〇引っ越しお祝い金19600円プレゼント(キャッシュバック)
〇仲介手数料無料キャンペーン
La Douceur成増 315の口コミ・レビュー
La Douceur成増 315。この名はまるで甘美な旋律が響くかのような響きを持ち、心を躍らせる一室を表しています。東京都板橋区成増2-30-2に位置するこの物件は、南西の陽射しをあなたに届け、温かな光に包まれた居心地の良い空間を提供します。ここでの生活は、まるで映画のワンシーンを切り取ったかのように、心豊かで刺激的な毎日となることでしょう。
La Douceur成増 315の扉を開けば、広が…La Douceur成増 315。この名はまるで甘美な旋律が響くかのような響きを持ち、心を躍らせる一室を表しています。東京都板橋区成増2-30-2に位置するこの物件は、南西の陽射しをあなたに届け、温かな光に包まれた居心地の良い空間を提供します。ここでの生活は、まるで映画のワンシーンを切り取ったかのように、心豊かで刺激的な毎日となることでしょう。
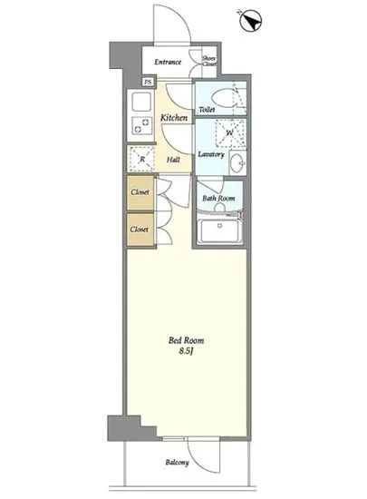
La Douceur成増 315の扉を開けば、広がるのは洗練された暮らしのステージです。8.5帖の洋室は、あなたの日々の営みを優しく包み込み、心に安らぎを与えます。家具を配置するごとに、新たな表情を見せるこの空間は、まるで真新しいキャンバスのように、あなたのライフスタイルに彩りを加えます。朝の光に照らされながら、目を覚ます瞬間、心地よい風が舞い込み、カーテンがゆらぐ音は、静寂の中で響き渡るメロディーとなります。
La Douceur成増 315の魅力は、単なる住まいを超え、生活をアートとして感じさせる点にあります。冷たく無機質な都会の喧騒から一歩離れ、あなた自身の世界を形成するこの場所は、独創的な生活空間を提供し、心の豊かさを育んでいくことでしょう。周囲には歴史ある成増の文化が息づいており、地元の商店街では、人々が笑顔で顔を交わし、温もりある生活を感じることができます。あなたもその一部となり、街と共に歩む日々は、まさに新たな冒険の始まりです。
このマンションは、まるで良き友のようにあなたを見守り、必要な時には優しくその手を差し伸べてくれます。オートロックで守られたセキュリティや、宅配ボックス、駐輪場とバイク置場も完備しており、あなたの日常をスムーズに支えます。忙しい毎日でも、La Douceur成増 315があれば、心の余裕と安らぎを手に入れることができるのです。
日が沈む頃、キッチンで夕食の支度をしながら、ふと窓から見える夕焼けに目を奪われます。愛おしい家族や友人が集うダイニングスペース。ゆったりとしたひとときを過ごし、笑い声が絶えない時間に、La Douceur成増 315は静かに寄り添います。あなたの人生の物語が、この場所で紡がれていくのです。
La Douceur成増 315は、ただの住処ではなく、あなたの人生を豊かに彩るための特別な場所。心と身体を癒し、あなたの個性を引き立てる、そんな空間へと誘います。さあ、新たな物語の一ページを、この地で刻みましょう。あなたの人生の舞台は、La Douceur成増 315で始まります。
La Douceur成増 315の扉を開けば、広が…La Douceur成増 315。この名はまるで甘美な旋律が響くかのような響きを持ち、心を躍らせる一室を表しています。東京都板橋区成増2-30-2に位置するこの物件は、南西の陽射しをあなたに届け、温かな光に包まれた居心地の良い空間を提供します。ここでの生活は、まるで映画のワンシーンを切り取ったかのように、心豊かで刺激的な毎日となることでしょう。
La Douceur成増 315の扉を開けば、広がるのは洗練された暮らしのステージです。8.5帖の洋室は、あなたの日々の営みを優しく包み込み、心に安らぎを与えます。家具を配置するごとに、新たな表情を見せるこの空間は、まるで真新しいキャンバスのように、あなたのライフスタイルに彩りを加えます。朝の光に照らされながら、目を覚ます瞬間、心地よい風が舞い込み、カーテンがゆらぐ音は、静寂の中で響き渡るメロディーとなります。
La Douceur成増 315の魅力は、単なる住まいを超え、生活をアートとして感じさせる点にあります。冷たく無機質な都会の喧騒から一歩離れ、あなた自身の世界を形成するこの場所は、独創的な生活空間を提供し、心の豊かさを育んでいくことでしょう。周囲には歴史ある成増の文化が息づいており、地元の商店街では、人々が笑顔で顔を交わし、温もりある生活を感じることができます。あなたもその一部となり、街と共に歩む日々は、まさに新たな冒険の始まりです。
このマンションは、まるで良き友のようにあなたを見守り、必要な時には優しくその手を差し伸べてくれます。オートロックで守られたセキュリティや、宅配ボックス、駐輪場とバイク置場も完備しており、あなたの日常をスムーズに支えます。忙しい毎日でも、La Douceur成増 315があれば、心の余裕と安らぎを手に入れることができるのです。
日が沈む頃、キッチンで夕食の支度をしながら、ふと窓から見える夕焼けに目を奪われます。愛おしい家族や友人が集うダイニングスペース。ゆったりとしたひとときを過ごし、笑い声が絶えない時間に、La Douceur成増 315は静かに寄り添います。あなたの人生の物語が、この場所で紡がれていくのです。
La Douceur成増 315は、ただの住処ではなく、あなたの人生を豊かに彩るための特別な場所。心と身体を癒し、あなたの個性を引き立てる、そんな空間へと誘います。さあ、新たな物語の一ページを、この地で刻みましょう。あなたの人生の舞台は、La Douceur成増 315で始まります。
バイブルスコア
バイブルスコア: 93.7
レア物件です、すぐ仮押さえしましょう!
このお部屋は、現在ご入居中のため空室情報はございません。ただし、将来的に募集が開始される際、バイブルスコアにおいて非常に高い評価が期待されます。特にご興味をお持ちの方は、今のうちにブックマークやお気に入りに登録していただくと、募集開始のお知らせをすぐに受け取ることができます。是非ともご検討くださいませ。
※バイブルスコア詳細はこちら
バイブルスコアとは独自のAI機械学習技術を利用した物件評価システムで、物件のおすすめ度を示します。最高得点は100点で、スコアが高いほど、よりおすすめの物件と評価されています。
写真
現在写真が登録されていません契約条件
| 賃料 | 予想金額:88,000〜108,000円程度 | 管理費 | 予想金額:8,000〜12,000円程度 |
| 礼金 | 非公開(アーカイブ) | 敷金 | 非公開(アーカイブ) |
| フリーレント | なし | 平米数 | 25.16㎡ |
| 間取り | 1K | 大型収納 | |
| 契約期間 | 2年 | 方角 | 南西 |
| 更新料 | 1ヶ月 | 契約形態 | 普通賃貸借契約 |
| 取引態様 | 媒介 | 内見状況 | 入居中 |
| 入居時期 | 入居中 | SOHO・事務所 | |
| ペット | 間取り内訳 | 洋:8.5 | |
| キャンペーン情報・備考 | 本情報は賃料改定交渉の資料作成、収益物件の利回り試算、周辺エリアや最寄り駅の坪単価分析、次回募集開始時期の予測などにご活用いただけます。 | ||
※「どの不動産に頼めばいいのか分からない」「信頼できる営業マンの話を聞きたい」「一番親切な会社と契約したい」とお悩みの方におすすめなのが「高級賃貸バイブル」です。
高級賃貸バイブルは業界10年以上の熟練スタッフ群がお客様ファーストで対応します。
下記ボタンから、まずは無料でご相談下さい。
※内覧をご希望の際には、どうぞ物件のエントランス前にてお待ち合わせくださいませ。ご内覧後は、同じ場所でお別れとさせていただきます。お客様のご都合に合わせたスムーズなご案内を心がけておりますので、ご質問等がございましたら何なりとお申し付けください。 物件概要
| 物件名 |
| 築年月 |
|
|---|---|---|---|
| 所在地 | |||
| 交通 | |||
| 総戸数 |
| 総階数 |
|
| 構造 |
| ||
地図
物件までの道のりは、「拡大地図を表示」をクリックしてナビ機能をご利用ください。
部屋設備











建物設備

TVモニターホン

エレベーター

オートロック

バイク置場

宅配ボックス

敷地内ゴミ置場

管理人

駐輪場
La Douceur成増の現在募集中のお部屋
- No rooms found for this property.
