
| 賃料 | 予想金額:210,000〜230,000円程度 | 管理費 | 予想金額:8,000〜12,000円程度 |
| 礼金/敷金 | 非公開(アーカイブ) | 平米数 | 58.91㎡ |
| 初期費用概算(参考) | 目安:283,100〜383,100 円 | みなし賃料(月額・参考) | 222,356〜242,356 円 |
| 備考 | 本ページは過去募集のアーカイブです。表示の金額は周辺相場・過去募集を踏まえた参考レンジであり、実際の契約金額・条件ではありません。 | ||
※上記みなし賃料(月額)は仲介手数料割引・無料&キャッシュバックを加味した高級賃貸バイブル限定の金額です。一般的なみなし賃料とは異なります。
【建物ページ】センチュリー尾山台ルミナスの詳細・最新空室はこちら▶▶選ばれる理由
仲介手数料無料・キャンペーン情報(毎月15名様限定)
〇引っ越しお祝い金268400円プレゼント(キャッシュバック)
〇仲介手数料無料キャンペーン
センチュリー尾山台ルミナス 109の口コミ・レビュー
センチュリー尾山台ルミナス 109。ここは、あなたの新しい物語が始まる場所であり、ただの住まいではなく、心の拠り所となることでしょう。この美しい2LDKの空間は、まるで優雅な舞台装置が整った劇場のように、あなたの日常を輝かせてくれる準備が整っています。
58.91㎡の広がりを持つセンチュリー尾山台ルミナス 109には、まるで物語の主人公が日々の出来事を紡ぎ出すように、あなたの思い出を形作るための…センチュリー尾山台ルミナス 109。ここは、あなたの新しい物語が始まる場所であり、ただの住まいではなく、心の拠り所となることでしょう。この美しい2LDKの空間は、まるで優雅な舞台装置が整った劇場のように、あなたの日常を輝かせてくれる準備が整っています。
58.91㎡の広がりを持つセンチュリー尾山台ルミナス 109には、まるで物語の主人公が日々の出来事を紡ぎ出すように、あなたの思い出を形作るための理想的な間取りが広がっています。12帖のLDはまさに心のオアシス。優しい光が窓から差し込み、すがすがしい朝にはコーヒーの香りが漂い、穏やかな午後には大好きな本を手に静かな読書の時間を楽しむこともできます。壁に寄りかかりながら、心地よいソファに身を任せると、まるで時が止まったかのように、ゆったりとした時間が流れていくことでしょう。
センチュリー尾山台ルミナス 109の6帖の洋室には、自分だけの特別な空間を持つことができます。もちろん、ここはただの寝室ではありません。あなたの夢の扉を開く場所なのです。アート作品や思い出の品をディスプレイし、好きな色で彩ってください。5帖の洋室も魅力的で、趣味の時間やゲストルームとして活躍すること間違いなしです。窓から差し込む柔らかな光が、あなたの心を優しく包み込み、良い夢へと誘ってくれることでしょう。
この物件は、ただの居住空間ではありません。オートロックで守られた安全な環境に身を置き、管理人が見守る安心感が安らぎを与えてくれます。宅配ボックスや駐輪場、さらにバイク置場も完備されており、都市生活の便利さを存分に享受できるのです。エレベーターで優雅に移動し、低層の落ち着いた雰囲気の中で、都心の喧騒を忘れさせてくれます。
センチュリー尾山台ルミナス 109は、東京都世田谷区玉堤にひっそりと佇み、周辺には歴史的な場所や文化的なスポットが点在しています。散歩がてらの街の探索は、あなたに新たなインスピレーションを与えることでしょう。近くにある公園の清々しい風が、日々の疲れを癒してくれるはずです。
この特別な空間で、あなたは自分自身を再発見し、愛する人々と共に温かい時間を過ごすことができるのです。センチュリー尾山台ルミナス 109は、あなたの人生の物語に魅力的な一頁を加えるための、まるで魔法のような空間となることでしょう。あなたの新しい生活が、映画のワンシーンのように素晴らしいものでありますように。
58.91㎡の広がりを持つセンチュリー尾山台ルミナス 109には、まるで物語の主人公が日々の出来事を紡ぎ出すように、あなたの思い出を形作るための…センチュリー尾山台ルミナス 109。ここは、あなたの新しい物語が始まる場所であり、ただの住まいではなく、心の拠り所となることでしょう。この美しい2LDKの空間は、まるで優雅な舞台装置が整った劇場のように、あなたの日常を輝かせてくれる準備が整っています。
58.91㎡の広がりを持つセンチュリー尾山台ルミナス 109には、まるで物語の主人公が日々の出来事を紡ぎ出すように、あなたの思い出を形作るための理想的な間取りが広がっています。12帖のLDはまさに心のオアシス。優しい光が窓から差し込み、すがすがしい朝にはコーヒーの香りが漂い、穏やかな午後には大好きな本を手に静かな読書の時間を楽しむこともできます。壁に寄りかかりながら、心地よいソファに身を任せると、まるで時が止まったかのように、ゆったりとした時間が流れていくことでしょう。
センチュリー尾山台ルミナス 109の6帖の洋室には、自分だけの特別な空間を持つことができます。もちろん、ここはただの寝室ではありません。あなたの夢の扉を開く場所なのです。アート作品や思い出の品をディスプレイし、好きな色で彩ってください。5帖の洋室も魅力的で、趣味の時間やゲストルームとして活躍すること間違いなしです。窓から差し込む柔らかな光が、あなたの心を優しく包み込み、良い夢へと誘ってくれることでしょう。
この物件は、ただの居住空間ではありません。オートロックで守られた安全な環境に身を置き、管理人が見守る安心感が安らぎを与えてくれます。宅配ボックスや駐輪場、さらにバイク置場も完備されており、都市生活の便利さを存分に享受できるのです。エレベーターで優雅に移動し、低層の落ち着いた雰囲気の中で、都心の喧騒を忘れさせてくれます。
センチュリー尾山台ルミナス 109は、東京都世田谷区玉堤にひっそりと佇み、周辺には歴史的な場所や文化的なスポットが点在しています。散歩がてらの街の探索は、あなたに新たなインスピレーションを与えることでしょう。近くにある公園の清々しい風が、日々の疲れを癒してくれるはずです。
この特別な空間で、あなたは自分自身を再発見し、愛する人々と共に温かい時間を過ごすことができるのです。センチュリー尾山台ルミナス 109は、あなたの人生の物語に魅力的な一頁を加えるための、まるで魔法のような空間となることでしょう。あなたの新しい生活が、映画のワンシーンのように素晴らしいものでありますように。
バイブルスコア
バイブルスコア: 21.4
平均的なスコアです。
※バイブルスコア詳細はこちら
バイブルスコアとは独自のAI機械学習技術を利用した物件評価システムで、物件のおすすめ度を示します。最高得点は100点で、スコアが高いほど、よりおすすめの物件と評価されています。
写真
現在写真が登録されていません契約条件
| 賃料 | 予想金額:210,000〜230,000円程度 | 管理費 | 予想金額:8,000〜12,000円程度 |
| 礼金 | 非公開(アーカイブ) | 敷金 | 非公開(アーカイブ) |
| フリーレント | なし | 平米数 | 58.91㎡ |
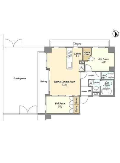
| 間取り | 2LDK | 大型収納 | WIC |
| 契約期間 |
| 方角 | 北西 / 北東 |
| 更新料 | 契約形態 | 普通賃貸借契約 | |
| 取引態様 | 媒介 | 内見状況 | 入居中 |
| 入居時期 | 入居中 | SOHO・事務所 | |
| ペット | 間取り内訳 | 洋:6 洋:5 LD:12 K:3.4 | |
| キャンペーン情報・備考 | 本情報は賃料改定交渉の資料作成、収益物件の利回り試算、周辺エリアや最寄り駅の坪単価分析、次回募集開始時期の予測などにご活用いただけます。 | ||
※「どの不動産に頼めばいいのか分からない」「信頼できる営業マンの話を聞きたい」「一番親切な会社と契約したい」とお悩みの方におすすめなのが「高級賃貸バイブル」です。
高級賃貸バイブルは業界10年以上の熟練スタッフ群がお客様ファーストで対応します。
下記ボタンから、まずは無料でご相談下さい。
※内覧をご希望の際には、どうぞ物件のエントランス前にてお待ち合わせくださいませ。ご内覧後は、同じ場所でお別れとさせていただきます。お客様のご都合に合わせたスムーズなご案内を心がけておりますので、ご質問等がございましたら何なりとお申し付けください。 物件概要
| 物件名 |
| 築年月 |
|
|---|---|---|---|
| 所在地 | |||
| 交通 |
| ||
| 総戸数 |
| 総階数 |
|
| 構造 |
| ||
地図
物件までの道のりは、「拡大地図を表示」をクリックしてナビ機能をご利用ください。
部屋設備


















建物設備

TVモニターホン

エレベーター

オートロック

バイク置場

宅配ボックス

敷地内ゴミ置場

管理人

駐輪場
センチュリー尾山台ルミナスの現在募集中のお部屋
- No rooms found for this property.
