
| 賃料 | 予想金額:220,000〜240,000円程度 | 管理費 | 予想金額:8,000〜12,000円程度 |
| 礼金/敷金 | 非公開(アーカイブ) | 平米数 | 37.91㎡ |
| 初期費用概算(参考) | 目安:0〜-289,500 円 | みなし賃料(月額・参考) | 222,927〜242,927 円 |
| 備考 | 本ページは過去募集のアーカイブです。表示の金額は周辺相場・過去募集を踏まえた参考レンジであり、実際の契約金額・条件ではありません。 | ||
※上記みなし賃料(月額)は仲介手数料割引・無料&キャッシュバックを加味した高級賃貸バイブル限定の金額です。一般的なみなし賃料とは異なります。
【建物ページ】アスティーレ原宿の詳細・最新空室はこちら▶▶選ばれる理由
仲介手数料無料・キャンペーン情報(毎月15名様限定)
〇引っ越しお祝い金736000円プレゼント(キャッシュバック)
〇フリーレント2か月キャンペーン
〇仲介手数料無料キャンペーン
アスティーレ原宿 101の口コミ・レビュー
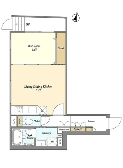
アスティーレ原宿 101、これはただの住まいではなく、東京の心臓部における独自のオアシスです。南西の窓から降り注ぐ柔らかな光は、まるで自然がこの空間に微笑みかけているかのように、穏やかな気持ちをもたらします。この物件は、37.91㎡の広さに、4.8帖の洋室と8.7帖のLDKを巧みに配置し、都市生活の便利さと心の安らぎを見事に両立させています。
アスティーレ原宿 101に足を踏み入れると、まるで一…アスティーレ原宿 101、これはただの住まいではなく、東京の心臓部における独自のオアシスです。南西の窓から降り注ぐ柔らかな光は、まるで自然がこの空間に微笑みかけているかのように、穏やかな気持ちをもたらします。この物件は、37.91㎡の広さに、4.8帖の洋室と8.7帖のLDKを巧みに配置し、都市生活の便利さと心の安らぎを見事に両立させています。
アスティーレ原宿 101に足を踏み入れると、まるで一流のデザインホテルに泊まるかのような高揚感が広がります。元気な色合いのタイルや、洗練された素材感が、あなたの日常を特別なものに変えてくれることでしょう。心地よいダイニングで、朝のコーヒーを香ばしく味わい、優雅な午後のひとときには、窓辺に座って南西の景色を楽しむ。さらに、夜にはシャンデリアの光が瞬き、まるで星空の下で食事をしているような非日常を演出します。
あなたがアスティーレ原宿 101で暮らすことになると、生活はまさに映画のワンシーンのように展開されます。朝、目覚めると、外から聞こえる鳥のさえずりが、あなたを新たな一日へと導いてくれます。バルコニーに出れば、風の心地よいささやきが肌を撫で、渋谷の喧騒を忘れさせてくれるでしょう。柔らかな日差しの中で、タオルの香りを感じながらシャワーを浴び、出かける準備をする。これこそが、贅沢という名の生活なのです。
アスティーレ原宿 101は、まるで歴史と文化を受け継ぐ高級ブランドと同じく、周囲の環境にも恵まれています。近くには、アートギャラリーやユニークなカフェが点在しており、まるで一つの壮大な物語を紡いでいるかのようです。北参道駅までのわずか5分の道程は、あなたが求める全ての文化と芸術への扉を開けてくれるのです。
オートロックのセキュリティーやエレベーター、宅配ボックスといった便利な設備が日々の暮らしをサポートし、管理人がそっと見守る安心感が、心に安らぎを与えてくれます。夜の静寂に包まれるこの空間では、あなたの人生の一瞬一瞬が大切にされていることを実感できるでしょう。
アスティーレ原宿 101、ここでの日々は、まるでアートのように個性的で、心に残る物語を紡いでいくことでしょう。あなたの生活が、まさにこの美しい住まいの中で、より豊かに彩られていく様子を想像してみてください。都会の喧騒から解き放たれ、あなた自身のストーリーをこの場所で紡いでいくのです。アスティーレ原宿 101は、あなたを待っています。
アスティーレ原宿 101に足を踏み入れると、まるで一…アスティーレ原宿 101、これはただの住まいではなく、東京の心臓部における独自のオアシスです。南西の窓から降り注ぐ柔らかな光は、まるで自然がこの空間に微笑みかけているかのように、穏やかな気持ちをもたらします。この物件は、37.91㎡の広さに、4.8帖の洋室と8.7帖のLDKを巧みに配置し、都市生活の便利さと心の安らぎを見事に両立させています。
アスティーレ原宿 101に足を踏み入れると、まるで一流のデザインホテルに泊まるかのような高揚感が広がります。元気な色合いのタイルや、洗練された素材感が、あなたの日常を特別なものに変えてくれることでしょう。心地よいダイニングで、朝のコーヒーを香ばしく味わい、優雅な午後のひとときには、窓辺に座って南西の景色を楽しむ。さらに、夜にはシャンデリアの光が瞬き、まるで星空の下で食事をしているような非日常を演出します。
あなたがアスティーレ原宿 101で暮らすことになると、生活はまさに映画のワンシーンのように展開されます。朝、目覚めると、外から聞こえる鳥のさえずりが、あなたを新たな一日へと導いてくれます。バルコニーに出れば、風の心地よいささやきが肌を撫で、渋谷の喧騒を忘れさせてくれるでしょう。柔らかな日差しの中で、タオルの香りを感じながらシャワーを浴び、出かける準備をする。これこそが、贅沢という名の生活なのです。
アスティーレ原宿 101は、まるで歴史と文化を受け継ぐ高級ブランドと同じく、周囲の環境にも恵まれています。近くには、アートギャラリーやユニークなカフェが点在しており、まるで一つの壮大な物語を紡いでいるかのようです。北参道駅までのわずか5分の道程は、あなたが求める全ての文化と芸術への扉を開けてくれるのです。
オートロックのセキュリティーやエレベーター、宅配ボックスといった便利な設備が日々の暮らしをサポートし、管理人がそっと見守る安心感が、心に安らぎを与えてくれます。夜の静寂に包まれるこの空間では、あなたの人生の一瞬一瞬が大切にされていることを実感できるでしょう。
アスティーレ原宿 101、ここでの日々は、まるでアートのように個性的で、心に残る物語を紡いでいくことでしょう。あなたの生活が、まさにこの美しい住まいの中で、より豊かに彩られていく様子を想像してみてください。都会の喧騒から解き放たれ、あなた自身のストーリーをこの場所で紡いでいくのです。アスティーレ原宿 101は、あなたを待っています。
バイブルスコア
バイブルスコア: 94.6
レア物件です、すぐ仮押さえしましょう!
このお部屋は、現在ご入居中のため空室情報はございません。ただし、将来的に募集が開始される際、バイブルスコアにおいて非常に高い評価が期待されます。特にご興味をお持ちの方は、今のうちにブックマークやお気に入りに登録していただくと、募集開始のお知らせをすぐに受け取ることができます。是非ともご検討くださいませ。
※バイブルスコア詳細はこちら
バイブルスコアとは独自のAI機械学習技術を利用した物件評価システムで、物件のおすすめ度を示します。最高得点は100点で、スコアが高いほど、よりおすすめの物件と評価されています。
写真
現在写真が登録されていません契約条件
| 賃料 | 予想金額:220,000〜240,000円程度 | 管理費 | 予想金額:8,000〜12,000円程度 |
| 礼金 | 非公開(アーカイブ) | 敷金 | 非公開(アーカイブ) |
| フリーレント | 2.0ヶ月 | 平米数 | 37.91㎡ |
| 間取り | 1LDK | 大型収納 | |
| 契約期間 | 2年 | 方角 | 南西 |
| 更新料 | 1ヶ月 | 契約形態 | 普通賃貸借契約 |
| 取引態様 | 媒介 | 内見状況 | 入居中 |
| 入居時期 | 入居中 | SOHO・事務所 | |
| ペット | 間取り内訳 | 洋:4.8 LDK:8.7 | |
| キャンペーン情報・備考 | 本情報は賃料改定交渉の資料作成、収益物件の利回り試算、周辺エリアや最寄り駅の坪単価分析、次回募集開始時期の予測などにご活用いただけます。 | ||
※「どの不動産に頼めばいいのか分からない」「信頼できる営業マンの話を聞きたい」「一番親切な会社と契約したい」とお悩みの方におすすめなのが「高級賃貸バイブル」です。
高級賃貸バイブルは業界10年以上の熟練スタッフ群がお客様ファーストで対応します。
下記ボタンから、まずは無料でご相談下さい。
※内覧をご希望の際には、どうぞ物件のエントランス前にてお待ち合わせくださいませ。ご内覧後は、同じ場所でお別れとさせていただきます。お客様のご都合に合わせたスムーズなご案内を心がけておりますので、ご質問等がございましたら何なりとお申し付けください。 物件概要
| 物件名 |
| 築年月 |
|
|---|---|---|---|
| 所在地 | |||
| 交通 | |||
| 総戸数 |
| 総階数 |
|
| 構造 |
| ||
地図
物件までの道のりは、「拡大地図を表示」をクリックしてナビ機能をご利用ください。
部屋設備
















建物設備

TVモニターホン

エレベーター

オートロック

宅配ボックス

敷地内ゴミ置場

管理人
アスティーレ原宿の現在募集中のお部屋
- No rooms found for this property.
