
| 賃料 | 予想金額:226,000〜246,000円程度 | 管理費 | 予想金額:10,000〜14,000円程度 |
| 礼金/敷金 | 非公開(アーカイブ) | 平米数 | 38.32㎡ |
| 初期費用概算(参考) | 目安:307,500〜407,500 円 | みなし賃料(月額・参考) | 245,448〜265,448 円 |
| 備考 | 本ページは過去募集のアーカイブです。表示の金額は周辺相場・過去募集を踏まえた参考レンジであり、実際の契約金額・条件ではありません。 | ||
※上記みなし賃料(月額)は仲介手数料割引・無料&キャッシュバックを加味した高級賃貸バイブル限定の金額です。一般的なみなし賃料とは異なります。
【建物ページ】アスティーレ原宿の詳細・最新空室はこちら▶▶選ばれる理由
仲介手数料無料・キャンペーン情報(毎月15名様限定)
〇引っ越しお祝い金51000円プレゼント(キャッシュバック)
〇フリーレント2か月キャンペーン
〇仲介手数料無料キャンペーン
ASTILE原宿 401の口コミ・レビュー
ASTILE原宿 401。ここは単なる住居ではなく、日常生活の中に芸術や文化を感じることができるまさに「生活の舞台」と言える場所です。この美しい401号室は、北に面し、優れた光が静かに降り注ぎ、毎朝目覚めるたびに新たなインスピレーションを与えてくれることでしょう。専有面積38.32㎡の中に、生活する喜びと洗練されたデザインが巧みに融合しているのです。
この1LDKの間取りは、LDK8.7帖と洋室…ASTILE原宿 401。ここは単なる住居ではなく、日常生活の中に芸術や文化を感じることができるまさに「生活の舞台」と言える場所です。この美しい401号室は、北に面し、優れた光が静かに降り注ぎ、毎朝目覚めるたびに新たなインスピレーションを与えてくれることでしょう。専有面積38.32㎡の中に、生活する喜びと洗練されたデザインが巧みに融合しているのです。
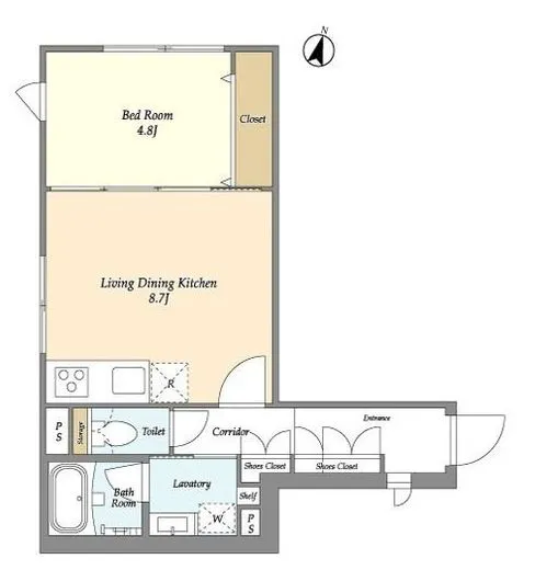
この1LDKの間取りは、LDK8.7帖と洋室4.8帖から成り立っており、居住空間はまるで心の隙間を埋めるかのように優美に広がっています。あなたの日常が、この空間でどのような色彩を持つのか、想像するだけで心が躍ります。LDKに足を踏み入れると、まるで新しい映画のオープニングシーンに包み込まれるような感覚を覚えます。大きな窓からは、時の流れを感じさせる街の景色が広がり、日常の喧騒を一瞬忘れさせてくれるでしょう。
洋室は、穏やかな静寂に包まれた秘密の隠れ家のような存在。ここでの朝は、柔らかな光が差し込み、安らぎの中で目を覚ますことができます。ふかふかのマットレスに身を委ね、その感触が心地よく、まるで雲の上で眠っているかのようです。夜の帳が下りるころ、部屋には穏やかな香りが漂い、心を落ち着けるひとときを演出します。
また、ASTILE原宿 401には、最新の設備が整っています。TVモニターホンで訪問者を確認し、安心して暮らすことができることは、まるで自分自身を守るための盾を持つかのような心強さがあります。エレベーターやオートロック、宅配ボックス、敷地内ゴミ置場、そして常にあなたの暮らしを見守る管理人が、日常生活をよりスムーズに、美しく彩ります。
そして、この物件はただの住まいではありません。周辺には、渋谷の歴史と文化、アートが息づく環境が広がっており、毎日が新しい発見に満ちています。近くの北参道駅からは、東京メトロ副都心線が便利に使え、さらに広がる世界への扉が開かれています。まるで自分が主演する映画のシーンが、次々に展開されるかのようです。
皆様がこのASTILE原宿 401で暮らすことで、日常は単なるルーチンではなく、まるで映画のワンシーンのように生き生きとしたドラマに満ちたものになることでしょう。魅力の詰まったこの場所で、新たな生活のページを開いてみませんか。あなたのストーリーが、ここから始まるのです。
この1LDKの間取りは、LDK8.7帖と洋室…ASTILE原宿 401。ここは単なる住居ではなく、日常生活の中に芸術や文化を感じることができるまさに「生活の舞台」と言える場所です。この美しい401号室は、北に面し、優れた光が静かに降り注ぎ、毎朝目覚めるたびに新たなインスピレーションを与えてくれることでしょう。専有面積38.32㎡の中に、生活する喜びと洗練されたデザインが巧みに融合しているのです。
この1LDKの間取りは、LDK8.7帖と洋室4.8帖から成り立っており、居住空間はまるで心の隙間を埋めるかのように優美に広がっています。あなたの日常が、この空間でどのような色彩を持つのか、想像するだけで心が躍ります。LDKに足を踏み入れると、まるで新しい映画のオープニングシーンに包み込まれるような感覚を覚えます。大きな窓からは、時の流れを感じさせる街の景色が広がり、日常の喧騒を一瞬忘れさせてくれるでしょう。
洋室は、穏やかな静寂に包まれた秘密の隠れ家のような存在。ここでの朝は、柔らかな光が差し込み、安らぎの中で目を覚ますことができます。ふかふかのマットレスに身を委ね、その感触が心地よく、まるで雲の上で眠っているかのようです。夜の帳が下りるころ、部屋には穏やかな香りが漂い、心を落ち着けるひとときを演出します。
また、ASTILE原宿 401には、最新の設備が整っています。TVモニターホンで訪問者を確認し、安心して暮らすことができることは、まるで自分自身を守るための盾を持つかのような心強さがあります。エレベーターやオートロック、宅配ボックス、敷地内ゴミ置場、そして常にあなたの暮らしを見守る管理人が、日常生活をよりスムーズに、美しく彩ります。
そして、この物件はただの住まいではありません。周辺には、渋谷の歴史と文化、アートが息づく環境が広がっており、毎日が新しい発見に満ちています。近くの北参道駅からは、東京メトロ副都心線が便利に使え、さらに広がる世界への扉が開かれています。まるで自分が主演する映画のシーンが、次々に展開されるかのようです。
皆様がこのASTILE原宿 401で暮らすことで、日常は単なるルーチンではなく、まるで映画のワンシーンのように生き生きとしたドラマに満ちたものになることでしょう。魅力の詰まったこの場所で、新たな生活のページを開いてみませんか。あなたのストーリーが、ここから始まるのです。
写真
現在写真が登録されていません契約条件
| 賃料 | 予想金額:226,000〜246,000円程度 | 管理費 | 予想金額:10,000〜14,000円程度 |
| 礼金 | 非公開(アーカイブ) | 敷金 | 非公開(アーカイブ) |
| フリーレント | 2ヶ月 | 平米数 | 38.32㎡ |
| 間取り | 1LDK | 大型収納 | なし |
| 契約期間 | 2年 | 方角 | 北 |
| 更新料 | 1ヶ月 | 契約形態 | 普通賃貸借契約 |
| 取引態様 | 媒介 | 内見状況 | 入居中 |
| 入居時期 | 入居中 | SOHO・事務所 | 不可 |
| ペット | 不可 | 間取り内訳 | LDK8.7帖 洋室4.8帖 |
| キャンペーン情報・備考 | 本情報は賃料改定交渉の資料作成、収益物件の利回り試算、周辺エリアや最寄り駅の坪単価分析、次回募集開始時期の予測などにご活用いただけます。 | ||
※「どの不動産に頼めばいいのか分からない」「信頼できる営業マンの話を聞きたい」「一番親切な会社と契約したい」とお悩みの方におすすめなのが「高級賃貸バイブル」です。
高級賃貸バイブルは業界10年以上の熟練スタッフ群がお客様ファーストで対応します。
下記ボタンから、まずは無料でご相談下さい。
※内覧をご希望の際には、どうぞ物件のエントランス前にてお待ち合わせくださいませ。ご内覧後は、同じ場所でお別れとさせていただきます。お客様のご都合に合わせたスムーズなご案内を心がけておりますので、ご質問等がございましたら何なりとお申し付けください。 物件概要
| 物件名 |
| 築年月 |
|
|---|---|---|---|
| 所在地 | |||
| 交通 | |||
| 総戸数 |
| 総階数 |
|
| 構造 |
| ||
地図
物件までの道のりは、「拡大地図を表示」をクリックしてナビ機能をご利用ください。
部屋設備









建物設備

TVモニターホン

エレベーター

オートロック

宅配ボックス

敷地内ゴミ置場

管理人
アスティーレ原宿の現在募集中のお部屋
- No rooms found for this property.
