
| 賃料 | 予想金額:80,000〜100,000円程度 | 管理費 | 予想金額:13,000〜17,000円程度 |
| 礼金/敷金 | 非公開(アーカイブ) | 平米数 | 25.04㎡ |
| 初期費用概算(参考) | 目安:7,000〜107,000 円 | みなし賃料(月額・参考) | 96,188〜116,188 円 |
| 備考 | 本ページは過去募集のアーカイブです。表示の金額は周辺相場・過去募集を踏まえた参考レンジであり、実際の契約金額・条件ではありません。 | ||
※上記みなし賃料(月額)は仲介手数料割引・無料&キャッシュバックを加味した高級賃貸バイブル限定の金額です。一般的なみなし賃料とは異なります。
【建物ページ】アルテシモクアルトの詳細・最新空室はこちら▶▶選ばれる理由
仲介手数料無料・キャンペーン情報(毎月15名様限定)
〇フリーレント1か月キャンペーン
〇仲介手数料無料キャンペーン
アルテシモクアルト 301の口コミ・レビュー
アルテシモクアルト 301。あなたの新しい生活が始まる舞台、その名を聞いただけで心が高揚することでしょう。この特別な空間は、東京都北区田端新町1-21-11に、その静かな佇まいを見せています。朝日が東から差し込むその窓からは、日々の始まりを告げる温かな光が差し込み、まるで新しい物語のページをめくるかのような感覚を味わえます。
アルテシモクアルト 301は、まさにセンスとスタイルが共存するデザイナ…アルテシモクアルト 301。あなたの新しい生活が始まる舞台、その名を聞いただけで心が高揚することでしょう。この特別な空間は、東京都北区田端新町1-21-11に、その静かな佇まいを見せています。朝日が東から差し込むその窓からは、日々の始まりを告げる温かな光が差し込み、まるで新しい物語のページをめくるかのような感覚を味わえます。
アルテシモクアルト 301は、まさにセンスとスタイルが共存するデザイナーズマンションです。あなたがこの部屋に足を踏み入れる瞬間、全身に感じる独特の空気感は、どこか特別なものを予感させます。まるで友人の家に招かれたかのような、居心地の良さと優雅さを兼ね備えています。従来の賃貸物件の枠を超え、生活そのものがアート作品であるかのように、あなたを包み込むのです。
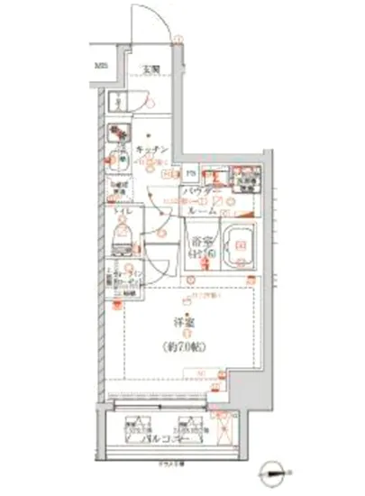
専有面積25.04㎡のこの1Kは、洋室7帖の広々とした空間を有し、ひとつの宇宙のように無限の可能性を秘めています。大きな窓から見える景色は、日常の喧騒を忘れさせてくれる静寂の中に、心の平穏をもたらします。ふかふかのカーペットの上で素足のまま過ごし、コーヒーの香ばしい香りに包まれる朝。ひんやりとした空気が肌に触れ、あなたの内側からリフレッシュされていくのを感じることでしょう。
アルテシモクアルト 301には、オートロックやTVモニターホンなどのセキュリティ設備が整っており、安心感もお約束します。また、宅配ボックスや敷地内ゴミ置場が完備されているため、忙しい日常の中でもストレスのない暮らしが実現します。そんな便利さも、まるで友人のように寄り添う存在として、あなたの生活をサポートしてくれるのです。
周辺には、歴史と文化が息づく街並みが広がっています。東京メトロ千代田線西日暮里駅から徒歩7分、静かで落ち着いた雰囲気に包まれたエリアは、アートギャラリーやカフェが点在し、クリエイティブなインスピレーションを与えてくれる場所でもあります。歴史を感じながらも新しいものを受け入れるこの街の魅力は、まるでアルテシモクアルト 301のスタイルそのものです。日々の暮らしがまるで映画のワンシーンのように彩られ、心に残る瞬間を演出してくれます。
アルテシモクアルト 301はただの住まいではなく、あなたの人生の舞台、そして新しい物語が生まれる場所。高級な生活とアートな日常を、ぜひ手に入れてみてはいかがでしょうか。あなたの新たな章が、ここから始まるのです。
アルテシモクアルト 301は、まさにセンスとスタイルが共存するデザイナ…アルテシモクアルト 301。あなたの新しい生活が始まる舞台、その名を聞いただけで心が高揚することでしょう。この特別な空間は、東京都北区田端新町1-21-11に、その静かな佇まいを見せています。朝日が東から差し込むその窓からは、日々の始まりを告げる温かな光が差し込み、まるで新しい物語のページをめくるかのような感覚を味わえます。
アルテシモクアルト 301は、まさにセンスとスタイルが共存するデザイナーズマンションです。あなたがこの部屋に足を踏み入れる瞬間、全身に感じる独特の空気感は、どこか特別なものを予感させます。まるで友人の家に招かれたかのような、居心地の良さと優雅さを兼ね備えています。従来の賃貸物件の枠を超え、生活そのものがアート作品であるかのように、あなたを包み込むのです。
専有面積25.04㎡のこの1Kは、洋室7帖の広々とした空間を有し、ひとつの宇宙のように無限の可能性を秘めています。大きな窓から見える景色は、日常の喧騒を忘れさせてくれる静寂の中に、心の平穏をもたらします。ふかふかのカーペットの上で素足のまま過ごし、コーヒーの香ばしい香りに包まれる朝。ひんやりとした空気が肌に触れ、あなたの内側からリフレッシュされていくのを感じることでしょう。
アルテシモクアルト 301には、オートロックやTVモニターホンなどのセキュリティ設備が整っており、安心感もお約束します。また、宅配ボックスや敷地内ゴミ置場が完備されているため、忙しい日常の中でもストレスのない暮らしが実現します。そんな便利さも、まるで友人のように寄り添う存在として、あなたの生活をサポートしてくれるのです。
周辺には、歴史と文化が息づく街並みが広がっています。東京メトロ千代田線西日暮里駅から徒歩7分、静かで落ち着いた雰囲気に包まれたエリアは、アートギャラリーやカフェが点在し、クリエイティブなインスピレーションを与えてくれる場所でもあります。歴史を感じながらも新しいものを受け入れるこの街の魅力は、まるでアルテシモクアルト 301のスタイルそのものです。日々の暮らしがまるで映画のワンシーンのように彩られ、心に残る瞬間を演出してくれます。
アルテシモクアルト 301はただの住まいではなく、あなたの人生の舞台、そして新しい物語が生まれる場所。高級な生活とアートな日常を、ぜひ手に入れてみてはいかがでしょうか。あなたの新たな章が、ここから始まるのです。
写真
現在写真が登録されていません契約条件
| 賃料 | 予想金額:80,000〜100,000円程度 | 管理費 | 予想金額:13,000〜17,000円程度 |
| 礼金 | 非公開(アーカイブ) | 敷金 | 非公開(アーカイブ) |
| フリーレント | 1.0ヶ月 | 平米数 | 25.04㎡ |
| 間取り | 1K | 大型収納 | |
| 契約期間 |
| 方角 | 東 |
| 更新料 | 契約形態 | 普通賃貸借契約 | |
| 取引態様 | 媒介 | 内見状況 | 入居中 |
| 入居時期 | 入居中 | SOHO・事務所 | |
| ペット | ペット可 | 間取り内訳 | 洋:7 |
| キャンペーン情報・備考 | 本情報は賃料改定交渉の資料作成、収益物件の利回り試算、周辺エリアや最寄り駅の坪単価分析、次回募集開始時期の予測などにご活用いただけます。 | ||
※「どの不動産に頼めばいいのか分からない」「信頼できる営業マンの話を聞きたい」「一番親切な会社と契約したい」とお悩みの方におすすめなのが「高級賃貸バイブル」です。
高級賃貸バイブルは業界10年以上の熟練スタッフ群がお客様ファーストで対応します。
下記ボタンから、まずは無料でご相談下さい。
※内覧をご希望の際には、どうぞ物件のエントランス前にてお待ち合わせくださいませ。ご内覧後は、同じ場所でお別れとさせていただきます。お客様のご都合に合わせたスムーズなご案内を心がけておりますので、ご質問等がございましたら何なりとお申し付けください。 物件概要
| 物件名 |
| 築年月 |
|
|---|---|---|---|
| 所在地 | |||
| 交通 | |||
| 総戸数 |
| 総階数 |
|
| 構造 |
| ||
地図
物件までの道のりは、「拡大地図を表示」をクリックしてナビ機能をご利用ください。
部屋設備














建物設備

TVモニターホン

エレベーター

オートロック

宅配ボックス

敷地内ゴミ置場

管理人

駐輪場
アルテシモクアルトの現在募集中のお部屋
- No rooms found for this property.
