
| 賃料 | 予想金額:91,000〜111,000円程度 | 管理費 | 予想金額:13,000〜17,000円程度 |
| 礼金/敷金 | 非公開(アーカイブ) | 平米数 | 26.15㎡ |
| 初期費用概算(参考) | 目安:22,800〜122,800 円 | みなし賃料(月額・参考) | 107,517〜127,517 円 |
| 備考 | 本ページは過去募集のアーカイブです。表示の金額は周辺相場・過去募集を踏まえた参考レンジであり、実際の契約金額・条件ではありません。 | ||
※上記みなし賃料(月額)は仲介手数料割引・無料&キャッシュバックを加味した高級賃貸バイブル限定の金額です。一般的なみなし賃料とは異なります。
【建物ページ】アルテシモクアルトの詳細・最新空室はこちら▶▶選ばれる理由
仲介手数料無料・キャンペーン情報(毎月15名様限定)
〇引っ越しお祝い金20200円プレゼント(キャッシュバック)
〇フリーレント1か月キャンペーン
〇仲介手数料無料キャンペーン
アルテシモクアルト 604の口コミ・レビュー
アルテシモクアルト 604。高級賃貸物件として皆様の心に安らぎの場所を約束するこの住まいは、まるで優雅な音楽が流れる中で、芳醇なワインを嗜むような贅沢なひとときを提供します。東京都北区田端新町という、歴史と文化が織りなすこの地に佇むアルテシモクアルト 604は、東向きの窓から朝日が優しく差し込み、潤いに満ちた生活の舞台を整えています。
あなたが立ち入るその瞬間、26.15㎡の空間が、あなたの五感…アルテシモクアルト 604。高級賃貸物件として皆様の心に安らぎの場所を約束するこの住まいは、まるで優雅な音楽が流れる中で、芳醇なワインを嗜むような贅沢なひとときを提供します。東京都北区田端新町という、歴史と文化が織りなすこの地に佇むアルテシモクアルト 604は、東向きの窓から朝日が優しく差し込み、潤いに満ちた生活の舞台を整えています。
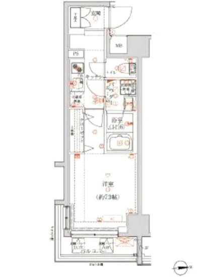
あなたが立ち入るその瞬間、26.15㎡の空間が、あなたの五感を刺激し、心の渇望を満たしてくれることでしょう。室内に足を踏み入れた瞬間、まるで大自然の中にいるかのような新鮮な空気が流れ込み、柔らかな光が壁をなでるのを感じます。7.3帖の洋室は、穏やかな風が通り抜けるように設計され、あなたの思考を次第に解きほぐし、創造的なエネルギーを呼び起こします。
アルテシモクアルト 604に住むことは、まるで一流の舞台を見ているかのような高揚感に包まれる体験です。設計はデザイナーズスタイルで、シンプルながらも美しいラインが生活空間を飾り、あなた自身の美意識を映し出します。キッチンから漂う香ばしいコーヒーの香りが、朝の穏やかな目覚めを演出し、週末のゆったりしたブランチを楽しむ姿を想像させます。
また、こちらの物件はオートロックやTVモニターホン、宅配ボックスも完備されており、安全で快適な生活をサポートします。エレベーターを使えば、気軽に自分だけの安らぎの空間へとアクセスできるのです。まるで、貴族のように優雅に、日常のすべての喧騒から解放されるかのような感覚を味わえます。
近隣には、歴史的な街並みが広がり、訪れるたびに新たな発見が待っています。東京メトロ千代田線の西日暮里駅から徒歩7分というアクセスも魅力的で、都会の中心地へのアクセスが容易にできるため、自然と文化が交わるこの土地での生活は、まるで映画のワンシーンのように彩られることでしょう。
アルテシモクアルト 604での生活は、毎日が特別な瞬間に満ちています。新しい朝を迎えるたびに、あなたの心をリフレッシュし、日常のストーリーを紡いでいく喜びを感じていただけることでしょう。さあ、この特別な空間に足を踏み入れ、アルテシモクアルト 604で新たな生活を始めてみませんか。あなたの心が求める場所、ここにあります。
あなたが立ち入るその瞬間、26.15㎡の空間が、あなたの五感…アルテシモクアルト 604。高級賃貸物件として皆様の心に安らぎの場所を約束するこの住まいは、まるで優雅な音楽が流れる中で、芳醇なワインを嗜むような贅沢なひとときを提供します。東京都北区田端新町という、歴史と文化が織りなすこの地に佇むアルテシモクアルト 604は、東向きの窓から朝日が優しく差し込み、潤いに満ちた生活の舞台を整えています。
あなたが立ち入るその瞬間、26.15㎡の空間が、あなたの五感を刺激し、心の渇望を満たしてくれることでしょう。室内に足を踏み入れた瞬間、まるで大自然の中にいるかのような新鮮な空気が流れ込み、柔らかな光が壁をなでるのを感じます。7.3帖の洋室は、穏やかな風が通り抜けるように設計され、あなたの思考を次第に解きほぐし、創造的なエネルギーを呼び起こします。
アルテシモクアルト 604に住むことは、まるで一流の舞台を見ているかのような高揚感に包まれる体験です。設計はデザイナーズスタイルで、シンプルながらも美しいラインが生活空間を飾り、あなた自身の美意識を映し出します。キッチンから漂う香ばしいコーヒーの香りが、朝の穏やかな目覚めを演出し、週末のゆったりしたブランチを楽しむ姿を想像させます。
また、こちらの物件はオートロックやTVモニターホン、宅配ボックスも完備されており、安全で快適な生活をサポートします。エレベーターを使えば、気軽に自分だけの安らぎの空間へとアクセスできるのです。まるで、貴族のように優雅に、日常のすべての喧騒から解放されるかのような感覚を味わえます。
近隣には、歴史的な街並みが広がり、訪れるたびに新たな発見が待っています。東京メトロ千代田線の西日暮里駅から徒歩7分というアクセスも魅力的で、都会の中心地へのアクセスが容易にできるため、自然と文化が交わるこの土地での生活は、まるで映画のワンシーンのように彩られることでしょう。
アルテシモクアルト 604での生活は、毎日が特別な瞬間に満ちています。新しい朝を迎えるたびに、あなたの心をリフレッシュし、日常のストーリーを紡いでいく喜びを感じていただけることでしょう。さあ、この特別な空間に足を踏み入れ、アルテシモクアルト 604で新たな生活を始めてみませんか。あなたの心が求める場所、ここにあります。
バイブルスコア
バイブルスコア: 99.2
レア物件です、すぐ仮押さえしましょう!
このお部屋は、現在ご入居中のため空室情報はございません。ただし、将来的に募集が開始される際、バイブルスコアにおいて非常に高い評価が期待されます。特にご興味をお持ちの方は、今のうちにブックマークやお気に入りに登録していただくと、募集開始のお知らせをすぐに受け取ることができます。是非ともご検討くださいませ。
※バイブルスコア詳細はこちら
バイブルスコアとは独自のAI機械学習技術を利用した物件評価システムで、物件のおすすめ度を示します。最高得点は100点で、スコアが高いほど、よりおすすめの物件と評価されています。
写真
現在写真が登録されていません契約条件
| 賃料 | 予想金額:91,000〜111,000円程度 | 管理費 | 予想金額:13,000〜17,000円程度 |
| 礼金 | 非公開(アーカイブ) | 敷金 | 非公開(アーカイブ) |
| フリーレント | 1.0ヶ月 | 平米数 | 26.15㎡ |
| 間取り | 1K | 大型収納 | |
| 契約期間 | 2年 | 方角 | 東 |
| 更新料 | 1ヶ月 | 契約形態 | 普通賃貸借契約 |
| 取引態様 | 媒介 | 内見状況 | 入居中 |
| 入居時期 | 入居中 | SOHO・事務所 | |
| ペット | ペット可 | 間取り内訳 | 洋:7.3 |
| キャンペーン情報・備考 | 本情報は賃料改定交渉の資料作成、収益物件の利回り試算、周辺エリアや最寄り駅の坪単価分析、次回募集開始時期の予測などにご活用いただけます。 | ||
※「どの不動産に頼めばいいのか分からない」「信頼できる営業マンの話を聞きたい」「一番親切な会社と契約したい」とお悩みの方におすすめなのが「高級賃貸バイブル」です。
高級賃貸バイブルは業界10年以上の熟練スタッフ群がお客様ファーストで対応します。
下記ボタンから、まずは無料でご相談下さい。
※内覧をご希望の際には、どうぞ物件のエントランス前にてお待ち合わせくださいませ。ご内覧後は、同じ場所でお別れとさせていただきます。お客様のご都合に合わせたスムーズなご案内を心がけておりますので、ご質問等がございましたら何なりとお申し付けください。 物件概要
| 物件名 |
| 築年月 |
|
|---|---|---|---|
| 所在地 | |||
| 交通 | |||
| 総戸数 |
| 総階数 |
|
| 構造 |
| ||
地図
物件までの道のりは、「拡大地図を表示」をクリックしてナビ機能をご利用ください。
部屋設備














建物設備

TVモニターホン

エレベーター

オートロック

宅配ボックス

敷地内ゴミ置場

管理人

駐輪場
アルテシモクアルトの現在募集中のお部屋
- No rooms found for this property.
