
| 賃料 | 予想金額:117,000〜137,000円程度 | 管理費 | 予想金額:8,000〜12,000円程度 |
| 礼金/敷金 | 非公開(アーカイブ) | 平米数 | 43.85㎡ |
| 初期費用概算(参考) | 目安:0〜72,300 円 | みなし賃料(月額・参考) | 127,465〜147,465 円 |
| 備考 | 本ページは過去募集のアーカイブです。表示の金額は周辺相場・過去募集を踏まえた参考レンジであり、実際の契約金額・条件ではありません。 | ||
※上記みなし賃料(月額)は仲介手数料割引・無料&キャッシュバックを加味した高級賃貸バイブル限定の金額です。一般的なみなし賃料とは異なります。
【建物ページ】アルファコート東あずまの詳細・最新空室はこちら▶▶選ばれる理由
仲介手数料無料・キャンペーン情報(毎月15名様限定)
〇引っ越しお祝い金203200円プレゼント(キャッシュバック)
〇フリーレント2か月キャンペーン
〇仲介手数料無料キャンペーン
アルファコート東あずま 107の口コミ・レビュー
アルファコート東あずま 107は、まるで名作映画の舞台のように、あなたの生活を芸術的に彩る特別な場所です。この物件は、東京都墨田区立花6-1-13に位置し、優れた利便性と静けさが交差する場所で、あなたをお待ちしています。家に帰るたびに、穏やかな西の風が心地よくあなたを包み込み、日々の疲れを癒してくれることでしょう。
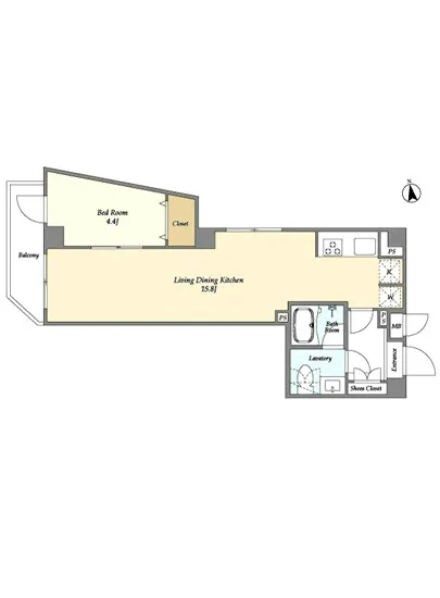
この1LDKの間取り、洋室4.4帖とLDK15.8帖は、まさに生活の舞台としての…アルファコート東あずま 107は、まるで名作映画の舞台のように、あなたの生活を芸術的に彩る特別な場所です。この物件は、東京都墨田区立花6-1-13に位置し、優れた利便性と静けさが交差する場所で、あなたをお待ちしています。家に帰るたびに、穏やかな西の風が心地よくあなたを包み込み、日々の疲れを癒してくれることでしょう。
この1LDKの間取り、洋室4.4帖とLDK15.8帖は、まさに生活の舞台としての役割を果たします。LDKは広々としており、家族や友人と共に過ごす温かな時間を演出してくれます。朝の光が差し込み、香ばしいコーヒーの香りに包まれながら、心地良いソファに身を沈める瞬間を思い描いてみてください。また、夕暮れ時には、落ち着いた西の空の色彩と共に、ワインを片手に優雅にライティングを楽しむことができるのです。
アルファコート東あずま 107は、ただの住空間ではありません。TVモニターホンやオートロックなどの充実した設備が、あなたの生活を守ります。宅配ボックスに届く小さな贈り物や、管理人の優しい笑顔が、日常に安らぎをもたらしてくれることでしょう。駐輪場も完備されており、自転車での街散策も気軽に楽しむことができます。墨田区の文化や歴史を感じながら、あなたの時間が美しく流れていくことでしょう。
さらに、この地は、周囲の優雅な風景と文化的なエッセンスに恵まれています。地元のアートギャラリーや静かな公園、歴史的な建物が織りなす風景は、まるであなたを映画の中の主人公として迎え入れるかのようです。街を散策し、耳をすませば、地元の人々の笑い声や、かすかな風に乗ってくる花の香り、さらには遠くで聞こえる子供たちの遊ぶ声が、心に響きます。
アルファコート東あずま 107での生活は、日常の中に豊かな物語を紡ぎ出します。新しい人生の一章をスタートさせるには、これ以上の舞台はありません。この特別な空間で、あなたの夢や想いを実現させてください。ここから始まる日々が、まるで心温まる映画のワンシーンのように、色鮮やかにあなたの心に映ることでしょう。あなたの新しい生活が、アルファコート東あずま 107で待っています。ここから、あなたの物語を始めましょう。
この1LDKの間取り、洋室4.4帖とLDK15.8帖は、まさに生活の舞台としての…アルファコート東あずま 107は、まるで名作映画の舞台のように、あなたの生活を芸術的に彩る特別な場所です。この物件は、東京都墨田区立花6-1-13に位置し、優れた利便性と静けさが交差する場所で、あなたをお待ちしています。家に帰るたびに、穏やかな西の風が心地よくあなたを包み込み、日々の疲れを癒してくれることでしょう。
この1LDKの間取り、洋室4.4帖とLDK15.8帖は、まさに生活の舞台としての役割を果たします。LDKは広々としており、家族や友人と共に過ごす温かな時間を演出してくれます。朝の光が差し込み、香ばしいコーヒーの香りに包まれながら、心地良いソファに身を沈める瞬間を思い描いてみてください。また、夕暮れ時には、落ち着いた西の空の色彩と共に、ワインを片手に優雅にライティングを楽しむことができるのです。
アルファコート東あずま 107は、ただの住空間ではありません。TVモニターホンやオートロックなどの充実した設備が、あなたの生活を守ります。宅配ボックスに届く小さな贈り物や、管理人の優しい笑顔が、日常に安らぎをもたらしてくれることでしょう。駐輪場も完備されており、自転車での街散策も気軽に楽しむことができます。墨田区の文化や歴史を感じながら、あなたの時間が美しく流れていくことでしょう。
さらに、この地は、周囲の優雅な風景と文化的なエッセンスに恵まれています。地元のアートギャラリーや静かな公園、歴史的な建物が織りなす風景は、まるであなたを映画の中の主人公として迎え入れるかのようです。街を散策し、耳をすませば、地元の人々の笑い声や、かすかな風に乗ってくる花の香り、さらには遠くで聞こえる子供たちの遊ぶ声が、心に響きます。
アルファコート東あずま 107での生活は、日常の中に豊かな物語を紡ぎ出します。新しい人生の一章をスタートさせるには、これ以上の舞台はありません。この特別な空間で、あなたの夢や想いを実現させてください。ここから始まる日々が、まるで心温まる映画のワンシーンのように、色鮮やかにあなたの心に映ることでしょう。あなたの新しい生活が、アルファコート東あずま 107で待っています。ここから、あなたの物語を始めましょう。
バイブルスコア
バイブルスコア: 26.9
平均的なスコアです。
※バイブルスコア詳細はこちら
バイブルスコアとは独自のAI機械学習技術を利用した物件評価システムで、物件のおすすめ度を示します。最高得点は100点で、スコアが高いほど、よりおすすめの物件と評価されています。
写真
契約条件
| 賃料 | 予想金額:117,000〜137,000円程度 | 管理費 | 予想金額:8,000〜12,000円程度 |
| 礼金 | 非公開(アーカイブ) | 敷金 | 非公開(アーカイブ) |
| フリーレント | 2.0ヶ月 | 平米数 | 43.85㎡ |
| 間取り | 1LDK | 大型収納 | |
| 契約期間 |
| 方角 | 西 |
| 更新料 | 契約形態 | 普通賃貸借契約 | |
| 取引態様 | 媒介 | 内見状況 | 入居中 |
| 入居時期 | 入居中 | SOHO・事務所 | |
| ペット | 間取り内訳 | 洋:4.4 LDK:15.8 | |
| キャンペーン情報・備考 | 本情報は賃料改定交渉の資料作成、収益物件の利回り試算、周辺エリアや最寄り駅の坪単価分析、次回募集開始時期の予測などにご活用いただけます。 | ||
※「どの不動産に頼めばいいのか分からない」「信頼できる営業マンの話を聞きたい」「一番親切な会社と契約したい」とお悩みの方におすすめなのが「高級賃貸バイブル」です。
高級賃貸バイブルは業界10年以上の熟練スタッフ群がお客様ファーストで対応します。
下記ボタンから、まずは無料でご相談下さい。
※内覧をご希望の際には、どうぞ物件のエントランス前にてお待ち合わせくださいませ。ご内覧後は、同じ場所でお別れとさせていただきます。お客様のご都合に合わせたスムーズなご案内を心がけておりますので、ご質問等がございましたら何なりとお申し付けください。 物件概要
| 物件名 |
| 築年月 |
|
|---|---|---|---|
| 所在地 | |||
| 交通 | |||
| 総戸数 |
| 総階数 |
|
| 構造 |
| ||
地図
物件までの道のりは、「拡大地図を表示」をクリックしてナビ機能をご利用ください。
部屋設備













建物設備

TVモニターホン

エレベーター

オートロック

宅配ボックス

敷地内ゴミ置場

管理人

駐輪場
アルファコート東あずまの現在募集中のお部屋
- No rooms found for this property.





























