
| 賃料 | 予想金額:200,000〜220,000円程度 | 管理費 | 予想金額:8,000〜12,000円程度 |
| 礼金/敷金 | 非公開(アーカイブ) | 平米数 | 38.07㎡ |
| 初期費用概算(参考) | 目安:190,500〜290,500 円 | みなし賃料(月額・参考) | 210,635〜230,635 円 |
| 備考 | 本ページは過去募集のアーカイブです。表示の金額は周辺相場・過去募集を踏まえた参考レンジであり、実際の契約金額・条件ではありません。 | ||
※上記みなし賃料(月額)は仲介手数料割引・無料&キャッシュバックを加味した高級賃貸バイブル限定の金額です。一般的なみなし賃料とは異なります。
【建物ページ】コスモリード恵比寿の詳細・最新空室はこちら▶▶選ばれる理由
仲介手数料無料・キャンペーン情報(毎月15名様限定)
〇引っ越しお祝い金336000円プレゼント(キャッシュバック)
〇仲介手数料無料キャンペーン
コスモリード恵比寿 602の口コミ・レビュー
コスモリード恵比寿 602は、あなたの生活に新たな光をもたらす、まるで宝石のように輝く空間です。東京都目黒区三田2-11-11に位置するこの物件は、北東の方角から朝日が柔らかく差し込み、あなたの心を穏やかに包み込むことでしょう。602号室に足を踏み入れると、まず感じるのは、まるで自分だけの秘密の隠れ家にいるかのようなワクワク感です。
この1LDKの間取りは、LDが8.9帖、BRが6.1帖と、心地…コスモリード恵比寿 602は、あなたの生活に新たな光をもたらす、まるで宝石のように輝く空間です。東京都目黒区三田2-11-11に位置するこの物件は、北東の方角から朝日が柔らかく差し込み、あなたの心を穏やかに包み込むことでしょう。602号室に足を踏み入れると、まず感じるのは、まるで自分だけの秘密の隠れ家にいるかのようなワクワク感です。
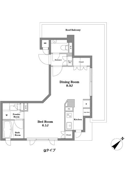
この1LDKの間取りは、LDが8.9帖、BRが6.1帖と、心地よい広さを提供し、あなたのライフスタイルにぴったりと寄り添います。ゆったりとしたリビングダイニングは、温かな光に満ち溢れ、家族や友人との語らいの場や、静かなひとときを楽しむための至福の空間となるでしょう。窓からの優しい風が、カーテンをそっと揺らす音に耳を傾けると、心の奥に響く嬉しさが広がります。
コスモリード恵比寿は、最新の設備を完備しており、TVモニターホンやオートロックが安全で快適な生活を実現します。宅配ボックスも完備されているため、忙しい日々の中で配送物を受け取るストレスからも解放されます。あなたの大切な宝物を、ここで大切に育てていけることでしょう。
この物件の魅力は単に居住空間にとどまりません。周辺には恵比寿の豊かな文化と歴史が息づいています。散策するたびに感じる香ばしいブレンドコーヒーの香りが、あなたをカフェのようなゆったりとした時間へと誘います。近隣にはアートギャラリーや小さなブティックが点在し、毎日の中に少しの非日常を加えてくれるでしょう。季節ごとに移り変わる街の表情が、あなたの感性を刺激します。
コスモリード恵比寿 602での生活は、まるで映画のワンシーンのように美しい瞬間の連続です。朝食を作る優雅なひととき、友人との歓談が弾む夜のひととき、静かな夕暮れに一杯のワインを片手に過ごすリラックスタイム。すべてがこの空間で叶うのです。手触りの良い素材が揃ったインテリアが、心を和ませ、居心地の良い空間を生み出します。
この特別な部屋を、あなたの未来の舞台にしてみてはいかがでしょうか。コスモリード恵比寿 602は、ただの住まいではなく、あなたの暮らしのストーリーを紡いでいく最良の相棒となることでしょう。さあ、彼女があなたを待っています。ここに住むことで、あなたの生活はきっと、想像を超える美しいものになるはずです。
この1LDKの間取りは、LDが8.9帖、BRが6.1帖と、心地…コスモリード恵比寿 602は、あなたの生活に新たな光をもたらす、まるで宝石のように輝く空間です。東京都目黒区三田2-11-11に位置するこの物件は、北東の方角から朝日が柔らかく差し込み、あなたの心を穏やかに包み込むことでしょう。602号室に足を踏み入れると、まず感じるのは、まるで自分だけの秘密の隠れ家にいるかのようなワクワク感です。
この1LDKの間取りは、LDが8.9帖、BRが6.1帖と、心地よい広さを提供し、あなたのライフスタイルにぴったりと寄り添います。ゆったりとしたリビングダイニングは、温かな光に満ち溢れ、家族や友人との語らいの場や、静かなひとときを楽しむための至福の空間となるでしょう。窓からの優しい風が、カーテンをそっと揺らす音に耳を傾けると、心の奥に響く嬉しさが広がります。
コスモリード恵比寿は、最新の設備を完備しており、TVモニターホンやオートロックが安全で快適な生活を実現します。宅配ボックスも完備されているため、忙しい日々の中で配送物を受け取るストレスからも解放されます。あなたの大切な宝物を、ここで大切に育てていけることでしょう。
この物件の魅力は単に居住空間にとどまりません。周辺には恵比寿の豊かな文化と歴史が息づいています。散策するたびに感じる香ばしいブレンドコーヒーの香りが、あなたをカフェのようなゆったりとした時間へと誘います。近隣にはアートギャラリーや小さなブティックが点在し、毎日の中に少しの非日常を加えてくれるでしょう。季節ごとに移り変わる街の表情が、あなたの感性を刺激します。
コスモリード恵比寿 602での生活は、まるで映画のワンシーンのように美しい瞬間の連続です。朝食を作る優雅なひととき、友人との歓談が弾む夜のひととき、静かな夕暮れに一杯のワインを片手に過ごすリラックスタイム。すべてがこの空間で叶うのです。手触りの良い素材が揃ったインテリアが、心を和ませ、居心地の良い空間を生み出します。
この特別な部屋を、あなたの未来の舞台にしてみてはいかがでしょうか。コスモリード恵比寿 602は、ただの住まいではなく、あなたの暮らしのストーリーを紡いでいく最良の相棒となることでしょう。さあ、彼女があなたを待っています。ここに住むことで、あなたの生活はきっと、想像を超える美しいものになるはずです。
バイブルスコア
バイブルスコア: 37.1
平均的なスコアです。
※バイブルスコア詳細はこちら
バイブルスコアとは独自のAI機械学習技術を利用した物件評価システムで、物件のおすすめ度を示します。最高得点は100点で、スコアが高いほど、よりおすすめの物件と評価されています。
写真
契約条件
| 賃料 | 予想金額:200,000〜220,000円程度 | 管理費 | 予想金額:8,000〜12,000円程度 |
| 礼金 | 非公開(アーカイブ) | 敷金 | 非公開(アーカイブ) |
| フリーレント | なし | 平米数 | 38.07㎡ |
| 間取り | 1LDK | 大型収納 | なし |
| 契約期間 | 2年 | 方角 | 北東 |
| 更新料 | 1ヶ月 | 契約形態 | 普通賃貸借契約 |
| 取引態様 | 媒介 | 内見状況 | 入居中 |
| 入居時期 | 入居中 | SOHO・事務所 | 不可 |
| ペット | ペット可 | 間取り内訳 | LD=8.9J / BR=6.1J |
| キャンペーン情報・備考 | 本情報は賃料改定交渉の資料作成、収益物件の利回り試算、周辺エリアや最寄り駅の坪単価分析、次回募集開始時期の予測などにご活用いただけます。 | ||
※「どの不動産に頼めばいいのか分からない」「信頼できる営業マンの話を聞きたい」「一番親切な会社と契約したい」とお悩みの方におすすめなのが「高級賃貸バイブル」です。
高級賃貸バイブルは業界10年以上の熟練スタッフ群がお客様ファーストで対応します。
下記ボタンから、まずは無料でご相談下さい。
※内覧をご希望の際には、どうぞ物件のエントランス前にてお待ち合わせくださいませ。ご内覧後は、同じ場所でお別れとさせていただきます。お客様のご都合に合わせたスムーズなご案内を心がけておりますので、ご質問等がございましたら何なりとお申し付けください。 物件概要
| 物件名 |
| 築年月 |
|
|---|---|---|---|
| 所在地 | |||
| 交通 | |||
| 総戸数 |
| 総階数 |
|
| 構造 |
| ||
地図
物件までの道のりは、「拡大地図を表示」をクリックしてナビ機能をご利用ください。
部屋設備




















建物設備

TVモニターホン

エレベーター

オートロック

宅配ボックス

敷地内ゴミ置場

駐車場機械式

駐輪場
コスモリード恵比寿の現在募集中のお部屋
- コスモリード恵比寿 302 - 間取り: 1LDK+WIC - 賃料: 23.2万円






