
| 賃料 | 予想金額:260,000〜280,000円程度 | 管理費 | 予想金額:8,000〜12,000円程度 |
| 礼金/敷金 | 非公開(アーカイブ) | 平米数 | 55.84㎡ |
| 初期費用概算(参考) | 目安:0〜-60,500 円 | みなし賃料(月額・参考) | 262,073〜282,073 円 |
| 備考 | 本ページは過去募集のアーカイブです。表示の金額は周辺相場・過去募集を踏まえた参考レンジであり、実際の契約金額・条件ではありません。 | ||
※上記みなし賃料(月額)は仲介手数料割引・無料&キャッシュバックを加味した高級賃貸バイブル限定の金額です。一般的なみなし賃料とは異なります。
【建物ページ】コスモリード恵比寿の詳細・最新空室はこちら▶▶選ばれる理由
仲介手数料無料・キャンペーン情報(毎月15名様限定)
〇引っ越しお祝い金837000円プレゼント(キャッシュバック)
〇仲介手数料無料キャンペーン
コスモリード恵比寿 205の口コミ・レビュー
コスモリード恵比寿 205。あなたの新しい生活がこの名前を呼ぶ時、まるで運命が交差する瞬間のように感じられることでしょう。東京都目黒区三田2-11-11に佇むこの物件は、南東の陽射しを優しく受け止め、一日を明るく彩る舞台装置のようです。205号室は、どこか特別な香りが漂う場所であり、あなたを心から迎え入れてくれることでしょう。
玄関の扉を開けた瞬間、目に飛び込んでくるのは、広々としたLDK(9.…コスモリード恵比寿 205。あなたの新しい生活がこの名前を呼ぶ時、まるで運命が交差する瞬間のように感じられることでしょう。東京都目黒区三田2-11-11に佇むこの物件は、南東の陽射しを優しく受け止め、一日を明るく彩る舞台装置のようです。205号室は、どこか特別な香りが漂う場所であり、あなたを心から迎え入れてくれることでしょう。
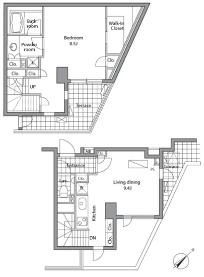
玄関の扉を開けた瞬間、目に飛び込んでくるのは、広々としたLDK(9.4帖)のスペース。ここは、まるでアートギャラリーのように、あなたの心に響く空間です。洗練された内装に囲まれながら、日々の暮らしを楽しむあなたの姿が目に浮かびます。朝の光が心地よく差し込み、コーヒーの香りがキッチンから漂い、ほっと一息つく瞬間、あなたはまるで映画のワンシーンの主人公になったかのように感じるはずです。リビングから見える窓の外には、緑豊かな景色が広がり、穏やかな風がささやくように心を癒してくれます。
次に訪れるのは、温もりに包まれた寝室(8.5帖)。ここは、あなたの夢が羽ばたく場所であり、静かな夜の営みを見守る心強いパートナーです。柔らかな寝具に身を沈める瞬間、沈黙の中に広がる静けさは、どこか心の琴線に触れ、安らぎをもたらすでしょう。目覚めた時には、フレッシュな朝の空気とともに、新たな一日が始まる喜びを感じることでしょう。
コスモリード恵比寿 205には、最新の設備も充実しています。TVモニターホンで訪問者を確認したり、エレベーターで優雅に移動したり、どこにいても安心感があります。その一方で、オートロックのセキュリティがあなたのプライバシーを守り、宅配ボックスが生活をより便利にしてくれます。敷地内には、駐車場や駐輪場も完備されており、あなたのライフスタイルに寄り添った快適な暮らしを実現します。
周囲には、恵比寿の街並みが広がり、その文化や歴史を感じながら、散歩をする楽しみもあります。隣接するカフェやレストランの香ばしい香りに誘われて、毎日の食事が一層特別なものになることでしょう。美術館やギャラリーも点在し、心を豊かにするアートとの出会いが、日常の中に彩りを加えてくれます。
コスモリード恵比寿 205は、ただの住まいではなく、あなたの人生のストーリーを紡ぐ舞台なのです。ここでの生活は、まるで美しい音楽のように調和し、あなたの心を躍らせることでしょう。新たな生活を始めるあなたを、優雅に迎え入れてくれるこの場所で、素晴らしい未来が待っていることでしょう。あなたの物語がここから始まるのです。
玄関の扉を開けた瞬間、目に飛び込んでくるのは、広々としたLDK(9.…コスモリード恵比寿 205。あなたの新しい生活がこの名前を呼ぶ時、まるで運命が交差する瞬間のように感じられることでしょう。東京都目黒区三田2-11-11に佇むこの物件は、南東の陽射しを優しく受け止め、一日を明るく彩る舞台装置のようです。205号室は、どこか特別な香りが漂う場所であり、あなたを心から迎え入れてくれることでしょう。
玄関の扉を開けた瞬間、目に飛び込んでくるのは、広々としたLDK(9.4帖)のスペース。ここは、まるでアートギャラリーのように、あなたの心に響く空間です。洗練された内装に囲まれながら、日々の暮らしを楽しむあなたの姿が目に浮かびます。朝の光が心地よく差し込み、コーヒーの香りがキッチンから漂い、ほっと一息つく瞬間、あなたはまるで映画のワンシーンの主人公になったかのように感じるはずです。リビングから見える窓の外には、緑豊かな景色が広がり、穏やかな風がささやくように心を癒してくれます。
次に訪れるのは、温もりに包まれた寝室(8.5帖)。ここは、あなたの夢が羽ばたく場所であり、静かな夜の営みを見守る心強いパートナーです。柔らかな寝具に身を沈める瞬間、沈黙の中に広がる静けさは、どこか心の琴線に触れ、安らぎをもたらすでしょう。目覚めた時には、フレッシュな朝の空気とともに、新たな一日が始まる喜びを感じることでしょう。
コスモリード恵比寿 205には、最新の設備も充実しています。TVモニターホンで訪問者を確認したり、エレベーターで優雅に移動したり、どこにいても安心感があります。その一方で、オートロックのセキュリティがあなたのプライバシーを守り、宅配ボックスが生活をより便利にしてくれます。敷地内には、駐車場や駐輪場も完備されており、あなたのライフスタイルに寄り添った快適な暮らしを実現します。
周囲には、恵比寿の街並みが広がり、その文化や歴史を感じながら、散歩をする楽しみもあります。隣接するカフェやレストランの香ばしい香りに誘われて、毎日の食事が一層特別なものになることでしょう。美術館やギャラリーも点在し、心を豊かにするアートとの出会いが、日常の中に彩りを加えてくれます。
コスモリード恵比寿 205は、ただの住まいではなく、あなたの人生のストーリーを紡ぐ舞台なのです。ここでの生活は、まるで美しい音楽のように調和し、あなたの心を躍らせることでしょう。新たな生活を始めるあなたを、優雅に迎え入れてくれるこの場所で、素晴らしい未来が待っていることでしょう。あなたの物語がここから始まるのです。
バイブルスコア
バイブルスコア: 33.9
平均的なスコアです。
※バイブルスコア詳細はこちら
バイブルスコアとは独自のAI機械学習技術を利用した物件評価システムで、物件のおすすめ度を示します。最高得点は100点で、スコアが高いほど、よりおすすめの物件と評価されています。
写真
契約条件
| 賃料 | 予想金額:260,000〜280,000円程度 | 管理費 | 予想金額:8,000〜12,000円程度 |
| 礼金 | 非公開(アーカイブ) | 敷金 | 非公開(アーカイブ) |
| フリーレント | なし | 平米数 | 55.84㎡ |
| 間取り | 1LDK | 大型収納 | WIC |
| 契約期間 | 2年 | 方角 | 南東 |
| 更新料 | 1ヶ月 | 契約形態 | 普通賃貸借契約 |
| 取引態様 | 媒介 | 内見状況 | 入居中 |
| 入居時期 | 入居中 | SOHO・事務所 | 不可 |
| ペット | ペット可 | 間取り内訳 | LDK=9.4J / BR=8.5J |
| キャンペーン情報・備考 | 本情報は賃料改定交渉の資料作成、収益物件の利回り試算、周辺エリアや最寄り駅の坪単価分析、次回募集開始時期の予測などにご活用いただけます。 | ||
※「どの不動産に頼めばいいのか分からない」「信頼できる営業マンの話を聞きたい」「一番親切な会社と契約したい」とお悩みの方におすすめなのが「高級賃貸バイブル」です。
高級賃貸バイブルは業界10年以上の熟練スタッフ群がお客様ファーストで対応します。
下記ボタンから、まずは無料でご相談下さい。
※内覧をご希望の際には、どうぞ物件のエントランス前にてお待ち合わせくださいませ。ご内覧後は、同じ場所でお別れとさせていただきます。お客様のご都合に合わせたスムーズなご案内を心がけておりますので、ご質問等がございましたら何なりとお申し付けください。 物件概要
| 物件名 |
| 築年月 |
|
|---|---|---|---|
| 所在地 | |||
| 交通 | |||
| 総戸数 |
| 総階数 |
|
| 構造 |
| ||
地図
物件までの道のりは、「拡大地図を表示」をクリックしてナビ機能をご利用ください。
部屋設備





















建物設備

TVモニターホン

エレベーター

オートロック

宅配ボックス

敷地内ゴミ置場

駐車場機械式

駐輪場
コスモリード恵比寿の現在募集中のお部屋
- コスモリード恵比寿 302 - 間取り: 1LDK+WIC - 賃料: 23.2万円






