
| 賃料 | 予想金額:168,000〜188,000円程度 | 管理費 | 予想金額:13,000〜17,000円程度 |
| 礼金/敷金 | 非公開(アーカイブ) | 平米数 | 61.65㎡ |
| 初期費用概算(参考) | 目安:509,000〜609,000 円 | みなし賃料(月額・参考) | 190,938〜210,938 円 |
| 備考 | 本ページは過去募集のアーカイブです。表示の金額は周辺相場・過去募集を踏まえた参考レンジであり、実際の契約金額・条件ではありません。 | ||
※上記みなし賃料(月額)は仲介手数料割引・無料&キャッシュバックを加味した高級賃貸バイブル限定の金額です。一般的なみなし賃料とは異なります。
【建物ページ】東雲キャナルコートCODANの詳細・最新空室はこちら▶▶選ばれる理由
仲介手数料無料・キャンペーン情報(毎月15名様限定)
〇仲介手数料割引キャンペーン
東雲キャナルコートCODAN18号棟 802の口コミ・レビュー
東雲キャナルコートCODAN18号棟 802は、まるで一つの芸術作品が静かに佇んでいるかのようです。東京都江東区東雲1-9に位置し、その優雅な存在は、まるで流れる水のように心を和ませてくれます。この特別な802号室に足を踏み入れるその瞬間から、あなたの生活が映画のワンシーンへと変貌することを約束します。61.65㎡という広さは、日々の暮らしに必要な空間を提供するだけでなく、心と体が自由に舞うための…東雲キャナルコートCODAN18号棟 802は、まるで一つの芸術作品が静かに佇んでいるかのようです。東京都江東区東雲1-9に位置し、その優雅な存在は、まるで流れる水のように心を和ませてくれます。この特別な802号室に足を踏み入れるその瞬間から、あなたの生活が映画のワンシーンへと変貌することを約束します。61.65㎡という広さは、日々の暮らしに必要な空間を提供するだけでなく、心と体が自由に舞うための舞台となります。
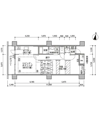
このお部屋の奥には、10.1帖のLDが広がり、眩い西側の光が差し込むと、まるで金色の絨毯の上を歩くような感覚に包まれます。あなたの日常に新たなストーリーを紡ぎ出すための、完璧な場所です。朝のコーヒーの香りが漂う中、柔らかい木のぬくもりに包まれながら、窓の外に広がる街の景色を楽しむ。この瞬間が、清々しい日々の始まりを告げてくれることでしょう。
さらに、3.7帖のキッチンは、料理をする喜びを倍増させるために設計されています。新鮮な素材を切る音、沸騰する鍋の音、そして香ばしい香りが立ち上るキッチンはまるで、あなた専用の料理スタジオ。仲間や家族と共に、笑い声が響く楽しい食卓を囲む瞬間を想像すると、心も温かくなります。
そして、8.7帖のベッドルーム。この空間は、静寂と安らぎを提供します。柔らかいシーツに包まれ、穏やかな夢を描きながら、心地よい眠りに身を委ねることでしょう。朝日が窓を染める頃、目を覚ますと、素晴らしい新しい一日が待っていることを感じられる、そんな特別な場所です。
東雲キャナルコートCODAN18号棟 802はまた、生活の利便性を考慮した設備も充実しています。エレベーターやオートロックにより、安心と快適さが日常に溶け込んでいます。バイク置場や駐輪場は、車や自転車を使って新しい冒険に出発するための玄関口ともなるでしょう。
近隣の辰巳駅からは、東京メトロ有楽町線を使って、刺激的な都市生活にもすぐにアクセスできます。歴史や文化が根付くこの街の風情は、あなたの生活をさらに豊かに彩ることでしょう。公園や水辺の自然もあり、散策やジョギングを楽しむには最適な環境が整っています。
このように、東雲キャナルコートCODAN18号棟 802は、ただの居住空間にとどまらず、あなたの人生の舞台となるべく、ささやきかけているのです。あなたの新たな生活が、この素晴らしい場所で幕を開けることを、心より待ち望んでいます。
このお部屋の奥には、10.1帖のLDが広がり、眩い西側の光が差し込むと、まるで金色の絨毯の上を歩くような感覚に包まれます。あなたの日常に新たなストーリーを紡ぎ出すための、完璧な場所です。朝のコーヒーの香りが漂う中、柔らかい木のぬくもりに包まれながら、窓の外に広がる街の景色を楽しむ。この瞬間が、清々しい日々の始まりを告げてくれることでしょう。
さらに、3.7帖のキッチンは、料理をする喜びを倍増させるために設計されています。新鮮な素材を切る音、沸騰する鍋の音、そして香ばしい香りが立ち上るキッチンはまるで、あなた専用の料理スタジオ。仲間や家族と共に、笑い声が響く楽しい食卓を囲む瞬間を想像すると、心も温かくなります。
そして、8.7帖のベッドルーム。この空間は、静寂と安らぎを提供します。柔らかいシーツに包まれ、穏やかな夢を描きながら、心地よい眠りに身を委ねることでしょう。朝日が窓を染める頃、目を覚ますと、素晴らしい新しい一日が待っていることを感じられる、そんな特別な場所です。
東雲キャナルコートCODAN18号棟 802はまた、生活の利便性を考慮した設備も充実しています。エレベーターやオートロックにより、安心と快適さが日常に溶け込んでいます。バイク置場や駐輪場は、車や自転車を使って新しい冒険に出発するための玄関口ともなるでしょう。
近隣の辰巳駅からは、東京メトロ有楽町線を使って、刺激的な都市生活にもすぐにアクセスできます。歴史や文化が根付くこの街の風情は、あなたの生活をさらに豊かに彩ることでしょう。公園や水辺の自然もあり、散策やジョギングを楽しむには最適な環境が整っています。
このように、東雲キャナルコートCODAN18号棟 802は、ただの居住空間にとどまらず、あなたの人生の舞台となるべく、ささやきかけているのです。あなたの新たな生活が、この素晴らしい場所で幕を開けることを、心より待ち望んでいます。
バイブルスコア
バイブルスコア: 21.4
平均的なスコアです。
※バイブルスコア詳細はこちら
バイブルスコアとは独自のAI機械学習技術を利用した物件評価システムで、物件のおすすめ度を示します。最高得点は100点で、スコアが高いほど、よりおすすめの物件と評価されています。
写真
現在写真が登録されていません契約条件
| 賃料 | 予想金額:168,000〜188,000円程度 | 管理費 | 予想金額:13,000〜17,000円程度 |
| 礼金 | 非公開(アーカイブ) | 敷金 | 非公開(アーカイブ) |
| フリーレント | なし | 平米数 | 61.65㎡ |
| 間取り | 1LDK | 大型収納 | |
| 契約期間 |
| 方角 | 西 |
| 更新料 | 契約形態 | 普通賃貸借契約 | |
| 取引態様 | 媒介 | 内見状況 | 入居中 |
| 入居時期 | 入居中 | SOHO・事務所 | |
| ペット | 間取り内訳 | LD=10.1J / K=3.7J / BR=8.7J | |
| キャンペーン情報・備考 | 本情報は賃料改定交渉の資料作成、収益物件の利回り試算、周辺エリアや最寄り駅の坪単価分析、次回募集開始時期の予測などにご活用いただけます。 | ||
※「どの不動産に頼めばいいのか分からない」「信頼できる営業マンの話を聞きたい」「一番親切な会社と契約したい」とお悩みの方におすすめなのが「高級賃貸バイブル」です。
高級賃貸バイブルは業界10年以上の熟練スタッフ群がお客様ファーストで対応します。
下記ボタンから、まずは無料でご相談下さい。
※内覧をご希望の際には、どうぞ物件のエントランス前にてお待ち合わせくださいませ。ご内覧後は、同じ場所でお別れとさせていただきます。お客様のご都合に合わせたスムーズなご案内を心がけておりますので、ご質問等がございましたら何なりとお申し付けください。 物件概要
| 物件名 |
| 築年月 |
|
|---|---|---|---|
| 所在地 | |||
| 交通 | |||
| 総戸数 |
| 総階数 |
|
| 構造 |
| ||
地図
物件までの道のりは、「拡大地図を表示」をクリックしてナビ機能をご利用ください。
部屋設備














建物設備

TVモニターホン

エレベーター

オートロック

バイク置場

宅配ボックス

敷地内ゴミ置場

管理人

駐車場平置き

駐車場機械式

駐輪場
東雲キャナルコートCODANの現在募集中のお部屋
- 東雲キャナルコートCODAN 18-802 - 間取り: 1LDK - 賃料: 19.5万円
- 東雲キャナルコートCODAN 20-707 - 間取り: 1SLDK - 賃料: 25.8万円
- 東雲キャナルコートCODAN 17-704 - 間取り: 1R - 賃料: 16.9万円
- 東雲キャナルコートCODAN 18-330 - 間取り: 1LDK - 賃料: 17.8万円
- 東雲キャナルコートCODAN 16-1003 - 間取り: 1SLDK+WIC - 賃料: 20.7万円
- 東雲キャナルコートCODAN 16-504 - 間取り: 1LDK+WIC - 賃料: 20.9万円
- 東雲キャナルコートCODAN 16-911 - 間取り: 1LDK - 賃料: 22.9万円
- 東雲キャナルコートCODAN 17-906 - 間取り: 1LDK - 賃料: 18.7万円
- 東雲キャナルコートCODAN 17-516 - 間取り: 1LDK - 賃料: 18.7万円
- 東雲キャナルコートCODAN 20-1106 - 間取り: 1SLDK+WIC - 賃料: 25.3万円
- 東雲キャナルコートCODAN 21-508 - 間取り: 2DK - 賃料: 26.3万円
- 東雲キャナルコートCODAN 16-1007 - 間取り: 1LDK+WIC - 賃料: 21.4万円
- 東雲キャナルコートCODAN 14-905 - 間取り: 2LDK+WIC - 賃料: 22.5万円
- 東雲キャナルコートCODAN 18-804 - 間取り: 2SLDK - 賃料: 24.7万円
- 東雲キャナルコートCODAN 18-703 - 間取り: 2LDK - 賃料: 24.5万円
- 東雲キャナルコートCODAN 11-604 - 間取り: 3LDK - 賃料: 27万円
- 東雲キャナルコートCODAN 11-208 - 間取り: 3LDK - 賃料: 29万円
- 東雲キャナルコートCODAN 16-1102 - 間取り: 1LDK+WIC - 賃料: 21.4万円
- 東雲キャナルコートCODAN 14-513 - 間取り: 2DK - 賃料: 21.2万円
- 東雲キャナルコートCODAN19号棟 908 - 間取り: 2SLDK - 賃料: 21万円
- 東雲キャナルコートCODAN 18-808 - 間取り: 1LDK - 賃料: 19.5万円
- 東雲キャナルコートCODAN 16-310 - 間取り: 1LDK+WIC - 賃料: 20.7万円
- 東雲キャナルコートCODAN 12-212 - 間取り: 1SLDK - 賃料: 15万円
- 東雲キャナルコートCODAN 12-812 - 間取り: 1LDK - 賃料: 19万円
- 東雲キャナルコートCODAN 18-505 - 間取り: 1LDK - 賃料: 17.8万円
- 東雲キャナルコートCODAN 12-604 - 間取り: 3LDK - 賃料: 30.5万円
- 東雲キャナルコートCODAN 20-305 - 間取り: 3LDK - 賃料: 30.5万円
