
| 賃料 | 予想金額:204,000〜224,000円程度 | 管理費 | 予想金額:13,000〜17,000円程度 |
| 礼金/敷金 | 非公開(アーカイブ) | 平米数 | 89.33㎡ |
| 初期費用概算(参考) | 目安:599,000〜699,000 円 | みなし賃料(月額・参考) | 228,063〜248,063 円 |
| 備考 | 本ページは過去募集のアーカイブです。表示の金額は周辺相場・過去募集を踏まえた参考レンジであり、実際の契約金額・条件ではありません。 | ||
※上記みなし賃料(月額)は仲介手数料割引・無料&キャッシュバックを加味した高級賃貸バイブル限定の金額です。一般的なみなし賃料とは異なります。
【建物ページ】東雲キャナルコートCODANの詳細・最新空室はこちら▶▶選ばれる理由
仲介手数料無料・キャンペーン情報(毎月15名様限定)
〇仲介手数料割引キャンペーン
東雲キャナルコートCODAN 20-903の口コミ・レビュー
東雲キャナルコートCODAN 20-903があなたの新たな住まいとして、心を温かく迎え入れてくれます。この洗練された高級賃貸物件は、東京都江東区東雲1-9の静謐な環境の中に佇み、まるで美術品のようにその存在感を放っています。専有面積89.33㎡の広がりをもつこのお部屋は、まさに都市の喧騒を忘れさせてくれるオアシスです。
あなたがこの物件のドアを開けると、どこか懐かしい香りが迎え入れてくれます。そ…東雲キャナルコートCODAN 20-903があなたの新たな住まいとして、心を温かく迎え入れてくれます。この洗練された高級賃貸物件は、東京都江東区東雲1-9の静謐な環境の中に佇み、まるで美術品のようにその存在感を放っています。専有面積89.33㎡の広がりをもつこのお部屋は、まさに都市の喧騒を忘れさせてくれるオアシスです。
あなたがこの物件のドアを開けると、どこか懐かしい香りが迎え入れてくれます。それは、新たな生活の始まりを象徴するような、温もりに満ちた木の香り。デザインの美しさだけでなく、生活の質を高めるための細やかな配慮が至る所に施されています。リビングには9帖の面積が広がり、陽光が西から優しく差し込むことで、あなたの心も温かく照らします。そこには、愛する人々と共に過ごす、映画のワンシーンのような穏やかなひとときが待っています。
キッチンは3.5帖というコンパクトさながら、料理への情熱をかきたてるレシピの舞台となるでしょう。フレッシュな食材と共にあなたの感性を刺激する、色鮮やかな料理の数々が、ここで生まれます。家族や友人との食卓で交わされる笑顔や会話は、その瞬間をより一層特別なものにしてくれます。
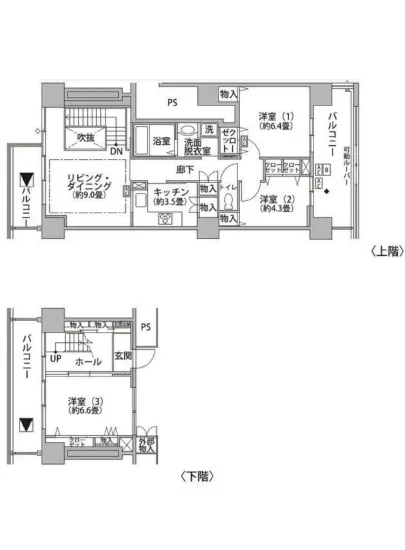
寝室は6.6帖、6.4帖、そして心地よい4.3帖の部屋があなたの安眠を約束します。それぞれの空間は、独自の横顔を持ちながらも、共鳴し合うことで一つのハーモニーを奏でます。夜空を見上げながら、静寂の中で心を整え、明日の希望に思いを馳せることができるのです。この部屋は、ただの空間ではなく、あなたの生活に色彩と深みを与える舞台です。
さらに、住まう方を見守るように設計された設備も、快適で安心な暮らしを支えます。エレベーターが瞬時に移動を助け、オートロックがあなたのプライバシーを守ります。バイク置場や駐車場も完備され、趣味やライフスタイルに合わせた自由な活動が可能です。また、宅配ボックスが設置されているため、忙しい日々の中でもスムーズな生活が実現します。
東雲キャナルコートCODAN 20-903は、その優れた立地も魅力の一つです。東京メトロ有楽町線の辰巳駅までわずか6分の距離にあり、都心へのアクセスも抜群です。周辺には美しい運河と親しみやすい公園が点在し、四季折々の自然の移ろいを感じることができるでしょう。歴史ある江東区の地は、古き良き文化と現代的なライフスタイルが共存する場所です。
この素晴らしい物件で、あなたの新たな生活が幕を開けるのです。目の前に広がる無限の可能性と共に、東雲キャナルコートCODAN 20-903が、あなたの心に寄り添いながら、毎日を特別なものへと変えていくのです。さあ、あなたの新しい物語をここから始めてみませんか。
あなたがこの物件のドアを開けると、どこか懐かしい香りが迎え入れてくれます。そ…東雲キャナルコートCODAN 20-903があなたの新たな住まいとして、心を温かく迎え入れてくれます。この洗練された高級賃貸物件は、東京都江東区東雲1-9の静謐な環境の中に佇み、まるで美術品のようにその存在感を放っています。専有面積89.33㎡の広がりをもつこのお部屋は、まさに都市の喧騒を忘れさせてくれるオアシスです。
あなたがこの物件のドアを開けると、どこか懐かしい香りが迎え入れてくれます。それは、新たな生活の始まりを象徴するような、温もりに満ちた木の香り。デザインの美しさだけでなく、生活の質を高めるための細やかな配慮が至る所に施されています。リビングには9帖の面積が広がり、陽光が西から優しく差し込むことで、あなたの心も温かく照らします。そこには、愛する人々と共に過ごす、映画のワンシーンのような穏やかなひとときが待っています。
キッチンは3.5帖というコンパクトさながら、料理への情熱をかきたてるレシピの舞台となるでしょう。フレッシュな食材と共にあなたの感性を刺激する、色鮮やかな料理の数々が、ここで生まれます。家族や友人との食卓で交わされる笑顔や会話は、その瞬間をより一層特別なものにしてくれます。
寝室は6.6帖、6.4帖、そして心地よい4.3帖の部屋があなたの安眠を約束します。それぞれの空間は、独自の横顔を持ちながらも、共鳴し合うことで一つのハーモニーを奏でます。夜空を見上げながら、静寂の中で心を整え、明日の希望に思いを馳せることができるのです。この部屋は、ただの空間ではなく、あなたの生活に色彩と深みを与える舞台です。
さらに、住まう方を見守るように設計された設備も、快適で安心な暮らしを支えます。エレベーターが瞬時に移動を助け、オートロックがあなたのプライバシーを守ります。バイク置場や駐車場も完備され、趣味やライフスタイルに合わせた自由な活動が可能です。また、宅配ボックスが設置されているため、忙しい日々の中でもスムーズな生活が実現します。
東雲キャナルコートCODAN 20-903は、その優れた立地も魅力の一つです。東京メトロ有楽町線の辰巳駅までわずか6分の距離にあり、都心へのアクセスも抜群です。周辺には美しい運河と親しみやすい公園が点在し、四季折々の自然の移ろいを感じることができるでしょう。歴史ある江東区の地は、古き良き文化と現代的なライフスタイルが共存する場所です。
この素晴らしい物件で、あなたの新たな生活が幕を開けるのです。目の前に広がる無限の可能性と共に、東雲キャナルコートCODAN 20-903が、あなたの心に寄り添いながら、毎日を特別なものへと変えていくのです。さあ、あなたの新しい物語をここから始めてみませんか。
バイブルスコア
バイブルスコア: 48.5
条件のいい物件です、引っ越しが2か月以内の場合は仮申し込みを検討すべき物件です。
※バイブルスコア詳細はこちら
バイブルスコアとは独自のAI機械学習技術を利用した物件評価システムで、物件のおすすめ度を示します。最高得点は100点で、スコアが高いほど、よりおすすめの物件と評価されています。
写真
現在写真が登録されていません契約条件
| 賃料 | 予想金額:204,000〜224,000円程度 | 管理費 | 予想金額:13,000〜17,000円程度 |
| 礼金 | 非公開(アーカイブ) | 敷金 | 非公開(アーカイブ) |
| フリーレント | なし | 平米数 | 89.33㎡ |
| 間取り | 3LDK | 大型収納 | |
| 契約期間 |
| 方角 | 西 |
| 更新料 | 契約形態 | 普通賃貸借契約 | |
| 取引態様 | 媒介 | 内見状況 | 入居中 |
| 入居時期 | 入居中 | SOHO・事務所 | |
| ペット | 間取り内訳 | LD=9J / K=3.5J / BR=6.6J , 6.4J , 4.3J | |
| キャンペーン情報・備考 | 本情報は賃料改定交渉の資料作成、収益物件の利回り試算、周辺エリアや最寄り駅の坪単価分析、次回募集開始時期の予測などにご活用いただけます。 | ||
※「どの不動産に頼めばいいのか分からない」「信頼できる営業マンの話を聞きたい」「一番親切な会社と契約したい」とお悩みの方におすすめなのが「高級賃貸バイブル」です。
高級賃貸バイブルは業界10年以上の熟練スタッフ群がお客様ファーストで対応します。
下記ボタンから、まずは無料でご相談下さい。
※内覧をご希望の際には、どうぞ物件のエントランス前にてお待ち合わせくださいませ。ご内覧後は、同じ場所でお別れとさせていただきます。お客様のご都合に合わせたスムーズなご案内を心がけておりますので、ご質問等がございましたら何なりとお申し付けください。 物件概要
| 物件名 |
| 築年月 |
|
|---|---|---|---|
| 所在地 | |||
| 交通 | |||
| 総戸数 |
| 総階数 |
|
| 構造 |
| ||
地図
物件までの道のりは、「拡大地図を表示」をクリックしてナビ機能をご利用ください。
部屋設備



















建物設備

TVモニターホン

エレベーター

オートロック

バイク置場

宅配ボックス

敷地内ゴミ置場

管理人

駐車場平置き

駐車場機械式

駐輪場
東雲キャナルコートCODANの現在募集中のお部屋
- 東雲キャナルコートCODAN 12-212 - 間取り: 1SLDK - 賃料: 15万円
- 東雲キャナルコートCODAN 18-802 - 間取り: 1LDK - 賃料: 19.5万円
- 東雲キャナルコートCODAN 20-707 - 間取り: 1SLDK - 賃料: 25.8万円
- 東雲キャナルコートCODAN 17-704 - 間取り: 1R - 賃料: 16.9万円
- 東雲キャナルコートCODAN 18-330 - 間取り: 1LDK - 賃料: 17.8万円
- 東雲キャナルコートCODAN 16-1003 - 間取り: 1SLDK+WIC - 賃料: 20.7万円
- 東雲キャナルコートCODAN 16-504 - 間取り: 1LDK+WIC - 賃料: 20.9万円
- 東雲キャナルコートCODAN 16-911 - 間取り: 1LDK - 賃料: 22.9万円
- 東雲キャナルコートCODAN 17-906 - 間取り: 1LDK - 賃料: 18.7万円
- 東雲キャナルコートCODAN 17-516 - 間取り: 1LDK - 賃料: 18.7万円
- 東雲キャナルコートCODAN 20-1106 - 間取り: 1SLDK+WIC - 賃料: 25.3万円
- 東雲キャナルコートCODAN 21-508 - 間取り: 2DK - 賃料: 26.3万円
- 東雲キャナルコートCODAN 16-1007 - 間取り: 1LDK+WIC - 賃料: 21.4万円
- 東雲キャナルコートCODAN 14-905 - 間取り: 2LDK+WIC - 賃料: 22.5万円
- 東雲キャナルコートCODAN 18-804 - 間取り: 2SLDK - 賃料: 24.7万円
- 東雲キャナルコートCODAN 18-703 - 間取り: 2LDK - 賃料: 24.5万円
- 東雲キャナルコートCODAN 11-604 - 間取り: 3LDK - 賃料: 27万円
- 東雲キャナルコートCODAN 11-208 - 間取り: 3LDK - 賃料: 29万円
- 東雲キャナルコートCODAN 16-1102 - 間取り: 1LDK+WIC - 賃料: 21.4万円
- 東雲キャナルコートCODAN 14-513 - 間取り: 2DK - 賃料: 21.2万円
- 東雲キャナルコートCODAN19号棟 908 - 間取り: 2SLDK - 賃料: 21万円
- 東雲キャナルコートCODAN 18-808 - 間取り: 1LDK - 賃料: 19.5万円
- 東雲キャナルコートCODAN 16-310 - 間取り: 1LDK+WIC - 賃料: 20.7万円
- 東雲キャナルコートCODAN 12-812 - 間取り: 1LDK - 賃料: 19万円
- 東雲キャナルコートCODAN 18-505 - 間取り: 1LDK - 賃料: 17.8万円
- 東雲キャナルコートCODAN 12-604 - 間取り: 3LDK - 賃料: 30.5万円
- 東雲キャナルコートCODAN 20-305 - 間取り: 3LDK - 賃料: 30.5万円
