
| 賃料 | 予想金額:200,000〜220,000円程度 | 管理費 | 予想金額:13,000〜17,000円程度 |
| 礼金/敷金 | 非公開(アーカイブ) | 平米数 | 60.69㎡ |
| 初期費用概算(参考) | 目安:408,000〜508,000 円 | みなし賃料(月額・参考) | 220,167〜240,167 円 |
| 備考 | 本ページは過去募集のアーカイブです。表示の金額は周辺相場・過去募集を踏まえた参考レンジであり、実際の契約金額・条件ではありません。 | ||
※上記みなし賃料(月額)は仲介手数料割引・無料&キャッシュバックを加味した高級賃貸バイブル限定の金額です。一般的なみなし賃料とは異なります。
【建物ページ】東雲キャナルコートCODANの詳細・最新空室はこちら▶▶選ばれる理由
仲介手数料無料・キャンペーン情報(毎月15名様限定)
〇引っ越しお祝い金126000円プレゼント(キャッシュバック)
〇仲介手数料無料キャンペーン
東雲キャナルコートCODAN18号棟 1017の口コミ・レビュー
東雲キャナルコートCODAN18号棟 1017、ここには都会の喧騒を忘れさせる、息をのむ美しい空間が広がっています。都心の喧騒を背に、静かな朝が訪れる頃、あなたはこの特別な場所で新たな生活の幕を開けるのです。専有面積60.69㎡のこの宝石のような住まいは、まさにあなたの心を豊かにするためのキャンバスです。
LDKは16.5帖の広さを誇り、その中心には心を温める光が降り注ぎます。朝日が柔らかく差し…東雲キャナルコートCODAN18号棟 1017、ここには都会の喧騒を忘れさせる、息をのむ美しい空間が広がっています。都心の喧騒を背に、静かな朝が訪れる頃、あなたはこの特別な場所で新たな生活の幕を開けるのです。専有面積60.69㎡のこの宝石のような住まいは、まさにあなたの心を豊かにするためのキャンバスです。
LDKは16.5帖の広さを誇り、その中心には心を温める光が降り注ぎます。朝日が柔らかく差し込み、目覚めたばかりのあなたを優しく包み込みます。芳醇なコーヒーの香りが漂う中、ゆったりとしたソファに身を沈め、その瞬間、静かに流れる時間を感じながら、まるで映画のワンシーンのように1日の始まりを迎えるのです。目の前に広がる景色は、緑豊かな東側の眺望。窓の外には穏やかな風が流れ、まるで自然と一体になったかのような感覚を与えてくれます。
2つの寝室、5.7帖の主寝室と4.3帖のセカンドルームは、どちらも落ち着きを与える空間です。夜の帳が降りれば、ベッドの柔らかな感触があなたを包み込み、夢の世界へと誘います。心地よい静けさの中で、あなたの想像力が羽を広げる瞬間を楽しむことができるでしょう。
東雲キャナルコートCODAN18号棟 1017には、まるでアートギャラリーのようなデザインが施されています。壁を彩る優美な色合いが、生活のストーリーに深みを与え、居心地の良さを演出します。オートロックの安全性や、便利な宅配ボックス、駐輪場に駐車場など、現代の生活者に必要な機能が洗練されています。この高級賃貸物件は、内なる自分を表現する場であり、同時に外界とのつながりを感じるための窓でもあるのです。
物件周辺には、歴史の香り漂う街並みやアートスポットが点在しています。東京メトロ有楽町線の辰巳駅から徒歩6分という立地は、都会のアクセスの良さを享受しつつ、心を豊かにする環境が揃っています。ふと立ち寄った近くの公園で、夕暮れの中で手を繋ぐ大切な人と時間を過ごし、穏やかな日常を楽しむ姿が目に浮かびます。
あなたがこの「東雲キャナルコートCODAN18号棟 1017」に住まうことで、日々がより色鮮やかに彩られ、生活が美しい物語に変わるでしょう。あなたのライフスタイルを高めるための舞台が、ここに用意されています。この特別な場所で、新たな章を刻む旅が始まります。お待ちしております。
LDKは16.5帖の広さを誇り、その中心には心を温める光が降り注ぎます。朝日が柔らかく差し…東雲キャナルコートCODAN18号棟 1017、ここには都会の喧騒を忘れさせる、息をのむ美しい空間が広がっています。都心の喧騒を背に、静かな朝が訪れる頃、あなたはこの特別な場所で新たな生活の幕を開けるのです。専有面積60.69㎡のこの宝石のような住まいは、まさにあなたの心を豊かにするためのキャンバスです。
LDKは16.5帖の広さを誇り、その中心には心を温める光が降り注ぎます。朝日が柔らかく差し込み、目覚めたばかりのあなたを優しく包み込みます。芳醇なコーヒーの香りが漂う中、ゆったりとしたソファに身を沈め、その瞬間、静かに流れる時間を感じながら、まるで映画のワンシーンのように1日の始まりを迎えるのです。目の前に広がる景色は、緑豊かな東側の眺望。窓の外には穏やかな風が流れ、まるで自然と一体になったかのような感覚を与えてくれます。
2つの寝室、5.7帖の主寝室と4.3帖のセカンドルームは、どちらも落ち着きを与える空間です。夜の帳が降りれば、ベッドの柔らかな感触があなたを包み込み、夢の世界へと誘います。心地よい静けさの中で、あなたの想像力が羽を広げる瞬間を楽しむことができるでしょう。
東雲キャナルコートCODAN18号棟 1017には、まるでアートギャラリーのようなデザインが施されています。壁を彩る優美な色合いが、生活のストーリーに深みを与え、居心地の良さを演出します。オートロックの安全性や、便利な宅配ボックス、駐輪場に駐車場など、現代の生活者に必要な機能が洗練されています。この高級賃貸物件は、内なる自分を表現する場であり、同時に外界とのつながりを感じるための窓でもあるのです。
物件周辺には、歴史の香り漂う街並みやアートスポットが点在しています。東京メトロ有楽町線の辰巳駅から徒歩6分という立地は、都会のアクセスの良さを享受しつつ、心を豊かにする環境が揃っています。ふと立ち寄った近くの公園で、夕暮れの中で手を繋ぐ大切な人と時間を過ごし、穏やかな日常を楽しむ姿が目に浮かびます。
あなたがこの「東雲キャナルコートCODAN18号棟 1017」に住まうことで、日々がより色鮮やかに彩られ、生活が美しい物語に変わるでしょう。あなたのライフスタイルを高めるための舞台が、ここに用意されています。この特別な場所で、新たな章を刻む旅が始まります。お待ちしております。
バイブルスコア
バイブルスコア: 4.2
高級な物件でない場合は割高な物件です。。
※バイブルスコア詳細はこちら
バイブルスコアとは独自のAI機械学習技術を利用した物件評価システムで、物件のおすすめ度を示します。最高得点は100点で、スコアが高いほど、よりおすすめの物件と評価されています。
写真
現在写真が登録されていません契約条件
| 賃料 | 予想金額:200,000〜220,000円程度 | 管理費 | 予想金額:13,000〜17,000円程度 |
| 礼金 | 非公開(アーカイブ) | 敷金 | 非公開(アーカイブ) |
| フリーレント | なし | 平米数 | 60.69㎡ |
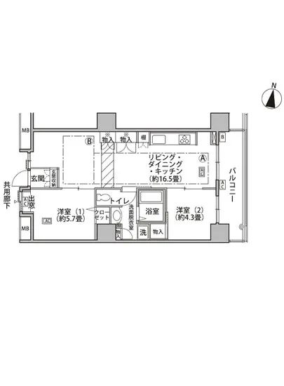
| 間取り | 2LDK | 大型収納 | |
| 契約期間 |
| 方角 | 東 |
| 更新料 | 契約形態 | 普通賃貸借契約 | |
| 取引態様 | 媒介 | 内見状況 | 入居中 |
| 入居時期 | 入居中 | SOHO・事務所 | |
| ペット | 間取り内訳 | LDK=16.5J / BR=5.7J / BR=4.3J | |
| キャンペーン情報・備考 | 本情報は賃料改定交渉の資料作成、収益物件の利回り試算、周辺エリアや最寄り駅の坪単価分析、次回募集開始時期の予測などにご活用いただけます。 | ||
※「どの不動産に頼めばいいのか分からない」「信頼できる営業マンの話を聞きたい」「一番親切な会社と契約したい」とお悩みの方におすすめなのが「高級賃貸バイブル」です。
高級賃貸バイブルは業界10年以上の熟練スタッフ群がお客様ファーストで対応します。
下記ボタンから、まずは無料でご相談下さい。
※内覧をご希望の際には、どうぞ物件のエントランス前にてお待ち合わせくださいませ。ご内覧後は、同じ場所でお別れとさせていただきます。お客様のご都合に合わせたスムーズなご案内を心がけておりますので、ご質問等がございましたら何なりとお申し付けください。 物件概要
| 物件名 |
| 築年月 |
|
|---|---|---|---|
| 所在地 | |||
| 交通 | |||
| 総戸数 |
| 総階数 |
|
| 構造 |
| ||
地図
物件までの道のりは、「拡大地図を表示」をクリックしてナビ機能をご利用ください。
部屋設備















建物設備

TVモニターホン

エレベーター

オートロック

バイク置場

宅配ボックス

敷地内ゴミ置場

管理人

駐車場平置き

駐車場機械式

駐輪場
東雲キャナルコートCODANの現在募集中のお部屋
- 東雲キャナルコートCODAN 12-212 - 間取り: 1SLDK - 賃料: 15万円
- 東雲キャナルコートCODAN 18-802 - 間取り: 1LDK - 賃料: 19.5万円
- 東雲キャナルコートCODAN 20-707 - 間取り: 1SLDK - 賃料: 25.8万円
- 東雲キャナルコートCODAN 17-704 - 間取り: 1R - 賃料: 16.9万円
- 東雲キャナルコートCODAN 18-330 - 間取り: 1LDK - 賃料: 17.8万円
- 東雲キャナルコートCODAN 16-1003 - 間取り: 1SLDK+WIC - 賃料: 20.7万円
- 東雲キャナルコートCODAN 16-504 - 間取り: 1LDK+WIC - 賃料: 20.9万円
- 東雲キャナルコートCODAN 16-911 - 間取り: 1LDK - 賃料: 22.9万円
- 東雲キャナルコートCODAN 17-906 - 間取り: 1LDK - 賃料: 18.7万円
- 東雲キャナルコートCODAN 17-516 - 間取り: 1LDK - 賃料: 18.7万円
- 東雲キャナルコートCODAN 20-1106 - 間取り: 1SLDK+WIC - 賃料: 25.3万円
- 東雲キャナルコートCODAN 21-508 - 間取り: 2DK - 賃料: 26.3万円
- 東雲キャナルコートCODAN 16-1007 - 間取り: 1LDK+WIC - 賃料: 21.4万円
- 東雲キャナルコートCODAN 14-905 - 間取り: 2LDK+WIC - 賃料: 22.5万円
- 東雲キャナルコートCODAN 18-804 - 間取り: 2SLDK - 賃料: 24.7万円
- 東雲キャナルコートCODAN 18-703 - 間取り: 2LDK - 賃料: 24.5万円
- 東雲キャナルコートCODAN 11-604 - 間取り: 3LDK - 賃料: 27万円
- 東雲キャナルコートCODAN 11-208 - 間取り: 3LDK - 賃料: 29万円
- 東雲キャナルコートCODAN 16-1102 - 間取り: 1LDK+WIC - 賃料: 21.4万円
- 東雲キャナルコートCODAN 14-513 - 間取り: 2DK - 賃料: 21.2万円
- 東雲キャナルコートCODAN19号棟 908 - 間取り: 2SLDK - 賃料: 21万円
- 東雲キャナルコートCODAN 18-808 - 間取り: 1LDK - 賃料: 19.5万円
- 東雲キャナルコートCODAN 16-310 - 間取り: 1LDK+WIC - 賃料: 20.7万円
- 東雲キャナルコートCODAN 12-812 - 間取り: 1LDK - 賃料: 19万円
- 東雲キャナルコートCODAN 18-505 - 間取り: 1LDK - 賃料: 17.8万円
- 東雲キャナルコートCODAN 12-604 - 間取り: 3LDK - 賃料: 30.5万円
- 東雲キャナルコートCODAN 20-305 - 間取り: 3LDK - 賃料: 30.5万円
