
| 賃料 | 予想金額:180,000〜200,000円程度 | 管理費 | 予想金額:13,000〜17,000円程度 |
| 礼金/敷金 | 非公開(アーカイブ) | 平米数 | 64.86㎡ |
| 初期費用概算(参考) | 目安:762,000〜862,000 円 | みなし賃料(月額・参考) | 207,958〜227,958 円 |
| 備考 | 本ページは過去募集のアーカイブです。表示の金額は周辺相場・過去募集を踏まえた参考レンジであり、実際の契約金額・条件ではありません。 | ||
※上記みなし賃料(月額)は仲介手数料割引・無料&キャッシュバックを加味した高級賃貸バイブル限定の金額です。一般的なみなし賃料とは異なります。
【建物ページ】東雲キャナルコートCODANの詳細・最新空室はこちら▶▶選ばれる理由
仲介手数料無料・キャンペーン情報(毎月15名様限定)
〇仲介手数料割引キャンペーン
東雲キャナルコートCODAN 20-1101の口コミ・レビュー
東雲キャナルコートCODAN 20-1101。あなたの日常が映画のワンシーンに変わる場所、ここにあります。東京都江東区東雲1-9、潮風が心地よく肌を撫でるこの地に足を踏み入れると、まず目に飛び込んでくるのは、洗練されたデザインが醸し出す外観。まるでモダンアートの作品のように、人々の視線を釘付けにします。20階という高みは、まさに雲の上の生活を象徴しており、広がる眺望は心に安らぎを与える特別な瞬間を…東雲キャナルコートCODAN 20-1101。あなたの日常が映画のワンシーンに変わる場所、ここにあります。東京都江東区東雲1-9、潮風が心地よく肌を撫でるこの地に足を踏み入れると、まず目に飛び込んでくるのは、洗練されたデザインが醸し出す外観。まるでモダンアートの作品のように、人々の視線を釘付けにします。20階という高みは、まさに雲の上の生活を象徴しており、広がる眺望は心に安らぎを与える特別な瞬間を提供してくれます。
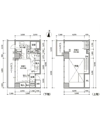
この物件は、64.86㎡の広々とした空間に心躍らせ、主人公の座をあなたに譲ります。間取りは2K、K2.9帖、洋室10帖、洋室8.6帖という構成が、まるであなたのライフスタイルにフィットするために設計されたかのようです。想像してみてください。カフェの香り漂うキッチンで、朝日を浴びて目覚めたあなたが、スムージーをつくる姿。フレッシュな果物の甘い香りが漂い、身体が目覚めていく感覚がたまらない。おしゃれな洋室では、陽光が窓から洩れ、心地いい光の中での読書やリラックスタイム。まるで自分だけの隠れ家であるかのように、その空間があなたを包み込みます。
東雲キャナルコートCODAN 20-1101には、あなたを守るための設備も完備されています。TVモニターホンやオートロックは安心感を与え、エレベーターで軽やかに移動できるのは日常の利便性を高めます。さらに、バイク置場や駐輪場も完備され、自由な移動をサポートしてくれます。そして、宅配ボックスがあることで、忙しいあなたの毎日を助け、帰る楽しみを増やしてくれることでしょう。
周辺には歴史と文化が根付いています。辰巳駅から徒然に歩く道すがら、あふれる緑と水の流れが、まるで心の浄化を促すかのようにあなたを迎え入れます。この地域は、江戸時代から続く歴史と近代の融合が魅力的です。週末には、近くのアートギャラリーで心躍る展示に触れ、文化の香りを感じながら月日の移ろいを楽しむことができます。まさに、あなたが主役として、この物語を紡いでいく舞台が整えられているのです。
あなたが東雲キャナルコートCODAN 20-1101に住むことで、ただ単に新しい住まいを手に入れるのではなく、自分自身を表現し、心豊かな生活を営むことができるのです。この物件は、あなたの人生の新しい章を開く鍵となるでしょう。素晴らしい日常が待っています。
この物件は、64.86㎡の広々とした空間に心躍らせ、主人公の座をあなたに譲ります。間取りは2K、K2.9帖、洋室10帖、洋室8.6帖という構成が、まるであなたのライフスタイルにフィットするために設計されたかのようです。想像してみてください。カフェの香り漂うキッチンで、朝日を浴びて目覚めたあなたが、スムージーをつくる姿。フレッシュな果物の甘い香りが漂い、身体が目覚めていく感覚がたまらない。おしゃれな洋室では、陽光が窓から洩れ、心地いい光の中での読書やリラックスタイム。まるで自分だけの隠れ家であるかのように、その空間があなたを包み込みます。
東雲キャナルコートCODAN 20-1101には、あなたを守るための設備も完備されています。TVモニターホンやオートロックは安心感を与え、エレベーターで軽やかに移動できるのは日常の利便性を高めます。さらに、バイク置場や駐輪場も完備され、自由な移動をサポートしてくれます。そして、宅配ボックスがあることで、忙しいあなたの毎日を助け、帰る楽しみを増やしてくれることでしょう。
周辺には歴史と文化が根付いています。辰巳駅から徒然に歩く道すがら、あふれる緑と水の流れが、まるで心の浄化を促すかのようにあなたを迎え入れます。この地域は、江戸時代から続く歴史と近代の融合が魅力的です。週末には、近くのアートギャラリーで心躍る展示に触れ、文化の香りを感じながら月日の移ろいを楽しむことができます。まさに、あなたが主役として、この物語を紡いでいく舞台が整えられているのです。
あなたが東雲キャナルコートCODAN 20-1101に住むことで、ただ単に新しい住まいを手に入れるのではなく、自分自身を表現し、心豊かな生活を営むことができるのです。この物件は、あなたの人生の新しい章を開く鍵となるでしょう。素晴らしい日常が待っています。
バイブルスコア
バイブルスコア: 33.5
平均的なスコアです。
※バイブルスコア詳細はこちら
バイブルスコアとは独自のAI機械学習技術を利用した物件評価システムで、物件のおすすめ度を示します。最高得点は100点で、スコアが高いほど、よりおすすめの物件と評価されています。
写真
現在写真が登録されていません契約条件
| 賃料 | 予想金額:180,000〜200,000円程度 | 管理費 | 予想金額:13,000〜17,000円程度 |
| 礼金 | 非公開(アーカイブ) | 敷金 | 非公開(アーカイブ) |
| フリーレント | なし | 平米数 | 64.86㎡ |
| 間取り | 2K | 大型収納 | なし |
| 契約期間 | 2年 | 方角 | 西 |
| 更新料 | 1ヶ月 | 契約形態 | 普通賃貸借契約 |
| 取引態様 | 媒介 | 内見状況 | 入居中 |
| 入居時期 | 入居中 | SOHO・事務所 | 不可 |
| ペット | 不可 | 間取り内訳 | K2.9 洋10 洋8.6 |
| キャンペーン情報・備考 | 本情報は賃料改定交渉の資料作成、収益物件の利回り試算、周辺エリアや最寄り駅の坪単価分析、次回募集開始時期の予測などにご活用いただけます。 | ||
※「どの不動産に頼めばいいのか分からない」「信頼できる営業マンの話を聞きたい」「一番親切な会社と契約したい」とお悩みの方におすすめなのが「高級賃貸バイブル」です。
高級賃貸バイブルは業界10年以上の熟練スタッフ群がお客様ファーストで対応します。
下記ボタンから、まずは無料でご相談下さい。
※内覧をご希望の際には、どうぞ物件のエントランス前にてお待ち合わせくださいませ。ご内覧後は、同じ場所でお別れとさせていただきます。お客様のご都合に合わせたスムーズなご案内を心がけておりますので、ご質問等がございましたら何なりとお申し付けください。 物件概要
| 物件名 |
| 築年月 |
|
|---|---|---|---|
| 所在地 | |||
| 交通 | |||
| 総戸数 |
| 総階数 |
|
| 構造 |
| ||
地図
物件までの道のりは、「拡大地図を表示」をクリックしてナビ機能をご利用ください。
部屋設備
















建物設備

TVモニターホン

エレベーター

オートロック

バイク置場

宅配ボックス

敷地内ゴミ置場

管理人

駐車場平置き

駐車場機械式

駐輪場
東雲キャナルコートCODANの現在募集中のお部屋
- 東雲キャナルコートCODAN 18-802 - 間取り: 1LDK - 賃料: 19.5万円
- 東雲キャナルコートCODAN 20-707 - 間取り: 1SLDK - 賃料: 25.8万円
- 東雲キャナルコートCODAN 17-704 - 間取り: 1R - 賃料: 16.9万円
- 東雲キャナルコートCODAN 18-330 - 間取り: 1LDK - 賃料: 17.8万円
- 東雲キャナルコートCODAN 16-1003 - 間取り: 1SLDK+WIC - 賃料: 20.7万円
- 東雲キャナルコートCODAN 16-504 - 間取り: 1LDK+WIC - 賃料: 20.9万円
- 東雲キャナルコートCODAN 16-911 - 間取り: 1LDK - 賃料: 22.9万円
- 東雲キャナルコートCODAN 17-906 - 間取り: 1LDK - 賃料: 18.7万円
- 東雲キャナルコートCODAN 17-516 - 間取り: 1LDK - 賃料: 18.7万円
- 東雲キャナルコートCODAN 20-1106 - 間取り: 1SLDK+WIC - 賃料: 25.3万円
- 東雲キャナルコートCODAN 21-508 - 間取り: 2DK - 賃料: 26.3万円
- 東雲キャナルコートCODAN 16-1007 - 間取り: 1LDK+WIC - 賃料: 21.4万円
- 東雲キャナルコートCODAN 14-905 - 間取り: 2LDK+WIC - 賃料: 22.5万円
- 東雲キャナルコートCODAN 18-804 - 間取り: 2SLDK - 賃料: 24.7万円
- 東雲キャナルコートCODAN 18-703 - 間取り: 2LDK - 賃料: 24.5万円
- 東雲キャナルコートCODAN 11-604 - 間取り: 3LDK - 賃料: 27万円
- 東雲キャナルコートCODAN 11-208 - 間取り: 3LDK - 賃料: 29万円
- 東雲キャナルコートCODAN 16-1102 - 間取り: 1LDK+WIC - 賃料: 21.4万円
- 東雲キャナルコートCODAN 14-513 - 間取り: 2DK - 賃料: 21.2万円
- 東雲キャナルコートCODAN19号棟 908 - 間取り: 2SLDK - 賃料: 21万円
- 東雲キャナルコートCODAN 18-808 - 間取り: 1LDK - 賃料: 19.5万円
- 東雲キャナルコートCODAN 16-310 - 間取り: 1LDK+WIC - 賃料: 20.7万円
- 東雲キャナルコートCODAN 12-212 - 間取り: 1SLDK - 賃料: 15万円
- 東雲キャナルコートCODAN 12-812 - 間取り: 1LDK - 賃料: 19万円
- 東雲キャナルコートCODAN 18-505 - 間取り: 1LDK - 賃料: 17.8万円
- 東雲キャナルコートCODAN 12-604 - 間取り: 3LDK - 賃料: 30.5万円
- 東雲キャナルコートCODAN 20-305 - 間取り: 3LDK - 賃料: 30.5万円
