
| 賃料 | 予想金額:205,000〜225,000円程度 | 管理費 | 予想金額:13,000〜17,000円程度 |
| 礼金/敷金 | 非公開(アーカイブ) | 平米数 | 69.61㎡ |
| 初期費用概算(参考) | 目安:849,500〜949,500 円 | みなし賃料(月額・参考) | 234,260〜254,260 円 |
| 備考 | 本ページは過去募集のアーカイブです。表示の金額は周辺相場・過去募集を踏まえた参考レンジであり、実際の契約金額・条件ではありません。 | ||
※上記みなし賃料(月額)は仲介手数料割引・無料&キャッシュバックを加味した高級賃貸バイブル限定の金額です。一般的なみなし賃料とは異なります。
【建物ページ】東雲キャナルコートCODANの詳細・最新空室はこちら▶▶選ばれる理由
仲介手数料無料・キャンペーン情報(毎月15名様限定)
〇仲介手数料割引キャンペーン
東雲キャナルコートCODAN 20-701の口コミ・レビュー
東雲キャナルコートCODAN 20-701。この名前を耳にすると、まるで新たな物語の幕が上がるかのようです。東京都江東区東雲1-9の地に佇むこの高級賃貸物件は、洗練されたデザインと機能性を兼ね備えた空間で、毎日が映画のワンシーンのように彩られます。最上階である20階からの眺望は、言葉では表現しきれないほどの美しさを誇り、朝日が東の空を染める瞬間、あなたの新しい一日が始まるのです。
専有面積69.…東雲キャナルコートCODAN 20-701。この名前を耳にすると、まるで新たな物語の幕が上がるかのようです。東京都江東区東雲1-9の地に佇むこの高級賃貸物件は、洗練されたデザインと機能性を兼ね備えた空間で、毎日が映画のワンシーンのように彩られます。最上階である20階からの眺望は、言葉では表現しきれないほどの美しさを誇り、朝日が東の空を染める瞬間、あなたの新しい一日が始まるのです。
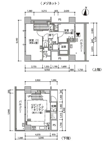
専有面積69.61㎡の広々とした空間は、居住者に自由な想像力を与えます。LDK11.1帖の温かみ溢れるリビングは、家族や友人との語らいを包み込み、時には心地よい静寂に包まれる場所ともなるでしょう。8.2帖の主寝室は、夢の世界へと導く安らぎに満ちた空間で、朝目覚めるとともに、穏やかな光が優しくあなたを迎え入れます。そして、4.4帖のゲストルームは、訪れる人々に瑠璃色の空のように心を和ませることでしょう。
このマンションは、ただの住まいではありません。エレベーターで一瞬にして20階に到達し、オートロックで守られたこの空間は、まるで隠れ家のようにあなたを迎え入れます。TVモニターホン越しに訪問者の姿を確認し、安心して大切な空間を守ることができる。そして、バイク置場や駐車場平置き、機械式駐車場も完備されており、移動のストレスを感じることなく、心のゆとりをもたらします。
また、宅配ボックスや敷地内ゴミ置場は、日常生活の小さな手間を軽減し、より豊かな時間を生み出すことでしょう。まるで、あなたのライフスタイルをサポートする親友のような存在です。管理人がいることで、安心感はさらに増し、日常の忙しさから少しでも解放されることができます。
そして、周辺の江東区はその歴史と文化に富んでいます。古き良き日本の面影を残しながらも、現代的なアートや文化が交差する場所です。辰巳駅から徒歩6分の距離には、東京の喧騒を忘れさせる静かな公園や、アートギャラリーが点在し、インスピレーションを与えてくれます。四季折々の景色が楽しめるこの地で、あなたの毎日は、豊かで色彩豊かなものとなるでしょう。
東雲キャナルコートCODAN 20-701は、ただの住まいではなく、生活そのものを豊かにするための舞台です。日々の暮らしを特別なものに変えてくれる場所。あなたがこの物件に足を踏み入れた瞬間、そこには新たな物語が待っているのです。心に残る瞬間を、一緒に紡いでいきましょう。あなたの新しい生活が、ここから始まります。
専有面積69.…東雲キャナルコートCODAN 20-701。この名前を耳にすると、まるで新たな物語の幕が上がるかのようです。東京都江東区東雲1-9の地に佇むこの高級賃貸物件は、洗練されたデザインと機能性を兼ね備えた空間で、毎日が映画のワンシーンのように彩られます。最上階である20階からの眺望は、言葉では表現しきれないほどの美しさを誇り、朝日が東の空を染める瞬間、あなたの新しい一日が始まるのです。
専有面積69.61㎡の広々とした空間は、居住者に自由な想像力を与えます。LDK11.1帖の温かみ溢れるリビングは、家族や友人との語らいを包み込み、時には心地よい静寂に包まれる場所ともなるでしょう。8.2帖の主寝室は、夢の世界へと導く安らぎに満ちた空間で、朝目覚めるとともに、穏やかな光が優しくあなたを迎え入れます。そして、4.4帖のゲストルームは、訪れる人々に瑠璃色の空のように心を和ませることでしょう。
このマンションは、ただの住まいではありません。エレベーターで一瞬にして20階に到達し、オートロックで守られたこの空間は、まるで隠れ家のようにあなたを迎え入れます。TVモニターホン越しに訪問者の姿を確認し、安心して大切な空間を守ることができる。そして、バイク置場や駐車場平置き、機械式駐車場も完備されており、移動のストレスを感じることなく、心のゆとりをもたらします。
また、宅配ボックスや敷地内ゴミ置場は、日常生活の小さな手間を軽減し、より豊かな時間を生み出すことでしょう。まるで、あなたのライフスタイルをサポートする親友のような存在です。管理人がいることで、安心感はさらに増し、日常の忙しさから少しでも解放されることができます。
そして、周辺の江東区はその歴史と文化に富んでいます。古き良き日本の面影を残しながらも、現代的なアートや文化が交差する場所です。辰巳駅から徒歩6分の距離には、東京の喧騒を忘れさせる静かな公園や、アートギャラリーが点在し、インスピレーションを与えてくれます。四季折々の景色が楽しめるこの地で、あなたの毎日は、豊かで色彩豊かなものとなるでしょう。
東雲キャナルコートCODAN 20-701は、ただの住まいではなく、生活そのものを豊かにするための舞台です。日々の暮らしを特別なものに変えてくれる場所。あなたがこの物件に足を踏み入れた瞬間、そこには新たな物語が待っているのです。心に残る瞬間を、一緒に紡いでいきましょう。あなたの新しい生活が、ここから始まります。
バイブルスコア
バイブルスコア: 41.8
条件のいい物件です、引っ越しが2か月以内の場合は仮申し込みを検討すべき物件です。
※バイブルスコア詳細はこちら
バイブルスコアとは独自のAI機械学習技術を利用した物件評価システムで、物件のおすすめ度を示します。最高得点は100点で、スコアが高いほど、よりおすすめの物件と評価されています。
写真
現在写真が登録されていません契約条件
| 賃料 | 予想金額:205,000〜225,000円程度 | 管理費 | 予想金額:13,000〜17,000円程度 |
| 礼金 | 非公開(アーカイブ) | 敷金 | 非公開(アーカイブ) |
| フリーレント | なし | 平米数 | 69.61㎡ |
| 間取り | 2LDK | 大型収納 | SIC |
| 契約期間 | 2年 | 方角 | 東 |
| 更新料 | 1ヶ月 | 契約形態 | 普通賃貸借契約 |
| 取引態様 | 媒介 | 内見状況 | 入居中 |
| 入居時期 | 入居中 | SOHO・事務所 | 不可 |
| ペット | 不可 | 間取り内訳 | LDK=11.1J / BR=8.2J / BR=4.4J |
| キャンペーン情報・備考 | 本情報は賃料改定交渉の資料作成、収益物件の利回り試算、周辺エリアや最寄り駅の坪単価分析、次回募集開始時期の予測などにご活用いただけます。 | ||
※「どの不動産に頼めばいいのか分からない」「信頼できる営業マンの話を聞きたい」「一番親切な会社と契約したい」とお悩みの方におすすめなのが「高級賃貸バイブル」です。
高級賃貸バイブルは業界10年以上の熟練スタッフ群がお客様ファーストで対応します。
下記ボタンから、まずは無料でご相談下さい。
※内覧をご希望の際には、どうぞ物件のエントランス前にてお待ち合わせくださいませ。ご内覧後は、同じ場所でお別れとさせていただきます。お客様のご都合に合わせたスムーズなご案内を心がけておりますので、ご質問等がございましたら何なりとお申し付けください。 物件概要
| 物件名 |
| 築年月 |
|
|---|---|---|---|
| 所在地 | |||
| 交通 | |||
| 総戸数 |
| 総階数 |
|
| 構造 |
| ||
地図
物件までの道のりは、「拡大地図を表示」をクリックしてナビ機能をご利用ください。
部屋設備


















建物設備

TVモニターホン

エレベーター

オートロック

バイク置場

宅配ボックス

敷地内ゴミ置場

管理人

駐車場平置き

駐車場機械式

駐輪場
東雲キャナルコートCODANの現在募集中のお部屋
- 東雲キャナルコートCODAN 18-802 - 間取り: 1LDK - 賃料: 19.5万円
- 東雲キャナルコートCODAN 20-707 - 間取り: 1SLDK - 賃料: 25.8万円
- 東雲キャナルコートCODAN 17-704 - 間取り: 1R - 賃料: 16.9万円
- 東雲キャナルコートCODAN 18-330 - 間取り: 1LDK - 賃料: 17.8万円
- 東雲キャナルコートCODAN 16-1003 - 間取り: 1SLDK+WIC - 賃料: 20.7万円
- 東雲キャナルコートCODAN 16-504 - 間取り: 1LDK+WIC - 賃料: 20.9万円
- 東雲キャナルコートCODAN 16-911 - 間取り: 1LDK - 賃料: 22.9万円
- 東雲キャナルコートCODAN 17-906 - 間取り: 1LDK - 賃料: 18.7万円
- 東雲キャナルコートCODAN 17-516 - 間取り: 1LDK - 賃料: 18.7万円
- 東雲キャナルコートCODAN 20-1106 - 間取り: 1SLDK+WIC - 賃料: 25.3万円
- 東雲キャナルコートCODAN 21-508 - 間取り: 2DK - 賃料: 26.3万円
- 東雲キャナルコートCODAN 16-1007 - 間取り: 1LDK+WIC - 賃料: 21.4万円
- 東雲キャナルコートCODAN 14-905 - 間取り: 2LDK+WIC - 賃料: 22.5万円
- 東雲キャナルコートCODAN 18-804 - 間取り: 2SLDK - 賃料: 24.7万円
- 東雲キャナルコートCODAN 18-703 - 間取り: 2LDK - 賃料: 24.5万円
- 東雲キャナルコートCODAN 11-604 - 間取り: 3LDK - 賃料: 27万円
- 東雲キャナルコートCODAN 11-208 - 間取り: 3LDK - 賃料: 29万円
- 東雲キャナルコートCODAN 16-1102 - 間取り: 1LDK+WIC - 賃料: 21.4万円
- 東雲キャナルコートCODAN 14-513 - 間取り: 2DK - 賃料: 21.2万円
- 東雲キャナルコートCODAN19号棟 908 - 間取り: 2SLDK - 賃料: 21万円
- 東雲キャナルコートCODAN 18-808 - 間取り: 1LDK - 賃料: 19.5万円
- 東雲キャナルコートCODAN 16-310 - 間取り: 1LDK+WIC - 賃料: 20.7万円
- 東雲キャナルコートCODAN 12-212 - 間取り: 1SLDK - 賃料: 15万円
- 東雲キャナルコートCODAN 12-812 - 間取り: 1LDK - 賃料: 19万円
- 東雲キャナルコートCODAN 18-505 - 間取り: 1LDK - 賃料: 17.8万円
- 東雲キャナルコートCODAN 12-604 - 間取り: 3LDK - 賃料: 30.5万円
- 東雲キャナルコートCODAN 20-305 - 間取り: 3LDK - 賃料: 30.5万円
