業界のプロが親切丁寧に対応・最安値級の初期費用 都心の高級賃貸はお任せください!

エルファーロ恵比寿 303【常緑コンテンツ】 (更新日: 2025年9月7日)

  • 2025年9月6日
  • 2025年9月7日
  • 3 回閲覧されています
  • by
エルファーロ恵比寿 303

賃料 予想金額:211,000〜231,000円程度 管理費 予想金額:8,000〜12,000円程度
礼金/敷金 非公開(アーカイブ) 平米数 30.02㎡
初期費用概算(参考) 目安:222,000〜322,000 円 みなし賃料(月額・参考) 222,063〜242,063 円
備考 本ページは過去募集のアーカイブです。表示の金額は周辺相場・過去募集を踏まえた参考レンジであり、実際の契約金額・条件ではありません。

※上記みなし賃料(月額)は仲介手数料割引・無料&キャッシュバックを加味した高級賃貸バイブル限定の金額です。一般的なみなし賃料とは異なります。

【建物ページ】エルファーロ恵比寿の詳細・最新空室はこちら▶▶

選ばれる理由

スーモホームズや他社様のHPに掲載している物件も最安値級で契約可能です

Property Image

高級賃貸バイブルは店長が必ず対応します、新人に頼むより圧倒的お得です

仲介手数料無料・キャンペーン情報(毎月15名様限定)

〇引っ越しお祝い金111000円プレゼント(キャッシュバック)

〇仲介手数料無料キャンペーン

高級賃貸バイブルのLINE問合せ

Contact Image

エルファーロ恵比寿 303の口コミ・レビュー

大坪正博のアイコン
大坪正博(スタッフ/Googleローカルガイド レベル7)
エルファーロ恵比寿 303は、東京都渋谷区恵比寿2-13に佇む、高級感あふれるオアシスです。その美しい姿は、街の喧騒からわずかに離れ、心を癒す空間へと導いてくれます。北東の方角から射し込む柔らかな光は、まるで心に寄り添うように、住む人を優しく包み込んでくれるのです。

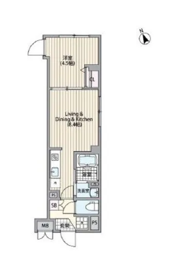
このエルファーロ恵比寿 303では、8.4帖のLDKと4.5帖の洋室が調和を保ちながら、あなたの生活に優雅なストーリーを紡いでいき…

バイブルスコア

バイブルスコア: 63.7
かなり条件の良い物件です、即仮押さえをおすすめする物件です!

かなり条件の良い物件です、即仮押さえをおすすめする物件です!


このお部屋は、現在ご入居中のため空室情報はございません。ただし、将来的に募集が開始される際、バイブルスコアにおいて非常に高い評価が期待されます。特にご興味をお持ちの方は、今のうちにブックマークやお気に入りに登録していただくと、募集開始のお知らせをすぐに受け取ることができます。是非ともご検討くださいませ。


バイブルスコア詳細はこちら
バイブルスコアとは独自のAI機械学習技術を利用した物件評価システムで、物件のおすすめ度を示します。最高得点は100点で、スコアが高いほど、よりおすすめの物件と評価されています。

写真

エルファーロ恵比寿 の画像1

契約条件

賃料予想金額:211,000〜231,000円程度管理費予想金額:8,000〜12,000円程度
礼金非公開(アーカイブ)敷金非公開(アーカイブ)
フリーレント なし平米数30.02㎡
間取り1LDK大型収納なし
契約期間2年方角北東
更新料1ヶ月契約形態普通賃貸借契約
取引態様媒介内見状況入居中
入居時期入居中SOHO・事務所不可
ペット相談間取り内訳LDK8.4帖 洋室4.5帖
キャンペーン情報・備考本情報は賃料改定交渉の資料作成、収益物件の利回り試算、周辺エリアや最寄り駅の坪単価分析、次回募集開始時期の予測などにご活用いただけます。

※「どの不動産に頼めばいいのか分からない」「信頼できる営業マンの話を聞きたい」「一番親切な会社と契約したい」とお悩みの方におすすめなのが「高級賃貸バイブル」です。

高級賃貸バイブルは業界10年以上の熟練スタッフ群がお客様ファーストで対応します。
下記ボタンから、まずは無料でご相談下さい。

高級賃貸バイブルのLINE問合せ

Contact Image

※内覧をご希望の際には、どうぞ物件のエントランス前にてお待ち合わせくださいませ。ご内覧後は、同じ場所でお別れとさせていただきます。お客様のご都合に合わせたスムーズなご案内を心がけておりますので、ご質問等がございましたら何なりとお申し付けください。

物件概要

物件名
  • エルファーロ恵比寿
築年月
  • 2025年10月
所在地
交通
  • JR山手線 恵比寿駅 徒歩9分
  • JR湘南新宿ライン 恵比寿駅 徒歩9分
  • 東京メトロ日比谷線 恵比寿駅 徒歩9分
  • 東京メトロ日比谷線 広尾駅 徒歩13分
総戸数
  • 12戸
総階数
  • 地上4階
構造
  • RC造

地図

物件までの道のりは、「拡大地図を表示」をクリックしてナビ機能をご利用ください。

部屋設備

エアコンシステムキッチンシューズボックスフローリングペット可リフォーム浴室乾燥機温水洗浄便座独立洗面台角部屋追い炊き

建物設備

TVモニターホン

TVモニターホン

オートロック

オートロック

高級賃貸バイブルのLINE問合せ

Contact Image

エルファーロ恵比寿の現在募集中のお部屋

  • No rooms found for this property.

エルファーロ恵比寿 303の所属カテゴリー

  • ,
  • , , , , , , , , , , ,
  • 高級賃貸バイブルオフィス

    都心のお部屋探しは高級賃貸バイブルへお任せ下さい!

    【業界のプロが担当します】おすすめ物件のご提案・内見のご予約・初期費用のお見積りお気軽にご相談ください。