
| 賃料 | 予想金額:210,000〜230,000円程度 | 管理費 | 予想金額:8,000〜12,000円程度 |
| 礼金/敷金 | 非公開(アーカイブ) | 平米数 | 30.21㎡ |
| 初期費用概算(参考) | 目安:221,500〜321,500 円 | みなし賃料(月額・参考) | 221,073〜241,073 円 |
| 備考 | 本ページは過去募集のアーカイブです。表示の金額は周辺相場・過去募集を踏まえた参考レンジであり、実際の契約金額・条件ではありません。 | ||
※上記みなし賃料(月額)は仲介手数料割引・無料&キャッシュバックを加味した高級賃貸バイブル限定の金額です。一般的なみなし賃料とは異なります。
【建物ページ】エルファーロ恵比寿の詳細・最新空室はこちら▶▶選ばれる理由
仲介手数料無料・キャンペーン情報(毎月15名様限定)
〇引っ越しお祝い金110000円プレゼント(キャッシュバック)
〇仲介手数料無料キャンペーン
エルファーロ恵比寿 201の口コミ・レビュー
エルファーロ恵比寿 201。この名前を耳にした瞬間、恵比寿の風が心地よく吹き抜ける情景が目に浮かびます。東京都渋谷区恵比寿2-13に佇むこの物件は、まるで都会の中の静かなオアシスのようで、住む人に暖かく語りかけるかのようです。北東の方角に位置するこのお部屋は、朝日が優しく照らし、日の出と共に新たな一日の始まりを告げてくれることでしょう。
このエルファーロ恵比寿 201には、あなたの生活を彩るため…エルファーロ恵比寿 201。この名前を耳にした瞬間、恵比寿の風が心地よく吹き抜ける情景が目に浮かびます。東京都渋谷区恵比寿2-13に佇むこの物件は、まるで都会の中の静かなオアシスのようで、住む人に暖かく語りかけるかのようです。北東の方角に位置するこのお部屋は、朝日が優しく照らし、日の出と共に新たな一日の始まりを告げてくれることでしょう。
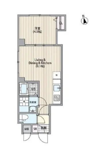
このエルファーロ恵比寿 201には、あなたの生活を彩るための、心地よい空間が待っています。LDKは9.1帖の広さを誇り、大きな窓からは柔らかな光が降り注ぎ、カフェのような雰囲気を演出します。朝、目を覚ました瞬間に感じる光の温もり、ふわりと香るコーヒーの香り、その特別な一杯を楽しむための絶好の場所。午後には、友人を招いて賑やかなティータイムを過ごし、笑い声と共に時が流れる。エルファーロ恵比寿 201は、まるで喫茶店のような、心が温かくなる時間を提供してくれるのです。
洋室は4.5帖、その空間はまるで自分だけの小宇宙のように感じられます。ゆったりとしたベッドで夢の世界に浸り、目が覚めた際には、無垢な白い壁が何気ない思い出を語りかけてくることでしょう。夜には、オートロックで守られた安心感の中、静寂の中で心を落ち着けて眠りにつくことができます。エルファーロ恵比寿 201は、そんな波のように寄せては返す日常の一瞬を大切にしてくれる、あなたに寄り添う存在です。
恵比寿駅からは徒歩9分という便利さも、この暮らしをより一層魅力的にしています。周囲には洗練されたカフェやおしゃれなショップがひしめき、活気ある街の脈動を感じながらも、エルファーロ恵比寿 201のドアを一歩踏み入れれば、そこは別世界。街の喧騒を背に、静寂と共にあなたの心に寄り添う空間が広がります。
また、恵比寿は多くの文化や歴史を秘めた街でもあります。近くには美術館やギャラリーが点在し、アートと日常が溶け込む独自の雰囲気が漂います。エルファーロ恵比寿 201に住むことで、そうした文化の息吹を日常に感じながら、あなた自身もまた、一つのストーリーを描いていくことができるのです。
このような特別なライフスタイルが待っているエルファーロ恵比寿 201。あなたの人生の新たな章を始めるのに、これ以上の舞台は他にありません。心を躍らせながら、ぜひこの物件を訪れてみてください。あなたを待つ、この美しい空間が、きっと心に響くことでしょう。
このエルファーロ恵比寿 201には、あなたの生活を彩るため…エルファーロ恵比寿 201。この名前を耳にした瞬間、恵比寿の風が心地よく吹き抜ける情景が目に浮かびます。東京都渋谷区恵比寿2-13に佇むこの物件は、まるで都会の中の静かなオアシスのようで、住む人に暖かく語りかけるかのようです。北東の方角に位置するこのお部屋は、朝日が優しく照らし、日の出と共に新たな一日の始まりを告げてくれることでしょう。
このエルファーロ恵比寿 201には、あなたの生活を彩るための、心地よい空間が待っています。LDKは9.1帖の広さを誇り、大きな窓からは柔らかな光が降り注ぎ、カフェのような雰囲気を演出します。朝、目を覚ました瞬間に感じる光の温もり、ふわりと香るコーヒーの香り、その特別な一杯を楽しむための絶好の場所。午後には、友人を招いて賑やかなティータイムを過ごし、笑い声と共に時が流れる。エルファーロ恵比寿 201は、まるで喫茶店のような、心が温かくなる時間を提供してくれるのです。
洋室は4.5帖、その空間はまるで自分だけの小宇宙のように感じられます。ゆったりとしたベッドで夢の世界に浸り、目が覚めた際には、無垢な白い壁が何気ない思い出を語りかけてくることでしょう。夜には、オートロックで守られた安心感の中、静寂の中で心を落ち着けて眠りにつくことができます。エルファーロ恵比寿 201は、そんな波のように寄せては返す日常の一瞬を大切にしてくれる、あなたに寄り添う存在です。
恵比寿駅からは徒歩9分という便利さも、この暮らしをより一層魅力的にしています。周囲には洗練されたカフェやおしゃれなショップがひしめき、活気ある街の脈動を感じながらも、エルファーロ恵比寿 201のドアを一歩踏み入れれば、そこは別世界。街の喧騒を背に、静寂と共にあなたの心に寄り添う空間が広がります。
また、恵比寿は多くの文化や歴史を秘めた街でもあります。近くには美術館やギャラリーが点在し、アートと日常が溶け込む独自の雰囲気が漂います。エルファーロ恵比寿 201に住むことで、そうした文化の息吹を日常に感じながら、あなた自身もまた、一つのストーリーを描いていくことができるのです。
このような特別なライフスタイルが待っているエルファーロ恵比寿 201。あなたの人生の新たな章を始めるのに、これ以上の舞台は他にありません。心を躍らせながら、ぜひこの物件を訪れてみてください。あなたを待つ、この美しい空間が、きっと心に響くことでしょう。
バイブルスコア
バイブルスコア: 64.5
かなり条件の良い物件です、即仮押さえをおすすめする物件です!
このお部屋は、現在ご入居中のため空室情報はございません。ただし、将来的に募集が開始される際、バイブルスコアにおいて非常に高い評価が期待されます。特にご興味をお持ちの方は、今のうちにブックマークやお気に入りに登録していただくと、募集開始のお知らせをすぐに受け取ることができます。是非ともご検討くださいませ。
※バイブルスコア詳細はこちら
バイブルスコアとは独自のAI機械学習技術を利用した物件評価システムで、物件のおすすめ度を示します。最高得点は100点で、スコアが高いほど、よりおすすめの物件と評価されています。
写真
契約条件
| 賃料 | 予想金額:210,000〜230,000円程度 | 管理費 | 予想金額:8,000〜12,000円程度 |
| 礼金 | 非公開(アーカイブ) | 敷金 | 非公開(アーカイブ) |
| フリーレント | なし | 平米数 | 30.21㎡ |
| 間取り | 1LDK | 大型収納 | なし |
| 契約期間 | 2年 | 方角 | 北東 |
| 更新料 | 1ヶ月 | 契約形態 | 普通賃貸借契約 |
| 取引態様 | 媒介 | 内見状況 | 入居中 |
| 入居時期 | 入居中 | SOHO・事務所 | 不可 |
| ペット | 相談 | 間取り内訳 | LDK9.1帖 洋室4.5帖 |
| キャンペーン情報・備考 | 本情報は賃料改定交渉の資料作成、収益物件の利回り試算、周辺エリアや最寄り駅の坪単価分析、次回募集開始時期の予測などにご活用いただけます。 | ||
※「どの不動産に頼めばいいのか分からない」「信頼できる営業マンの話を聞きたい」「一番親切な会社と契約したい」とお悩みの方におすすめなのが「高級賃貸バイブル」です。
高級賃貸バイブルは業界10年以上の熟練スタッフ群がお客様ファーストで対応します。
下記ボタンから、まずは無料でご相談下さい。
※内覧をご希望の際には、どうぞ物件のエントランス前にてお待ち合わせくださいませ。ご内覧後は、同じ場所でお別れとさせていただきます。お客様のご都合に合わせたスムーズなご案内を心がけておりますので、ご質問等がございましたら何なりとお申し付けください。 物件概要
| 物件名 |
| 築年月 |
|
|---|---|---|---|
| 所在地 | |||
| 交通 | |||
| 総戸数 |
| 総階数 |
|
| 構造 |
| ||
地図
物件までの道のりは、「拡大地図を表示」をクリックしてナビ機能をご利用ください。
部屋設備










建物設備

TVモニターホン

オートロック
エルファーロ恵比寿の現在募集中のお部屋
- No rooms found for this property.

