
| 賃料 | 予想金額:168,000〜188,000円程度 | 管理費 | 予想金額:13,000〜17,000円程度 |
| 礼金/敷金 | 非公開(アーカイブ) | 平米数 | 36.73㎡ |
| 初期費用概算(参考) | 目安:30,000〜130,000 円 | みなし賃料(月額・参考) | 184,667〜204,667 円 |
| 備考 | 本ページは過去募集のアーカイブです。表示の金額は周辺相場・過去募集を踏まえた参考レンジであり、実際の契約金額・条件ではありません。 | ||
※上記みなし賃料(月額)は仲介手数料割引・無料&キャッシュバックを加味した高級賃貸バイブル限定の金額です。一般的なみなし賃料とは異なります。
【建物ページ】ベルシード板橋本町プレミアⅡの詳細・最新空室はこちら▶▶選ばれる理由
仲介手数料無料・キャンペーン情報(毎月15名様限定)
〇引っ越しお祝い金68000円プレゼント(キャッシュバック)
〇フリーレント2か月キャンペーン
〇仲介手数料無料キャンペーン
ベルシード板橋本町プレミアⅡ 603の口コミ・レビュー
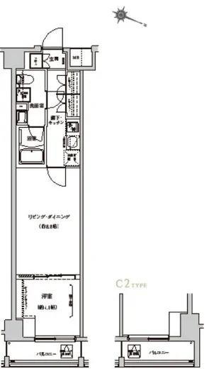
この物件の間取りは1LDK、広々としたLDKは8.8帖の空間を持ち…ベルシード板橋本町プレミアⅡ 603は、まるで都会の美術館に佇む一つの作品のように、洗練された美しさを持っています。朝日が差し込む東向きの窓からは、柔らかな光が部屋を包み込み、目覚めるたびに新たな一日が始まる喜びを感じさせてくれます。603という特別な階数は、まるで特別な魔法がかけられているかのような気持ちを味わわせてくれます。
この物件の間取りは1LDK、広々としたLDKは8.8帖の空間を持ち、心地よい風が吹き抜けるように設計されています。ここでは、香ばしいコーヒーの香りが漂い、朝食の準備が楽しくなり、友人との語らいの時間も特別なものになること間違いありません。それに続く洋室は4.8帖。心を落ち着けるプライベート空間として、あなたの眠りをやさしく包んでくれることでしょう。ここでの午後のひととき、そよ風に揺れるカーテンや、窓の外では静かに流れる時間に心を癒されることでしょう。
ベルシード板橋本町プレミアⅡ 603には、現代の生活に欠かせない設備も整っています。エレベーターでのアクセスやオートロックでの安心感は、まるで高級ホテルに住んでいるかのような贅沢さをもたらします。宅配ボックスやバイク置場も完備されており、多忙な日常を支えるパートナーとして機能してくれるでしょう。目の前には美しい清水町が広がり、あなたの生活は毎日が映画のワンシーンのようなドラマを演出します。
周辺には歴史ある文化が息づいており、アートギャラリーや公園が点在しているため、休日には散策を楽しみながら心を豊かにすることができます。都会の喧騒から少し離れ、静寂の中で心の余裕を持ちながら過ごすことができる貴重な時間を提供してくれるのも、ベルシード板橋本町プレミアⅡ 603ならではの魅力です。
想像してみてください。優雅な朝食を終え、心地よい午後の光を浴びながら、あなたのお気に入りの本を片手に、ひと息つく瞬間。この場所は、ただの住まいではなく、あなた自身の物語を紡ぐ舞台となります。ベルシード板橋本町プレミアⅡ 603での新しい生活は、日常の一瞬一瞬が特別に変わることでしょう。あなたの人生の新たな章が、ここから始まります。
バイブルスコア
バイブルスコア: 73
かなり条件の良い物件です、即仮押さえをおすすめする物件です!
このお部屋は、現在ご入居中のため空室情報はございません。ただし、将来的に募集が開始される際、バイブルスコアにおいて非常に高い評価が期待されます。特にご興味をお持ちの方は、今のうちにブックマークやお気に入りに登録していただくと、募集開始のお知らせをすぐに受け取ることができます。是非ともご検討くださいませ。
※バイブルスコア詳細はこちら
バイブルスコアとは独自のAI機械学習技術を利用した物件評価システムで、物件のおすすめ度を示します。最高得点は100点で、スコアが高いほど、よりおすすめの物件と評価されています。
写真
契約条件
| 賃料 | 予想金額:168,000〜188,000円程度 | 管理費 | 予想金額:13,000〜17,000円程度 |
| 礼金 | 非公開(アーカイブ) | 敷金 | 非公開(アーカイブ) |
| フリーレント | 2ヶ月 | 平米数 | 36.73㎡ |
| 間取り | 1LDK | 大型収納 | なし |
| 契約期間 | 2年 | 方角 | 東 |
| 更新料 | 1ヶ月 | 契約形態 | 普通賃貸借契約 |
| 取引態様 | 媒介 | 内見状況 | 入居中 |
| 入居時期 | 入居中 | SOHO・事務所 | 不可 |
| ペット | 相談 | 間取り内訳 | LDK8.8帖 洋室4.8帖 |
| キャンペーン情報・備考 | 本情報は賃料改定交渉の資料作成、収益物件の利回り試算、周辺エリアや最寄り駅の坪単価分析、次回募集開始時期の予測などにご活用いただけます。 | ||
※「どの不動産に頼めばいいのか分からない」「信頼できる営業マンの話を聞きたい」「一番親切な会社と契約したい」とお悩みの方におすすめなのが「高級賃貸バイブル」です。
高級賃貸バイブルは業界10年以上の熟練スタッフ群がお客様ファーストで対応します。
下記ボタンから、まずは無料でご相談下さい。
※内覧をご希望の際には、どうぞ物件のエントランス前にてお待ち合わせくださいませ。ご内覧後は、同じ場所でお別れとさせていただきます。お客様のご都合に合わせたスムーズなご案内を心がけておりますので、ご質問等がございましたら何なりとお申し付けください。 物件概要
| 物件名 |
| 築年月 |
|
|---|---|---|---|
| 所在地 | |||
| 交通 | |||
| 総戸数 |
| 総階数 |
|
| 構造 |
| ||
地図
物件までの道のりは、「拡大地図を表示」をクリックしてナビ機能をご利用ください。
部屋設備








建物設備

TVモニターホン

エレベーター

オートロック

バイク置場

宅配ボックス

敷地内ゴミ置場

駐車場機械式

駐輪場
ベルシード板橋本町プレミアⅡの現在募集中のお部屋
- No rooms found for this property.











