
| 賃料 | 予想金額:221,000〜241,000円程度 | 管理費 | 予想金額:18,000〜22,000円程度 |
| 礼金/敷金 | 非公開(アーカイブ) | 平米数 | 46.05㎡ |
| 初期費用概算(参考) | 目安:547,800〜647,800 円 | みなし賃料(月額・参考) | 248,642〜268,642 円 |
| 備考 | 本ページは過去募集のアーカイブです。表示の金額は周辺相場・過去募集を踏まえた参考レンジであり、実際の契約金額・条件ではありません。 | ||
※上記みなし賃料(月額)は仲介手数料割引・無料&キャッシュバックを加味した高級賃貸バイブル限定の金額です。一般的なみなし賃料とは異なります。
【建物ページ】プレディアコート清澄白河の詳細・最新空室はこちら▶▶選ばれる理由
仲介手数料無料・キャンペーン情報(毎月15名様限定)
〇引っ越しお祝い金46200円プレゼント(キャッシュバック)
〇仲介手数料無料キャンペーン
プレディアコート清澄白河 501の口コミ・レビュー
プレディアコート清澄白河 501。この名前を口にするだけで、まるで新しい物語の幕が上がるかのような感覚を抱かせてくれるでしょう。501号室は、まさに都市のオアシスです。ここでは、忙しい日常から一歩足を踏み入れた瞬間、あなたを温かく迎え入れてくれる、そんな存在なのです。
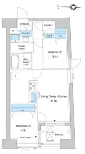
この特別な空間は、46.05㎡という広さに2LDKの贅沢な間取り。LDK11帖は、家族との団らんや友人との楽しいひとときを演出す…プレディアコート清澄白河 501。この名前を口にするだけで、まるで新しい物語の幕が上がるかのような感覚を抱かせてくれるでしょう。501号室は、まさに都市のオアシスです。ここでは、忙しい日常から一歩足を踏み入れた瞬間、あなたを温かく迎え入れてくれる、そんな存在なのです。
この特別な空間は、46.05㎡という広さに2LDKの贅沢な間取り。LDK11帖は、家族との団らんや友人との楽しいひとときを演出するための舞台。その広がりは、陽の光が舞い降り、時折耳にする鳥のさえずりと共に、心を解きほぐしてくれるのです。洋室4.3帖や洋室3.4帖は、眠りにつく際の安らぎを与えてくれる安息の場であり、あなたの夢を育む小宇宙となるでしょう。
物件に到着するたびに感じるのは、穏やかな西の風。その玄関を開けると、ふわっと香るフローラルの香りが心地よく、深呼吸をするたびに疲れも消えていくような気持ちになります。プレディアコート清澄白河 501のエレベーターに乗り、501階へと上がる道中は、日常から非日常へと移行するための小さな儀式です。オートロックの扉を抜けると、そこにはあなた専用の世界が広がっています。まるで、特別な舞台に立つ俳優のように、その瞬間を楽しむことができます。
この空間では、朝の光がカーテン越しに差し込み、コーヒーの香りとともに目覚める優雅な生活が待っています。毎日新鮮な気持ちで、あなたの一日が始まります。さらに、宅配ボックスを利用すれば、忙しいあなたにとって心強いサポートが加わります。都市生活の便利さを享受しつつ、同時に心の余裕を忘れない。そんな理想的なバランスがここにはあります。
また、プレディアコート清澄白河 501の周辺には、江東区の歴史ある文化やアートが息づいています。清澄白河駅から徒歩3分という絶好の立地は、アートギャラリーやカフェも近く、まるで毎日小さな冒険が待っているかのよう。地元の美術館を訪れたり、隠れ家的なカフェで一息つくことで、日々に彩りを添えることができます。舌鼓を打つような美味しい料理が、あなたの日常を華やかにします。
プレディアコート清澄白河 501は、ただの住まいではありません。それは、心踊る物語を紡ぐための舞台であり、毎日の生活がまるで映画のワンシーンのように演出される場所です。優雅でありながら、居心地の良いこの空間で、あなた自身のストーリーを始めませんか。
この特別な空間は、46.05㎡という広さに2LDKの贅沢な間取り。LDK11帖は、家族との団らんや友人との楽しいひとときを演出す…プレディアコート清澄白河 501。この名前を口にするだけで、まるで新しい物語の幕が上がるかのような感覚を抱かせてくれるでしょう。501号室は、まさに都市のオアシスです。ここでは、忙しい日常から一歩足を踏み入れた瞬間、あなたを温かく迎え入れてくれる、そんな存在なのです。
この特別な空間は、46.05㎡という広さに2LDKの贅沢な間取り。LDK11帖は、家族との団らんや友人との楽しいひとときを演出するための舞台。その広がりは、陽の光が舞い降り、時折耳にする鳥のさえずりと共に、心を解きほぐしてくれるのです。洋室4.3帖や洋室3.4帖は、眠りにつく際の安らぎを与えてくれる安息の場であり、あなたの夢を育む小宇宙となるでしょう。
物件に到着するたびに感じるのは、穏やかな西の風。その玄関を開けると、ふわっと香るフローラルの香りが心地よく、深呼吸をするたびに疲れも消えていくような気持ちになります。プレディアコート清澄白河 501のエレベーターに乗り、501階へと上がる道中は、日常から非日常へと移行するための小さな儀式です。オートロックの扉を抜けると、そこにはあなた専用の世界が広がっています。まるで、特別な舞台に立つ俳優のように、その瞬間を楽しむことができます。
この空間では、朝の光がカーテン越しに差し込み、コーヒーの香りとともに目覚める優雅な生活が待っています。毎日新鮮な気持ちで、あなたの一日が始まります。さらに、宅配ボックスを利用すれば、忙しいあなたにとって心強いサポートが加わります。都市生活の便利さを享受しつつ、同時に心の余裕を忘れない。そんな理想的なバランスがここにはあります。
また、プレディアコート清澄白河 501の周辺には、江東区の歴史ある文化やアートが息づいています。清澄白河駅から徒歩3分という絶好の立地は、アートギャラリーやカフェも近く、まるで毎日小さな冒険が待っているかのよう。地元の美術館を訪れたり、隠れ家的なカフェで一息つくことで、日々に彩りを添えることができます。舌鼓を打つような美味しい料理が、あなたの日常を華やかにします。
プレディアコート清澄白河 501は、ただの住まいではありません。それは、心踊る物語を紡ぐための舞台であり、毎日の生活がまるで映画のワンシーンのように演出される場所です。優雅でありながら、居心地の良いこの空間で、あなた自身のストーリーを始めませんか。
バイブルスコア
バイブルスコア: 70.8
かなり条件の良い物件です、即仮押さえをおすすめする物件です!
このお部屋は、現在ご入居中のため空室情報はございません。ただし、将来的に募集が開始される際、バイブルスコアにおいて非常に高い評価が期待されます。特にご興味をお持ちの方は、今のうちにブックマークやお気に入りに登録していただくと、募集開始のお知らせをすぐに受け取ることができます。是非ともご検討くださいませ。
※バイブルスコア詳細はこちら
バイブルスコアとは独自のAI機械学習技術を利用した物件評価システムで、物件のおすすめ度を示します。最高得点は100点で、スコアが高いほど、よりおすすめの物件と評価されています。
写真
契約条件
| 賃料 | 予想金額:221,000〜241,000円程度 | 管理費 | 予想金額:18,000〜22,000円程度 |
| 礼金 | 非公開(アーカイブ) | 敷金 | 非公開(アーカイブ) |
| フリーレント | なし | 平米数 | 46.05㎡ |
| 間取り | 2LDK | 大型収納 | なし |
| 契約期間 | 2年 | 方角 | 西 |
| 更新料 | 1ヶ月 | 契約形態 | 普通賃貸借契約 |
| 取引態様 | 媒介 | 内見状況 | 入居中 |
| 入居時期 | 入居中 | SOHO・事務所 | 可 |
| ペット | 可 小型犬または猫1匹まで 敷金1ヶ月積み増し | 間取り内訳 | LDK11帖 洋室4.3帖 洋室3.4帖 |
| キャンペーン情報・備考 | 本情報は賃料改定交渉の資料作成、収益物件の利回り試算、周辺エリアや最寄り駅の坪単価分析、次回募集開始時期の予測などにご活用いただけます。 | ||
※「どの不動産に頼めばいいのか分からない」「信頼できる営業マンの話を聞きたい」「一番親切な会社と契約したい」とお悩みの方におすすめなのが「高級賃貸バイブル」です。
高級賃貸バイブルは業界10年以上の熟練スタッフ群がお客様ファーストで対応します。
下記ボタンから、まずは無料でご相談下さい。
※内覧をご希望の際には、どうぞ物件のエントランス前にてお待ち合わせくださいませ。ご内覧後は、同じ場所でお別れとさせていただきます。お客様のご都合に合わせたスムーズなご案内を心がけておりますので、ご質問等がございましたら何なりとお申し付けください。 物件概要
| 物件名 |
| 築年月 |
|
|---|---|---|---|
| 所在地 | |||
| 交通 | |||
| 総戸数 |
| 総階数 |
|
| 構造 |
| ||
地図
物件までの道のりは、「拡大地図を表示」をクリックしてナビ機能をご利用ください。
部屋設備












建物設備

TVモニターホン

エレベーター

オートロック

バイク置場

宅配ボックス

敷地内ゴミ置場

駐車場機械式

駐輪場
プレディアコート清澄白河の現在募集中のお部屋
- No rooms found for this property.


