
| 賃料 | 予想金額:107,000〜127,000円程度 | 管理費 | 予想金額:13,000〜17,000円程度 |
| 礼金/敷金 | 非公開(アーカイブ) | 平米数 | 25.59㎡ |
| 初期費用概算(参考) | 目安:256,000〜356,000 円 | みなし賃料(月額・参考) | 125,938〜145,938 円 |
| 備考 | 本ページは過去募集のアーカイブです。表示の金額は周辺相場・過去募集を踏まえた参考レンジであり、実際の契約金額・条件ではありません。 | ||
※上記みなし賃料(月額)は仲介手数料割引・無料&キャッシュバックを加味した高級賃貸バイブル限定の金額です。一般的なみなし賃料とは異なります。
【建物ページ】クレヴィスタ元浅草の詳細・最新空室はこちら▶▶選ばれる理由
仲介手数料無料・キャンペーン情報(毎月15名様限定)
〇仲介手数料割引キャンペーン
クレヴィスタ元浅草 7階 25.59㎡の口コミ・レビュー
クレヴィスタ元浅草 7階 25.59㎡。この美しい名前を持つ空間は、まるで都会の真珠のように輝いています。東京都台東区元浅草の心臓部に位置し、あなたの新たな生活の舞台となるこの場所は、ただの住まいではありません。まるで一流の劇場のステージのように、住む人の物語を静かに見守っています。
あなたがこのクレヴィスタ元浅草に足を踏み入れる瞬間、まず感じるのは清々しい空気です。エレベーターの扉が開くと、あ…クレヴィスタ元浅草 7階 25.59㎡。この美しい名前を持つ空間は、まるで都会の真珠のように輝いています。東京都台東区元浅草の心臓部に位置し、あなたの新たな生活の舞台となるこの場所は、ただの住まいではありません。まるで一流の劇場のステージのように、住む人の物語を静かに見守っています。
あなたがこのクレヴィスタ元浅草に足を踏み入れる瞬間、まず感じるのは清々しい空気です。エレベーターの扉が開くと、あなたを迎え入れるのは、洗練されたデザインと上質な光の共演。明るい東の光は、ゆっくりと洋室6.8帖の空間に差し込み、まるでパステルカラーの絵画が生き生きと動き出すかのよう。無垢な白い壁とナチュラルな木のフローリングが、穏やかな温もりを添え、あなたの心を優しく包み込みます。
クレヴィスタ元浅草の内装からは、実に心地よい香りが漂います。それは新しい生活の始まりを告げるフレッシュな香り、そして少しだけ懐かしさを感じさせる木の香り。床を素足で踏むと、心が弾むような感覚が広がり、ここはあなたの新しい居場所だと力強く主張します。
あなたが日々の喧騒から離れ、静かに時間を楽しむための洋室6.8帖は、まるで自然と調和した隠れ家のよう。窓を開ければ、遠くから聞こえる街のざわめきとともに、小鳥のさえずりが耳をくすぐります。東京メトロ銀座線 田原町駅まで徒歩4分の利便性は、まるで新曲のリズムに合わせるように、あなたの生活にさらなる色彩を添えます。
クレヴィスタ元浅草は、オートロックシステムと宅配ボックスを完備し、あなたの生活に安心感を与えつつ、自由な時間を大切にする道を提供します。周囲には歴史ある元浅草の風情ある街並みが広がり、あなたの散歩道はまるで美術館のように、文化と芸術を感じさせてくれます。近くには地元の人々に愛され続けるカフェやレストランが点在し、訪れるたびに新しい味覚との出会いが待っています。
クレヴィスタ元浅草 7階 25.59㎡というこの場所は、ただの住居ではなく、あなたの人生の新たなシーンを描くためのキャンバスです。毎日が映画のワンシーンのように、特別な瞬間を演出し続けるこの空間で、あなたとこの物件が共鳴し合いながら、共に人生の物語を紡いでいくことを心より願っております。あなたの物語はここから始まるのです。
あなたがこのクレヴィスタ元浅草に足を踏み入れる瞬間、まず感じるのは清々しい空気です。エレベーターの扉が開くと、あ…クレヴィスタ元浅草 7階 25.59㎡。この美しい名前を持つ空間は、まるで都会の真珠のように輝いています。東京都台東区元浅草の心臓部に位置し、あなたの新たな生活の舞台となるこの場所は、ただの住まいではありません。まるで一流の劇場のステージのように、住む人の物語を静かに見守っています。
あなたがこのクレヴィスタ元浅草に足を踏み入れる瞬間、まず感じるのは清々しい空気です。エレベーターの扉が開くと、あなたを迎え入れるのは、洗練されたデザインと上質な光の共演。明るい東の光は、ゆっくりと洋室6.8帖の空間に差し込み、まるでパステルカラーの絵画が生き生きと動き出すかのよう。無垢な白い壁とナチュラルな木のフローリングが、穏やかな温もりを添え、あなたの心を優しく包み込みます。
クレヴィスタ元浅草の内装からは、実に心地よい香りが漂います。それは新しい生活の始まりを告げるフレッシュな香り、そして少しだけ懐かしさを感じさせる木の香り。床を素足で踏むと、心が弾むような感覚が広がり、ここはあなたの新しい居場所だと力強く主張します。
あなたが日々の喧騒から離れ、静かに時間を楽しむための洋室6.8帖は、まるで自然と調和した隠れ家のよう。窓を開ければ、遠くから聞こえる街のざわめきとともに、小鳥のさえずりが耳をくすぐります。東京メトロ銀座線 田原町駅まで徒歩4分の利便性は、まるで新曲のリズムに合わせるように、あなたの生活にさらなる色彩を添えます。
クレヴィスタ元浅草は、オートロックシステムと宅配ボックスを完備し、あなたの生活に安心感を与えつつ、自由な時間を大切にする道を提供します。周囲には歴史ある元浅草の風情ある街並みが広がり、あなたの散歩道はまるで美術館のように、文化と芸術を感じさせてくれます。近くには地元の人々に愛され続けるカフェやレストランが点在し、訪れるたびに新しい味覚との出会いが待っています。
クレヴィスタ元浅草 7階 25.59㎡というこの場所は、ただの住居ではなく、あなたの人生の新たなシーンを描くためのキャンバスです。毎日が映画のワンシーンのように、特別な瞬間を演出し続けるこの空間で、あなたとこの物件が共鳴し合いながら、共に人生の物語を紡いでいくことを心より願っております。あなたの物語はここから始まるのです。
バイブルスコア
バイブルスコア: 69.2
かなり条件の良い物件です、即仮押さえをおすすめする物件です!
このお部屋は、現在ご入居中のため空室情報はございません。ただし、将来的に募集が開始される際、バイブルスコアにおいて非常に高い評価が期待されます。特にご興味をお持ちの方は、今のうちにブックマークやお気に入りに登録していただくと、募集開始のお知らせをすぐに受け取ることができます。是非ともご検討くださいませ。
※バイブルスコア詳細はこちら
バイブルスコアとは独自のAI機械学習技術を利用した物件評価システムで、物件のおすすめ度を示します。最高得点は100点で、スコアが高いほど、よりおすすめの物件と評価されています。
写真
契約条件
| 賃料 | 予想金額:107,000〜127,000円程度 | 管理費 | 予想金額:13,000〜17,000円程度 |
| 礼金 | 非公開(アーカイブ) | 敷金 | 非公開(アーカイブ) |
| フリーレント | なし | 平米数 | 25.59㎡ |
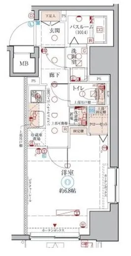
| 間取り | 1K | 大型収納 | なし |
| 契約期間 | 2年 | 方角 | 東 |
| 更新料 | 1ヶ月 | 契約形態 | 普通賃貸借契約 |
| 取引態様 | 媒介 | 内見状況 | 入居中 |
| 入居時期 | 入居中 | SOHO・事務所 | 不可 |
| ペット | 不可 | 間取り内訳 | 洋室6.8帖 |
| キャンペーン情報・備考 | 本情報は賃料改定交渉の資料作成、収益物件の利回り試算、周辺エリアや最寄り駅の坪単価分析、次回募集開始時期の予測などにご活用いただけます。 | ||
※「どの不動産に頼めばいいのか分からない」「信頼できる営業マンの話を聞きたい」「一番親切な会社と契約したい」とお悩みの方におすすめなのが「高級賃貸バイブル」です。
高級賃貸バイブルは業界10年以上の熟練スタッフ群がお客様ファーストで対応します。
下記ボタンから、まずは無料でご相談下さい。
※内覧をご希望の際には、どうぞ物件のエントランス前にてお待ち合わせくださいませ。ご内覧後は、同じ場所でお別れとさせていただきます。お客様のご都合に合わせたスムーズなご案内を心がけておりますので、ご質問等がございましたら何なりとお申し付けください。 物件概要
| 物件名 |
| 築年月 |
|
|---|---|---|---|
| 所在地 | |||
| 交通 | |||
| 総戸数 |
| 総階数 |
|
| 構造 |
| ||
地図
物件までの道のりは、「拡大地図を表示」をクリックしてナビ機能をご利用ください。
部屋設備







建物設備

TVモニターホン

エレベーター

オートロック

宅配ボックス

敷地内ゴミ置場

駐輪場
クレヴィスタ元浅草の現在募集中のお部屋
- No rooms found for this property.


