
| 賃料 | 予想金額:167,000〜187,000円程度 | 管理費 | 予想金額:11,000〜15,000円程度 |
| 礼金/敷金 | 非公開(アーカイブ) | 平米数 | 43.53㎡ |
| 初期費用概算(参考) | 目安:381,500〜481,500 円 | みなし賃料(月額・参考) | 185,302〜205,302 円 |
| 備考 | 本ページは過去募集のアーカイブです。表示の金額は周辺相場・過去募集を踏まえた参考レンジであり、実際の契約金額・条件ではありません。 | ||
※上記みなし賃料(月額)は仲介手数料割引・無料&キャッシュバックを加味した高級賃貸バイブル限定の金額です。一般的なみなし賃料とは異なります。
【建物ページ】エスセナーリオ中野の詳細・最新空室はこちら▶▶選ばれる理由
仲介手数料無料・キャンペーン情報(毎月15名様限定)
〇引っ越しお祝い金67000円プレゼント(キャッシュバック)
〇仲介手数料無料キャンペーン
エスセナーリオ中野 201の口コミ・レビュー
エスセナーリオ中野 201は、まるで物語の舞台のような美しさを纏った空間です。東京都中野区新井2-28-3に位置し、特に西向きの窓から差し込む夕日の光は、住む人の心に柔らかい温もりを与えてくれます。エスセナーリオ中野 201の中で過ごすひとときは、まるで日常の喧騒を忘れさせる映画のワンシーンのようです。
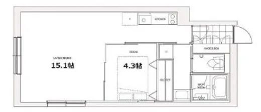
専有面積43.53㎡の中には、LDK15.1帖という広々とした空間があり、そこにはあなたの創…エスセナーリオ中野 201は、まるで物語の舞台のような美しさを纏った空間です。東京都中野区新井2-28-3に位置し、特に西向きの窓から差し込む夕日の光は、住む人の心に柔らかい温もりを与えてくれます。エスセナーリオ中野 201の中で過ごすひとときは、まるで日常の喧騒を忘れさせる映画のワンシーンのようです。
専有面積43.53㎡の中には、LDK15.1帖という広々とした空間があり、そこにはあなたの創造力をかき立てるインスピレーションが溢れています。心地よい風がそよぎ、料理の際には豊かな香りが漂い、温かい家族の団らんや友人との楽しいひとときが自然と寄り添う空間です。リラックスできる洋室4.3帖は、あなたのプライベートな時間を大切にしてくれる存在。柔らかい寝具にくるまって、良い夢を見に行く準備が整いました。
エスセナーリオ中野 201の魅力はその設備にもあります。24時間管理されているため、安心して暮らせるセキュリティが充実しています。オートロックのドアを開けると、まるで自分だけの世界が広がったかのよう。宅配ボックスや駐輪場も完備されていて、忙しい日々の中でも、少しのスペースで心の余裕を感じられることでしょう。エレベーターを使って2階に足を運ぶたびに、そのシンプルで洗練されたデザインが貴女を迎え入れます。
周辺には中野の豊かな歴史と文化が息づいています。JR総武線 中野駅まで徒歩8分というアクセスの良さは、大都会の喧騒を感じながらも、静けさを求める心を満たしてくれるでしょう。近くにはアートの香りが漂うギャラリーや、街の温かさを感じるカフェが点在し、知恵と美のインスピレーションが集まる場となっています。
エスセナーリオ中野 201は、あなたにとってただの住まいではなく、人生のステージです。この場所で過ごす日々は、まるで新たな冒険の始まり。心に残る思い出や感動が、あなたの周りにふんわりと漂い、人生の素晴らしさを感じさせてくれるでしょう。ここでの生活は、まるで夢の中にいるかのように、感覚を刺激し、より深い幸福感をもたらしてくれます。
エスセナーリオ中野 201という名の空間で、あなたの物語を描き始めてみませんか。日常の中にある特別な瞬間を、ぜひ体感していただきたいと思います。どこか懐かしさと新しさが交差するこの場所で、あなたの新しい生活が、豊かな色彩を纏ったものになることを期待しています。
専有面積43.53㎡の中には、LDK15.1帖という広々とした空間があり、そこにはあなたの創…エスセナーリオ中野 201は、まるで物語の舞台のような美しさを纏った空間です。東京都中野区新井2-28-3に位置し、特に西向きの窓から差し込む夕日の光は、住む人の心に柔らかい温もりを与えてくれます。エスセナーリオ中野 201の中で過ごすひとときは、まるで日常の喧騒を忘れさせる映画のワンシーンのようです。
専有面積43.53㎡の中には、LDK15.1帖という広々とした空間があり、そこにはあなたの創造力をかき立てるインスピレーションが溢れています。心地よい風がそよぎ、料理の際には豊かな香りが漂い、温かい家族の団らんや友人との楽しいひとときが自然と寄り添う空間です。リラックスできる洋室4.3帖は、あなたのプライベートな時間を大切にしてくれる存在。柔らかい寝具にくるまって、良い夢を見に行く準備が整いました。
エスセナーリオ中野 201の魅力はその設備にもあります。24時間管理されているため、安心して暮らせるセキュリティが充実しています。オートロックのドアを開けると、まるで自分だけの世界が広がったかのよう。宅配ボックスや駐輪場も完備されていて、忙しい日々の中でも、少しのスペースで心の余裕を感じられることでしょう。エレベーターを使って2階に足を運ぶたびに、そのシンプルで洗練されたデザインが貴女を迎え入れます。
周辺には中野の豊かな歴史と文化が息づいています。JR総武線 中野駅まで徒歩8分というアクセスの良さは、大都会の喧騒を感じながらも、静けさを求める心を満たしてくれるでしょう。近くにはアートの香りが漂うギャラリーや、街の温かさを感じるカフェが点在し、知恵と美のインスピレーションが集まる場となっています。
エスセナーリオ中野 201は、あなたにとってただの住まいではなく、人生のステージです。この場所で過ごす日々は、まるで新たな冒険の始まり。心に残る思い出や感動が、あなたの周りにふんわりと漂い、人生の素晴らしさを感じさせてくれるでしょう。ここでの生活は、まるで夢の中にいるかのように、感覚を刺激し、より深い幸福感をもたらしてくれます。
エスセナーリオ中野 201という名の空間で、あなたの物語を描き始めてみませんか。日常の中にある特別な瞬間を、ぜひ体感していただきたいと思います。どこか懐かしさと新しさが交差するこの場所で、あなたの新しい生活が、豊かな色彩を纏ったものになることを期待しています。
バイブルスコア
バイブルスコア: 79.1
かなり条件の良い物件です、即仮押さえをおすすめする物件です!
このお部屋は、現在ご入居中のため空室情報はございません。ただし、将来的に募集が開始される際、バイブルスコアにおいて非常に高い評価が期待されます。特にご興味をお持ちの方は、今のうちにブックマークやお気に入りに登録していただくと、募集開始のお知らせをすぐに受け取ることができます。是非ともご検討くださいませ。
※バイブルスコア詳細はこちら
バイブルスコアとは独自のAI機械学習技術を利用した物件評価システムで、物件のおすすめ度を示します。最高得点は100点で、スコアが高いほど、よりおすすめの物件と評価されています。
写真
現在写真が登録されていません契約条件
| 賃料 | 予想金額:167,000〜187,000円程度 | 管理費 | 予想金額:11,000〜15,000円程度 |
| 礼金 | 非公開(アーカイブ) | 敷金 | 非公開(アーカイブ) |
| フリーレント | なし | 平米数 | 43.53㎡ |
| 間取り | 1LDK | 大型収納 | なし |
| 契約期間 | 2年 | 方角 | 西 |
| 更新料 | 1ヶ月 | 契約形態 | 普通賃貸借契約 |
| 取引態様 | 媒介 | 内見状況 | 入居中 |
| 入居時期 | 入居中 | SOHO・事務所 | 相談 |
| ペット | 不可 | 間取り内訳 | LDK15.1帖 洋室4.3帖 |
| キャンペーン情報・備考 | 本情報は賃料改定交渉の資料作成、収益物件の利回り試算、周辺エリアや最寄り駅の坪単価分析、次回募集開始時期の予測などにご活用いただけます。 | ||
※「どの不動産に頼めばいいのか分からない」「信頼できる営業マンの話を聞きたい」「一番親切な会社と契約したい」とお悩みの方におすすめなのが「高級賃貸バイブル」です。
高級賃貸バイブルは業界10年以上の熟練スタッフ群がお客様ファーストで対応します。
下記ボタンから、まずは無料でご相談下さい。
※内覧をご希望の際には、どうぞ物件のエントランス前にてお待ち合わせくださいませ。ご内覧後は、同じ場所でお別れとさせていただきます。お客様のご都合に合わせたスムーズなご案内を心がけておりますので、ご質問等がございましたら何なりとお申し付けください。 物件概要
| 物件名 |
| 築年月 |
|
|---|---|---|---|
| 所在地 | |||
| 交通 | |||
| 総戸数 |
| 総階数 |
|
| 構造 |
| ||
地図
物件までの道のりは、「拡大地図を表示」をクリックしてナビ機能をご利用ください。
部屋設備











建物設備

24時間管理

TVモニターホン

エレベーター

オートロック

バイク置場

宅配ボックス

敷地内ゴミ置場

駐輪場
エスセナーリオ中野の現在募集中のお部屋
- No rooms found for this property.
