
| 賃料 | 予想金額:225,000〜245,000円程度 | 管理費 | 予想金額:13,000〜17,000円程度 |
| 礼金/敷金 | 非公開(アーカイブ) | 平米数 | 40.55㎡ |
| 初期費用概算(参考) | 目安:314,500〜414,500 円 | みなし賃料(月額・参考) | 242,698〜262,698 円 |
| 備考 | 本ページは過去募集のアーカイブです。表示の金額は周辺相場・過去募集を踏まえた参考レンジであり、実際の契約金額・条件ではありません。 | ||
※上記みなし賃料(月額)は仲介手数料割引・無料&キャッシュバックを加味した高級賃貸バイブル限定の金額です。一般的なみなし賃料とは異なります。
【建物ページ】ハーモニーレジデンス新宿河田町の詳細・最新空室はこちら▶▶選ばれる理由
仲介手数料無料・キャンペーン情報(毎月15名様限定)
〇引っ越しお祝い金47000円プレゼント(キャッシュバック)
〇仲介手数料無料キャンペーン
ハーモニーレジデンス新宿河田町 405の口コミ・レビュー
ハーモニーレジデンス新宿河田町 405は、あなたの新しい生活の舞台を優雅に彩る特別な住処です。この物件は、南西に広がる空と都市の景色を一望することができ、まるで日々の生活が映画のワンシーンのように展開されることを約束します。405という階数は、ただの数字ではありません。それは、あなたが手にする新たな物語の第一章を象徴しています。
専有面積40.55㎡という空間には、心地良い光が差し込み、あなたを…ハーモニーレジデンス新宿河田町 405は、あなたの新しい生活の舞台を優雅に彩る特別な住処です。この物件は、南西に広がる空と都市の景色を一望することができ、まるで日々の生活が映画のワンシーンのように展開されることを約束します。405という階数は、ただの数字ではありません。それは、あなたが手にする新たな物語の第一章を象徴しています。
専有面積40.55㎡という空間には、心地良い光が差し込み、あなたを包み込むような柔らかな温もりを感じさせます。LDKは洋室を配し、エレガントで洗練されたインテリアが、日常の中に特別な瞬間をもたらします。この空間では、朋友との楽しいディナーや仕事から戻った際のリラックスタイムが、まるで美しい絵画のように描かれることでしょう。
ハーモニーレジデンス新宿河田町 405は、単なる居住空間ではなく、生活そのものを豊かにするために精巧に設計されています。エレベーターで上る度に心が踊り、オートロックの安心感が心に安らぎをもたらします。静寂に包まれた宅配ボックスからは、人々の日常を支える小さな喜びが運ばれ、敷地内ゴミ置場はあなたの生活における隙間時間を有意義に使うためのサポートとなります。駐輪場では、あなたの大切な自転車が誇らしく待ち受け、街に出る冒険の準備を整えています。
さらに、この物件は東京都新宿区という文化の交差点に位置します。歴史ある新宿の街並みを散策すれば、昔からの情緒と現代的なエネルギーが共存する風景に心を奪われることでしょう。その中で、あなた自身がハーモニーレジデンス新宿河田町 405の住人として、様々な出会いや経験に触れることができるのです。近くには、洗練されたカフェやギャラリーも点在し、アートや美食といった豊かな感性が生活に息づくでしょう。新宿の喧騒から少し離れたこの場所は、まるで隠れ家のように、心の底から安らぎを与えてくれます。
この素晴らしいハーモニーレジデンス新宿河田町 405は、ただの「住まい」ではなく、「生活を楽しむための舞台」です。あなたの生活が、まさにあなた自身の手によって織りなされる美しいストーリーになれることを願ってやみません。この特別な場所で、五感を研ぎ澄ませ、日常の中にある小さな幸せを感じてください。新しい生活が始まる瞬間、そこには光と影が織りなすハーモニーが広がっていくことでしょう。
専有面積40.55㎡という空間には、心地良い光が差し込み、あなたを…ハーモニーレジデンス新宿河田町 405は、あなたの新しい生活の舞台を優雅に彩る特別な住処です。この物件は、南西に広がる空と都市の景色を一望することができ、まるで日々の生活が映画のワンシーンのように展開されることを約束します。405という階数は、ただの数字ではありません。それは、あなたが手にする新たな物語の第一章を象徴しています。
専有面積40.55㎡という空間には、心地良い光が差し込み、あなたを包み込むような柔らかな温もりを感じさせます。LDKは洋室を配し、エレガントで洗練されたインテリアが、日常の中に特別な瞬間をもたらします。この空間では、朋友との楽しいディナーや仕事から戻った際のリラックスタイムが、まるで美しい絵画のように描かれることでしょう。
ハーモニーレジデンス新宿河田町 405は、単なる居住空間ではなく、生活そのものを豊かにするために精巧に設計されています。エレベーターで上る度に心が踊り、オートロックの安心感が心に安らぎをもたらします。静寂に包まれた宅配ボックスからは、人々の日常を支える小さな喜びが運ばれ、敷地内ゴミ置場はあなたの生活における隙間時間を有意義に使うためのサポートとなります。駐輪場では、あなたの大切な自転車が誇らしく待ち受け、街に出る冒険の準備を整えています。
さらに、この物件は東京都新宿区という文化の交差点に位置します。歴史ある新宿の街並みを散策すれば、昔からの情緒と現代的なエネルギーが共存する風景に心を奪われることでしょう。その中で、あなた自身がハーモニーレジデンス新宿河田町 405の住人として、様々な出会いや経験に触れることができるのです。近くには、洗練されたカフェやギャラリーも点在し、アートや美食といった豊かな感性が生活に息づくでしょう。新宿の喧騒から少し離れたこの場所は、まるで隠れ家のように、心の底から安らぎを与えてくれます。
この素晴らしいハーモニーレジデンス新宿河田町 405は、ただの「住まい」ではなく、「生活を楽しむための舞台」です。あなたの生活が、まさにあなた自身の手によって織りなされる美しいストーリーになれることを願ってやみません。この特別な場所で、五感を研ぎ澄ませ、日常の中にある小さな幸せを感じてください。新しい生活が始まる瞬間、そこには光と影が織りなすハーモニーが広がっていくことでしょう。
バイブルスコア
バイブルスコア: 43.8
条件のいい物件です、引っ越しが2か月以内の場合は仮申し込みを検討すべき物件です。
※バイブルスコア詳細はこちら
バイブルスコアとは独自のAI機械学習技術を利用した物件評価システムで、物件のおすすめ度を示します。最高得点は100点で、スコアが高いほど、よりおすすめの物件と評価されています。
写真
現在写真が登録されていません契約条件
| 賃料 | 予想金額:225,000〜245,000円程度 | 管理費 | 予想金額:13,000〜17,000円程度 |
| 礼金 | 非公開(アーカイブ) | 敷金 | 非公開(アーカイブ) |
| フリーレント | なし | 平米数 | 40.55㎡ |
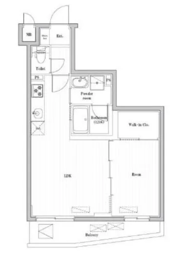
| 間取り | 1LDK+WIC | 大型収納 | WIC |
| 契約期間 | 2年 | 方角 | 南西 |
| 更新料 | 1ヶ月 | 契約形態 | 普通賃貸借契約 |
| 取引態様 | 媒介 | 内見状況 | 入居中 |
| 入居時期 | 入居中 | SOHO・事務所 | 不可 |
| ペット | 可 | 間取り内訳 | LDK 洋室 |
| キャンペーン情報・備考 | 本情報は賃料改定交渉の資料作成、収益物件の利回り試算、周辺エリアや最寄り駅の坪単価分析、次回募集開始時期の予測などにご活用いただけます。 | ||
※「どの不動産に頼めばいいのか分からない」「信頼できる営業マンの話を聞きたい」「一番親切な会社と契約したい」とお悩みの方におすすめなのが「高級賃貸バイブル」です。
高級賃貸バイブルは業界10年以上の熟練スタッフ群がお客様ファーストで対応します。
下記ボタンから、まずは無料でご相談下さい。
※内覧をご希望の際には、どうぞ物件のエントランス前にてお待ち合わせくださいませ。ご内覧後は、同じ場所でお別れとさせていただきます。お客様のご都合に合わせたスムーズなご案内を心がけておりますので、ご質問等がございましたら何なりとお申し付けください。 物件概要
| 物件名 |
| 築年月 |
|
|---|---|---|---|
| 所在地 | |||
| 交通 | |||
| 総戸数 |
| 総階数 |
|
| 構造 |
| ||
地図
物件までの道のりは、「拡大地図を表示」をクリックしてナビ機能をご利用ください。
部屋設備











建物設備

24時間管理

TVモニターホン

エレベーター

オートロック

宅配ボックス

敷地内ゴミ置場

駐輪場
ハーモニーレジデンス新宿河田町の現在募集中のお部屋
- No rooms found for this property.
