
| 賃料 | 予想金額:100,000〜120,000円程度 | 管理費 | 予想金額:8,000〜12,000円程度 |
| 礼金/敷金 | 非公開(アーカイブ) | 平米数 | 26.25㎡ |
| 初期費用概算(参考) | 目安:255,000〜355,000 円 | みなし賃料(月額・参考) | 114,063〜134,063 円 |
| 備考 | 本ページは過去募集のアーカイブです。表示の金額は周辺相場・過去募集を踏まえた参考レンジであり、実際の契約金額・条件ではありません。 | ||
※上記みなし賃料(月額)は仲介手数料割引・無料&キャッシュバックを加味した高級賃貸バイブル限定の金額です。一般的なみなし賃料とは異なります。
【建物ページ】アルテシモカルドの詳細・最新空室はこちら▶▶選ばれる理由
仲介手数料無料・キャンペーン情報(毎月15名様限定)
〇引っ越しお祝い金5000円プレゼント(キャッシュバック)
〇仲介手数料無料キャンペーン
アルテシモカルド 4階 26.25㎡の口コミ・レビュー
アルテシモカルドはまるで、優雅なバレリーナが舞い踊るかのように、洗練されたデザインと機能性を兼ね備えた…アルテシモカルド 4階 26.25㎡。この言葉を耳にした瞬間、あなたの心に美しい旋律が響くことでしょう。東京都墨田区業平3-7-4というアドレスは、まるで名作の舞台のように、歴史と情熱が交差する場所に位置しています。西向きの窓からは、日没時の柔らかな光が差し込み、心に安らぎをもたらすでしょう。
アルテシモカルドはまるで、優雅なバレリーナが舞い踊るかのように、洗練されたデザインと機能性を兼ね備えた逸品です。エレベーターで4階へ向かう瞬間、都会の喧騒から解き放たれ、静かな空間へと誘われます。扉を開ければ、広がるのは洋室8帖の心地よい空間。ここには、朝日がフレッシュな香りを運び、夜には星々が優しく語りかける、そんな夢のような生活が待っています。
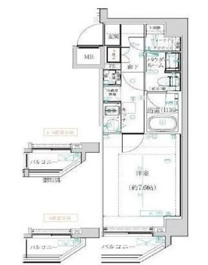
アルテシモカルドの魅力は、その居心地の良さにあります。1K+WICの間取りは、コンパクトながらも豊かな可能性を秘めています。広々とした洋室8帖は、あなたの創造力をかき立て、毎日の暮らしに彩りを添えることでしょう。読書にふけるひと時、料理の香りが立ち込めるキッチン、自分だけのアトリエとして使いこなす、どんなライフスタイルにもフィットするこの空間は、まるであなたの分身のように自由で美しいのです。
さらに、アルテシモカルドは安全で快適な生活をサポートするために、TVモニターホンやオートロック、宅配ボックスといった先進的な設備が整っています。訪れる人々に安心感を届けながら、あなたの日常を守り続けます。バイク置場や駐輪場も完備され、アクティブなライフスタイルをお持ちの方にもぴったりです。
この高尚な空間での生活は、まるで映画のワンシーンのように心に焼き付きます。休日の朝、バルコニーでコーヒーをすすりながら、スカイツリーを眺める。風に乗って街の賑わいが耳に届き、何気ない日々の中に小さな幸せを見つけることができるでしょう。墨田区は、江戸の歴史が息づく地域であり、周辺には多くの文化的なスポットが点在しています。歴史に触れ、芸術を感じながら、あなた自身の物語を紡いでいく、そんな素晴らしい場所です。
さあ、アルテシモカルドで新たな物語を始めませんか?この空間が、あなたの毎日を特別なものに変えてくれることでしょう。どうぞ、貴方の未来への扉を開けてください。感覚が目覚める瞬間が、あなたを待っています。
バイブルスコア
バイブルスコア: 57.2
条件のいい物件です、引っ越しが2か月以内の場合は仮申し込みを検討すべき物件です。
このお部屋は、現在ご入居中のため空室情報はございません。ただし、将来的に募集が開始される際、バイブルスコアにおいて非常に高い評価が期待されます。特にご興味をお持ちの方は、今のうちにブックマークやお気に入りに登録していただくと、募集開始のお知らせをすぐに受け取ることができます。是非ともご検討くださいませ。
※バイブルスコア詳細はこちら
バイブルスコアとは独自のAI機械学習技術を利用した物件評価システムで、物件のおすすめ度を示します。最高得点は100点で、スコアが高いほど、よりおすすめの物件と評価されています。
写真
現在写真が登録されていません契約条件
| 賃料 | 予想金額:100,000〜120,000円程度 | 管理費 | 予想金額:8,000〜12,000円程度 |
| 礼金 | 非公開(アーカイブ) | 敷金 | 非公開(アーカイブ) |
| フリーレント | なし | 平米数 | 26.25㎡ |
| 間取り | 1K+WIC | 大型収納 | WIC |
| 契約期間 | 2年 | 方角 | 西 |
| 更新料 | 1ヶ月 | 契約形態 | 普通賃貸借契約 |
| 取引態様 | 媒介 | 内見状況 | 入居中 |
| 入居時期 | 入居中 | SOHO・事務所 | 不可 |
| ペット | 可 | 間取り内訳 | 洋室8帖 |
| キャンペーン情報・備考 | 本情報は賃料改定交渉の資料作成、収益物件の利回り試算、周辺エリアや最寄り駅の坪単価分析、次回募集開始時期の予測などにご活用いただけます。 | ||
※「どの不動産に頼めばいいのか分からない」「信頼できる営業マンの話を聞きたい」「一番親切な会社と契約したい」とお悩みの方におすすめなのが「高級賃貸バイブル」です。
高級賃貸バイブルは業界10年以上の熟練スタッフ群がお客様ファーストで対応します。
下記ボタンから、まずは無料でご相談下さい。
※内覧をご希望の際には、どうぞ物件のエントランス前にてお待ち合わせくださいませ。ご内覧後は、同じ場所でお別れとさせていただきます。お客様のご都合に合わせたスムーズなご案内を心がけておりますので、ご質問等がございましたら何なりとお申し付けください。 物件概要
| 物件名 |
| 築年月 |
|
|---|---|---|---|
| 所在地 | |||
| 交通 |
| ||
| 総戸数 |
| 総階数 |
|
| 構造 |
| ||
地図
物件までの道のりは、「拡大地図を表示」をクリックしてナビ機能をご利用ください。
部屋設備









建物設備

TVモニターホン

エレベーター

オートロック

バイク置場

宅配ボックス

敷地内ゴミ置場

駐輪場
アルテシモカルドの現在募集中のお部屋
- No rooms found for this property.
