
| 賃料 | 予想金額:148,000〜168,000円程度 | 管理費 | 予想金額:10,000〜14,000円程度 |
| 礼金/敷金 | 非公開(アーカイブ) | 平米数 | 39.9㎡ |
| 初期費用概算(参考) | 目安:367,900〜467,900 円 | みなし賃料(月額・参考) | 165,415〜185,415 円 |
| 備考 | 本ページは過去募集のアーカイブです。表示の金額は周辺相場・過去募集を踏まえた参考レンジであり、実際の契約金額・条件ではありません。 | ||
※上記みなし賃料(月額)は仲介手数料割引・無料&キャッシュバックを加味した高級賃貸バイブル限定の金額です。一般的なみなし賃料とは異なります。
【建物ページ】G&J門前仲町の詳細・最新空室はこちら▶▶選ばれる理由
仲介手数料無料・キャンペーン情報(毎月15名様限定)
〇引っ越しお祝い金31600円プレゼント(キャッシュバック)
〇仲介手数料無料キャンペーン
G&J門前仲町 701の口コミ・レビュー
G&J門前仲町 701。この美しいマンションは、まるで都会の喧騒から逃れるための秘密の隠れ家のように、貴方を待ち受けています。東京都江東区永代2-30-9の地に佇むこの物件は、7階という高みから、南東の光溢れる景色を望むことができ、朝日が差し込む瞬間、ほんのりとした金色の光が室内を包み込みます。それはまるで、毎朝の始まりが新たな物語の幕開けであるかのようです。
この物件の専有面積は39.9㎡。コ…G&J門前仲町 701。この美しいマンションは、まるで都会の喧騒から逃れるための秘密の隠れ家のように、貴方を待ち受けています。東京都江東区永代2-30-9の地に佇むこの物件は、7階という高みから、南東の光溢れる景色を望むことができ、朝日が差し込む瞬間、ほんのりとした金色の光が室内を包み込みます。それはまるで、毎朝の始まりが新たな物語の幕開けであるかのようです。
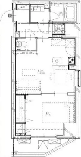
この物件の専有面積は39.9㎡。コンパクトでありながらも、優雅さを感じさせる空間が広がっています。LDKは10.4帖、洋室は5.3帖と、バランスの取れた間取りが織り成す居住空間は、貴方のライフスタイルに寄り添うパートナーとなることでしょう。ここで過ごす日々は、まるで夢の中のひととき。朝、目覚めた瞬間に感じる柔らかな光に包まれ、心地よい空気が身体を優しく撫でると、まるで新しい一日が貴方を優しく呼んでいるかのようです。
G&J門前仲町 701の魅力は、その設備にも息づいています。安心のオートロックシステムや、宅配ボックスが完備されていることで、日常の小さなストレスを解消してくれます。一人の時間を大切にする貴方に、テレビモニターホンで安心を与え、バイク置場や駐輪場、機械式駐車場も完備。交通の便がよく、東京メトロ東西線の門前仲町駅へは徒歩2分という利便性も、まるで貴方のための特別な贈り物のようです。
周囲には、古き良き江東の歴史が漂う風景が広がっています。さまざまな文化に触れながら、江東区ならではの風情ある街並みを散策する喜びも、この場所での生活ならではの特権です。近くには、味わい深い飲食店やおしゃれなカフェも点在し、食文化の冒険をすることもできます。ふらりと寄ったお店で、心温まる料理の香りや、芳醇なコーヒーの香が漂ってくる。そんなひとときは、日常の中で特別なスパイスとなり、貴方の感覚を刺激してくれることでしょう。
G&J門前仲町 701。ここでの生活は、ただの住まいを超え、一つのアート作品のように貴方を包み込みます。光と風、音と香り、すべてが調和したこの空間で、貴方はもっと自分を見つけていくことでしょう。この場所に身を委ね、新しい物語を紡いでいくことが、未来の貴方を待っています。
この物件の専有面積は39.9㎡。コ…G&J門前仲町 701。この美しいマンションは、まるで都会の喧騒から逃れるための秘密の隠れ家のように、貴方を待ち受けています。東京都江東区永代2-30-9の地に佇むこの物件は、7階という高みから、南東の光溢れる景色を望むことができ、朝日が差し込む瞬間、ほんのりとした金色の光が室内を包み込みます。それはまるで、毎朝の始まりが新たな物語の幕開けであるかのようです。
この物件の専有面積は39.9㎡。コンパクトでありながらも、優雅さを感じさせる空間が広がっています。LDKは10.4帖、洋室は5.3帖と、バランスの取れた間取りが織り成す居住空間は、貴方のライフスタイルに寄り添うパートナーとなることでしょう。ここで過ごす日々は、まるで夢の中のひととき。朝、目覚めた瞬間に感じる柔らかな光に包まれ、心地よい空気が身体を優しく撫でると、まるで新しい一日が貴方を優しく呼んでいるかのようです。
G&J門前仲町 701の魅力は、その設備にも息づいています。安心のオートロックシステムや、宅配ボックスが完備されていることで、日常の小さなストレスを解消してくれます。一人の時間を大切にする貴方に、テレビモニターホンで安心を与え、バイク置場や駐輪場、機械式駐車場も完備。交通の便がよく、東京メトロ東西線の門前仲町駅へは徒歩2分という利便性も、まるで貴方のための特別な贈り物のようです。
周囲には、古き良き江東の歴史が漂う風景が広がっています。さまざまな文化に触れながら、江東区ならではの風情ある街並みを散策する喜びも、この場所での生活ならではの特権です。近くには、味わい深い飲食店やおしゃれなカフェも点在し、食文化の冒険をすることもできます。ふらりと寄ったお店で、心温まる料理の香りや、芳醇なコーヒーの香が漂ってくる。そんなひとときは、日常の中で特別なスパイスとなり、貴方の感覚を刺激してくれることでしょう。
G&J門前仲町 701。ここでの生活は、ただの住まいを超え、一つのアート作品のように貴方を包み込みます。光と風、音と香り、すべてが調和したこの空間で、貴方はもっと自分を見つけていくことでしょう。この場所に身を委ね、新しい物語を紡いでいくことが、未来の貴方を待っています。
バイブルスコア
バイブルスコア: 45.3
条件のいい物件です、引っ越しが2か月以内の場合は仮申し込みを検討すべき物件です。
※バイブルスコア詳細はこちら
バイブルスコアとは独自のAI機械学習技術を利用した物件評価システムで、物件のおすすめ度を示します。最高得点は100点で、スコアが高いほど、よりおすすめの物件と評価されています。
写真
現在写真が登録されていません契約条件
| 賃料 | 予想金額:148,000〜168,000円程度 | 管理費 | 予想金額:10,000〜14,000円程度 |
| 礼金 | 非公開(アーカイブ) | 敷金 | 非公開(アーカイブ) |
| フリーレント | なし | 平米数 | 39.9㎡ |
| 間取り | 1LDK | 大型収納 | なし |
| 契約期間 | 2年 | 方角 | 南東 |
| 更新料 | 1ヶ月 | 契約形態 | 普通賃貸借契約 |
| 取引態様 | 媒介 | 内見状況 | 入居中 |
| 入居時期 | 入居中 | SOHO・事務所 | 不可 |
| ペット | 不可 | 間取り内訳 | LDK10.4帖 洋室5.3帖 |
| キャンペーン情報・備考 | 本情報は賃料改定交渉の資料作成、収益物件の利回り試算、周辺エリアや最寄り駅の坪単価分析、次回募集開始時期の予測などにご活用いただけます。 | ||
※「どの不動産に頼めばいいのか分からない」「信頼できる営業マンの話を聞きたい」「一番親切な会社と契約したい」とお悩みの方におすすめなのが「高級賃貸バイブル」です。
高級賃貸バイブルは業界10年以上の熟練スタッフ群がお客様ファーストで対応します。
下記ボタンから、まずは無料でご相談下さい。
※内覧をご希望の際には、どうぞ物件のエントランス前にてお待ち合わせくださいませ。ご内覧後は、同じ場所でお別れとさせていただきます。お客様のご都合に合わせたスムーズなご案内を心がけておりますので、ご質問等がございましたら何なりとお申し付けください。 物件概要
地図
物件までの道のりは、「拡大地図を表示」をクリックしてナビ機能をご利用ください。
部屋設備











建物設備

TVモニターホン

エレベーター

オートロック

バイク置場

宅配ボックス

敷地内ゴミ置場

駐車場機械式

駐輪場
G&J門前仲町の現在募集中のお部屋
- G&J門前仲町 501 - 間取り: 1LDK - 賃料: 16.1万円
