
| 賃料 | 予想金額:890,000〜910,000円程度 | 管理費 | 予想金額:0〜2,000円程度 |
| 礼金/敷金 | 非公開(アーカイブ) | 平米数 | 102.27㎡ |
| 初期費用概算(参考) | 目安:3,255,300〜3,355,300 円 | みなし賃料(月額・参考) | 940,110〜960,110 円 |
| 備考 | 本ページは過去募集のアーカイブです。表示の金額は周辺相場・過去募集を踏まえた参考レンジであり、実際の契約金額・条件ではありません。 | ||
※上記みなし賃料(月額)は仲介手数料割引・無料&キャッシュバックを加味した高級賃貸バイブル限定の金額です。一般的なみなし賃料とは異なります。
【建物ページ】リビオレジデンス西麻布の詳細・最新空室はこちら▶▶選ばれる理由
仲介手数料無料・キャンペーン情報(毎月15名様限定)
〇仲介手数料割引キャンペーン
リビオレジデンス西麻布 2801の口コミ・レビュー
リビオレジデンス西麻布 2801。その名を冠する空間で、あなたの物語が始まります。この高級賃貸物件は、東京の洗練と文化が交差する西麻布の中心に位置し、まるで美術館の一角のような特別な存在感を放っています。広がる空間は、102.27㎡の広さを誇り、贅沢な日常を演出します。自然光がやさしく差し込み、金色の輝きがLDK25.1帖の幅広い床に寄り添う様子は、まるで朝日の中で目覚めるアーティストのようです。…リビオレジデンス西麻布 2801。その名を冠する空間で、あなたの物語が始まります。この高級賃貸物件は、東京の洗練と文化が交差する西麻布の中心に位置し、まるで美術館の一角のような特別な存在感を放っています。広がる空間は、102.27㎡の広さを誇り、贅沢な日常を演出します。自然光がやさしく差し込み、金色の輝きがLDK25.1帖の幅広い床に寄り添う様子は、まるで朝日の中で目覚めるアーティストのようです。
このマンションは、ただの居住空間ではありません。リビオレジデンス西麻布 2801が語りかけるのは、ここでの日々をどのように彩るかということ。靴を脱いで一歩踏み入れれば、心地よい温もりがあなたを包み込み、洋室9帖と洋室7.3帖からは静かな安らぎが漂ってきます。まるで、長い旅から戻ったかのような安心感と快適さをお届けします。
この空間では、毎朝、窓の外に広がる美しい北西の景色を眺めながら、美味しいコーヒーの香りを楽しむことができます。落ち着いたトーンの色合いは、アートな味わいを持ち、目を楽しませてくれます。また、LDKは特別な瞬間のための舞台となり、家族や友人たちとの集いをより特別に演出します。映画のワンシーンのように、カジュアルなランチから豪華なディナーパーティまで、どんなシーンも絵になるのです。
リビオレジデンス西麻布 2801は、ただの住まいではありません。フィットネスルームで心を解き放ち、ラウンジで静かな時間を楽しむことで、心身ともにリフレッシュされます。そして、フロントサービスによって、あなたの生活はさらに豊かに彩られます。まるでハリウッド映画の主人公のように、どこに行くにも自信に満ちた足取りで。
周辺には、歴史的な文化とアートが息づく街並みが広がっています。散歩しながらアートギャラリーを訪れたり、しゃれたカフェで国内外の芸術家が集う会話を楽しむことができるのも、リビオレジデンス西麻布 2801ならではの魅力です。この場所に住むことは、ただの生活ではなく、豊かな文化の一部となることなのです。
そして、カーシェアリングサービスやバイク置場といった設備が、あなたのライフスタイルをサポートします。日常を快適に過ごすための工夫が随所に施されており、宅配ボックスや敷地内ゴミ置場も、忙しいあなたに便利さを提供します。駐車場は機械式で、安心して大切な車を預けられるのも大きな魅力です。
心惹かれる物語が待っている、リビオレジデンス西麻布 2801。この空間で、新しい生活をスタートさせてみませんか。あなたの日常を、絵画のように美しく、音楽のように心地良く彩る場所が、ここにあります。
このマンションは、ただの居住空間ではありません。リビオレジデンス西麻布 2801が語りかけるのは、ここでの日々をどのように彩るかということ。靴を脱いで一歩踏み入れれば、心地よい温もりがあなたを包み込み、洋室9帖と洋室7.3帖からは静かな安らぎが漂ってきます。まるで、長い旅から戻ったかのような安心感と快適さをお届けします。
この空間では、毎朝、窓の外に広がる美しい北西の景色を眺めながら、美味しいコーヒーの香りを楽しむことができます。落ち着いたトーンの色合いは、アートな味わいを持ち、目を楽しませてくれます。また、LDKは特別な瞬間のための舞台となり、家族や友人たちとの集いをより特別に演出します。映画のワンシーンのように、カジュアルなランチから豪華なディナーパーティまで、どんなシーンも絵になるのです。
リビオレジデンス西麻布 2801は、ただの住まいではありません。フィットネスルームで心を解き放ち、ラウンジで静かな時間を楽しむことで、心身ともにリフレッシュされます。そして、フロントサービスによって、あなたの生活はさらに豊かに彩られます。まるでハリウッド映画の主人公のように、どこに行くにも自信に満ちた足取りで。
周辺には、歴史的な文化とアートが息づく街並みが広がっています。散歩しながらアートギャラリーを訪れたり、しゃれたカフェで国内外の芸術家が集う会話を楽しむことができるのも、リビオレジデンス西麻布 2801ならではの魅力です。この場所に住むことは、ただの生活ではなく、豊かな文化の一部となることなのです。
そして、カーシェアリングサービスやバイク置場といった設備が、あなたのライフスタイルをサポートします。日常を快適に過ごすための工夫が随所に施されており、宅配ボックスや敷地内ゴミ置場も、忙しいあなたに便利さを提供します。駐車場は機械式で、安心して大切な車を預けられるのも大きな魅力です。
心惹かれる物語が待っている、リビオレジデンス西麻布 2801。この空間で、新しい生活をスタートさせてみませんか。あなたの日常を、絵画のように美しく、音楽のように心地良く彩る場所が、ここにあります。
バイブルスコア
バイブルスコア: 67.8
かなり条件の良い物件です、即仮押さえをおすすめする物件です!
このお部屋は、現在ご入居中のため空室情報はございません。ただし、将来的に募集が開始される際、バイブルスコアにおいて非常に高い評価が期待されます。特にご興味をお持ちの方は、今のうちにブックマークやお気に入りに登録していただくと、募集開始のお知らせをすぐに受け取ることができます。是非ともご検討くださいませ。
※バイブルスコア詳細はこちら
バイブルスコアとは独自のAI機械学習技術を利用した物件評価システムで、物件のおすすめ度を示します。最高得点は100点で、スコアが高いほど、よりおすすめの物件と評価されています。
写真
現在写真が登録されていません契約条件
| 賃料 | 予想金額:890,000〜910,000円程度 | 管理費 | 予想金額:0〜2,000円程度 |
| 礼金 | 非公開(アーカイブ) | 敷金 | 非公開(アーカイブ) |
| フリーレント | なし | 平米数 | 102.27㎡ |
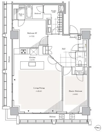
| 間取り | 2LDK+WIC+SIC | 大型収納 | SIC・WIC |
| 契約期間 | 2年間 | 方角 | 北西 |
| 更新料 | 契約期間を参照 | 契約形態 | 定期借家契約 2年間 |
| 取引態様 | 媒介 | 内見状況 | 入居中 |
| 入居時期 | 入居中 | SOHO・事務所 | 不可 |
| ペット | 可 | 間取り内訳 | LDK25.1帖 洋室9帖 洋室7.3帖 |
| キャンペーン情報・備考 | 本情報は賃料改定交渉の資料作成、収益物件の利回り試算、周辺エリアや最寄り駅の坪単価分析、次回募集開始時期の予測などにご活用いただけます。 | ||
※「どの不動産に頼めばいいのか分からない」「信頼できる営業マンの話を聞きたい」「一番親切な会社と契約したい」とお悩みの方におすすめなのが「高級賃貸バイブル」です。
高級賃貸バイブルは業界10年以上の熟練スタッフ群がお客様ファーストで対応します。
下記ボタンから、まずは無料でご相談下さい。
※内覧をご希望の際には、どうぞ物件のエントランス前にてお待ち合わせくださいませ。ご内覧後は、同じ場所でお別れとさせていただきます。お客様のご都合に合わせたスムーズなご案内を心がけておりますので、ご質問等がございましたら何なりとお申し付けください。 物件概要
| 物件名 |
| 築年月 |
|
|---|---|---|---|
| 所在地 | |||
| 交通 | |||
| 総戸数 |
| 総階数 |
|
| 構造 |
| ||
地図
物件までの道のりは、「拡大地図を表示」をクリックしてナビ機能をご利用ください。
部屋設備













建物設備

TVモニターホン

エレベーター

オートロック

バイク置場

フィットネス

フロントサービス

ラウンジ

宅配ボックス

敷地内ゴミ置場

駐車場機械式

駐輪場
リビオレジデンス西麻布の現在募集中のお部屋
- No rooms found for this property.
