
| 賃料 | 予想金額:1,340,000〜1,360,000円程度 | 管理費 | 予想金額:0〜2,000円程度 |
| 礼金/敷金 | 非公開(アーカイブ) | 平米数 | 133.03㎡ |
| 初期費用概算(参考) | 目安:4,889,700〜4,989,700 円 | みなし賃料(月額・参考) | 1,414,785〜1,434,785 円 |
| 備考 | 本ページは過去募集のアーカイブです。表示の金額は周辺相場・過去募集を踏まえた参考レンジであり、実際の契約金額・条件ではありません。 | ||
※上記みなし賃料(月額)は仲介手数料割引・無料&キャッシュバックを加味した高級賃貸バイブル限定の金額です。一般的なみなし賃料とは異なります。
【建物ページ】リビオレジデンス西麻布の詳細・最新空室はこちら▶▶選ばれる理由
仲介手数料無料・キャンペーン情報(毎月15名様限定)
〇仲介手数料割引キャンペーン
リビオレジデンス西麻布 2604の口コミ・レビュー
リビオレジデンス西麻布 2604。この名はただの物件名ではなく、貴方の新しい生活が始まる舞台の扉を開く合言葉です。2604というフロア番号は、まるで天空の一隅に位置する秘密の隠れ家のように、特別感を醸し出しています。広がる専有面積133.03㎡は、単なる空間ではなく、貴方自身の夢を描くキャンバスとなるのです。
南西向きの窓から差し込む午後の陽射しは、柔らかくリビングを包み込み、まるで太陽が貴方を…リビオレジデンス西麻布 2604。この名はただの物件名ではなく、貴方の新しい生活が始まる舞台の扉を開く合言葉です。2604というフロア番号は、まるで天空の一隅に位置する秘密の隠れ家のように、特別感を醸し出しています。広がる専有面積133.03㎡は、単なる空間ではなく、貴方自身の夢を描くキャンバスとなるのです。
南西向きの窓から差し込む午後の陽射しは、柔らかくリビングを包み込み、まるで太陽が貴方を優しく見守っているかのよう。LDK31.8帖を持つこの住まいは、友人たちと語らう笑顔の瞬間や、家族と過ごす温かな時間を作り出す、まさに心の拠り所です。キッチンの香ばしい匂いが漂う中、皆で料理を楽しんだり、夕食後のひとときにワインを片手に語らう姿が目に浮かびます。
洋室11.2帖、洋室7.6帖、そして洋室6.5帖は、それぞれに独自の物語を宿しているかのように感じます。これらの空間は、貴方の個性やスタイルに合わせて、自由に創り上げるだけでなく、静寂を享受する私的な隠れ家ともなります。窓を開ければ、豊かな緑に包まれた西麻布の風が心をリフレッシュし、まるで自然と一体になる感覚をもたらすことでしょう。
リビオレジデンス西麻布 2604の魅力は、その内装だけに留まりません。エレガントなエントランスを過ぎれば、心地よいフロントサービスが、貴方をいつでも温かく迎え入れてくれます。フィットネスルームで身体を動かし、ラウンジで心安らぐひとときを過ごせる。その瞬間瞬間が、まるで映画のワンシーンのように美しく、心に残ります。カーシェアリングやバイク置場も完備されているので、街を駆け巡る自由な冒険の始まりが待っています。
周辺の歴史や文化が息づく西麻布は、アートやグルメも豊富です。散策するたびに新たな発見があり、まるで一歩一歩が色彩豊かな絵画の中を歩くような感覚。歴史の深みを感じながらも、現代の洗練さと調和するこの街で、貴方の日常はまるで特別な映画のように彩られていくことでしょう。
リビオレジデンス西麻布 2604での生活は、ただの居住空間ではなく、心に寄り添ってくれるパートナーのようです。貴方自身の人生の物語を紡いでいく舞台。この場所での毎日が、心の底から満たされ、喜びにあふれることでしょう。新しい章を開く準備は整いましたか?貴方の物語の主人公がここに待っているのです。
南西向きの窓から差し込む午後の陽射しは、柔らかくリビングを包み込み、まるで太陽が貴方を…リビオレジデンス西麻布 2604。この名はただの物件名ではなく、貴方の新しい生活が始まる舞台の扉を開く合言葉です。2604というフロア番号は、まるで天空の一隅に位置する秘密の隠れ家のように、特別感を醸し出しています。広がる専有面積133.03㎡は、単なる空間ではなく、貴方自身の夢を描くキャンバスとなるのです。
南西向きの窓から差し込む午後の陽射しは、柔らかくリビングを包み込み、まるで太陽が貴方を優しく見守っているかのよう。LDK31.8帖を持つこの住まいは、友人たちと語らう笑顔の瞬間や、家族と過ごす温かな時間を作り出す、まさに心の拠り所です。キッチンの香ばしい匂いが漂う中、皆で料理を楽しんだり、夕食後のひとときにワインを片手に語らう姿が目に浮かびます。
洋室11.2帖、洋室7.6帖、そして洋室6.5帖は、それぞれに独自の物語を宿しているかのように感じます。これらの空間は、貴方の個性やスタイルに合わせて、自由に創り上げるだけでなく、静寂を享受する私的な隠れ家ともなります。窓を開ければ、豊かな緑に包まれた西麻布の風が心をリフレッシュし、まるで自然と一体になる感覚をもたらすことでしょう。
リビオレジデンス西麻布 2604の魅力は、その内装だけに留まりません。エレガントなエントランスを過ぎれば、心地よいフロントサービスが、貴方をいつでも温かく迎え入れてくれます。フィットネスルームで身体を動かし、ラウンジで心安らぐひとときを過ごせる。その瞬間瞬間が、まるで映画のワンシーンのように美しく、心に残ります。カーシェアリングやバイク置場も完備されているので、街を駆け巡る自由な冒険の始まりが待っています。
周辺の歴史や文化が息づく西麻布は、アートやグルメも豊富です。散策するたびに新たな発見があり、まるで一歩一歩が色彩豊かな絵画の中を歩くような感覚。歴史の深みを感じながらも、現代の洗練さと調和するこの街で、貴方の日常はまるで特別な映画のように彩られていくことでしょう。
リビオレジデンス西麻布 2604での生活は、ただの居住空間ではなく、心に寄り添ってくれるパートナーのようです。貴方自身の人生の物語を紡いでいく舞台。この場所での毎日が、心の底から満たされ、喜びにあふれることでしょう。新しい章を開く準備は整いましたか?貴方の物語の主人公がここに待っているのです。
バイブルスコア
バイブルスコア: 37.5
平均的なスコアです。
※バイブルスコア詳細はこちら
バイブルスコアとは独自のAI機械学習技術を利用した物件評価システムで、物件のおすすめ度を示します。最高得点は100点で、スコアが高いほど、よりおすすめの物件と評価されています。
写真
現在写真が登録されていません契約条件
| 賃料 | 予想金額:1,340,000〜1,360,000円程度 | 管理費 | 予想金額:0〜2,000円程度 |
| 礼金 | 非公開(アーカイブ) | 敷金 | 非公開(アーカイブ) |
| フリーレント | なし | 平米数 | 133.03㎡ |
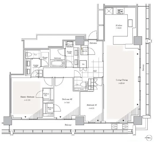
| 間取り | 3LDK+WIC | 大型収納 | WIC |
| 契約期間 | 2年間 | 方角 | 南西 |
| 更新料 | 契約期間を参照 | 契約形態 | 定期借家契約 2年間 |
| 取引態様 | 媒介 | 内見状況 | 入居中 |
| 入居時期 | 入居中 | SOHO・事務所 | 不可 |
| ペット | 可 | 間取り内訳 | LDK31.8帖 洋室11.2帖 洋室7.6帖 洋室6.5帖 |
| キャンペーン情報・備考 | 本情報は賃料改定交渉の資料作成、収益物件の利回り試算、周辺エリアや最寄り駅の坪単価分析、次回募集開始時期の予測などにご活用いただけます。 | ||
※「どの不動産に頼めばいいのか分からない」「信頼できる営業マンの話を聞きたい」「一番親切な会社と契約したい」とお悩みの方におすすめなのが「高級賃貸バイブル」です。
高級賃貸バイブルは業界10年以上の熟練スタッフ群がお客様ファーストで対応します。
下記ボタンから、まずは無料でご相談下さい。
※内覧をご希望の際には、どうぞ物件のエントランス前にてお待ち合わせくださいませ。ご内覧後は、同じ場所でお別れとさせていただきます。お客様のご都合に合わせたスムーズなご案内を心がけておりますので、ご質問等がございましたら何なりとお申し付けください。 物件概要
| 物件名 |
| 築年月 |
|
|---|---|---|---|
| 所在地 | |||
| 交通 | |||
| 総戸数 |
| 総階数 |
|
| 構造 |
| ||
地図
物件までの道のりは、「拡大地図を表示」をクリックしてナビ機能をご利用ください。
部屋設備














建物設備

TVモニターホン

エレベーター

オートロック

バイク置場

フィットネス

フロントサービス

ラウンジ

宅配ボックス

敷地内ゴミ置場

駐車場機械式

駐輪場
リビオレジデンス西麻布の現在募集中のお部屋
- No rooms found for this property.
