
| 賃料 | 予想金額:610,000〜630,000円程度 | 管理費 | 予想金額:0〜2,000円程度 |
| 礼金/敷金 | 非公開(アーカイブ) | 平米数 | 70.69㎡ |
| 初期費用概算(参考) | 目安:2,244,500〜2,344,500 円 | みなし賃料(月額・参考) | 644,885〜664,885 円 |
| 備考 | 本ページは過去募集のアーカイブです。表示の金額は周辺相場・過去募集を踏まえた参考レンジであり、実際の契約金額・条件ではありません。 | ||
※上記みなし賃料(月額)は仲介手数料割引・無料&キャッシュバックを加味した高級賃貸バイブル限定の金額です。一般的なみなし賃料とは異なります。
【建物ページ】リビオレジデンス西麻布の詳細・最新空室はこちら▶▶選ばれる理由
仲介手数料無料・キャンペーン情報(毎月15名様限定)
〇仲介手数料割引キャンペーン
リビオレジデンス西麻布 2101の口コミ・レビュー
リビオレジデンス西麻布 2101。これはただの住所ではなく、都会の喧騒から一歩足を踏み入れた瞬間に心地よい静寂に包まれる場所であり、まるで洗練されたアート作品が静かに語りかけてくるかのような特別な空間です。2101という番号は、あなたの新たな生活の幕開けを象徴する特別な数字です。その扉を開けた瞬間、まるで自分自身が映画の主人公になったかのような、不思議な高揚感が広がります。
この物件の間取り、L…リビオレジデンス西麻布 2101。これはただの住所ではなく、都会の喧騒から一歩足を踏み入れた瞬間に心地よい静寂に包まれる場所であり、まるで洗練されたアート作品が静かに語りかけてくるかのような特別な空間です。2101という番号は、あなたの新たな生活の幕開けを象徴する特別な数字です。その扉を開けた瞬間、まるで自分自身が映画の主人公になったかのような、不思議な高揚感が広がります。
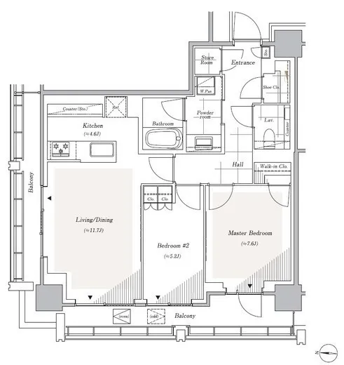
この物件の間取り、LDK16.3帖、洋室7.6帖、洋室5.2帖は、あなたが思い描く理想の生活を実現するための舞台です。広々としたLDKでは、陽光が差し込み、まるで金色の絨毯の上を歩くように心地よい足触りを感じることでしょう。その空間は、友人との楽しい集まりや、愛する人との特別なディナーにぴったりです。美味しい料理の香りが漂い、笑い声が響く中、素敵な思い出が次々と生まれていくことでしょう。
リビオレジデンス西麻布 2101には、ここに住む人々の思いを優しく包み込むフロントサービスやラウンジ、ワークラウンジといった便利な設備が揃っています。日々の忙しさの中で、ふとした瞬間に感じる安らぎ。それは、朝のコーヒーの香りが漂うラウンジでの一息や、フィットネスでの爽快感、またはカーシェアリングでの自由な旅路かもしれません。
この場所には周辺の文化や歴史が息づいています。西麻布という、このウィットに富んだエリアは、洗練されたカフェやアートギャラリーに囲まれています。それらの中で、ひときわ輝くように存在するリビオレジデンス西麻布 2101は、まるで都市の隠れた宝石のように、住む人々に深い感動を与えます。
北西向きの窓からは、日々の忙しさを忘れさせる穏やかな夕陽が差し込むことでしょう。その瞬間、あなたは自宅のバルコニーで深呼吸をし、周囲の美しい景色を独り占めすることができます。その景色は、まるで絵画の中に飛び込んだかのように、感動的な光景を提供してくれることでしょう。
リビオレジデンス西麻布 2101は、ただの住まいではなく、あなたの人生を彩る一枚の絵画のように、その独自の色合いを持っています。70.69㎡のゆとりある空間で、心地よい触れ合いが生まれ、特別な瞬間が刻まれていく。ここに住むことは、毎日を映画のワンシーンのように感じながら、最高のライフスタイルを手に入れることを意味します。新たな生活を始める舞台として、リビオレジデンス西麻布 2101であなたの物語を紡いでみてはいかがでしょうか。
この物件の間取り、L…リビオレジデンス西麻布 2101。これはただの住所ではなく、都会の喧騒から一歩足を踏み入れた瞬間に心地よい静寂に包まれる場所であり、まるで洗練されたアート作品が静かに語りかけてくるかのような特別な空間です。2101という番号は、あなたの新たな生活の幕開けを象徴する特別な数字です。その扉を開けた瞬間、まるで自分自身が映画の主人公になったかのような、不思議な高揚感が広がります。
この物件の間取り、LDK16.3帖、洋室7.6帖、洋室5.2帖は、あなたが思い描く理想の生活を実現するための舞台です。広々としたLDKでは、陽光が差し込み、まるで金色の絨毯の上を歩くように心地よい足触りを感じることでしょう。その空間は、友人との楽しい集まりや、愛する人との特別なディナーにぴったりです。美味しい料理の香りが漂い、笑い声が響く中、素敵な思い出が次々と生まれていくことでしょう。
リビオレジデンス西麻布 2101には、ここに住む人々の思いを優しく包み込むフロントサービスやラウンジ、ワークラウンジといった便利な設備が揃っています。日々の忙しさの中で、ふとした瞬間に感じる安らぎ。それは、朝のコーヒーの香りが漂うラウンジでの一息や、フィットネスでの爽快感、またはカーシェアリングでの自由な旅路かもしれません。
この場所には周辺の文化や歴史が息づいています。西麻布という、このウィットに富んだエリアは、洗練されたカフェやアートギャラリーに囲まれています。それらの中で、ひときわ輝くように存在するリビオレジデンス西麻布 2101は、まるで都市の隠れた宝石のように、住む人々に深い感動を与えます。
北西向きの窓からは、日々の忙しさを忘れさせる穏やかな夕陽が差し込むことでしょう。その瞬間、あなたは自宅のバルコニーで深呼吸をし、周囲の美しい景色を独り占めすることができます。その景色は、まるで絵画の中に飛び込んだかのように、感動的な光景を提供してくれることでしょう。
リビオレジデンス西麻布 2101は、ただの住まいではなく、あなたの人生を彩る一枚の絵画のように、その独自の色合いを持っています。70.69㎡のゆとりある空間で、心地よい触れ合いが生まれ、特別な瞬間が刻まれていく。ここに住むことは、毎日を映画のワンシーンのように感じながら、最高のライフスタイルを手に入れることを意味します。新たな生活を始める舞台として、リビオレジデンス西麻布 2101であなたの物語を紡いでみてはいかがでしょうか。
バイブルスコア
バイブルスコア: 49
条件のいい物件です、引っ越しが2か月以内の場合は仮申し込みを検討すべき物件です。
※バイブルスコア詳細はこちら
バイブルスコアとは独自のAI機械学習技術を利用した物件評価システムで、物件のおすすめ度を示します。最高得点は100点で、スコアが高いほど、よりおすすめの物件と評価されています。
写真
現在写真が登録されていません契約条件
| 賃料 | 予想金額:610,000〜630,000円程度 | 管理費 | 予想金額:0〜2,000円程度 |
| 礼金 | 非公開(アーカイブ) | 敷金 | 非公開(アーカイブ) |
| フリーレント | なし | 平米数 | 70.69㎡ |
| 間取り | 2LDK+WIC | 大型収納 | WIC |
| 契約期間 | 2年間 | 方角 | 北西 |
| 更新料 | 契約期間を参照 | 契約形態 | 定期借家契約 2年間 |
| 取引態様 | 媒介 | 内見状況 | 入居中 |
| 入居時期 | 入居中 | SOHO・事務所 | 不可 |
| ペット | 可 | 間取り内訳 | LDK16.3帖 洋室7.6帖 洋室5.2帖 |
| キャンペーン情報・備考 | 本情報は賃料改定交渉の資料作成、収益物件の利回り試算、周辺エリアや最寄り駅の坪単価分析、次回募集開始時期の予測などにご活用いただけます。 | ||
※「どの不動産に頼めばいいのか分からない」「信頼できる営業マンの話を聞きたい」「一番親切な会社と契約したい」とお悩みの方におすすめなのが「高級賃貸バイブル」です。
高級賃貸バイブルは業界10年以上の熟練スタッフ群がお客様ファーストで対応します。
下記ボタンから、まずは無料でご相談下さい。
※内覧をご希望の際には、どうぞ物件のエントランス前にてお待ち合わせくださいませ。ご内覧後は、同じ場所でお別れとさせていただきます。お客様のご都合に合わせたスムーズなご案内を心がけておりますので、ご質問等がございましたら何なりとお申し付けください。 物件概要
| 物件名 |
| 築年月 |
|
|---|---|---|---|
| 所在地 | |||
| 交通 | |||
| 総戸数 |
| 総階数 |
|
| 構造 |
| ||
地図
物件までの道のりは、「拡大地図を表示」をクリックしてナビ機能をご利用ください。
部屋設備













建物設備

TVモニターホン

エレベーター

オートロック

バイク置場

フィットネス

フロントサービス

ラウンジ

宅配ボックス

敷地内ゴミ置場

駐車場機械式

駐輪場
リビオレジデンス西麻布の現在募集中のお部屋
- No rooms found for this property.
