
| 賃料 | 予想金額:605,000〜625,000円程度 | 管理費 | 予想金額:0〜2,000円程度 |
| 礼金/敷金 | 非公開(アーカイブ) | 平米数 | 80.09㎡ |
| 初期費用概算(参考) | 目安:2,227,000〜2,327,000 円 | みなし賃料(月額・参考) | 639,625〜659,625 円 |
| 備考 | 本ページは過去募集のアーカイブです。表示の金額は周辺相場・過去募集を踏まえた参考レンジであり、実際の契約金額・条件ではありません。 | ||
※上記みなし賃料(月額)は仲介手数料割引・無料&キャッシュバックを加味した高級賃貸バイブル限定の金額です。一般的なみなし賃料とは異なります。
【建物ページ】リビオレジデンス西麻布の詳細・最新空室はこちら▶▶選ばれる理由
仲介手数料無料・キャンペーン情報(毎月15名様限定)
〇仲介手数料割引キャンペーン
リビオレジデンス西麻布 1505の口コミ・レビュー
リビオレジデンス西麻布 1505。ここは、ただの住まいではなく、人生という名の映画の舞台です。あなたがこの場所に足を踏み入れる瞬間、すぐにわかるでしょう。南東の空から注がれる陽光が、この美しい空間を柔らかく包み込み、朝のコーヒーの香りと共に、ひとときの至福をもたらします。
80.09㎡の広大な専有面積を持つこのリビオレジデンス西麻布 1505は、まるであなたの人生の新しい章を語る特別な場所です。…リビオレジデンス西麻布 1505。ここは、ただの住まいではなく、人生という名の映画の舞台です。あなたがこの場所に足を踏み入れる瞬間、すぐにわかるでしょう。南東の空から注がれる陽光が、この美しい空間を柔らかく包み込み、朝のコーヒーの香りと共に、ひとときの至福をもたらします。
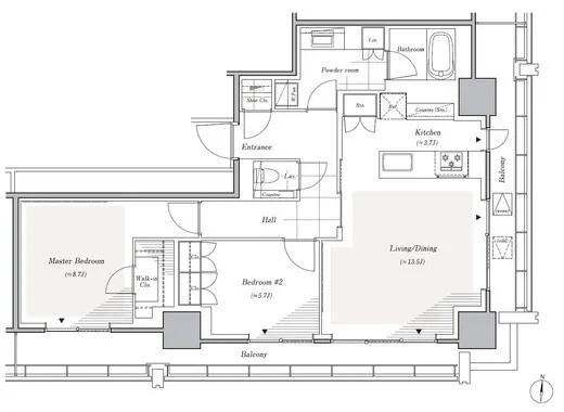
80.09㎡の広大な専有面積を持つこのリビオレジデンス西麻布 1505は、まるであなたの人生の新しい章を語る特別な場所です。LDKは17.2帖の贅沢な空間で、そこには家族や友人との絆を育むための温かなバトンが受け渡されます。どこまでも続く青空に向かって広がる窓からは、都会の喧騒を忘れさせてくれる静けさが漂い、まるでオアシスのようです。
内部に足を踏み入れると、8.7帖の洋室があなたを迎え入れてくれます。そこには、優雅な時間が流れ、あなたの想像力をかきたてます。壁には心を込めたアートが飾られ、日々の疲れを癒し、インスピレーションを与えてくれることでしょう。一方、5.7帖の洋室は、あなたの大切なプライベートスペース。遅い午後に日差しが差し込み、そこで読書に耽る姿は、まるで映画のワンシーンのようです。
リビオレジデンス西麻布 1505は、ただの住まいではなく、あなたの生活そのものを豊かにするための舞台装置です。TVモニターホンやオートロックといった最先端の設備が、現代の安全と便利さを約束します。フィットネスやラウンジ、フロントサービス、宅配ボックスなどの共用施設も充実しており、まさに暮らしのクオリティを高めるための心配りが行き届いています。
また、周辺の歴史や文化も、このリビオレジデンス西麻布 1505の魅力の一部です。広尾駅から徒歩12分という絶妙な距離は、贅沢な街並みを散策するための完璧な舞台でもあります。高級ブランドの軒を連ねる街には、心を満たすアートギャラリーやカフェが点在し、訪れるたびに新しい発見が待っています。匂い立つような料理の香りや、街の音色が、あなたの五感を刺激し、暮らしに彩りを添えます。
リビオレジデンス西麻布 1505での生活は、まるで映画の主役のように一瞬一瞬を大切にし、人生の美しさに触れられる場所。さあ、あなたも、この特別な空間で自分だけのストーリーを紡いでみませんか。新しい暮らしが、あなたを待っています。
80.09㎡の広大な専有面積を持つこのリビオレジデンス西麻布 1505は、まるであなたの人生の新しい章を語る特別な場所です。…リビオレジデンス西麻布 1505。ここは、ただの住まいではなく、人生という名の映画の舞台です。あなたがこの場所に足を踏み入れる瞬間、すぐにわかるでしょう。南東の空から注がれる陽光が、この美しい空間を柔らかく包み込み、朝のコーヒーの香りと共に、ひとときの至福をもたらします。
80.09㎡の広大な専有面積を持つこのリビオレジデンス西麻布 1505は、まるであなたの人生の新しい章を語る特別な場所です。LDKは17.2帖の贅沢な空間で、そこには家族や友人との絆を育むための温かなバトンが受け渡されます。どこまでも続く青空に向かって広がる窓からは、都会の喧騒を忘れさせてくれる静けさが漂い、まるでオアシスのようです。
内部に足を踏み入れると、8.7帖の洋室があなたを迎え入れてくれます。そこには、優雅な時間が流れ、あなたの想像力をかきたてます。壁には心を込めたアートが飾られ、日々の疲れを癒し、インスピレーションを与えてくれることでしょう。一方、5.7帖の洋室は、あなたの大切なプライベートスペース。遅い午後に日差しが差し込み、そこで読書に耽る姿は、まるで映画のワンシーンのようです。
リビオレジデンス西麻布 1505は、ただの住まいではなく、あなたの生活そのものを豊かにするための舞台装置です。TVモニターホンやオートロックといった最先端の設備が、現代の安全と便利さを約束します。フィットネスやラウンジ、フロントサービス、宅配ボックスなどの共用施設も充実しており、まさに暮らしのクオリティを高めるための心配りが行き届いています。
また、周辺の歴史や文化も、このリビオレジデンス西麻布 1505の魅力の一部です。広尾駅から徒歩12分という絶妙な距離は、贅沢な街並みを散策するための完璧な舞台でもあります。高級ブランドの軒を連ねる街には、心を満たすアートギャラリーやカフェが点在し、訪れるたびに新しい発見が待っています。匂い立つような料理の香りや、街の音色が、あなたの五感を刺激し、暮らしに彩りを添えます。
リビオレジデンス西麻布 1505での生活は、まるで映画の主役のように一瞬一瞬を大切にし、人生の美しさに触れられる場所。さあ、あなたも、この特別な空間で自分だけのストーリーを紡いでみませんか。新しい暮らしが、あなたを待っています。
バイブルスコア
バイブルスコア: 51.1
条件のいい物件です、引っ越しが2か月以内の場合は仮申し込みを検討すべき物件です。
このお部屋は、現在ご入居中のため空室情報はございません。ただし、将来的に募集が開始される際、バイブルスコアにおいて非常に高い評価が期待されます。特にご興味をお持ちの方は、今のうちにブックマークやお気に入りに登録していただくと、募集開始のお知らせをすぐに受け取ることができます。是非ともご検討くださいませ。
※バイブルスコア詳細はこちら
バイブルスコアとは独自のAI機械学習技術を利用した物件評価システムで、物件のおすすめ度を示します。最高得点は100点で、スコアが高いほど、よりおすすめの物件と評価されています。
写真
現在写真が登録されていません契約条件
| 賃料 | 予想金額:605,000〜625,000円程度 | 管理費 | 予想金額:0〜2,000円程度 |
| 礼金 | 非公開(アーカイブ) | 敷金 | 非公開(アーカイブ) |
| フリーレント | なし | 平米数 | 80.09㎡ |
| 間取り | 2LDK+WIC | 大型収納 | WIC |
| 契約期間 | 2年間 | 方角 | 南東 |
| 更新料 | 契約期間を参照 | 契約形態 | 定期借家契約 2年間 |
| 取引態様 | 媒介 | 内見状況 | 入居中 |
| 入居時期 | 入居中 | SOHO・事務所 | 不可 |
| ペット | 可 | 間取り内訳 | LDK17.2帖 洋室8.7帖 洋室5.7帖 |
| キャンペーン情報・備考 | 本情報は賃料改定交渉の資料作成、収益物件の利回り試算、周辺エリアや最寄り駅の坪単価分析、次回募集開始時期の予測などにご活用いただけます。 | ||
※「どの不動産に頼めばいいのか分からない」「信頼できる営業マンの話を聞きたい」「一番親切な会社と契約したい」とお悩みの方におすすめなのが「高級賃貸バイブル」です。
高級賃貸バイブルは業界10年以上の熟練スタッフ群がお客様ファーストで対応します。
下記ボタンから、まずは無料でご相談下さい。
※内覧をご希望の際には、どうぞ物件のエントランス前にてお待ち合わせくださいませ。ご内覧後は、同じ場所でお別れとさせていただきます。お客様のご都合に合わせたスムーズなご案内を心がけておりますので、ご質問等がございましたら何なりとお申し付けください。 物件概要
| 物件名 |
| 築年月 |
|
|---|---|---|---|
| 所在地 | |||
| 交通 | |||
| 総戸数 |
| 総階数 |
|
| 構造 |
| ||
地図
物件までの道のりは、「拡大地図を表示」をクリックしてナビ機能をご利用ください。
部屋設備














建物設備

TVモニターホン

エレベーター

オートロック

バイク置場

フィットネス

フロントサービス

ラウンジ

宅配ボックス

敷地内ゴミ置場

駐車場機械式

駐輪場
リビオレジデンス西麻布の現在募集中のお部屋
- No rooms found for this property.
