
| 賃料 | 予想金額:233,000〜253,000円程度 | 管理費 | 予想金額:18,000〜22,000円程度 |
| 礼金/敷金 | 非公開(アーカイブ) | 平米数 | 59.16㎡ |
| 初期費用概算(参考) | 目安:376,000〜476,000 円 | みなし賃料(月額・参考) | 256,813〜276,813 円 |
| 備考 | 本ページは過去募集のアーカイブです。表示の金額は周辺相場・過去募集を踏まえた参考レンジであり、実際の契約金額・条件ではありません。 | ||
※上記みなし賃料(月額)は仲介手数料割引・無料&キャッシュバックを加味した高級賃貸バイブル限定の金額です。一般的なみなし賃料とは異なります。
【建物ページ】ニューミラ明大前の詳細・最新空室はこちら▶▶選ばれる理由
仲介手数料無料・キャンペーン情報(毎月15名様限定)
〇引っ越しお祝い金5000円プレゼント(キャッシュバック)
〇仲介手数料無料キャンペーン
ニューミラ明大前 703の口コミ・レビュー
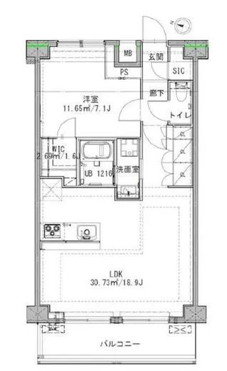
CREAL premier (クリアルプレミア) 703。これはただの住所ではなく、心の故郷となるべき場所。その扉を開けると、豊かで洗練された空間が広がります。703号室は、まるでひとつのアートピースのように、さまざまな物語を紡ぐために存在しています。専有面積59.16㎡の中には、DK18.9帖と洋室7.1帖の美しい間取りが、あなたを優雅に包み込むように設計されています。ここに流れる時間は、まるで…CREAL premier (クリアルプレミア) 703。これはただの住所ではなく、心の故郷となるべき場所。その扉を開けると、豊かで洗練された空間が広がります。703号室は、まるでひとつのアートピースのように、さまざまな物語を紡ぐために存在しています。専有面積59.16㎡の中には、DK18.9帖と洋室7.1帖の美しい間取りが、あなたを優雅に包み込むように設計されています。ここに流れる時間は、まるで静かな音楽の調べのようで、心の深い部分まで響き渡ります。
この空間は、自分だけのシェルターとして、さまざまな季節や感情を映し出します。ふと窓を開ければ、西の空に沈む夕日が、柔らかなオレンジ色の光を浴びせ、まるでキャンバスに描かれた風景画のよう。そんな静かな時間を共有する瞬間が、あなたの心に寄り添うことでしょう。ここでは、思わず深呼吸をしたくなる爽やかな風が舞い込み、五感が刺激されます。爽やかな木の香りが漂い、毎朝コーヒーの香りに包まれながら、最高の一日が始まります。
CREAL premier (クリアルプレミア) の魅力は、住まう人々が織り成す生活の質にあります。オートロックやエレベーター、バイク置場、そして宅配ボックスなど、現代のライフスタイルに寄り添う設備が整っており、ストレスのない日々を実現します。特に、京王線 明大前駅から徒歩2分というアクセスの良さは、忙しい日常においても、思い立ったらすぐに出かけられる自由な時間を与えてくれます。まるで、いつでも冒険に出かけられる探検家のような気分になれる場所です。
さらに、周辺には懐かしい歴史や文化が息づいています。世田谷区の豊かさを感じる街並みや、静かな公園、アートギャラリーが点在し、日々の生活を特別な瞬間に変えてくれます。クリアルプレミアの住人として、そんな場所を散策しながら、心に残る芸術に触れることができるのです。美味しい食材を使った手料理を楽しむ際、出窓から見える景色に心惹かれ、自然と家族や友人との会話が弾むことでしょう。まるで映画のワンシーンのような光景が、日常の中に散りばめられています。
住まうことは、単なる生活の場を持つことではなく、心を育む場所を持つこと。CREAL premier (クリアルプレミア) 703は、その理想を叶えるために存在しています。この空間が、あなたの人生に彩りを加え、一歩踏み出す勇気を与えてくれることでしょう。新たな物語をここから始めてみませんか。あなたの未来が、この703号室で待っています。
この空間は、自分だけのシェルターとして、さまざまな季節や感情を映し出します。ふと窓を開ければ、西の空に沈む夕日が、柔らかなオレンジ色の光を浴びせ、まるでキャンバスに描かれた風景画のよう。そんな静かな時間を共有する瞬間が、あなたの心に寄り添うことでしょう。ここでは、思わず深呼吸をしたくなる爽やかな風が舞い込み、五感が刺激されます。爽やかな木の香りが漂い、毎朝コーヒーの香りに包まれながら、最高の一日が始まります。
CREAL premier (クリアルプレミア) の魅力は、住まう人々が織り成す生活の質にあります。オートロックやエレベーター、バイク置場、そして宅配ボックスなど、現代のライフスタイルに寄り添う設備が整っており、ストレスのない日々を実現します。特に、京王線 明大前駅から徒歩2分というアクセスの良さは、忙しい日常においても、思い立ったらすぐに出かけられる自由な時間を与えてくれます。まるで、いつでも冒険に出かけられる探検家のような気分になれる場所です。
さらに、周辺には懐かしい歴史や文化が息づいています。世田谷区の豊かさを感じる街並みや、静かな公園、アートギャラリーが点在し、日々の生活を特別な瞬間に変えてくれます。クリアルプレミアの住人として、そんな場所を散策しながら、心に残る芸術に触れることができるのです。美味しい食材を使った手料理を楽しむ際、出窓から見える景色に心惹かれ、自然と家族や友人との会話が弾むことでしょう。まるで映画のワンシーンのような光景が、日常の中に散りばめられています。
住まうことは、単なる生活の場を持つことではなく、心を育む場所を持つこと。CREAL premier (クリアルプレミア) 703は、その理想を叶えるために存在しています。この空間が、あなたの人生に彩りを加え、一歩踏み出す勇気を与えてくれることでしょう。新たな物語をここから始めてみませんか。あなたの未来が、この703号室で待っています。
バイブルスコア
バイブルスコア: 65
かなり条件の良い物件です、即仮押さえをおすすめする物件です!
このお部屋は、現在ご入居中のため空室情報はございません。ただし、将来的に募集が開始される際、バイブルスコアにおいて非常に高い評価が期待されます。特にご興味をお持ちの方は、今のうちにブックマークやお気に入りに登録していただくと、募集開始のお知らせをすぐに受け取ることができます。是非ともご検討くださいませ。
※バイブルスコア詳細はこちら
バイブルスコアとは独自のAI機械学習技術を利用した物件評価システムで、物件のおすすめ度を示します。最高得点は100点で、スコアが高いほど、よりおすすめの物件と評価されています。
写真
現在写真が登録されていません契約条件
| 賃料 | 予想金額:233,000〜253,000円程度 | 管理費 | 予想金額:18,000〜22,000円程度 |
| 礼金 | 非公開(アーカイブ) | 敷金 | 非公開(アーカイブ) |
| フリーレント | なし | 平米数 | 59.16㎡ |
| 間取り | 1LDK+WIC+SIC | 大型収納 | SIC・WIC |
| 契約期間 | 2年 | 方角 | 西 |
| 更新料 | 1ヶ月 | 契約形態 | 普通賃貸借契約 |
| 取引態様 | 媒介 | 内見状況 | 入居中 |
| 入居時期 | 入居中 | SOHO・事務所 | 不可 |
| ペット | 可 | 間取り内訳 | DK18.9帖 洋室7.1帖 |
| キャンペーン情報・備考 | 本情報は賃料改定交渉の資料作成、収益物件の利回り試算、周辺エリアや最寄り駅の坪単価分析、次回募集開始時期の予測などにご活用いただけます。 | ||
※「どの不動産に頼めばいいのか分からない」「信頼できる営業マンの話を聞きたい」「一番親切な会社と契約したい」とお悩みの方におすすめなのが「高級賃貸バイブル」です。
高級賃貸バイブルは業界10年以上の熟練スタッフ群がお客様ファーストで対応します。
下記ボタンから、まずは無料でご相談下さい。
※内覧をご希望の際には、どうぞ物件のエントランス前にてお待ち合わせくださいませ。ご内覧後は、同じ場所でお別れとさせていただきます。お客様のご都合に合わせたスムーズなご案内を心がけておりますので、ご質問等がございましたら何なりとお申し付けください。 物件概要
地図
物件までの道のりは、「拡大地図を表示」をクリックしてナビ機能をご利用ください。
部屋設備












建物設備

TVモニターホン

エレベーター

オートロック

バイク置場

宅配ボックス

敷地内ゴミ置場

駐車場機械式

駐輪場
ニューミラ明大前の現在募集中のお部屋
- ニューミラ明大前 705 - 間取り: 3LDK - 賃料: 37.9万円
- ニューミラ明大前 203 - 間取り: 1DK - 賃料: 15.4万円
- ニューミラ明大前 404 - 間取り: 1DK - 賃料: 15.6万円
- ニューミラ明大前 403 - 間取り: 1DK - 賃料: 15.6万円
