
| 賃料 | 予想金額:134,000〜154,000円程度 | 管理費 | 予想金額:10,000〜14,000円程度 |
| 礼金/敷金 | 非公開(アーカイブ) | 平米数 | 27.61㎡ |
| 初期費用概算(参考) | 目安:294,700〜394,700 円 | みなし賃料(月額・参考) | 150,181〜170,181 円 |
| 備考 | 本ページは過去募集のアーカイブです。表示の金額は周辺相場・過去募集を踏まえた参考レンジであり、実際の契約金額・条件ではありません。 | ||
※上記みなし賃料(月額)は仲介手数料割引・無料&キャッシュバックを加味した高級賃貸バイブル限定の金額です。一般的なみなし賃料とは異なります。
【建物ページ】ニューミラ明大前の詳細・最新空室はこちら▶▶選ばれる理由
仲介手数料無料・キャンペーン情報(毎月15名様限定)
〇引っ越しお祝い金5000円プレゼント(キャッシュバック)
ニューミラ明大前 311の口コミ・レビュー
CREAL premier (クリアルプレミア) 311。あなたのために生まれたようなこの小宇宙は、東京都世田谷区松原2-22-11に佇んでいます。静寂を背景に、日々の喧騒から解放される場所として、あなたを優しく迎え入れます。この特別な住居は、まるであなたに語りかけるかのように、その魅力をそっと奏でます。
311号室に足を踏み入れると、まず感じるのは心地よい空気。広がるDK6.3帖は、厳選された…CREAL premier (クリアルプレミア) 311。あなたのために生まれたようなこの小宇宙は、東京都世田谷区松原2-22-11に佇んでいます。静寂を背景に、日々の喧騒から解放される場所として、あなたを優しく迎え入れます。この特別な住居は、まるであなたに語りかけるかのように、その魅力をそっと奏でます。
311号室に足を踏み入れると、まず感じるのは心地よい空気。広がるDK6.3帖は、厳選された家具と調和し、日常の穏やかな瞬間を演出します。窓から差し込む穏やかな陽射しはまるで、朝のコーヒーを淹れる際に漂う香ばしい香りが、あなたの一日の始まりを祝福するかのようです。そして、洋室4.4帖では、くつろぎのひとときを。読書にふけるのも良し、心地よい音楽に包まれながら、贅沢な時間を過ごすのも良し。ここには、あなた自身の物語が紡がれる場所が広がっています。
明大前駅から徒歩2分という立地は、まさに都会の宝石。周囲には歴史ある脇道が広がり、足を運ぶたびに新たな発見が待っています。周辺の古き良き世田谷文化と、洗練された現代アートが混ざり合い、まるで自然と芸術が一体化したかのような風景が広がります。この街に身を置くことで、あなた自身もまるで一つのアート作品となり、日常が特別なものへと変わるのです。
CREAL premier (クリアルプレミア) 311の設備は、ただの機能以上の存在です。オートロックやエレベーター、宅配ボックスは、まるで折り紙のように幾重にも重なり、あなたを安全に、そして便利に日常へと導きます。バイク置場や駐輪場は、自由を象徴し、心の赴くままに旅へと出かけられる準備を整えてくれます。敷地内のゴミ置場も、環境への配慮と暮らしの快適さを両立させているのです。
この27.61㎡の空間には、無限の可能性が詰まっています。あなたが望むスタイルで彩り、過ごし方を自由に形作ることができるのです。この場所があなたを包み込み、五感で感じる喜びを与えてくれることでしょう。クリアルプレミアが、あなたの生活にどのような美しいストーリーをもたらしてくれるか、想像するだけで心が躍ります。
過去の魅力と未来の約束が交錯するこの地で、あなたの生活が、まるで映画の一シーンのように美しく展開されていくことを、心より願っています。CREAL premier (クリアルプレミア) 311で、あなたの新しい生活を始めてみませんか。あなたという主人公のために、この場所が静かに待っています。
311号室に足を踏み入れると、まず感じるのは心地よい空気。広がるDK6.3帖は、厳選された…CREAL premier (クリアルプレミア) 311。あなたのために生まれたようなこの小宇宙は、東京都世田谷区松原2-22-11に佇んでいます。静寂を背景に、日々の喧騒から解放される場所として、あなたを優しく迎え入れます。この特別な住居は、まるであなたに語りかけるかのように、その魅力をそっと奏でます。
311号室に足を踏み入れると、まず感じるのは心地よい空気。広がるDK6.3帖は、厳選された家具と調和し、日常の穏やかな瞬間を演出します。窓から差し込む穏やかな陽射しはまるで、朝のコーヒーを淹れる際に漂う香ばしい香りが、あなたの一日の始まりを祝福するかのようです。そして、洋室4.4帖では、くつろぎのひとときを。読書にふけるのも良し、心地よい音楽に包まれながら、贅沢な時間を過ごすのも良し。ここには、あなた自身の物語が紡がれる場所が広がっています。
明大前駅から徒歩2分という立地は、まさに都会の宝石。周囲には歴史ある脇道が広がり、足を運ぶたびに新たな発見が待っています。周辺の古き良き世田谷文化と、洗練された現代アートが混ざり合い、まるで自然と芸術が一体化したかのような風景が広がります。この街に身を置くことで、あなた自身もまるで一つのアート作品となり、日常が特別なものへと変わるのです。
CREAL premier (クリアルプレミア) 311の設備は、ただの機能以上の存在です。オートロックやエレベーター、宅配ボックスは、まるで折り紙のように幾重にも重なり、あなたを安全に、そして便利に日常へと導きます。バイク置場や駐輪場は、自由を象徴し、心の赴くままに旅へと出かけられる準備を整えてくれます。敷地内のゴミ置場も、環境への配慮と暮らしの快適さを両立させているのです。
この27.61㎡の空間には、無限の可能性が詰まっています。あなたが望むスタイルで彩り、過ごし方を自由に形作ることができるのです。この場所があなたを包み込み、五感で感じる喜びを与えてくれることでしょう。クリアルプレミアが、あなたの生活にどのような美しいストーリーをもたらしてくれるか、想像するだけで心が躍ります。
過去の魅力と未来の約束が交錯するこの地で、あなたの生活が、まるで映画の一シーンのように美しく展開されていくことを、心より願っています。CREAL premier (クリアルプレミア) 311で、あなたの新しい生活を始めてみませんか。あなたという主人公のために、この場所が静かに待っています。
バイブルスコア
バイブルスコア: 46
条件のいい物件です、引っ越しが2か月以内の場合は仮申し込みを検討すべき物件です。
※バイブルスコア詳細はこちら
バイブルスコアとは独自のAI機械学習技術を利用した物件評価システムで、物件のおすすめ度を示します。最高得点は100点で、スコアが高いほど、よりおすすめの物件と評価されています。
写真
現在写真が登録されていません契約条件
| 賃料 | 予想金額:134,000〜154,000円程度 | 管理費 | 予想金額:10,000〜14,000円程度 |
| 礼金 | 非公開(アーカイブ) | 敷金 | 非公開(アーカイブ) |
| フリーレント | なし | 平米数 | 27.61㎡ |
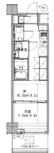
| 間取り | 1DK | 大型収納 | なし |
| 契約期間 | 2年 | 方角 | |
| 更新料 | 1ヶ月 | 契約形態 | 普通賃貸借契約 |
| 取引態様 | 媒介 | 内見状況 | 入居中 |
| 入居時期 | 入居中 | SOHO・事務所 | 不可 |
| ペット | 可 | 間取り内訳 | DK6.3帖 洋室4.4帖 |
| キャンペーン情報・備考 | 本情報は賃料改定交渉の資料作成、収益物件の利回り試算、周辺エリアや最寄り駅の坪単価分析、次回募集開始時期の予測などにご活用いただけます。 | ||
※「どの不動産に頼めばいいのか分からない」「信頼できる営業マンの話を聞きたい」「一番親切な会社と契約したい」とお悩みの方におすすめなのが「高級賃貸バイブル」です。
高級賃貸バイブルは業界10年以上の熟練スタッフ群がお客様ファーストで対応します。
下記ボタンから、まずは無料でご相談下さい。
※内覧をご希望の際には、どうぞ物件のエントランス前にてお待ち合わせくださいませ。ご内覧後は、同じ場所でお別れとさせていただきます。お客様のご都合に合わせたスムーズなご案内を心がけておりますので、ご質問等がございましたら何なりとお申し付けください。 物件概要
地図
物件までの道のりは、「拡大地図を表示」をクリックしてナビ機能をご利用ください。
部屋設備









建物設備

TVモニターホン

エレベーター

オートロック

バイク置場

宅配ボックス

敷地内ゴミ置場

駐車場機械式

駐輪場
ニューミラ明大前の現在募集中のお部屋
- ニューミラ明大前 705 - 間取り: 3LDK - 賃料: 37.9万円
- ニューミラ明大前 203 - 間取り: 1DK - 賃料: 15.4万円
- ニューミラ明大前 404 - 間取り: 1DK - 賃料: 15.6万円
- ニューミラ明大前 403 - 間取り: 1DK - 賃料: 15.6万円
