
| 賃料 | 予想金額:156,000〜176,000円程度 | 管理費 | 予想金額:0〜2,000円程度 |
| 礼金/敷金 | 非公開(アーカイブ) | 平米数 | 27.5㎡ |
| 初期費用概算(参考) | 目安:821,500〜921,500 円 | みなし賃料(月額・参考) | 170,698〜190,698 円 |
| 備考 | 本ページは過去募集のアーカイブです。表示の金額は周辺相場・過去募集を踏まえた参考レンジであり、実際の契約金額・条件ではありません。 | ||
※上記みなし賃料(月額)は仲介手数料割引・無料&キャッシュバックを加味した高級賃貸バイブル限定の金額です。一般的なみなし賃料とは異なります。
【建物ページ】SHIBUYA HILLSの詳細・最新空室はこちら▶▶選ばれる理由
仲介手数料無料・キャンペーン情報(毎月15名様限定)
〇仲介手数料割引キャンペーン
SHIBUYA HILLS 301の口コミ・レビュー
SHIBUYA HILLS 301は、都会の喧騒から一歩離れ、心安らぐ空間をお届けする特別な住まいです。この朽ちることのない魅力を持つ物件は、東京都渋谷区桜丘町30-9に位置し、素敵な生活を送りたい方にとって理想的な舞台となります。西向きの窓からは、夕暮れの空が美しく染まる瞬間を楽しむことができ、まるで心に憧れを抱く映画のワンシーンのようです。
SHIBUYA HILLS 301の間取りは、洋室…SHIBUYA HILLS 301は、都会の喧騒から一歩離れ、心安らぐ空間をお届けする特別な住まいです。この朽ちることのない魅力を持つ物件は、東京都渋谷区桜丘町30-9に位置し、素敵な生活を送りたい方にとって理想的な舞台となります。西向きの窓からは、夕暮れの空が美しく染まる瞬間を楽しむことができ、まるで心に憧れを抱く映画のワンシーンのようです。
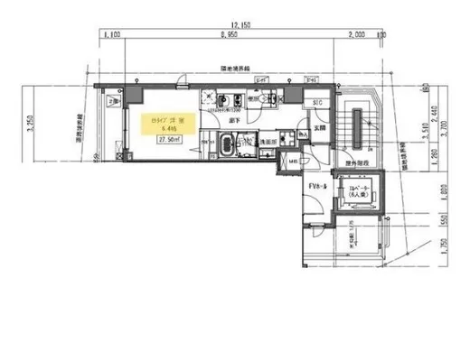
SHIBUYA HILLS 301の間取りは、洋室6.4帖に加え、こだわりのSIC(シューズインクローク)が備わっています。この広々とした空間は、あなたの個性を映し出す鏡のように、あなたのセンスを反映させます。しっかりとした壁に支えられ、温かみのある自然な色調の床が、感覚に優しい安らぎを与えてくれます。足元には柔らかな絨毯を敷き、心地よい触感とともに、素足で歩く喜びを感じてください。
SHIBUYA HILLS 301では、毎日の生活が新たな発見に満ちています。朝の静けさの中、コーヒーの香りが漂い、しっかりしたカウンターで準備をする姿を想像してください。心地よい音楽のメロディーが流れ、思わず口ずさむことができる空間。それは、まるで街の賑やかさを忘れさせるかのように、あなた自身の特別な時間に浸ることを可能にします。
また、JR山手線渋谷駅から徒歩9分というアクセスの良さは、都心の中でも独特の利便性を提供します。通勤やお出かけも、SHIBUYA HILLS 301の住まいから始まる旅のようなもの。周辺には文化と歴史が息づくスポットが点在しており、アートギャラリーやカフェ、ショップなど、まるで宝物探しを楽しむかのように、散策することができます。渋谷の街の心臓部で、感性を刺激する美しい環境の中で、新たな出会いや経験を楽しむことができるのです。
さらに、オートロックとエレベーター、TVモニターホンという設備は、安心で快適な生活を実現します。都会の喧騒から守られたこの場所で、心の安らぎを感じながら、素敵な仲間と過ごす時間を思い描いてください。SHIBUYA HILLS 301は、あなたの生活に新たな物語を紡ぎ出す舞台なのです。
この空間での生活は、毎日を映画のワンシーンに変える力を持っています。どんな小さな瞬間も、SHIBUYA HILLS 301の中では特別なものに変わります。与えられた27.5㎡のスペースが、あなたの個性を際立たせ、心温まる思い出を作り出すのです。さあ、SHIBUYA HILLS 301で、あなたの新しいストーリーを始めませんか。
SHIBUYA HILLS 301の間取りは、洋室…SHIBUYA HILLS 301は、都会の喧騒から一歩離れ、心安らぐ空間をお届けする特別な住まいです。この朽ちることのない魅力を持つ物件は、東京都渋谷区桜丘町30-9に位置し、素敵な生活を送りたい方にとって理想的な舞台となります。西向きの窓からは、夕暮れの空が美しく染まる瞬間を楽しむことができ、まるで心に憧れを抱く映画のワンシーンのようです。
SHIBUYA HILLS 301の間取りは、洋室6.4帖に加え、こだわりのSIC(シューズインクローク)が備わっています。この広々とした空間は、あなたの個性を映し出す鏡のように、あなたのセンスを反映させます。しっかりとした壁に支えられ、温かみのある自然な色調の床が、感覚に優しい安らぎを与えてくれます。足元には柔らかな絨毯を敷き、心地よい触感とともに、素足で歩く喜びを感じてください。
SHIBUYA HILLS 301では、毎日の生活が新たな発見に満ちています。朝の静けさの中、コーヒーの香りが漂い、しっかりしたカウンターで準備をする姿を想像してください。心地よい音楽のメロディーが流れ、思わず口ずさむことができる空間。それは、まるで街の賑やかさを忘れさせるかのように、あなた自身の特別な時間に浸ることを可能にします。
また、JR山手線渋谷駅から徒歩9分というアクセスの良さは、都心の中でも独特の利便性を提供します。通勤やお出かけも、SHIBUYA HILLS 301の住まいから始まる旅のようなもの。周辺には文化と歴史が息づくスポットが点在しており、アートギャラリーやカフェ、ショップなど、まるで宝物探しを楽しむかのように、散策することができます。渋谷の街の心臓部で、感性を刺激する美しい環境の中で、新たな出会いや経験を楽しむことができるのです。
さらに、オートロックとエレベーター、TVモニターホンという設備は、安心で快適な生活を実現します。都会の喧騒から守られたこの場所で、心の安らぎを感じながら、素敵な仲間と過ごす時間を思い描いてください。SHIBUYA HILLS 301は、あなたの生活に新たな物語を紡ぎ出す舞台なのです。
この空間での生活は、毎日を映画のワンシーンに変える力を持っています。どんな小さな瞬間も、SHIBUYA HILLS 301の中では特別なものに変わります。与えられた27.5㎡のスペースが、あなたの個性を際立たせ、心温まる思い出を作り出すのです。さあ、SHIBUYA HILLS 301で、あなたの新しいストーリーを始めませんか。
バイブルスコア
バイブルスコア: 45.5
条件のいい物件です、引っ越しが2か月以内の場合は仮申し込みを検討すべき物件です。
※バイブルスコア詳細はこちら
バイブルスコアとは独自のAI機械学習技術を利用した物件評価システムで、物件のおすすめ度を示します。最高得点は100点で、スコアが高いほど、よりおすすめの物件と評価されています。
写真
現在写真が登録されていません契約条件
| 賃料 | 予想金額:156,000〜176,000円程度 | 管理費 | 予想金額:0〜2,000円程度 |
| 礼金 | 非公開(アーカイブ) | 敷金 | 非公開(アーカイブ) |
| フリーレント | なし | 平米数 | 27.5㎡ |
| 間取り | 1K+SIC | 大型収納 | SIC |
| 契約期間 | 3年間 | 方角 | 西 |
| 更新料 | 契約期間を参照 | 契約形態 | 定期借家契約 3年間 |
| 取引態様 | 媒介 | 内見状況 | 入居中 |
| 入居時期 | 入居中 | SOHO・事務所 | 不可 |
| ペット | 不可 | 間取り内訳 | 洋室6.4帖 |
| キャンペーン情報・備考 | 本情報は賃料改定交渉の資料作成、収益物件の利回り試算、周辺エリアや最寄り駅の坪単価分析、次回募集開始時期の予測などにご活用いただけます。 | ||
※「どの不動産に頼めばいいのか分からない」「信頼できる営業マンの話を聞きたい」「一番親切な会社と契約したい」とお悩みの方におすすめなのが「高級賃貸バイブル」です。
高級賃貸バイブルは業界10年以上の熟練スタッフ群がお客様ファーストで対応します。
下記ボタンから、まずは無料でご相談下さい。
※内覧をご希望の際には、どうぞ物件のエントランス前にてお待ち合わせくださいませ。ご内覧後は、同じ場所でお別れとさせていただきます。お客様のご都合に合わせたスムーズなご案内を心がけておりますので、ご質問等がございましたら何なりとお申し付けください。 物件概要
| 物件名 |
| 築年月 |
|
|---|---|---|---|
| 所在地 | |||
| 交通 | |||
| 総戸数 |
| 総階数 |
|
| 構造 |
| ||
地図
物件までの道のりは、「拡大地図を表示」をクリックしてナビ機能をご利用ください。
部屋設備










建物設備

TVモニターホン

エレベーター

オートロック
SHIBUYA HILLSの現在募集中のお部屋
- SHIBUYA HILLS 401 - 間取り: 1LDK+WIC - 賃料: 36万円
