
| 賃料 | 予想金額:159,000〜179,000円程度 | 管理費 | 予想金額:8,000〜12,000円程度 |
| 礼金/敷金 | 非公開(アーカイブ) | 平米数 | 40.57㎡ |
| 初期費用概算(参考) | 目安:390,200〜490,200 円 | みなし賃料(月額・参考) | 174,650〜194,650 円 |
| 備考 | 本ページは過去募集のアーカイブです。表示の金額は周辺相場・過去募集を踏まえた参考レンジであり、実際の契約金額・条件ではありません。 | ||
※上記みなし賃料(月額)は仲介手数料割引・無料&キャッシュバックを加味した高級賃貸バイブル限定の金額です。一般的なみなし賃料とは異なります。
【建物ページ】ピグナ文京千石の詳細・最新空室はこちら▶▶選ばれる理由
仲介手数料無料・キャンペーン情報(毎月15名様限定)
〇引っ越しお祝い金33800円プレゼント(キャッシュバック)
〇仲介手数料無料キャンペーン
ピグナ文京千石 1103の口コミ・レビュー
ピグナ文京千石 1103。この洗練された名を持つ物件は、あなたの心を捕らえる特別な住まいです。東京都文京区千石に佇むこのアパートは、現代の美しさと深い文化が見事に融合した空間で、まるでお気に入りの文学作品に迷い込んだような感覚を与えてくれます。ここでは日常が特別な瞬間に変わり、何気ない時間が映画のワンシーンのように心に残ります。
北東の風を受けながら、ピグナ文京千石 1103の扉を開けると、まず…ピグナ文京千石 1103。この洗練された名を持つ物件は、あなたの心を捕らえる特別な住まいです。東京都文京区千石に佇むこのアパートは、現代の美しさと深い文化が見事に融合した空間で、まるでお気に入りの文学作品に迷い込んだような感覚を与えてくれます。ここでは日常が特別な瞬間に変わり、何気ない時間が映画のワンシーンのように心に残ります。
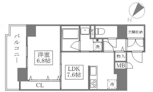
北東の風を受けながら、ピグナ文京千石 1103の扉を開けると、まずは広がる47.57㎡の空間が迎えてくれます。足元から感じる温もりは、あなたを包み込む優雅なハグのよう。LDKは7.6帖の広さで、心地よい光が差し込み、あたかも朝の光が新鮮なコーヒーの香りとともに室内を満たす姿を想像させます。ここで、友人を招いて手作りの料理を振る舞ったり、ゆったりとした時間を楽しむことができるでしょう。窓の外には緑が溢れ、四季折々の変化を感じながら、心に潤いをもたらせてくれます。
洋室は6.8帖の広さで、自分だけの特別な隠れ家へと変貌を遂げます。インテリアや小物で彩りを加えたその空間は、まるで自分だけのギャラリーのように、あなたの思い出を色鮮やかに映し出します。本を開く音、安らぎを与える静寂、そして時折聞こえる都心の喧噪が、心地よいメロディーを奏でることでしょう。
さらに、ピグナ文京千石 1103の魅力はその立地にもあります。都営地下鉄三田線千石駅までのわずか5分の距離は、あなたの生活をまるで音楽のようにリズミカルに演出します。周囲には文化の薫りが漂い、近隣の公園で自然に触れたり、美術館で心を豊かにしたり、思いのままのアクティビティが待っています。
エレガントな生活をサポートするために、テレビモニターホンやオートロック、宅配ボックスといった設備が整っており、安心感とともに上質な暮らしを実現します。ピグナ文京千石 1103での日々は、まるで一流の映画監督が描く美しいシーンのように、あなたの生活を豊かに彩ります。
この地に住むことで得られるのは、ただの住まいではありません。歴史と文化が重ねられた文京区で、あなた自身の物語を紡ぎ出す場所です。毎日の暮らしの中で、ピグナ文京千石 1103はまるであなたの親友のように、寄り添い、励まし、希望を与えてくれる存在となるでしょう。ここで、あなたの新しい生活が幕を開けるのです。
北東の風を受けながら、ピグナ文京千石 1103の扉を開けると、まず…ピグナ文京千石 1103。この洗練された名を持つ物件は、あなたの心を捕らえる特別な住まいです。東京都文京区千石に佇むこのアパートは、現代の美しさと深い文化が見事に融合した空間で、まるでお気に入りの文学作品に迷い込んだような感覚を与えてくれます。ここでは日常が特別な瞬間に変わり、何気ない時間が映画のワンシーンのように心に残ります。
北東の風を受けながら、ピグナ文京千石 1103の扉を開けると、まずは広がる47.57㎡の空間が迎えてくれます。足元から感じる温もりは、あなたを包み込む優雅なハグのよう。LDKは7.6帖の広さで、心地よい光が差し込み、あたかも朝の光が新鮮なコーヒーの香りとともに室内を満たす姿を想像させます。ここで、友人を招いて手作りの料理を振る舞ったり、ゆったりとした時間を楽しむことができるでしょう。窓の外には緑が溢れ、四季折々の変化を感じながら、心に潤いをもたらせてくれます。
洋室は6.8帖の広さで、自分だけの特別な隠れ家へと変貌を遂げます。インテリアや小物で彩りを加えたその空間は、まるで自分だけのギャラリーのように、あなたの思い出を色鮮やかに映し出します。本を開く音、安らぎを与える静寂、そして時折聞こえる都心の喧噪が、心地よいメロディーを奏でることでしょう。
さらに、ピグナ文京千石 1103の魅力はその立地にもあります。都営地下鉄三田線千石駅までのわずか5分の距離は、あなたの生活をまるで音楽のようにリズミカルに演出します。周囲には文化の薫りが漂い、近隣の公園で自然に触れたり、美術館で心を豊かにしたり、思いのままのアクティビティが待っています。
エレガントな生活をサポートするために、テレビモニターホンやオートロック、宅配ボックスといった設備が整っており、安心感とともに上質な暮らしを実現します。ピグナ文京千石 1103での日々は、まるで一流の映画監督が描く美しいシーンのように、あなたの生活を豊かに彩ります。
この地に住むことで得られるのは、ただの住まいではありません。歴史と文化が重ねられた文京区で、あなた自身の物語を紡ぎ出す場所です。毎日の暮らしの中で、ピグナ文京千石 1103はまるであなたの親友のように、寄り添い、励まし、希望を与えてくれる存在となるでしょう。ここで、あなたの新しい生活が幕を開けるのです。
バイブルスコア
バイブルスコア: 44.7
条件のいい物件です、引っ越しが2か月以内の場合は仮申し込みを検討すべき物件です。
※バイブルスコア詳細はこちら
バイブルスコアとは独自のAI機械学習技術を利用した物件評価システムで、物件のおすすめ度を示します。最高得点は100点で、スコアが高いほど、よりおすすめの物件と評価されています。
写真
現在写真が登録されていません契約条件
| 賃料 | 予想金額:159,000〜179,000円程度 | 管理費 | 予想金額:8,000〜12,000円程度 |
| 礼金 | 非公開(アーカイブ) | 敷金 | 非公開(アーカイブ) |
| フリーレント | なし | 平米数 | 40.57㎡ |
| 間取り | 1LDK | 大型収納 | なし |
| 契約期間 | 2年 | 方角 | 北東 |
| 更新料 | 1ヶ月 | 契約形態 | 普通賃貸借契約 |
| 取引態様 | 媒介 | 内見状況 | 入居中 |
| 入居時期 | 入居中 | SOHO・事務所 | 不可 |
| ペット | 不可 | 間取り内訳 | LDK7.6帖 洋室6.8帖 |
| キャンペーン情報・備考 | 本情報は賃料改定交渉の資料作成、収益物件の利回り試算、周辺エリアや最寄り駅の坪単価分析、次回募集開始時期の予測などにご活用いただけます。 | ||
※「どの不動産に頼めばいいのか分からない」「信頼できる営業マンの話を聞きたい」「一番親切な会社と契約したい」とお悩みの方におすすめなのが「高級賃貸バイブル」です。
高級賃貸バイブルは業界10年以上の熟練スタッフ群がお客様ファーストで対応します。
下記ボタンから、まずは無料でご相談下さい。
※内覧をご希望の際には、どうぞ物件のエントランス前にてお待ち合わせくださいませ。ご内覧後は、同じ場所でお別れとさせていただきます。お客様のご都合に合わせたスムーズなご案内を心がけておりますので、ご質問等がございましたら何なりとお申し付けください。 物件概要
| 物件名 |
| 築年月 |
|
|---|---|---|---|
| 所在地 | |||
| 交通 | |||
| 総戸数 |
| 総階数 |
|
| 構造 |
| ||
地図
物件までの道のりは、「拡大地図を表示」をクリックしてナビ機能をご利用ください。
部屋設備







建物設備

TVモニターホン

エレベーター

オートロック

宅配ボックス

敷地内ゴミ置場
ピグナ文京千石の現在募集中のお部屋
- No rooms found for this property.
