
| 賃料 | 予想金額:103,000〜123,000円程度 | 管理費 | 予想金額:8,000〜12,000円程度 |
| 礼金/敷金 | 非公開(アーカイブ) | 平米数 | 24.99㎡ |
| 初期費用概算(参考) | 目安:261,400〜361,400 円 | みなし賃料(月額・参考) | 117,133〜137,133 円 |
| 備考 | 本ページは過去募集のアーカイブです。表示の金額は周辺相場・過去募集を踏まえた参考レンジであり、実際の契約金額・条件ではありません。 | ||
※上記みなし賃料(月額)は仲介手数料割引・無料&キャッシュバックを加味した高級賃貸バイブル限定の金額です。一般的なみなし賃料とは異なります。
【建物ページ】ミリアレジデンス中野弥生町の詳細・最新空室はこちら▶▶選ばれる理由
仲介手数料無料・キャンペーン情報(毎月15名様限定)
〇引っ越しお祝い金22600円プレゼント(キャッシュバック)
〇仲介手数料無料キャンペーン
ミリアレジデンス中野弥生町 208の口コミ・レビュー
ミリアレジデンス中野弥生町 208は、都市の喧騒を離れ、静謐な暮らしを約束する特別な場所です。東京都中野区弥生町のこの物件は、北東向きの窓から差し込む柔らかな光が、朝の目覚めを祝福してくれます。あなたが新たな生活を始めるこの空間は、ただの住まいではなく、あなたの物語を紡ぐ舞台なのです。
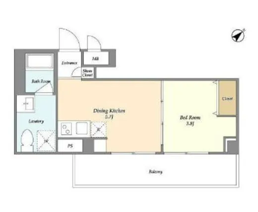
この高級賃貸物件は、間取が1DKというフレキシブルな設計で、DKは5.7帖、洋室は3.8帖という心地よい広さを…ミリアレジデンス中野弥生町 208は、都市の喧騒を離れ、静謐な暮らしを約束する特別な場所です。東京都中野区弥生町のこの物件は、北東向きの窓から差し込む柔らかな光が、朝の目覚めを祝福してくれます。あなたが新たな生活を始めるこの空間は、ただの住まいではなく、あなたの物語を紡ぐ舞台なのです。
この高級賃貸物件は、間取が1DKというフレキシブルな設計で、DKは5.7帖、洋室は3.8帖という心地よい広さを誇ります。ここで、あなたはお気に入りのアートを飾り、初夏の風が柔らかく舞う窓辺に座りながら、読みかけの本を手にとることができます。インテリアにこだわり、香ばしいコーヒーの香りが漂うキッチンで、シンプルながらも心温まる料理を楽しむ姿が目に浮かびます。
ミリアレジデンス中野弥生町 208には、現代の生活に欠かせない設備が整っています。エレベーターやオートロック、TVモニターホンといった機能が、あなたの日常を一層便利に演出します。宅配ボックスも完備されているため、仕事で忙しいあなたも安心してショッピングを楽しむことができるでしょう。また、敷地内のゴミ置場や駐車場、駐輪場も完備されており、生活のあらゆるシーンで快適さを提供してくれます。
そして、最寄り駅の都営地下鉄大江戸線 西新宿五丁目駅まで徒歩8分という好立地は、都市の中心へと繋がる動脈です。ここから広がる東京の街並みは、まるでアートのギャラリーのように多彩で、あなたの感性を刺激します。賑やかな商店街や歴史ある寺院、近くの公園の緑が心に栄養を与えてくれることでしょう。
ミリアレジデンス中野弥生町 208は、ただの住まいではなく、あなたの人生を豊かにするパートナーです。現実と夢が交差するこの空間で、心躍る瞬間や物語を紡いでいくのは、あなた次第です。あなたの新たな生活の舞台が、ここで幕を開けます。想像してみてください。朝日を浴びながら、まずは一杯のコーヒーを淹れ、心静かに今日の計画を思い描く…。それもまた、ミリアレジデンス中野弥生町 208がもたらす贅沢なひとときなのです。
この特別な空間は、あなたにとって忘れがたい思い出を作り、一生の宝物となるでしょう。さあ、ミリアレジデンス中野弥生町 208で、あなた自身の物語を紡ぎ始めませんか。新たな出発は、ここから始まります。
この高級賃貸物件は、間取が1DKというフレキシブルな設計で、DKは5.7帖、洋室は3.8帖という心地よい広さを…ミリアレジデンス中野弥生町 208は、都市の喧騒を離れ、静謐な暮らしを約束する特別な場所です。東京都中野区弥生町のこの物件は、北東向きの窓から差し込む柔らかな光が、朝の目覚めを祝福してくれます。あなたが新たな生活を始めるこの空間は、ただの住まいではなく、あなたの物語を紡ぐ舞台なのです。
この高級賃貸物件は、間取が1DKというフレキシブルな設計で、DKは5.7帖、洋室は3.8帖という心地よい広さを誇ります。ここで、あなたはお気に入りのアートを飾り、初夏の風が柔らかく舞う窓辺に座りながら、読みかけの本を手にとることができます。インテリアにこだわり、香ばしいコーヒーの香りが漂うキッチンで、シンプルながらも心温まる料理を楽しむ姿が目に浮かびます。
ミリアレジデンス中野弥生町 208には、現代の生活に欠かせない設備が整っています。エレベーターやオートロック、TVモニターホンといった機能が、あなたの日常を一層便利に演出します。宅配ボックスも完備されているため、仕事で忙しいあなたも安心してショッピングを楽しむことができるでしょう。また、敷地内のゴミ置場や駐車場、駐輪場も完備されており、生活のあらゆるシーンで快適さを提供してくれます。
そして、最寄り駅の都営地下鉄大江戸線 西新宿五丁目駅まで徒歩8分という好立地は、都市の中心へと繋がる動脈です。ここから広がる東京の街並みは、まるでアートのギャラリーのように多彩で、あなたの感性を刺激します。賑やかな商店街や歴史ある寺院、近くの公園の緑が心に栄養を与えてくれることでしょう。
ミリアレジデンス中野弥生町 208は、ただの住まいではなく、あなたの人生を豊かにするパートナーです。現実と夢が交差するこの空間で、心躍る瞬間や物語を紡いでいくのは、あなた次第です。あなたの新たな生活の舞台が、ここで幕を開けます。想像してみてください。朝日を浴びながら、まずは一杯のコーヒーを淹れ、心静かに今日の計画を思い描く…。それもまた、ミリアレジデンス中野弥生町 208がもたらす贅沢なひとときなのです。
この特別な空間は、あなたにとって忘れがたい思い出を作り、一生の宝物となるでしょう。さあ、ミリアレジデンス中野弥生町 208で、あなた自身の物語を紡ぎ始めませんか。新たな出発は、ここから始まります。
バイブルスコア
バイブルスコア: 72.4
かなり条件の良い物件です、即仮押さえをおすすめする物件です!
このお部屋は、現在ご入居中のため空室情報はございません。ただし、将来的に募集が開始される際、バイブルスコアにおいて非常に高い評価が期待されます。特にご興味をお持ちの方は、今のうちにブックマークやお気に入りに登録していただくと、募集開始のお知らせをすぐに受け取ることができます。是非ともご検討くださいませ。
※バイブルスコア詳細はこちら
バイブルスコアとは独自のAI機械学習技術を利用した物件評価システムで、物件のおすすめ度を示します。最高得点は100点で、スコアが高いほど、よりおすすめの物件と評価されています。
写真
現在写真が登録されていません契約条件
| 賃料 | 予想金額:103,000〜123,000円程度 | 管理費 | 予想金額:8,000〜12,000円程度 |
| 礼金 | 非公開(アーカイブ) | 敷金 | 非公開(アーカイブ) |
| フリーレント | なし | 平米数 | 24.99㎡ |
| 間取り | 1DK | 大型収納 | なし |
| 契約期間 | 2年 | 方角 | 北東 |
| 更新料 | 1ヶ月 | 契約形態 | 普通賃貸借契約 |
| 取引態様 | 媒介 | 内見状況 | 入居中 |
| 入居時期 | 入居中 | SOHO・事務所 | 不可 |
| ペット | 可 小型犬もしくは猫1匹(敷金1ヶ月積み増し) | 間取り内訳 | DK5.7帖 洋室3.8帖 |
| キャンペーン情報・備考 | 本情報は賃料改定交渉の資料作成、収益物件の利回り試算、周辺エリアや最寄り駅の坪単価分析、次回募集開始時期の予測などにご活用いただけます。 | ||
※「どの不動産に頼めばいいのか分からない」「信頼できる営業マンの話を聞きたい」「一番親切な会社と契約したい」とお悩みの方におすすめなのが「高級賃貸バイブル」です。
高級賃貸バイブルは業界10年以上の熟練スタッフ群がお客様ファーストで対応します。
下記ボタンから、まずは無料でご相談下さい。
※内覧をご希望の際には、どうぞ物件のエントランス前にてお待ち合わせくださいませ。ご内覧後は、同じ場所でお別れとさせていただきます。お客様のご都合に合わせたスムーズなご案内を心がけておりますので、ご質問等がございましたら何なりとお申し付けください。 物件概要
| 物件名 |
| 築年月 |
|
|---|---|---|---|
| 所在地 | |||
| 交通 | |||
| 総戸数 |
| 総階数 |
|
| 構造 |
| ||
地図
物件までの道のりは、「拡大地図を表示」をクリックしてナビ機能をご利用ください。
部屋設備










建物設備

TVモニターホン

エレベーター

オートロック

宅配ボックス

敷地内ゴミ置場

駐車場機械式

駐輪場
ミリアレジデンス中野弥生町の現在募集中のお部屋
- No rooms found for this property.
