
| 賃料 | 予想金額:470,000〜490,000円程度 | 管理費 | 予想金額:46,000〜50,000円程度 |
| 礼金/敷金 | 非公開(アーカイブ) | 平米数 | 92.91㎡ |
| 初期費用概算(参考) | 目安:2,133,840〜2,233,840 円 | みなし賃料(月額・参考) | 553,497〜573,497 円 |
| 備考 | 本ページは過去募集のアーカイブです。表示の金額は周辺相場・過去募集を踏まえた参考レンジであり、実際の契約金額・条件ではありません。 | ||
※上記みなし賃料(月額)は仲介手数料割引・無料&キャッシュバックを加味した高級賃貸バイブル限定の金額です。一般的なみなし賃料とは異なります。
【建物ページ】HARUMI FLAG PARK VILLAGE (晴海フラッグ パークヴィレッジ)の詳細・最新空室はこちら▶▶選ばれる理由
仲介手数料無料・キャンペーン情報(毎月15名様限定)
〇仲介手数料割引キャンペーン
HARUMI FLAG PARK VILLAGE (晴海フラッグ パークヴィレッジ) 7階 92.91㎡の口コミ・レビュー
HARUMI FLAG PARK VILLAGE (晴海フラッグ パークヴィレッジ) 7階 92.91㎡という名を冠したこの特別な空間は、まるで様々な物語の舞台となるために生まれてきたかのようです。南西を向くこの美しい住まいは、心を癒す光が優しく差し込み、朝の澄んだ空気の中で新たな一日が始まります。暖かな陽射しが窓を通り抜け、リビングのLDK20帖をさらさらと撫でる様子は、まるでこの空間が日々のエ…HARUMI FLAG PARK VILLAGE (晴海フラッグ パークヴィレッジ) 7階 92.91㎡という名を冠したこの特別な空間は、まるで様々な物語の舞台となるために生まれてきたかのようです。南西を向くこの美しい住まいは、心を癒す光が優しく差し込み、朝の澄んだ空気の中で新たな一日が始まります。暖かな陽射しが窓を通り抜け、リビングのLDK20帖をさらさらと撫でる様子は、まるでこの空間が日々のエネルギーを吸収しているかのようです。
このHARUMI FLAG PARK VILLAGEでは、あなたの生活が小説の一ページになるのです。家の中に一歩足を踏み入れた瞬間、豊かな空間の広がりとともに、手触りの良い木材や高級感あふれるタイルが温かく迎えてくれます。LDKは、友人を招いた楽しい集まりや家族との穏やかなひとときを育む、まさにコミュニケーションのハブです。心地よい香りの料理がキッチンから漂い、食材の新鮮さを心ゆくまで味わえる贅沢な時間がここには広がっています。
続いて目に入るのは、洋室7.5帖、6.5帖、6帖というそれぞれの部屋の存在。その一つ一つが、さまざまな個性を持つキャラクターのように感じられます。プライベートな空間である洋室は、静寂の中で心を整えたり、趣味に没頭したりするための特別な場所です。朝の光が差し込む中で、ゆっくりとコーヒーを楽しむひとときは、まるで映画のワンシーンのように美しく、生活の中での無駄を一切省いた極上の時間です。
このHARUMI FLAG PARK VILLAGEでは、心が落ち着くフロントサービスや、心地よい空間を保つゲストルーム、ライフスタイルをより豊かにするフィットネスルームなど、生活の利便性が満ち足りております。音楽のように流れるライティングや、静かに交差する風の音に耳を澄ませば、自然と心がリラックスし、高揚感が広がります。
周囲には歴史と文化が息づく晴海の街並みが広がり、アートと共鳴する不思議な空間があなたを包み込みます。近くの公園では、四季折々の花々が咲き誇り、自然と心が融合する瞬間が訪れることも。ウォーキングやジョギングが楽しめる気持ちの良い道を進む中で、自分自身が新たなアイデンティティを見つけていく感覚があることでしょう。
HARUMI FLAG PARK VILLAGEは、ただの住まいではありません。それは、心の通う場所、生活の舞台、人生の物語の始まりです。ここで新しいシーンを作り上げ、あなた自身の物語を描いてみませんか?未来は、あなたの手の中にあるのです。お待ちしております。
このHARUMI FLAG PARK VILLAGEでは、あなたの生活が小説の一ページになるのです。家の中に一歩足を踏み入れた瞬間、豊かな空間の広がりとともに、手触りの良い木材や高級感あふれるタイルが温かく迎えてくれます。LDKは、友人を招いた楽しい集まりや家族との穏やかなひとときを育む、まさにコミュニケーションのハブです。心地よい香りの料理がキッチンから漂い、食材の新鮮さを心ゆくまで味わえる贅沢な時間がここには広がっています。
続いて目に入るのは、洋室7.5帖、6.5帖、6帖というそれぞれの部屋の存在。その一つ一つが、さまざまな個性を持つキャラクターのように感じられます。プライベートな空間である洋室は、静寂の中で心を整えたり、趣味に没頭したりするための特別な場所です。朝の光が差し込む中で、ゆっくりとコーヒーを楽しむひとときは、まるで映画のワンシーンのように美しく、生活の中での無駄を一切省いた極上の時間です。
このHARUMI FLAG PARK VILLAGEでは、心が落ち着くフロントサービスや、心地よい空間を保つゲストルーム、ライフスタイルをより豊かにするフィットネスルームなど、生活の利便性が満ち足りております。音楽のように流れるライティングや、静かに交差する風の音に耳を澄ませば、自然と心がリラックスし、高揚感が広がります。
周囲には歴史と文化が息づく晴海の街並みが広がり、アートと共鳴する不思議な空間があなたを包み込みます。近くの公園では、四季折々の花々が咲き誇り、自然と心が融合する瞬間が訪れることも。ウォーキングやジョギングが楽しめる気持ちの良い道を進む中で、自分自身が新たなアイデンティティを見つけていく感覚があることでしょう。
HARUMI FLAG PARK VILLAGEは、ただの住まいではありません。それは、心の通う場所、生活の舞台、人生の物語の始まりです。ここで新しいシーンを作り上げ、あなた自身の物語を描いてみませんか?未来は、あなたの手の中にあるのです。お待ちしております。
バイブルスコア
バイブルスコア: 16.7
高級な物件でない場合は割高な物件です。。
※バイブルスコア詳細はこちら
バイブルスコアとは独自のAI機械学習技術を利用した物件評価システムで、物件のおすすめ度を示します。最高得点は100点で、スコアが高いほど、よりおすすめの物件と評価されています。
写真
現在写真が登録されていません契約条件
| 賃料 | 予想金額:470,000〜490,000円程度 | 管理費 | 予想金額:46,000〜50,000円程度 |
| 礼金 | 非公開(アーカイブ) | 敷金 | 非公開(アーカイブ) |
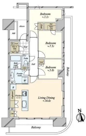
| フリーレント | なし | 平米数 | 92.91㎡ |
| 間取り | 3LDK+WIC | 大型収納 | WIC |
| 契約期間 | 相談 | 方角 | 南西 |
| 更新料 | 契約期間を参照 | 契約形態 | 定期借家契約 |
| 取引態様 | 媒介 | 内見状況 | 入居中 |
| 入居時期 | 入居中 | SOHO・事務所 | 不可 |
| ペット | 不可 | 間取り内訳 | LDK20帖 洋室7.5帖 洋室6.5帖 洋室6帖 |
| キャンペーン情報・備考 | 本情報は賃料改定交渉の資料作成、収益物件の利回り試算、周辺エリアや最寄り駅の坪単価分析、次回募集開始時期の予測などにご活用いただけます。 | ||
※「どの不動産に頼めばいいのか分からない」「信頼できる営業マンの話を聞きたい」「一番親切な会社と契約したい」とお悩みの方におすすめなのが「高級賃貸バイブル」です。
高級賃貸バイブルは業界10年以上の熟練スタッフ群がお客様ファーストで対応します。
下記ボタンから、まずは無料でご相談下さい。
※内覧をご希望の際には、どうぞ物件のエントランス前にてお待ち合わせくださいませ。ご内覧後は、同じ場所でお別れとさせていただきます。お客様のご都合に合わせたスムーズなご案内を心がけておりますので、ご質問等がございましたら何なりとお申し付けください。 物件概要
| 物件名 |
| 築年月 |
|
|---|---|---|---|
| 所在地 | |||
| 交通 |
| ||
| 総戸数 |
| 総階数 |
|
| 構造 |
| ||
地図
物件までの道のりは、「拡大地図を表示」をクリックしてナビ機能をご利用ください。
部屋設備













建物設備

TVモニターホン

エレベーター

オートロック

ゲストルーム

バイク置場

フィットネス

フロントサービス

ラウンジ

宅配ボックス

敷地内ゴミ置場

駐車場機械式

駐輪場
HARUMI FLAG PARK VILLAGE (晴海フラッグ パークヴィレッジ)の現在募集中のお部屋
- HARUMI FLAG PARK VILLAGE (晴海フラッグ パークヴィレッジ) 12階 86.55㎡ - 間取り: 2LDK+WIC - 賃料: 48万円
