
| 賃料 | 予想金額:300,000〜320,000円程度 | 管理費 | 予想金額:18,000〜22,000円程度 |
| 礼金/敷金 | 非公開(アーカイブ) | 平米数 | 88.68㎡ |
| 初期費用概算(参考) | 目安:1,023,000〜1,123,000 円 | みなし賃料(月額・参考) | 335,896〜355,896 円 |
| 備考 | 本ページは過去募集のアーカイブです。表示の金額は周辺相場・過去募集を踏まえた参考レンジであり、実際の契約金額・条件ではありません。 | ||
※上記みなし賃料(月額)は仲介手数料割引・無料&キャッシュバックを加味した高級賃貸バイブル限定の金額です。一般的なみなし賃料とは異なります。
【建物ページ】HARUMI FLAG PARK VILLAGE (晴海フラッグ パークヴィレッジ)の詳細・最新空室はこちら▶▶選ばれる理由
仲介手数料無料・キャンペーン情報(毎月15名様限定)
〇引っ越しお祝い金62000円プレゼント(キャッシュバック)
〇仲介手数料無料キャンペーン
HARUMI FLAG PARK VILLAGE (晴海フラッグ パークヴィレッジ) 4階 88.68㎡の口コミ・レビュー
想像してみてください。…HARUMI FLAG PARK VILLAGE (晴海フラッグ パークヴィレッジ) 4階 88.68㎡、この名を持つ物件は、まるで贅を尽くした一篇の詩のように、あなたの新しい暮らしの舞台を整えています。東京都中央区晴海5-504に堂々と佇むこの住まいは、南向きの窓から優しい日差しが降り注ぎ、ゆったりとしたライティングが、あなたの日常を優雅なものに変貌させることでしょう。
想像してみてください。朝、太陽の光が窓から差し込み、LDK19.8帖の広々とした空間が明るく照らされる様子を。この空間は、ただのリビングではありません。大きなソファに身を沈め、一杯の淹れたてのコーヒーの香ばしい香りが漂う中、大切な人たちと笑い声を交わし、穏やかな時間を過ごす場所です。このLDKは、まるで愛の溢れる家族劇の中心に位置しており、毎日を特別なものにしてくれます。
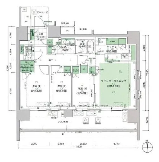
また、洋室7.6帖、洋室5.5帖、洋室5帖というどの部屋も、細部にまでこだわり抜かれたデザインが施されています。しっとりとした落ち着きをもった色合いの壁が、あなたの心をゆったりと包み込み、心地よい安らぎを提供します。各部屋の窓からは、四季折々の風景が見え、朝焼けや夕暮れを楽しむことで、まるで自然と共存する生活が実現します。
HARUMI FLAG PARK VILLAGEは、ただの住まいではありません。それは、あなたの生活を彩るための舞台装置です。フロントサービス、フィットネス、ラウンジなど、住まう人々を支える多様な設備も充実しており、毎日が映画のワンシーンのように、心躍る瞬間が待っています。ゲストルームやカーシェアリングなども完備されており、友人を招待する際も、嬉しいサプライズを演出できることでしょう。
周囲には歴史と文化が息づいています。この中央区晴海は、かつて港町として栄えた地。周辺には、アートギャラリーや文化施設が点在し、インスピレーションを与えるひらめきの宝庫です。そうした魅力ある街を背景に、HARUMI FLAG PARK VILLAGEでの生活は、単なる毎日を超え、心の豊かさを育む時間へと変わります。
さあ、あなたもこの特別な場所で、心華やぐ日々を送りませんか?あなたの新たな物語は、HARUMI FLAG PARK VILLAGEから始まります。この地で、五感を研ぎ澄ませ、生活の美しさを再発見することができるのです。小さな感動が積み重なり、あなたの人生を豊かに彩ることでしょう。心から、あなたのご入居をお待ちしております。
バイブルスコア
バイブルスコア: 56.1
条件のいい物件です、引っ越しが2か月以内の場合は仮申し込みを検討すべき物件です。
このお部屋は、現在ご入居中のため空室情報はございません。ただし、将来的に募集が開始される際、バイブルスコアにおいて非常に高い評価が期待されます。特にご興味をお持ちの方は、今のうちにブックマークやお気に入りに登録していただくと、募集開始のお知らせをすぐに受け取ることができます。是非ともご検討くださいませ。
※バイブルスコア詳細はこちら
バイブルスコアとは独自のAI機械学習技術を利用した物件評価システムで、物件のおすすめ度を示します。最高得点は100点で、スコアが高いほど、よりおすすめの物件と評価されています。
写真
現在写真が登録されていません契約条件
| 賃料 | 予想金額:300,000〜320,000円程度 | 管理費 | 予想金額:18,000〜22,000円程度 |
| 礼金 | 非公開(アーカイブ) | 敷金 | 非公開(アーカイブ) |
| フリーレント | なし | 平米数 | 88.68㎡ |
| 間取り | 3LDK+WIC | 大型収納 | WIC |
| 契約期間 | 3年間 | 方角 | 南 |
| 更新料 | 契約期間を参照 | 契約形態 | 定期借家契約 3年間 |
| 取引態様 | 媒介 | 内見状況 | 入居中 |
| 入居時期 | 入居中 | SOHO・事務所 | 不可 |
| ペット | 可 | 間取り内訳 | LDK19.8帖 洋室7.6帖 洋室5.5帖 洋室5帖 |
| キャンペーン情報・備考 | 本情報は賃料改定交渉の資料作成、収益物件の利回り試算、周辺エリアや最寄り駅の坪単価分析、次回募集開始時期の予測などにご活用いただけます。 | ||
※「どの不動産に頼めばいいのか分からない」「信頼できる営業マンの話を聞きたい」「一番親切な会社と契約したい」とお悩みの方におすすめなのが「高級賃貸バイブル」です。
高級賃貸バイブルは業界10年以上の熟練スタッフ群がお客様ファーストで対応します。
下記ボタンから、まずは無料でご相談下さい。
※内覧をご希望の際には、どうぞ物件のエントランス前にてお待ち合わせくださいませ。ご内覧後は、同じ場所でお別れとさせていただきます。お客様のご都合に合わせたスムーズなご案内を心がけておりますので、ご質問等がございましたら何なりとお申し付けください。 物件概要
| 物件名 |
| 築年月 |
|
|---|---|---|---|
| 所在地 | |||
| 交通 |
| ||
| 総戸数 |
| 総階数 |
|
| 構造 |
| ||
地図
物件までの道のりは、「拡大地図を表示」をクリックしてナビ機能をご利用ください。
部屋設備














建物設備

TVモニターホン

エレベーター

オートロック

ゲストルーム

バイク置場

フィットネス

フロントサービス

ラウンジ

宅配ボックス

敷地内ゴミ置場

駐車場機械式

駐輪場
HARUMI FLAG PARK VILLAGE (晴海フラッグ パークヴィレッジ)の現在募集中のお部屋
- HARUMI FLAG PARK VILLAGE (晴海フラッグ パークヴィレッジ) 12階 86.55㎡ - 間取り: 2LDK+WIC - 賃料: 48万円
