
| 賃料 | 予想金額:100,000〜120,000円程度 | 管理費 | 予想金額:10,000〜14,000円程度 |
| 礼金/敷金 | 非公開(アーカイブ) | 平米数 | 25.46㎡ |
| 初期費用概算(参考) | 目安:241,000〜341,000 円 | みなし賃料(月額・参考) | 115,771〜135,771 円 |
| 備考 | 本ページは過去募集のアーカイブです。表示の金額は周辺相場・過去募集を踏まえた参考レンジであり、実際の契約金額・条件ではありません。 | ||
※上記みなし賃料(月額)は仲介手数料割引・無料&キャッシュバックを加味した高級賃貸バイブル限定の金額です。一般的なみなし賃料とは異なります。
【建物ページ】アルテシモシェルトの詳細・最新空室はこちら▶▶選ばれる理由
仲介手数料無料・キャンペーン情報(毎月15名様限定)
〇引っ越しお祝い金22000円プレゼント(キャッシュバック)
〇仲介手数料無料キャンペーン
アルテシモシェルト 9階 25.46㎡の口コミ・レビュー
アルテシモシェルト 9階 25.46㎡。この名は、まるで夢の中の秘境から訪れたかのような響きを持っています。東京都江東区深川1-9-13にそびえ立つその姿は、南東の陽射しを浴びて、貴族のように輝く高級賃貸マンションでございます。エレガントな外観は、周囲の喧騒からあなたを解放し、静寂と安心感を与えてくれることでしょう。
この物件、アルテシモシェルトはまるで一人の貴婦人が優雅なドレスをまとっているか…アルテシモシェルト 9階 25.46㎡。この名は、まるで夢の中の秘境から訪れたかのような響きを持っています。東京都江東区深川1-9-13にそびえ立つその姿は、南東の陽射しを浴びて、貴族のように輝く高級賃貸マンションでございます。エレガントな外観は、周囲の喧騒からあなたを解放し、静寂と安心感を与えてくれることでしょう。
この物件、アルテシモシェルトはまるで一人の貴婦人が優雅なドレスをまとっているかのように、内に秘めた美しさを魅せる空間を持っています。専有面積25.46㎡の中に広がる、洋室7.4帖のスペースは、あなたの生活の舞台を優しく包み込みます。そこに足を踏み入れると、心地良い温もりが足元から伝わり、まるでそよ風が肌に触れ、心を癒してくれるかのようです。
想像してみてください。朝日が窓から差し込み、柔らかな光が洋室を満たし、その中であなたは温かいコーヒーの香りに包まれながら、ゆったりとした時間を過ごす。TVモニターホンが静かに応えると、外の世界との関わりが一層深くなり、心の中で特別なストーリーが始まります。エレベーターで9階に上がり、自宅に戻るたびに心躍る感覚を覚えることでしょう。
アルテシモシェルトの魅力は、それだけに留まりません。オートロックや宅配ボックス、駐車場機械式などの設備は、まるであなたの日常を支える忠実な執事のように、生活を快適にサポートします。バイク置場や駐輪場も完備され、アクティブなライフスタイルを楽しむ方にもぴったりなのです。
江東区という場所も、歴史と文化の香りを感じさせる特別な存在です。周辺には古くから伝わる深川の風情が漂い、歴史的な建物やアートなカフェの数々が、あなたの心を豊かにしてくれます。散歩がてら、隅田川沿いの自然を楽しみながら、季節ごとの色彩を感じることができるでしょう。まるで映画の一シーンのように、日々の生活がアートとなり、まるで主人公として生きる幸せを味わう瞬間が待っています。
アルテシモシェルト 9階 25.46㎡は、ただの住まいではありません。あなたの人生の舞台となり、喜びと幸せを育む場所です。ここでの生活は、日常の一コマが映画のワンシーンとなり、心に残る大切な思い出を紡いでいくことでしょう。この美しい空間で、新たな物語を始めてみませんか。あなたのご来訪を、心よりお待ちしております。
この物件、アルテシモシェルトはまるで一人の貴婦人が優雅なドレスをまとっているか…アルテシモシェルト 9階 25.46㎡。この名は、まるで夢の中の秘境から訪れたかのような響きを持っています。東京都江東区深川1-9-13にそびえ立つその姿は、南東の陽射しを浴びて、貴族のように輝く高級賃貸マンションでございます。エレガントな外観は、周囲の喧騒からあなたを解放し、静寂と安心感を与えてくれることでしょう。
この物件、アルテシモシェルトはまるで一人の貴婦人が優雅なドレスをまとっているかのように、内に秘めた美しさを魅せる空間を持っています。専有面積25.46㎡の中に広がる、洋室7.4帖のスペースは、あなたの生活の舞台を優しく包み込みます。そこに足を踏み入れると、心地良い温もりが足元から伝わり、まるでそよ風が肌に触れ、心を癒してくれるかのようです。
想像してみてください。朝日が窓から差し込み、柔らかな光が洋室を満たし、その中であなたは温かいコーヒーの香りに包まれながら、ゆったりとした時間を過ごす。TVモニターホンが静かに応えると、外の世界との関わりが一層深くなり、心の中で特別なストーリーが始まります。エレベーターで9階に上がり、自宅に戻るたびに心躍る感覚を覚えることでしょう。
アルテシモシェルトの魅力は、それだけに留まりません。オートロックや宅配ボックス、駐車場機械式などの設備は、まるであなたの日常を支える忠実な執事のように、生活を快適にサポートします。バイク置場や駐輪場も完備され、アクティブなライフスタイルを楽しむ方にもぴったりなのです。
江東区という場所も、歴史と文化の香りを感じさせる特別な存在です。周辺には古くから伝わる深川の風情が漂い、歴史的な建物やアートなカフェの数々が、あなたの心を豊かにしてくれます。散歩がてら、隅田川沿いの自然を楽しみながら、季節ごとの色彩を感じることができるでしょう。まるで映画の一シーンのように、日々の生活がアートとなり、まるで主人公として生きる幸せを味わう瞬間が待っています。
アルテシモシェルト 9階 25.46㎡は、ただの住まいではありません。あなたの人生の舞台となり、喜びと幸せを育む場所です。ここでの生活は、日常の一コマが映画のワンシーンとなり、心に残る大切な思い出を紡いでいくことでしょう。この美しい空間で、新たな物語を始めてみませんか。あなたのご来訪を、心よりお待ちしております。
バイブルスコア
バイブルスコア: 43.9
条件のいい物件です、引っ越しが2か月以内の場合は仮申し込みを検討すべき物件です。
※バイブルスコア詳細はこちら
バイブルスコアとは独自のAI機械学習技術を利用した物件評価システムで、物件のおすすめ度を示します。最高得点は100点で、スコアが高いほど、よりおすすめの物件と評価されています。
写真
現在写真が登録されていません契約条件
| 賃料 | 予想金額:100,000〜120,000円程度 | 管理費 | 予想金額:10,000〜14,000円程度 |
| 礼金 | 非公開(アーカイブ) | 敷金 | 非公開(アーカイブ) |
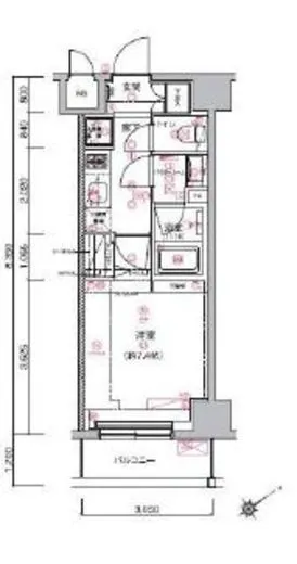
| フリーレント | なし | 平米数 | 25.46㎡ |
| 間取り | 1K | 大型収納 | なし |
| 契約期間 | 2年 | 方角 | 南東 |
| 更新料 | 1ヶ月 | 契約形態 | 普通賃貸借契約 |
| 取引態様 | 媒介 | 内見状況 | 入居中 |
| 入居時期 | 入居中 | SOHO・事務所 | 不可 |
| ペット | 可 | 間取り内訳 | 洋室7.4帖 |
| キャンペーン情報・備考 | 本情報は賃料改定交渉の資料作成、収益物件の利回り試算、周辺エリアや最寄り駅の坪単価分析、次回募集開始時期の予測などにご活用いただけます。 | ||
※「どの不動産に頼めばいいのか分からない」「信頼できる営業マンの話を聞きたい」「一番親切な会社と契約したい」とお悩みの方におすすめなのが「高級賃貸バイブル」です。
高級賃貸バイブルは業界10年以上の熟練スタッフ群がお客様ファーストで対応します。
下記ボタンから、まずは無料でご相談下さい。
※内覧をご希望の際には、どうぞ物件のエントランス前にてお待ち合わせくださいませ。ご内覧後は、同じ場所でお別れとさせていただきます。お客様のご都合に合わせたスムーズなご案内を心がけておりますので、ご質問等がございましたら何なりとお申し付けください。 物件概要
| 物件名 |
| 築年月 |
|
|---|---|---|---|
| 所在地 | |||
| 交通 | |||
| 総戸数 |
| 総階数 |
|
| 構造 |
| ||
地図
物件までの道のりは、「拡大地図を表示」をクリックしてナビ機能をご利用ください。
部屋設備










建物設備

TVモニターホン

エレベーター

オートロック

バイク置場

宅配ボックス

敷地内ゴミ置場

駐車場機械式

駐輪場
アルテシモシェルトの現在募集中のお部屋
- No rooms found for this property.
