
| 賃料 | 予想金額:101,000〜121,000円程度 | 管理費 | 予想金額:13,000〜17,000円程度 |
| 礼金/敷金 | 非公開(アーカイブ) | 平米数 | 25.46㎡ |
| 初期費用概算(参考) | 目安:247,800〜347,800 円 | みなし賃料(月額・参考) | 119,892〜139,892 円 |
| 備考 | 本ページは過去募集のアーカイブです。表示の金額は周辺相場・過去募集を踏まえた参考レンジであり、実際の契約金額・条件ではありません。 | ||
※上記みなし賃料(月額)は仲介手数料割引・無料&キャッシュバックを加味した高級賃貸バイブル限定の金額です。一般的なみなし賃料とは異なります。
【建物ページ】アルテシモシェルトの詳細・最新空室はこちら▶▶選ばれる理由
仲介手数料無料・キャンペーン情報(毎月15名様限定)
〇引っ越しお祝い金22200円プレゼント(キャッシュバック)
〇仲介手数料無料キャンペーン
アルテシモシェルト 7階 25.46㎡の口コミ・レビュー
アルテシモシェルト 7階 25.46㎡。あなたを新しい世界へと誘う扉、それがこの美しい物件の始まりです。ここは、まるで時間と空間の狭間に立つ小宇宙。江東区深川の静穏な街並みの中で、ひっそりと佇む姿は、訪れる人々を魅了する秘密の宝物のようです。7階からの見晴らしは、忙しい日常の喧騒を忘れさせ、広がる空と青い海との対話が耳に心地よく響いてきます。
このアルテシモシェルトには、東に面した窓から差し込む…アルテシモシェルト 7階 25.46㎡。あなたを新しい世界へと誘う扉、それがこの美しい物件の始まりです。ここは、まるで時間と空間の狭間に立つ小宇宙。江東区深川の静穏な街並みの中で、ひっそりと佇む姿は、訪れる人々を魅了する秘密の宝物のようです。7階からの見晴らしは、忙しい日常の喧騒を忘れさせ、広がる空と青い海との対話が耳に心地よく響いてきます。
このアルテシモシェルトには、東に面した窓から差し込む柔らかな朝の光が、あなたを温かく迎え入れます。心地よい陽射しは、まるでスリーピーな猫が日向でうとうとと眠るように、静かな朝のひとときを優しく包み込みます。そして、洋室7.4帖という空間は、あなたの日々の生活を彩るキャンバス。清潔感あふれる白い壁に、あなた自身の色を加えれば、それは一瞬で特別な場所に変わるのです。
想像してみてください。朝食には焼きたてのトーストと香り高いコーヒーを用意し、窓辺で太陽の光を浴びながら、ゆったりとした時間を楽しむ。香ばしいパンの匂いが漂い、近くの川から聴こえる水のせせらぎが、あなたの心を解きほぐします。日常の喧噪から離れたこの空間で、ただただ「今」を感じる時間が、人生の中でどれほど大切かを教えてくれます。
アルテシモシェルト には、モダンな設備が整い、時代の最先端を行く暮らしを実現できます。TVモニターホンでの安心感、エレベーターやオートロックによるセキュリティ。バイク置場や宅配ボックスも完備されているので、アクティブなライフスタイルを楽しむあなたにぴったりです。敷地内に設けられたゴミ置場や駐輪場は、日常のささやかなストレスを軽減し、スムーズな生活をサポートします。
近隣には、江東区ならではの歴史や文化、そして芸術が息づいています。門前仲町駅からのアクセスは、あなたを都心へも簡単に連れていってくれますが、周囲の散策もぜひ楽しんでいただきたい。一歩外に出れば、古き良き町並みや文化財、アートが点在するこの街で、心の豊かさを感じることができるでしょう。映画のワンシーンのように生き生きとした日常が広がっています。
アルテシモシェルトは、ただの住まいではありません。あなたのストーリーを紡ぐための舞台なのです。心が躍る瞬間、安らぎを感じる瞬間、仲間と笑い合う瞬間、全てがこの空間で実現されていくのです。この素晴らしい場所で、あなたの新しい生活が始まります。ここから生まれる日々のドラマが、あなたの人生を彩ることを約束します。アルテシモシェルト、ここでの生活があなたの心を豊かにし、幸せを運んでくれることを願っています。
このアルテシモシェルトには、東に面した窓から差し込む…アルテシモシェルト 7階 25.46㎡。あなたを新しい世界へと誘う扉、それがこの美しい物件の始まりです。ここは、まるで時間と空間の狭間に立つ小宇宙。江東区深川の静穏な街並みの中で、ひっそりと佇む姿は、訪れる人々を魅了する秘密の宝物のようです。7階からの見晴らしは、忙しい日常の喧騒を忘れさせ、広がる空と青い海との対話が耳に心地よく響いてきます。
このアルテシモシェルトには、東に面した窓から差し込む柔らかな朝の光が、あなたを温かく迎え入れます。心地よい陽射しは、まるでスリーピーな猫が日向でうとうとと眠るように、静かな朝のひとときを優しく包み込みます。そして、洋室7.4帖という空間は、あなたの日々の生活を彩るキャンバス。清潔感あふれる白い壁に、あなた自身の色を加えれば、それは一瞬で特別な場所に変わるのです。
想像してみてください。朝食には焼きたてのトーストと香り高いコーヒーを用意し、窓辺で太陽の光を浴びながら、ゆったりとした時間を楽しむ。香ばしいパンの匂いが漂い、近くの川から聴こえる水のせせらぎが、あなたの心を解きほぐします。日常の喧噪から離れたこの空間で、ただただ「今」を感じる時間が、人生の中でどれほど大切かを教えてくれます。
アルテシモシェルト には、モダンな設備が整い、時代の最先端を行く暮らしを実現できます。TVモニターホンでの安心感、エレベーターやオートロックによるセキュリティ。バイク置場や宅配ボックスも完備されているので、アクティブなライフスタイルを楽しむあなたにぴったりです。敷地内に設けられたゴミ置場や駐輪場は、日常のささやかなストレスを軽減し、スムーズな生活をサポートします。
近隣には、江東区ならではの歴史や文化、そして芸術が息づいています。門前仲町駅からのアクセスは、あなたを都心へも簡単に連れていってくれますが、周囲の散策もぜひ楽しんでいただきたい。一歩外に出れば、古き良き町並みや文化財、アートが点在するこの街で、心の豊かさを感じることができるでしょう。映画のワンシーンのように生き生きとした日常が広がっています。
アルテシモシェルトは、ただの住まいではありません。あなたのストーリーを紡ぐための舞台なのです。心が躍る瞬間、安らぎを感じる瞬間、仲間と笑い合う瞬間、全てがこの空間で実現されていくのです。この素晴らしい場所で、あなたの新しい生活が始まります。ここから生まれる日々のドラマが、あなたの人生を彩ることを約束します。アルテシモシェルト、ここでの生活があなたの心を豊かにし、幸せを運んでくれることを願っています。
バイブルスコア
バイブルスコア: 43.3
条件のいい物件です、引っ越しが2か月以内の場合は仮申し込みを検討すべき物件です。
※バイブルスコア詳細はこちら
バイブルスコアとは独自のAI機械学習技術を利用した物件評価システムで、物件のおすすめ度を示します。最高得点は100点で、スコアが高いほど、よりおすすめの物件と評価されています。
写真
現在写真が登録されていません契約条件
| 賃料 | 予想金額:101,000〜121,000円程度 | 管理費 | 予想金額:13,000〜17,000円程度 |
| 礼金 | 非公開(アーカイブ) | 敷金 | 非公開(アーカイブ) |
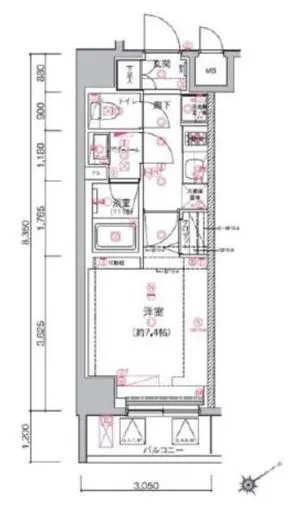
| フリーレント | なし | 平米数 | 25.46㎡ |
| 間取り | 1K | 大型収納 | なし |
| 契約期間 | 2年 | 方角 | 東 |
| 更新料 | 1ヶ月 | 契約形態 | 普通賃貸借契約 |
| 取引態様 | 媒介 | 内見状況 | 入居中 |
| 入居時期 | 入居中 | SOHO・事務所 | 不可 |
| ペット | 可 | 間取り内訳 | 洋室7.4帖 |
| キャンペーン情報・備考 | 本情報は賃料改定交渉の資料作成、収益物件の利回り試算、周辺エリアや最寄り駅の坪単価分析、次回募集開始時期の予測などにご活用いただけます。 | ||
※「どの不動産に頼めばいいのか分からない」「信頼できる営業マンの話を聞きたい」「一番親切な会社と契約したい」とお悩みの方におすすめなのが「高級賃貸バイブル」です。
高級賃貸バイブルは業界10年以上の熟練スタッフ群がお客様ファーストで対応します。
下記ボタンから、まずは無料でご相談下さい。
※内覧をご希望の際には、どうぞ物件のエントランス前にてお待ち合わせくださいませ。ご内覧後は、同じ場所でお別れとさせていただきます。お客様のご都合に合わせたスムーズなご案内を心がけておりますので、ご質問等がございましたら何なりとお申し付けください。 物件概要
| 物件名 |
| 築年月 |
|
|---|---|---|---|
| 所在地 | |||
| 交通 | |||
| 総戸数 |
| 総階数 |
|
| 構造 |
| ||
地図
物件までの道のりは、「拡大地図を表示」をクリックしてナビ機能をご利用ください。
部屋設備










建物設備

TVモニターホン

エレベーター

オートロック

バイク置場

宅配ボックス

敷地内ゴミ置場

駐車場機械式

駐輪場
アルテシモシェルトの現在募集中のお部屋
- No rooms found for this property.
