
| 賃料 | 予想金額:160,000〜180,000円程度 | 管理費 | 予想金額:6,500〜10,500円程度 |
| 礼金/敷金 | 非公開(アーカイブ) | 平米数 | 51.57㎡ |
| 初期費用概算(参考) | 目安:665,750〜765,750 円 | みなし賃料(月額・参考) | 179,870〜199,870 円 |
| 備考 | 本ページは過去募集のアーカイブです。表示の金額は周辺相場・過去募集を踏まえた参考レンジであり、実際の契約金額・条件ではありません。 | ||
※上記みなし賃料(月額)は仲介手数料割引・無料&キャッシュバックを加味した高級賃貸バイブル限定の金額です。一般的なみなし賃料とは異なります。
【建物ページ】センテニアル王子神谷の詳細・最新空室はこちら▶▶選ばれる理由
仲介手数料無料・キャンペーン情報(毎月15名様限定)
〇仲介手数料割引キャンペーン
センテニアル王子神谷 8階 51.57㎡の口コミ・レビュー
センテニアル王子神谷 8階 51.57㎡。まるで時を超えた美しさを秘めたこの高級賃貸物件は、あなたを新たな生活の舞台へと導く名脇役のように輝いています。北東に広がる窓からは、凛とした朝日が差し込み、日々の始まりを祝福するかのように優しくあなたを包み込みます。ここでの朝は、静かに目覚め、心地よい光に包まれながら、コーヒーの香りが漂うキッチンで始まることでしょう。
このセンテニアル王子神谷は、私が多…センテニアル王子神谷 8階 51.57㎡。まるで時を超えた美しさを秘めたこの高級賃貸物件は、あなたを新たな生活の舞台へと導く名脇役のように輝いています。北東に広がる窓からは、凛とした朝日が差し込み、日々の始まりを祝福するかのように優しくあなたを包み込みます。ここでの朝は、静かに目覚め、心地よい光に包まれながら、コーヒーの香りが漂うキッチンで始まることでしょう。
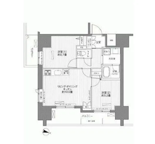
このセンテニアル王子神谷は、私が多くの物語を抱えながら、静かに佇む主人公。LDK10帖の空間は、まるで広大な映画のセットのように、あなたの想像力をかき立てます。大切な人との優雅なお食事や、友人との楽しいホームパーティーが繰り広げられる場所、あるいは一人静かに読書にふける時間を過ごすための安らぎの場として、あなたの人生のさまざまなシーンを彩ります。五感を刺激する特別な空間です。
さらに、洋室5.7帖と洋室5.2帖は、その名の通り、あなたの夢が息づくためのコンパートメント。ここで好きなアートに囲まれながら、心地よいブランケットと共に休日の昼下がりを楽しむことも、まるで映画のワンシーンのように感じられることでしょう。窓からの景色を楽しみながら、時には静かに音楽を流し、心を穏やかにする時間をお過ごしいただけます。
センテニアル王子神谷は、ただの住まいではありません。まるで一つの芸術作品のように、生活の中に豊かな文化を取り入れることができる場所なのです。周囲には歴史ある神社や美術館が点在し、散策するたびに新たな発見があります。そのたび、古き良き日本の文化と現代の生活が交差し、あなたの感性を刺激してくれることでしょう。
アクセスもまた、このセンテニアル王子神谷の魅力の一つです。東京メトロ南北線 王子神谷駅から徒歩2分という近さは、まるで日常の喧騒から逃げるかのように、多忙な生活の合間に一瞬の安らぎをもたらします。駅への早さは、あなたを新たな冒険に導くパスポートのようです。
また、万全のセキュリティが整ったこの住まいには、オートロックや宅配ボックスが完備されており、外の世界から守られた安心感を持ちながら、思いっきり自分らしい生活を楽しむことができるのです。まるで、優雅な城のように、あなたのプライベートな空間を守る彼女がいるかのような安心感です。
センテニアル王子神谷 8階 51.57㎡は、あなた自身を再発見し、新たな生活の色を添えるための舞台です。ここでの毎日は、まるで映画のような瞬間の連続。あなたの人生の主役として、この素晴らしい物件を選ぶことは、きっと最高の選択となることでしょう。さあ、この美しい舞台で、あなた自身の物語を紡いでみませんか。
このセンテニアル王子神谷は、私が多…センテニアル王子神谷 8階 51.57㎡。まるで時を超えた美しさを秘めたこの高級賃貸物件は、あなたを新たな生活の舞台へと導く名脇役のように輝いています。北東に広がる窓からは、凛とした朝日が差し込み、日々の始まりを祝福するかのように優しくあなたを包み込みます。ここでの朝は、静かに目覚め、心地よい光に包まれながら、コーヒーの香りが漂うキッチンで始まることでしょう。
このセンテニアル王子神谷は、私が多くの物語を抱えながら、静かに佇む主人公。LDK10帖の空間は、まるで広大な映画のセットのように、あなたの想像力をかき立てます。大切な人との優雅なお食事や、友人との楽しいホームパーティーが繰り広げられる場所、あるいは一人静かに読書にふける時間を過ごすための安らぎの場として、あなたの人生のさまざまなシーンを彩ります。五感を刺激する特別な空間です。
さらに、洋室5.7帖と洋室5.2帖は、その名の通り、あなたの夢が息づくためのコンパートメント。ここで好きなアートに囲まれながら、心地よいブランケットと共に休日の昼下がりを楽しむことも、まるで映画のワンシーンのように感じられることでしょう。窓からの景色を楽しみながら、時には静かに音楽を流し、心を穏やかにする時間をお過ごしいただけます。
センテニアル王子神谷は、ただの住まいではありません。まるで一つの芸術作品のように、生活の中に豊かな文化を取り入れることができる場所なのです。周囲には歴史ある神社や美術館が点在し、散策するたびに新たな発見があります。そのたび、古き良き日本の文化と現代の生活が交差し、あなたの感性を刺激してくれることでしょう。
アクセスもまた、このセンテニアル王子神谷の魅力の一つです。東京メトロ南北線 王子神谷駅から徒歩2分という近さは、まるで日常の喧騒から逃げるかのように、多忙な生活の合間に一瞬の安らぎをもたらします。駅への早さは、あなたを新たな冒険に導くパスポートのようです。
また、万全のセキュリティが整ったこの住まいには、オートロックや宅配ボックスが完備されており、外の世界から守られた安心感を持ちながら、思いっきり自分らしい生活を楽しむことができるのです。まるで、優雅な城のように、あなたのプライベートな空間を守る彼女がいるかのような安心感です。
センテニアル王子神谷 8階 51.57㎡は、あなた自身を再発見し、新たな生活の色を添えるための舞台です。ここでの毎日は、まるで映画のような瞬間の連続。あなたの人生の主役として、この素晴らしい物件を選ぶことは、きっと最高の選択となることでしょう。さあ、この美しい舞台で、あなた自身の物語を紡いでみませんか。
バイブルスコア
バイブルスコア: 46.3
条件のいい物件です、引っ越しが2か月以内の場合は仮申し込みを検討すべき物件です。
※バイブルスコア詳細はこちら
バイブルスコアとは独自のAI機械学習技術を利用した物件評価システムで、物件のおすすめ度を示します。最高得点は100点で、スコアが高いほど、よりおすすめの物件と評価されています。
写真
現在写真が登録されていません契約条件
| 賃料 | 予想金額:160,000〜180,000円程度 | 管理費 | 予想金額:6,500〜10,500円程度 |
| 礼金 | 非公開(アーカイブ) | 敷金 | 非公開(アーカイブ) |
| フリーレント | なし | 平米数 | 51.57㎡ |
| 間取り | 2LDK | 大型収納 | なし |
| 契約期間 | 2年 | 方角 | 北東 |
| 更新料 | 1ヶ月 | 契約形態 | 普通賃貸借契約 |
| 取引態様 | 媒介 | 内見状況 | 入居中 |
| 入居時期 | 入居中 | SOHO・事務所 | 不可 |
| ペット | 不可 | 間取り内訳 | LDK10帖 洋室5.7帖 洋室5.2帖 |
| キャンペーン情報・備考 | 本情報は賃料改定交渉の資料作成、収益物件の利回り試算、周辺エリアや最寄り駅の坪単価分析、次回募集開始時期の予測などにご活用いただけます。 | ||
※「どの不動産に頼めばいいのか分からない」「信頼できる営業マンの話を聞きたい」「一番親切な会社と契約したい」とお悩みの方におすすめなのが「高級賃貸バイブル」です。
高級賃貸バイブルは業界10年以上の熟練スタッフ群がお客様ファーストで対応します。
下記ボタンから、まずは無料でご相談下さい。
※内覧をご希望の際には、どうぞ物件のエントランス前にてお待ち合わせくださいませ。ご内覧後は、同じ場所でお別れとさせていただきます。お客様のご都合に合わせたスムーズなご案内を心がけておりますので、ご質問等がございましたら何なりとお申し付けください。 物件概要
| 物件名 |
| 築年月 |
|
|---|---|---|---|
| 所在地 | |||
| 交通 | |||
| 総戸数 |
| 総階数 |
|
| 構造 |
| ||
地図
物件までの道のりは、「拡大地図を表示」をクリックしてナビ機能をご利用ください。
部屋設備









建物設備

TVモニターホン

エレベーター

オートロック

宅配ボックス

敷地内ゴミ置場

駐輪場
センテニアル王子神谷の現在募集中のお部屋
- センテニアル王子神谷 10階 50.67㎡ - 間取り: 2LDK - 賃料: 18.9万円
- センテニアル王子神谷 7階 51.95㎡ - 間取り: 2LDK - 賃料: 19.0万円
