
| 賃料 | 予想金額:96,000〜116,000円程度 | 管理費 | 予想金額:8,000〜12,000円程度 |
| 礼金/敷金 | 非公開(アーカイブ) | 平米数 | 25.33㎡ |
| 初期費用概算(参考) | 目安:444,000〜544,000 円 | みなし賃料(月額・参考) | 114,083〜134,083 円 |
| 備考 | 本ページは過去募集のアーカイブです。表示の金額は周辺相場・過去募集を踏まえた参考レンジであり、実際の契約金額・条件ではありません。 | ||
※上記みなし賃料(月額)は仲介手数料割引・無料&キャッシュバックを加味した高級賃貸バイブル限定の金額です。一般的なみなし賃料とは異なります。
【建物ページ】メトロステージプラス中野弥生町の詳細・最新空室はこちら▶▶選ばれる理由
仲介手数料無料・キャンペーン情報(毎月15名様限定)
〇仲介手数料割引キャンペーン
メトロステージプラス中野弥生町 110の口コミ・レビュー
「メトロステージプラス中野弥生町 110」は、ただの住まい以上の存在です。それは、シンプルでありながらも洗練されたデザインの中に、人々の心を温かく包み込む懐の深さを持っています。人々の流れが絶えず訪れ、日常の中に特別な瞬間を与えるこの場所で、あなたの新たな物語が始まるのです。
東京都中野区弥生町5、ここは東京の心臓部に位置しながら、周囲には静けさと温かみが漂うエリアです。「メトロステージプラス中…「メトロステージプラス中野弥生町 110」は、ただの住まい以上の存在です。それは、シンプルでありながらも洗練されたデザインの中に、人々の心を温かく包み込む懐の深さを持っています。人々の流れが絶えず訪れ、日常の中に特別な瞬間を与えるこの場所で、あなたの新たな物語が始まるのです。
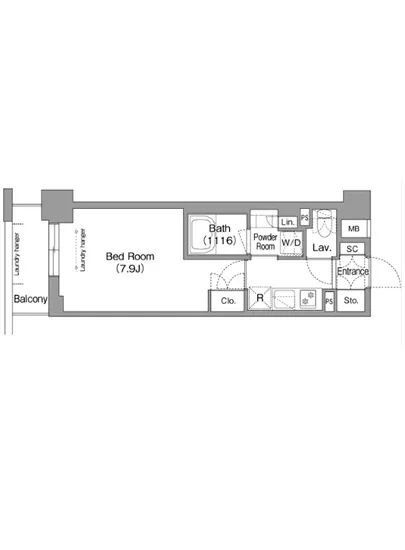
東京都中野区弥生町5、ここは東京の心臓部に位置しながら、周囲には静けさと温かみが漂うエリアです。「メトロステージプラス中野弥生町 110」の玄関をくぐると、優雅さと現代感が絶妙に融合した空間が広がり、まるで時間がゆっくりと流れているかのように感じさせます。広さ25.33㎡の中にぎゅっと詰まった工夫は、まるで美術品のように、見る者を魅了します。
西向きの窓からは、夕暮れ時に柔らかいオレンジ色の光が差し込み、部屋を優しく照らします。そんな光の中で、あなたは大好きな本を手に取り、静かな時間を楽しむことができるのです。7.9帖の洋室は、あなたの創造力をかきたてるためのキャンバスであり、思い思いのインテリアで彩られたその空間は、まるで夢の中にいるかのような感覚を与えてくれます。
さらに、「メトロステージプラス中野弥生町 110」には、さまざまな便利な設備が揃っており、生活のストレスを軽減します。エレベーターで上がるたびに、日常の忙しさから解放される瞬間を味わえるのです。オートロックが施されたこの家は、まるであなたのプライベートな城のように、外からの視線を遮り、安心感を与えます。宅配ボックスがあることで、受け取る喜びをいつでも味わえ、バイク置場や駐輪場も完備されていますので、アクティブな生活を送るあなたにぴったりです。
周辺の文化も「メトロステージプラス中野弥生町 110」をより魅力的にしています。徒歩6分の距離にある東京メトロ丸ノ内線中野富士見町駅から、そこは色とりどりのアートや歴史が潜む街へと繋がっています。おしゃれなカフェやギャラリーが点在する街並みは、まるで映画のワンシーンのように、あなたの生活に刺激やインスピレーションを与えてくれます。
「メトロステージプラス中野弥生町 110」に住むことは、ただの居住空間を手に入れることではありません。それは、人生のストーリーを豊かにするための新たな舞台を手に入れることです。あなたの感性が豊かに育まれるこの空間で、素晴らしい日々をお過ごしください。あなたの人生が、ここから始まるのです。
東京都中野区弥生町5、ここは東京の心臓部に位置しながら、周囲には静けさと温かみが漂うエリアです。「メトロステージプラス中…「メトロステージプラス中野弥生町 110」は、ただの住まい以上の存在です。それは、シンプルでありながらも洗練されたデザインの中に、人々の心を温かく包み込む懐の深さを持っています。人々の流れが絶えず訪れ、日常の中に特別な瞬間を与えるこの場所で、あなたの新たな物語が始まるのです。
東京都中野区弥生町5、ここは東京の心臓部に位置しながら、周囲には静けさと温かみが漂うエリアです。「メトロステージプラス中野弥生町 110」の玄関をくぐると、優雅さと現代感が絶妙に融合した空間が広がり、まるで時間がゆっくりと流れているかのように感じさせます。広さ25.33㎡の中にぎゅっと詰まった工夫は、まるで美術品のように、見る者を魅了します。
西向きの窓からは、夕暮れ時に柔らかいオレンジ色の光が差し込み、部屋を優しく照らします。そんな光の中で、あなたは大好きな本を手に取り、静かな時間を楽しむことができるのです。7.9帖の洋室は、あなたの創造力をかきたてるためのキャンバスであり、思い思いのインテリアで彩られたその空間は、まるで夢の中にいるかのような感覚を与えてくれます。
さらに、「メトロステージプラス中野弥生町 110」には、さまざまな便利な設備が揃っており、生活のストレスを軽減します。エレベーターで上がるたびに、日常の忙しさから解放される瞬間を味わえるのです。オートロックが施されたこの家は、まるであなたのプライベートな城のように、外からの視線を遮り、安心感を与えます。宅配ボックスがあることで、受け取る喜びをいつでも味わえ、バイク置場や駐輪場も完備されていますので、アクティブな生活を送るあなたにぴったりです。
周辺の文化も「メトロステージプラス中野弥生町 110」をより魅力的にしています。徒歩6分の距離にある東京メトロ丸ノ内線中野富士見町駅から、そこは色とりどりのアートや歴史が潜む街へと繋がっています。おしゃれなカフェやギャラリーが点在する街並みは、まるで映画のワンシーンのように、あなたの生活に刺激やインスピレーションを与えてくれます。
「メトロステージプラス中野弥生町 110」に住むことは、ただの居住空間を手に入れることではありません。それは、人生のストーリーを豊かにするための新たな舞台を手に入れることです。あなたの感性が豊かに育まれるこの空間で、素晴らしい日々をお過ごしください。あなたの人生が、ここから始まるのです。
バイブルスコア
バイブルスコア: 37.5
平均的なスコアです。
※バイブルスコア詳細はこちら
バイブルスコアとは独自のAI機械学習技術を利用した物件評価システムで、物件のおすすめ度を示します。最高得点は100点で、スコアが高いほど、よりおすすめの物件と評価されています。
写真
契約条件
| 賃料 | 予想金額:96,000〜116,000円程度 | 管理費 | 予想金額:8,000〜12,000円程度 |
| 礼金 | 非公開(アーカイブ) | 敷金 | 非公開(アーカイブ) |
| フリーレント | なし | 平米数 | 25.33㎡ |
| 間取り | 1K | 大型収納 | なし |
| 契約期間 | 2年 | 方角 | 西 |
| 更新料 | 1ヶ月 | 契約形態 | 普通賃貸借契約 |
| 取引態様 | 媒介 | 内見状況 | 入居中 |
| 入居時期 | 入居中 | SOHO・事務所 | 不可 |
| ペット | 不可 | 間取り内訳 | 洋:7.9 |
| キャンペーン情報・備考 | 本情報は賃料改定交渉の資料作成、収益物件の利回り試算、周辺エリアや最寄り駅の坪単価分析、次回募集開始時期の予測などにご活用いただけます。 | ||
※「どの不動産に頼めばいいのか分からない」「信頼できる営業マンの話を聞きたい」「一番親切な会社と契約したい」とお悩みの方におすすめなのが「高級賃貸バイブル」です。
高級賃貸バイブルは業界10年以上の熟練スタッフ群がお客様ファーストで対応します。
下記ボタンから、まずは無料でご相談下さい。
※内覧をご希望の際には、どうぞ物件のエントランス前にてお待ち合わせくださいませ。ご内覧後は、同じ場所でお別れとさせていただきます。お客様のご都合に合わせたスムーズなご案内を心がけておりますので、ご質問等がございましたら何なりとお申し付けください。 物件概要
地図
物件までの道のりは、「拡大地図を表示」をクリックしてナビ機能をご利用ください。
部屋設備












建物設備

TVモニターホン

エレベーター

オートロック

バイク置場

宅配ボックス

敷地内ゴミ置場

管理人

駐車場平置き

駐輪場
メトロステージプラス中野弥生町の現在募集中のお部屋
- No rooms found for this property.


