
| 賃料 | 予想金額:118,000〜138,000円程度 | 管理費 | 予想金額:3,000〜7,000円程度 |
| 礼金/敷金 | 非公開(アーカイブ) | 平米数 | 25.44㎡ |
| 初期費用概算(参考) | 目安:641,500〜741,500 円 | みなし賃料(月額・参考) | 134,740〜154,740 円 |
| 備考 | 本ページは過去募集のアーカイブです。表示の金額は周辺相場・過去募集を踏まえた参考レンジであり、実際の契約金額・条件ではありません。 | ||
※上記みなし賃料(月額)は仲介手数料割引・無料&キャッシュバックを加味した高級賃貸バイブル限定の金額です。一般的なみなし賃料とは異なります。
【建物ページ】アジールコフレ中野坂上の詳細・最新空室はこちら▶▶選ばれる理由
仲介手数料無料・キャンペーン情報(毎月15名様限定)
〇仲介手数料割引キャンペーン
アジールコフレ中野坂上 604の口コミ・レビュー
アジールコフレ中野坂上 604。この名を聞いただけで、心の奥底にふわりとした期待が芽生えることでしょう。604という番号は、まるで特別な秘密の扉が隠された場所を示す暗号のように、貴方の新しい生活の幕開けを約束します。この高級賃貸物件は、地上のひときわ輝く星のように、東京都中野区本町2-50-10の地にそびえ立ち、北と東の二つの方角から温かな光を取り込みます。
想像してみてください。602段の階段…アジールコフレ中野坂上 604。この名を聞いただけで、心の奥底にふわりとした期待が芽生えることでしょう。604という番号は、まるで特別な秘密の扉が隠された場所を示す暗号のように、貴方の新しい生活の幕開けを約束します。この高級賃貸物件は、地上のひときわ輝く星のように、東京都中野区本町2-50-10の地にそびえ立ち、北と東の二つの方角から温かな光を取り込みます。
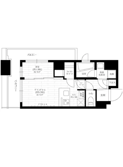
想像してみてください。602段の階段をひとつひとつ上るたびに、貴方の心は高揚し、アジールコフレ中野坂上 604の扉を開ける瞬間の感動を感じます。中に足を踏み入れた瞬間、まるで時間が止まったかのような贅沢な空間が広がります。専有面積25.44㎡の中には、心安らぐ1DKの間取りが設けられています。これこそ、生活の舞台にしては最適な場所。5.5帖のダイニングは、心が躍るような食事のひとときを演出し、1.8帖の洋室は貴方の安息の場となります。そして、1.5帖のキッチンは、まるでグルメなシェフが夢見るための秘密のレシピを語り掛けてくるような、料理の魔法が与えられた場所です。
アジールコフレ中野坂上 604は、ただの住まいではありません。日常が映画のワンシーンのように感じられる、贅沢な時間を約束する存在なのです。窓から差し込む優しい光に包まれ、朝のコーヒーの香りが部屋を満たす。そう、ここでは何気ない日常が特別な瞬間に変わります。高級感溢れる設備には、TVモニターホンやオートロックが備えられ、安心して暮らせる環境が整っています。
また、近隣には歴史と文化が息づく街並みが広がっており、まるで博物館のように散策するたびに新たな発見が待っています。東京メトロ丸ノ内線中野坂上駅へも徒歩2分という利便性の中、忙しい日常を忘れさせてくれる瞬間がここにはあります。街の喧騒を離れ、貴方だけの静寂な時間を楽しむことができるのです。
アジールコフレ中野坂上 604は、まるで貴方に語りかけるかのように、生活の一部として寄り添います。エレベーターでの上昇、オートロックを通過した後に広がる静かな世界。宅配ボックスや駐輪場、そして平置きの駐車場は、暮らしの小さな喜びを育む一助となることでしょう。生活の毎日が、心の琴線に触れるような美しい物語を紡いでいくのです。
この場所に住むことは、ただの居住空間に留まらず、人生の舞台とも言えるのではないでしょうか。アジールコフレ中野坂上 604が、貴方の新しい物語の始まりとなることを心から願っております。さあ、貴方の新たな生活が待つこの場所へ、一歩を踏み出してみませんか。
想像してみてください。602段の階段…アジールコフレ中野坂上 604。この名を聞いただけで、心の奥底にふわりとした期待が芽生えることでしょう。604という番号は、まるで特別な秘密の扉が隠された場所を示す暗号のように、貴方の新しい生活の幕開けを約束します。この高級賃貸物件は、地上のひときわ輝く星のように、東京都中野区本町2-50-10の地にそびえ立ち、北と東の二つの方角から温かな光を取り込みます。
想像してみてください。602段の階段をひとつひとつ上るたびに、貴方の心は高揚し、アジールコフレ中野坂上 604の扉を開ける瞬間の感動を感じます。中に足を踏み入れた瞬間、まるで時間が止まったかのような贅沢な空間が広がります。専有面積25.44㎡の中には、心安らぐ1DKの間取りが設けられています。これこそ、生活の舞台にしては最適な場所。5.5帖のダイニングは、心が躍るような食事のひとときを演出し、1.8帖の洋室は貴方の安息の場となります。そして、1.5帖のキッチンは、まるでグルメなシェフが夢見るための秘密のレシピを語り掛けてくるような、料理の魔法が与えられた場所です。
アジールコフレ中野坂上 604は、ただの住まいではありません。日常が映画のワンシーンのように感じられる、贅沢な時間を約束する存在なのです。窓から差し込む優しい光に包まれ、朝のコーヒーの香りが部屋を満たす。そう、ここでは何気ない日常が特別な瞬間に変わります。高級感溢れる設備には、TVモニターホンやオートロックが備えられ、安心して暮らせる環境が整っています。
また、近隣には歴史と文化が息づく街並みが広がっており、まるで博物館のように散策するたびに新たな発見が待っています。東京メトロ丸ノ内線中野坂上駅へも徒歩2分という利便性の中、忙しい日常を忘れさせてくれる瞬間がここにはあります。街の喧騒を離れ、貴方だけの静寂な時間を楽しむことができるのです。
アジールコフレ中野坂上 604は、まるで貴方に語りかけるかのように、生活の一部として寄り添います。エレベーターでの上昇、オートロックを通過した後に広がる静かな世界。宅配ボックスや駐輪場、そして平置きの駐車場は、暮らしの小さな喜びを育む一助となることでしょう。生活の毎日が、心の琴線に触れるような美しい物語を紡いでいくのです。
この場所に住むことは、ただの居住空間に留まらず、人生の舞台とも言えるのではないでしょうか。アジールコフレ中野坂上 604が、貴方の新しい物語の始まりとなることを心から願っております。さあ、貴方の新たな生活が待つこの場所へ、一歩を踏み出してみませんか。
バイブルスコア
バイブルスコア: 35.1
平均的なスコアです。
※バイブルスコア詳細はこちら
バイブルスコアとは独自のAI機械学習技術を利用した物件評価システムで、物件のおすすめ度を示します。最高得点は100点で、スコアが高いほど、よりおすすめの物件と評価されています。
写真
契約条件
| 賃料 | 予想金額:118,000〜138,000円程度 | 管理費 | 予想金額:3,000〜7,000円程度 |
| 礼金 | 非公開(アーカイブ) | 敷金 | 非公開(アーカイブ) |
| フリーレント | なし | 平米数 | 25.44㎡ |
| 間取り | 1DK | 大型収納 | WIC |
| 契約期間 | 2年 | 方角 | 北 / 東 |
| 更新料 | 1ヶ月 | 契約形態 | 普通賃貸借契約 |
| 取引態様 | 媒介 | 内見状況 | 入居中 |
| 入居時期 | 入居中 | SOHO・事務所 | 不可 |
| ペット | ペット可 | 間取り内訳 | 洋:1.8 D:5.5 K:1.5 |
| キャンペーン情報・備考 | 本情報は賃料改定交渉の資料作成、収益物件の利回り試算、周辺エリアや最寄り駅の坪単価分析、次回募集開始時期の予測などにご活用いただけます。 | ||
※「どの不動産に頼めばいいのか分からない」「信頼できる営業マンの話を聞きたい」「一番親切な会社と契約したい」とお悩みの方におすすめなのが「高級賃貸バイブル」です。
高級賃貸バイブルは業界10年以上の熟練スタッフ群がお客様ファーストで対応します。
下記ボタンから、まずは無料でご相談下さい。
※内覧をご希望の際には、どうぞ物件のエントランス前にてお待ち合わせくださいませ。ご内覧後は、同じ場所でお別れとさせていただきます。お客様のご都合に合わせたスムーズなご案内を心がけておりますので、ご質問等がございましたら何なりとお申し付けください。 物件概要
| 物件名 |
| 築年月 |
|
|---|---|---|---|
| 所在地 | |||
| 交通 | |||
| 総戸数 |
| 総階数 |
|
| 構造 |
| ||
地図
物件までの道のりは、「拡大地図を表示」をクリックしてナビ機能をご利用ください。
部屋設備
















建物設備

TVモニターホン

エレベーター

オートロック

バイク置場

宅配ボックス

敷地内ゴミ置場

管理人

駐車場平置き

駐輪場
アジールコフレ中野坂上の現在募集中のお部屋
- No rooms found for this property.


























