
| 賃料 | 予想金額:166,000〜186,000円程度 | 管理費 | 予想金額:13,000〜17,000円程度 |
| 礼金/敷金 | 非公開(アーカイブ) | 平米数 | 39.11㎡ |
| 初期費用概算(参考) | 目安:237,800〜337,800 円 | みなし賃料(月額・参考) | 183,329〜203,329 円 |
| 備考 | 本ページは過去募集のアーカイブです。表示の金額は周辺相場・過去募集を踏まえた参考レンジであり、実際の契約金額・条件ではありません。 | ||
※上記みなし賃料(月額)は仲介手数料割引・無料&キャッシュバックを加味した高級賃貸バイブル限定の金額です。一般的なみなし賃料とは異なります。
【建物ページ】アルファコート曳舟3の詳細・最新空室はこちら▶▶選ばれる理由
仲介手数料無料・キャンペーン情報(毎月15名様限定)
〇引っ越しお祝い金35200円プレゼント(キャッシュバック)
〇仲介手数料無料キャンペーン
アルファコート曳舟3 208の口コミ・レビュー
アルファコート曳舟3 208は、ただの賃貸物件ではありません。この場所は、まるで時の流れが緩やかに流れる映画の一場面。木漏れ日が差し込み、南西の優しい日差しを受けて、あなたを待っています。専有面積39.11㎡の中には、心を満たす空間が広がっています。この空間は、あなたにどんな物語を紡いでほしいのか、静かに語りかけてきます。
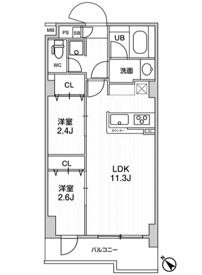
リビングダイニングキッチン、通称LDK11.3帖は、あなたの大切な日常…アルファコート曳舟3 208は、ただの賃貸物件ではありません。この場所は、まるで時の流れが緩やかに流れる映画の一場面。木漏れ日が差し込み、南西の優しい日差しを受けて、あなたを待っています。専有面積39.11㎡の中には、心を満たす空間が広がっています。この空間は、あなたにどんな物語を紡いでほしいのか、静かに語りかけてきます。
リビングダイニングキッチン、通称LDK11.3帖は、あなたの大切な日常を彩る場所です。家族や友人と共に囲む食卓は、温かい手料理の香りで包まれ、心地よい会話が響き渡るでしょう。洋室2.6帖、そして洋室2.4帖では、それぞれの個性がきらりと輝きます。小さな書斎として使うもよし、心のオアシスとして静かに過ごすもよし。これらの部屋は、あなた自身の物語を育むための舞台装置です。
アルファコート曳舟3 208は、ただの空間ではなく、あなたの暮らしのパートナーです。エレベーターを降り、オートロックを通り抜けるたびに、安心感に包まれます。管理人があなたを温かく見守り、宅配ボックスに届く贈り物は、まるで遠くからの手紙のように嬉しい驚きをもたらします。バイク置場や駐輪場も完備されており、自由にその足で街を楽しむことができるのです。
墨田区東向島の歴史的な景観に包まれて、散策するたびに新たな発見が待っています。職人の手から生まれる伝統的な和菓子店や、アートギャラリーの静謐な空気は、生活に文化を与え、感性を豊かにしてくれるでしょう。ここに住むことで、日常の中に美を見つけることができるのです。
さらに、アルファコート曳舟3 208から徒歩7分の場所には、東武伊勢崎線の東向島駅があります。これによって、あなたの生活はさらに広がりを見せるでしょう。都心へと繋がる便利なアクセスは、まるであなたの旅をサポートする翼のように、自由に夢を羽ばたかせます。
この物件には、五感を刺激する豊かな体験が詰まっています。朝、目を覚まし窓を開けると、清々しい風が優しく頬を撫で、遠くの公園では子供たちの笑い声が響き渡る。夕暮れ時には、自宅の窓から見える街の灯りが織りなす風景は、まるで星空が街に降りたような美しさを放ちます。
アルファコート曳舟3 208は、ただの住まいではなく、生活の舞台、そのすべてを楽しむためのコンパニオンです。この場所で、あなた自身のストーリーを紡ぎ、日々の生活を鮮やかに彩ってみませんか。あなたの新しい生活が、ここから始まるのです。
リビングダイニングキッチン、通称LDK11.3帖は、あなたの大切な日常…アルファコート曳舟3 208は、ただの賃貸物件ではありません。この場所は、まるで時の流れが緩やかに流れる映画の一場面。木漏れ日が差し込み、南西の優しい日差しを受けて、あなたを待っています。専有面積39.11㎡の中には、心を満たす空間が広がっています。この空間は、あなたにどんな物語を紡いでほしいのか、静かに語りかけてきます。
リビングダイニングキッチン、通称LDK11.3帖は、あなたの大切な日常を彩る場所です。家族や友人と共に囲む食卓は、温かい手料理の香りで包まれ、心地よい会話が響き渡るでしょう。洋室2.6帖、そして洋室2.4帖では、それぞれの個性がきらりと輝きます。小さな書斎として使うもよし、心のオアシスとして静かに過ごすもよし。これらの部屋は、あなた自身の物語を育むための舞台装置です。
アルファコート曳舟3 208は、ただの空間ではなく、あなたの暮らしのパートナーです。エレベーターを降り、オートロックを通り抜けるたびに、安心感に包まれます。管理人があなたを温かく見守り、宅配ボックスに届く贈り物は、まるで遠くからの手紙のように嬉しい驚きをもたらします。バイク置場や駐輪場も完備されており、自由にその足で街を楽しむことができるのです。
墨田区東向島の歴史的な景観に包まれて、散策するたびに新たな発見が待っています。職人の手から生まれる伝統的な和菓子店や、アートギャラリーの静謐な空気は、生活に文化を与え、感性を豊かにしてくれるでしょう。ここに住むことで、日常の中に美を見つけることができるのです。
さらに、アルファコート曳舟3 208から徒歩7分の場所には、東武伊勢崎線の東向島駅があります。これによって、あなたの生活はさらに広がりを見せるでしょう。都心へと繋がる便利なアクセスは、まるであなたの旅をサポートする翼のように、自由に夢を羽ばたかせます。
この物件には、五感を刺激する豊かな体験が詰まっています。朝、目を覚まし窓を開けると、清々しい風が優しく頬を撫で、遠くの公園では子供たちの笑い声が響き渡る。夕暮れ時には、自宅の窓から見える街の灯りが織りなす風景は、まるで星空が街に降りたような美しさを放ちます。
アルファコート曳舟3 208は、ただの住まいではなく、生活の舞台、そのすべてを楽しむためのコンパニオンです。この場所で、あなた自身のストーリーを紡ぎ、日々の生活を鮮やかに彩ってみませんか。あなたの新しい生活が、ここから始まるのです。
バイブルスコア
バイブルスコア: 43
条件のいい物件です、引っ越しが2か月以内の場合は仮申し込みを検討すべき物件です。
※バイブルスコア詳細はこちら
バイブルスコアとは独自のAI機械学習技術を利用した物件評価システムで、物件のおすすめ度を示します。最高得点は100点で、スコアが高いほど、よりおすすめの物件と評価されています。
写真
現在写真が登録されていません契約条件
| 賃料 | 予想金額:166,000〜186,000円程度 | 管理費 | 予想金額:13,000〜17,000円程度 |
| 礼金 | 非公開(アーカイブ) | 敷金 | 非公開(アーカイブ) |
| フリーレント | なし | 平米数 | 39.11㎡ |
| 間取り | 2LDK | 大型収納 | なし |
| 契約期間 | 2年 | 方角 | 南西 |
| 更新料 | 1ヶ月 | 契約形態 | 普通賃貸借契約 |
| 取引態様 | 媒介 | 内見状況 | 入居中 |
| 入居時期 | 入居中 | SOHO・事務所 | 不可 |
| ペット | 可 | 間取り内訳 | LDK11.3帖 洋室2.6帖 洋室2.4帖 |
| キャンペーン情報・備考 | 本情報は賃料改定交渉の資料作成、収益物件の利回り試算、周辺エリアや最寄り駅の坪単価分析、次回募集開始時期の予測などにご活用いただけます。 | ||
※「どの不動産に頼めばいいのか分からない」「信頼できる営業マンの話を聞きたい」「一番親切な会社と契約したい」とお悩みの方におすすめなのが「高級賃貸バイブル」です。
高級賃貸バイブルは業界10年以上の熟練スタッフ群がお客様ファーストで対応します。
下記ボタンから、まずは無料でご相談下さい。
※内覧をご希望の際には、どうぞ物件のエントランス前にてお待ち合わせくださいませ。ご内覧後は、同じ場所でお別れとさせていただきます。お客様のご都合に合わせたスムーズなご案内を心がけておりますので、ご質問等がございましたら何なりとお申し付けください。 物件概要
| 物件名 |
| 築年月 |
|
|---|---|---|---|
| 所在地 | |||
| 交通 | |||
| 総戸数 |
| 総階数 |
|
| 構造 |
| ||
地図
物件までの道のりは、「拡大地図を表示」をクリックしてナビ機能をご利用ください。
部屋設備











建物設備

TVモニターホン

エレベーター

オートロック

バイク置場

宅配ボックス

敷地内ゴミ置場

管理人

駐車場平置き

駐車場機械式

駐輪場
アルファコート曳舟3の現在募集中のお部屋
- No rooms found for this property.
