
| 賃料 | 予想金額:116,000〜136,000円程度 | 管理費 | 予想金額:10,000〜14,000円程度 |
| 礼金/敷金 | 非公開(アーカイブ) | 平米数 | 25.65㎡ |
| 初期費用概算(参考) | 目安:149,280〜249,280 円 | みなし賃料(月額・参考) | 129,527〜149,527 円 |
| 備考 | 本ページは過去募集のアーカイブです。表示の金額は周辺相場・過去募集を踏まえた参考レンジであり、実際の契約金額・条件ではありません。 | ||
※上記みなし賃料(月額)は仲介手数料割引・無料&キャッシュバックを加味した高級賃貸バイブル限定の金額です。一般的なみなし賃料とは異なります。
【建物ページ】ドムス・スタイル高田馬場の詳細・最新空室はこちら▶▶選ばれる理由
仲介手数料無料・キャンペーン情報(毎月15名様限定)
〇引っ越しお祝い金27720円プレゼント(キャッシュバック)
〇仲介手数料無料キャンペーン
ドムス・スタイル高田馬場 701の口コミ・レビュー
ドムス・スタイル高田馬場 701は、まるで都会のオアシスのように、静けさと洗練を調和させた空間です。東京都新宿区高田馬場3-4-14という立地は、素晴らしい文化と歴史の息吹が感じられる場所にあります。エレベーターを使い、701へと足を運ぶその瞬間から、貴方の新しい生活が始まる予感が漂います。専有面積25.65㎡のこのお部屋は、1Kの間取りでありながら、心のゆとりを与えてくれる特別な場所となることで…ドムス・スタイル高田馬場 701は、まるで都会のオアシスのように、静けさと洗練を調和させた空間です。東京都新宿区高田馬場3-4-14という立地は、素晴らしい文化と歴史の息吹が感じられる場所にあります。エレベーターを使い、701へと足を運ぶその瞬間から、貴方の新しい生活が始まる予感が漂います。専有面積25.65㎡のこのお部屋は、1Kの間取りでありながら、心のゆとりを与えてくれる特別な場所となることでしょう。
ドムス・スタイル高田馬場 701は、何気ない日常を特別なものへと変えてくれる魔法のような存在です。北向きの窓から差し込む柔らかな光は、朝のコーヒーの香りと共に、心を穏やかにし、日々の疲れを癒してくれます。ここに定住することで、貴方は都会の喧騒から少し離れ、自分自身と向き合う時間を持つことができるのです。この空間こそが、人生の物語を織り成す舞台であることを実感することでしょう。
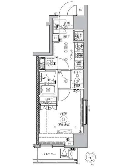
701の室内は、6.8帖の洋室が、貴方自身のストーリーを語るキャンバスとして存在感を放っています。好きなアート作品を飾り、幸福感をそそるインテリアを配置することで、貴方の個性が反映された空間が生まれていきます。触れるたびに心地良さを感じる木製のフローリングは、自然の温もりを与えてくれます。また、TVモニターホンやオートロックなど、最新設備が整っているため、安心して暮らせる環境も整っています。
日常の中で、バイク置場や駐輪場、そして宅配ボックスは、まるで貴方のライフスタイルをサポートする忠実なパートナーのようです。忙しい毎日の中で、これらの設備があることで、貴方の時間がより充実したものとなることは間違いありません。ドムス・スタイル高田馬場 701は、ただの住まいではなく、生活を豊かに彩る空間そのものです。
そして、貴方の日々を彩る高田馬場の街には、豊かな文化が息づいています。駅から徒歩3分という近さは、都会の便利さを享受できる最高の立地です。駅周辺には、飲食店やカフェ、映画館、さらにはアートギャラリーが点在し、日常の中に新たな発見が待っています。この街の歴史や風景が、貴方の生活に色鮮やかなエッセンスを与えてくれるのです。
ドムス・スタイル高田馬場 701での生活は、まるで映画のワンシーンのように、素晴らしい記憶を刻みつけてくれることでしょう。静かな夜、そっと窓を開ければ、風に乗って街の音が耳に心地よく響き、生き生きとした日常の一コマが浮かび上がります。この特別な場所で、貴方自身の物語を紡いでください。あなたの新しい生活は、ここから始まります。
ドムス・スタイル高田馬場 701は、何気ない日常を特別なものへと変えてくれる魔法のような存在です。北向きの窓から差し込む柔らかな光は、朝のコーヒーの香りと共に、心を穏やかにし、日々の疲れを癒してくれます。ここに定住することで、貴方は都会の喧騒から少し離れ、自分自身と向き合う時間を持つことができるのです。この空間こそが、人生の物語を織り成す舞台であることを実感することでしょう。
701の室内は、6.8帖の洋室が、貴方自身のストーリーを語るキャンバスとして存在感を放っています。好きなアート作品を飾り、幸福感をそそるインテリアを配置することで、貴方の個性が反映された空間が生まれていきます。触れるたびに心地良さを感じる木製のフローリングは、自然の温もりを与えてくれます。また、TVモニターホンやオートロックなど、最新設備が整っているため、安心して暮らせる環境も整っています。
日常の中で、バイク置場や駐輪場、そして宅配ボックスは、まるで貴方のライフスタイルをサポートする忠実なパートナーのようです。忙しい毎日の中で、これらの設備があることで、貴方の時間がより充実したものとなることは間違いありません。ドムス・スタイル高田馬場 701は、ただの住まいではなく、生活を豊かに彩る空間そのものです。
そして、貴方の日々を彩る高田馬場の街には、豊かな文化が息づいています。駅から徒歩3分という近さは、都会の便利さを享受できる最高の立地です。駅周辺には、飲食店やカフェ、映画館、さらにはアートギャラリーが点在し、日常の中に新たな発見が待っています。この街の歴史や風景が、貴方の生活に色鮮やかなエッセンスを与えてくれるのです。
ドムス・スタイル高田馬場 701での生活は、まるで映画のワンシーンのように、素晴らしい記憶を刻みつけてくれることでしょう。静かな夜、そっと窓を開ければ、風に乗って街の音が耳に心地よく響き、生き生きとした日常の一コマが浮かび上がります。この特別な場所で、貴方自身の物語を紡いでください。あなたの新しい生活は、ここから始まります。
バイブルスコア
バイブルスコア: 34.5
平均的なスコアです。
※バイブルスコア詳細はこちら
バイブルスコアとは独自のAI機械学習技術を利用した物件評価システムで、物件のおすすめ度を示します。最高得点は100点で、スコアが高いほど、よりおすすめの物件と評価されています。
写真
契約条件
| 賃料 | 予想金額:116,000〜136,000円程度 | 管理費 | 予想金額:10,000〜14,000円程度 |
| 礼金 | 非公開(アーカイブ) | 敷金 | 非公開(アーカイブ) |
| フリーレント | なし | 平米数 | 25.65㎡ |
| 間取り | 1K | 大型収納 | なし |
| 契約期間 | 2年 | 方角 | 北 |
| 更新料 | 1ヶ月 | 契約形態 | 普通賃貸借契約 |
| 取引態様 | 媒介 | 内見状況 | 入居中 |
| 入居時期 | 入居中 | SOHO・事務所 | 不可 |
| ペット | 不可 | 間取り内訳 | 洋:6.8 |
| キャンペーン情報・備考 | 本情報は賃料改定交渉の資料作成、収益物件の利回り試算、周辺エリアや最寄り駅の坪単価分析、次回募集開始時期の予測などにご活用いただけます。 | ||
※「どの不動産に頼めばいいのか分からない」「信頼できる営業マンの話を聞きたい」「一番親切な会社と契約したい」とお悩みの方におすすめなのが「高級賃貸バイブル」です。
高級賃貸バイブルは業界10年以上の熟練スタッフ群がお客様ファーストで対応します。
下記ボタンから、まずは無料でご相談下さい。
※内覧をご希望の際には、どうぞ物件のエントランス前にてお待ち合わせくださいませ。ご内覧後は、同じ場所でお別れとさせていただきます。お客様のご都合に合わせたスムーズなご案内を心がけておりますので、ご質問等がございましたら何なりとお申し付けください。 物件概要
| 物件名 |
| 築年月 |
|
|---|---|---|---|
| 所在地 | |||
| 交通 | |||
| 総戸数 |
| 総階数 |
|
| 構造 |
| ||
地図
物件までの道のりは、「拡大地図を表示」をクリックしてナビ機能をご利用ください。
部屋設備














建物設備

TVモニターホン

エレベーター

オートロック

バイク置場

宅配ボックス

敷地内ゴミ置場

管理人

駐輪場
ドムス・スタイル高田馬場の現在募集中のお部屋
- No rooms found for this property.












