
| 賃料 | 予想金額:159,000〜179,000円程度 | 管理費 | 予想金額:13,000〜17,000円程度 |
| 礼金/敷金 | 非公開(アーカイブ) | 平米数 | 41.22㎡ |
| 初期費用概算(参考) | 目安:60,300〜160,300 円 | みなし賃料(月額・参考) | 173,267〜193,267 円 |
| 備考 | 本ページは過去募集のアーカイブです。表示の金額は周辺相場・過去募集を踏まえた参考レンジであり、実際の契約金額・条件ではありません。 | ||
※上記みなし賃料(月額)は仲介手数料割引・無料&キャッシュバックを加味した高級賃貸バイブル限定の金額です。一般的なみなし賃料とは異なります。
【建物ページ】アーバンパーク三ノ輪2の詳細・最新空室はこちら▶▶選ばれる理由
仲介手数料無料・キャンペーン情報(毎月15名様限定)
〇引っ越しお祝い金186450円プレゼント(キャッシュバック)
〇仲介手数料無料キャンペーン
アーバンパーク三ノ輪2 1001の口コミ・レビュー
アーバンパーク三ノ輪2 1001は、まるで暮らしという名の映画の主人公として、あなたを迎え入れる特別な場所です。東京都台東区竜泉2-19-17に佇むこの物件は、東向きの窓から光が優雅に差し込み、朝の目覚めを一層豊かに演出します。エレベーターで1001階に上がるその瞬間から、あなたの新しい物語が始まるのです。
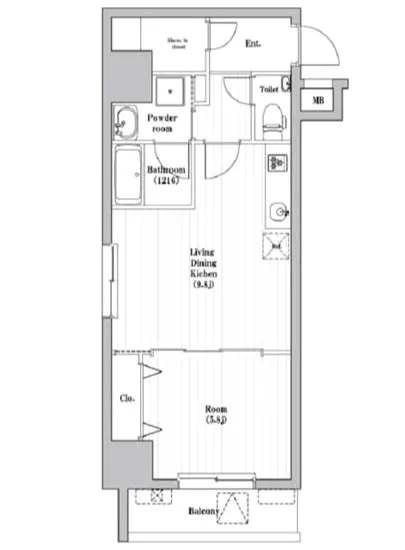
41.22㎡の空間の中には、洋室5.8帖とLDK9.8帖が広がり、あなたの生活を彩るため…アーバンパーク三ノ輪2 1001は、まるで暮らしという名の映画の主人公として、あなたを迎え入れる特別な場所です。東京都台東区竜泉2-19-17に佇むこの物件は、東向きの窓から光が優雅に差し込み、朝の目覚めを一層豊かに演出します。エレベーターで1001階に上がるその瞬間から、あなたの新しい物語が始まるのです。
41.22㎡の空間の中には、洋室5.8帖とLDK9.8帖が広がり、あなたの生活を彩るために作られた舞台とも言えるでしょう。LDKは、心地よい日差しが溢れ、素晴らしい家族の晩餐や友人との集いを演出するための場所。夕暮れ時、窓から見える街の灯りが徐々に点り始める様子は、まるで映画のエンディングを飾る美しいシーンのようです。
アーバンパーク三ノ輪2 1001では、あなた自身が食材を選び、料理を愛しむことで、自宅が贅沢なレストランに変わることも可能です。風味豊かな香りがキッチンを包み込み、味わい深いディナーが楽しめることでしょう。静寂の中に響く、食器が触れ合う音、それはまるで日常の中で贅沢な音楽が流れているかのようです。
また、こちらの物件にはTVモニターホンやオートロック、エレベーター、宅配ボックスなど、生活をより快適にするための設備が整っています。安心感に包まれた空間で、あなたは心を穏やかにして日々の生活を楽しむことができるのです。管理人が常駐するため、安全面でも抜かりはありません。
周辺には歴史や文化が息づき、散策すること自体が一つのアート体験となります。三ノ輪駅から徒歩3分の距離には、古き良き日本の姿を感じることができる街並みや、現代的なカフェやギャラリーも点在しています。ここでの生活は、まるでアート作品の中にいるかのようで、毎日が新たな発見に満ちています。心が踊る瞬間、触れ合いの中で生まれる新たな感情、それすらもあなたを包み込みます。
アーバンパーク三ノ輪2 1001はただの居住空間ではなく、あなたの物語の舞台です。目の前に広がる新たな世界で、感覚を研ぎ澄まし、特別な日常を送る準備が整っています。一歩踏み入れた瞬間から、あなたはこの場所の一部となり、この贅沢な時間を味わうことができるのです。今この瞬間こそが、あなたの人生にとって映画のクライマックスになるかもしれません。忘れられないストーリーがここから始まるのです。
41.22㎡の空間の中には、洋室5.8帖とLDK9.8帖が広がり、あなたの生活を彩るため…アーバンパーク三ノ輪2 1001は、まるで暮らしという名の映画の主人公として、あなたを迎え入れる特別な場所です。東京都台東区竜泉2-19-17に佇むこの物件は、東向きの窓から光が優雅に差し込み、朝の目覚めを一層豊かに演出します。エレベーターで1001階に上がるその瞬間から、あなたの新しい物語が始まるのです。
41.22㎡の空間の中には、洋室5.8帖とLDK9.8帖が広がり、あなたの生活を彩るために作られた舞台とも言えるでしょう。LDKは、心地よい日差しが溢れ、素晴らしい家族の晩餐や友人との集いを演出するための場所。夕暮れ時、窓から見える街の灯りが徐々に点り始める様子は、まるで映画のエンディングを飾る美しいシーンのようです。
アーバンパーク三ノ輪2 1001では、あなた自身が食材を選び、料理を愛しむことで、自宅が贅沢なレストランに変わることも可能です。風味豊かな香りがキッチンを包み込み、味わい深いディナーが楽しめることでしょう。静寂の中に響く、食器が触れ合う音、それはまるで日常の中で贅沢な音楽が流れているかのようです。
また、こちらの物件にはTVモニターホンやオートロック、エレベーター、宅配ボックスなど、生活をより快適にするための設備が整っています。安心感に包まれた空間で、あなたは心を穏やかにして日々の生活を楽しむことができるのです。管理人が常駐するため、安全面でも抜かりはありません。
周辺には歴史や文化が息づき、散策すること自体が一つのアート体験となります。三ノ輪駅から徒歩3分の距離には、古き良き日本の姿を感じることができる街並みや、現代的なカフェやギャラリーも点在しています。ここでの生活は、まるでアート作品の中にいるかのようで、毎日が新たな発見に満ちています。心が踊る瞬間、触れ合いの中で生まれる新たな感情、それすらもあなたを包み込みます。
アーバンパーク三ノ輪2 1001はただの居住空間ではなく、あなたの物語の舞台です。目の前に広がる新たな世界で、感覚を研ぎ澄まし、特別な日常を送る準備が整っています。一歩踏み入れた瞬間から、あなたはこの場所の一部となり、この贅沢な時間を味わうことができるのです。今この瞬間こそが、あなたの人生にとって映画のクライマックスになるかもしれません。忘れられないストーリーがここから始まるのです。
バイブルスコア
バイブルスコア: 31
平均的なスコアです。
※バイブルスコア詳細はこちら
バイブルスコアとは独自のAI機械学習技術を利用した物件評価システムで、物件のおすすめ度を示します。最高得点は100点で、スコアが高いほど、よりおすすめの物件と評価されています。
写真
契約条件
| 賃料 | 予想金額:159,000〜179,000円程度 | 管理費 | 予想金額:13,000〜17,000円程度 |
| 礼金 | 非公開(アーカイブ) | 敷金 | 非公開(アーカイブ) |
| フリーレント | なし | 平米数 | 41.22㎡ |
| 間取り | 1LDK | 大型収納 | SIC |
| 契約期間 | 2年 | 方角 | 東 |
| 更新料 | 1ヶ月 | 契約形態 | 普通賃貸借契約 |
| 取引態様 | 媒介 | 内見状況 | 入居中 |
| 入居時期 | 入居中 | SOHO・事務所 | 不可 |
| ペット | ペット可 | 間取り内訳 | 洋:5.8 LDK:9.8 |
| キャンペーン情報・備考 | 本情報は賃料改定交渉の資料作成、収益物件の利回り試算、周辺エリアや最寄り駅の坪単価分析、次回募集開始時期の予測などにご活用いただけます。 | ||
※「どの不動産に頼めばいいのか分からない」「信頼できる営業マンの話を聞きたい」「一番親切な会社と契約したい」とお悩みの方におすすめなのが「高級賃貸バイブル」です。
高級賃貸バイブルは業界10年以上の熟練スタッフ群がお客様ファーストで対応します。
下記ボタンから、まずは無料でご相談下さい。
※内覧をご希望の際には、どうぞ物件のエントランス前にてお待ち合わせくださいませ。ご内覧後は、同じ場所でお別れとさせていただきます。お客様のご都合に合わせたスムーズなご案内を心がけておりますので、ご質問等がございましたら何なりとお申し付けください。 物件概要
| 物件名 |
| 築年月 |
|
|---|---|---|---|
| 所在地 | |||
| 交通 | |||
| 総戸数 |
| 総階数 |
|
| 構造 |
| ||
地図
物件までの道のりは、「拡大地図を表示」をクリックしてナビ機能をご利用ください。
部屋設備
















建物設備

TVモニターホン

エレベーター

オートロック

バイク置場

宅配ボックス

敷地内ゴミ置場

管理人

駐車場平置き

駐輪場
アーバンパーク三ノ輪2の現在募集中のお部屋
- No rooms found for this property.























